Dílo architekta Raye Kappea debutuje v Kalifornii Poušť

Prohlédněte si nově postavený design moderního architekta, který je vystaven na Palm Springs Modernism Week, který ctí své stránky a views

Vývojář Ed Freeman si představil komunitu architektonické skvosty na jeho 112akrovém pozemku v úpatí pohoří San Jacinto s výhledem na Palm Springs v jižní Kalifornii. Domy by zapadly do přírody prostředí mezi velkými, zaoblenými balvany na aluviálním vějíři, která se vytvořila z vody, která přitekla z hor pro tisíciletí. Freeman chtěl svůj první spekulativní dům v zástavba, aby nejen krásně navazovala na pozemek, ale také být věrný tradici domů z poloviny století, které tvoří architektonická identita Palm Springs.
Myslel si, že renomovaný architekt Ray Kappeto udělá být dokonalou volboupro navržení spec domu, který byla dokončena v březnu 2021. Tato se ukázala jako jedna z posledních projekty, které navrhl Kappe; zemřel těsně předtím, než byl domov hotovo. Tdům měl svůj veřejný debut brzy poté dokončení, otevření pro prohlídky nedávno na letošním Palmu Springs Modernism Week, festival moderní architektury každoročně od roku 2006. Je to vhodné zakončení Kappeho kariéry, kombinující nejlepší prvky stylu poloviny století s dnešními zaměřit se na péči o životní prostředí.
Dílo architekta Raye Kappea debutuje v kalifornské pouštiFotografie odColin Flavin, pokud není uvedeno jinak
Vývojář najde svého architekta
Freeman se nespokojil s kopírováním stylu poloviny století pro svůj nový rozvoj. Chtěl autentického architekta z poloviny století navrhnout svůj první dům způsobem, který ctí místo a historii pouštního modernismu. Freeman doufal, že dům bude inspirovat kupující nemovitosti využít své pozemky k výstavbě moderních domů, které krásně souvisí s okolním prostředím.
Developer znal slavného architekta Raye Kappeho a miloval, jak jeho domy reagovaly na půdu. Freeman si myslel a Dům navržený Kappe v jeho vývoji by mohl být klenotem – prostředím tam je standard pro inovativní design.
V roce 2017 oslovil Kappeho, kterému tehdy bylo necelých 80 let. Developer se rád dozvěděl, že architekt je stále aktivně pracuje a přijímá nové zakázky se svým synem, architekt Finn Kappe, který se vrátil k partnerovi se svým otcem znovu v roce 2011.
Freeman navštívil Kappe v jeho rezidenci a kanceláři, mezníku dům, který navrhl v roce 1965 na strmém kaňonu v Pacifiku Palisades oblast Los Angeles, a on byl okamžitě zasažen Kappeho energie a nadšení pro architekturu. popisuje Freeman Kappe jako "téměř běhající po schodech nahoru a dolů" mezi mnoha patra domu, ještě dramatičtější, protože Kappe, vždy individualista, nikdy neinstaloval zábradlí. Freeman měl našel svého architekta.
Dílo architekta Raye Kappea debutuje v kalifornské pouštiFoto od Steva Shawa
Oslavovaný moderní architekt z jižní Kalifornie
Kappe se narodil v roce 1927 a nepřetržitě pracoval až do jeho smrt ve věku 92 let, projektování více než 100 domů v Southern Kalifornie. Bylzakládajícím ředitelem zjižní Kalifornie Institute of Architecture (SCI-Arc), který byl otevřen v roce 1972.
Kappeho domovy jsou známé tím, jak citlivě jsou umístěny jejich lokalit, s minimálním narušením přirozeného tvaru přistát. V interiérech jsou plynulé prostory stupňovité podlahy úrovně a odhalené post-and-beam struktury, které vyprávějí příběh jak se domy stavěly. Freeman miloval tyto funkce a skutečně byly přeneseny do domu, který Kappe navrhl vývoj Desert Palisades.
I když je uznáván jako jeden z největších v jižní Kalifornii moderní bytoví architekti, Kappe nikdy nenavrhl dům v Palm Springs, kde od té doby vzkvétá moderní architektura třicátá léta 20. století. Tato oblast zahrnuje domy navržené Richardem Neutrou, John Lautner, Albert Frey a mnoho dalších. Kappeho nedostatek zkušenost v poušti Freemana, který byl sebevědomý, nevyvedl z míry Kappe měl energii a kreativitu, aby se přizpůsobil přístup.
Dílo architekta Raye Kappea debutuje v kalifornské pouštiThe Místo Desert Palisades během výstavby. Pfotood Ed Freeman
Kappe navštěvuje Palm Springs
Freeman pozval Kappeho a jeho syna, aby navštívili vývojové místo. Podle Freemana byli Kappes ohromeni ekologicky citlivé dispoziční a designové standardy místo, kde byly podporovány nízkoprofilové moderní domy, materiály měly splynout s pouští, nebyly povoleny žádné ploty ani zdi mezi vlastnostmi a původní výsadbou bylo obhajováno – vše k zachovat charakter pouště.
Po několika návštěvách byl pozemek orientovaný na jihovýchod vybránpro domov spec. Freeman popsal nemovitost jako "Nabitý přirozenou silou a charakterem, s mírným sklonem vedle prastaré rokle." Nemovitost byla také velkolepá výhled na jih a na západ od San Jacinto Hory.
Program požadoval dům o rozloze 3 200 čtverečních stop s otevřené uspořádání kuchyně, obývacího pokoje a jídelny. Bylo to potřeba obsahovat tři ložnice s vlastními koupelnami, stejně jako terasy a bazén. Konkrétní rozložení a Estetika byla ponechána Kappeovi.
Freeman byl potěšen rozhodnutím postavit dům z oceli, betonu a skla, materiálů, které dobře zvětrávají v pouštním prostředí.
Dílo architekta Raye Kappea debutuje v kalifornské pouštiKresba od Raye Kappe
Dům Desert Palisades
Design, se kterým přišel Kappe, je mistrovskou třídou v tom, jak an architekt umí přizpůsobit svůj přístup novému prostředí a aktuálnímu chutná, aniž by opustil své zásady. Kappe vyrobil pouze tři výkresy domu, na žlutém pauzovacím papíře: půdorys (zde zobrazeno), příčný řez a nárys – jak Finn říká "truhla s pokladem" pro design. Tyto skromné kresby, připravené v roce 2017, obsahují všechny nápady pro projekt.
Freeman řekl, že Kappeho vřelá a skromná osobnost je v rozporu s precizností a rychlý přístup k designu. Finn popisuje design svého otce proces jako tiše pracuje sám, pečlivě vyhodnocuje místo, kde měla být budova umístěna a následně se s ní pracovat jednoduché kreslicí nástroje pro jeho návrh.
Ačkoli Kappe zemřel v roce 2019, rok a půl před dům byl dokončen, jeho syn mu připsal návrh domu. Finn použil tyto tři výkresy k vytvoření konstrukčních výkresů potřebné k vybudování projektu. Měl dostatek pracovních zkušeností se svým otcem, aby byl schopen interpretovat jeho záměr návrhu.
Freeman říká, že se "ničeho nedotkl" a že dům byl postavený podle představ Kappeho. To je pozoruhodné vzhledem k tomu, že proces je typicky iterativní, přičemž design se vyvíjí jako architekt vstřebává nové postřehy o lokalitě, interiéru jsou přidány mezery nebo prostě přijdou s novým nápadem.
Dílo architekta Raye Kappea debutuje v kalifornské pouštiA pohled na dům z rokle.
Dům, dokončený letos na jařeje umístěn na mírném svahu pozemek sousedící s vyschlým korytem řeky nebo arroyo, kde teče voda jen při velkých bouřkách. Kappe zařídil dlouhý směr přízemní dům sestoupit se svahem, aby se udržela nízká profilu k zemi. Ukázal také svou citlivost k pouštní klima otočením ke krátké straně domu – s několika málo okna — na západ, aby se zabránilo brutálnímu odpolednímu horku slunce.
Dílo architekta Raye Kappea debutuje v kalifornské pouštiThe půdorys domu. Diagram od Colina Flavina

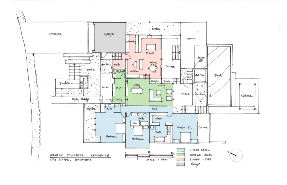
Stupňovitý půdorys. Dům navržený Kappe v poušti Palisades je jediný příběh se třemi odlišnými úrovněmi. Své vstoupil na úroveň centra, která obsahuje foyer a obytnou místnost pokoj (zde zobrazen zeleně). Ložnice jsou v horním patře (modrá) a kombinovaná kuchyň-jídelna je na spodní úrovni (červená).
Dílo architekta Raye Kappea debutuje v kalifornské pouštiKresba od Raye Kappe
To umožňuje domu sledovat obrysy pozemku, jak je vidět v tomto průřezu domu. Zakládá také a hierarchie soukromí, kde jsou ložnice na nejvyšší a nejsoukromější úroveň. Snad nejdůležitější je, že dům je schodiště profil, při pohledu z dálky, je v souladu s přirozený tvar pozemku.
Kappe byl proslulý tím, že své půdorysy postupně plnil různé výšky stropů a souhra rovin.
Dílo architekta Raye Kappea debutuje v kalifornské poušti vstupní chůzí nejprve zamíří kolmo ke vstupu a poté se otočí směrem k předním dveřím, přes suché koryto potoka na uhlazeném most z betonových prken. Most je podepřen na nízkém betonu stěna, s pásem vody tekoucí v kanálu v horní části zeď, rozlévající se do elegantní tůně vody. Ten beton použitý ve stěně a mostě dobře zapadá do pečlivě umístěných balvany a pouštní terénní úpravy.
Dílo architekta Raye Kappea debutuje v kalifornské pouštiOn na opačné straně domu, než je vchod, se dům otevírá dál řada sestupných teras.
Kappe použil hluboké přesahy střechy, aby chránily terasy před nimi slunce. V poslední den v domě, s venkovními teplotami v polovině 90. let se na něm ještě příjemně sedělo terasa.
Dílo architekta Raye Kappea debutuje v kalifornské poušti terasování pokračuje na exteriéru s vířivkou a bazénem sestoupil z domova a vnitřních prostor.
Dílo architekta Raye Kappea debutuje v kalifornské pouštiOdolnost vůči poušti materiály.Kappe prokázal pozoruhodnou zručnost při práci s novými materiály a techniky. Vyzkoušel si nový repertoár materiály pro dům v Desert Palisades. Dům je opláštěný Cor-Ten, druh oceli, který dosahuje sytě červené patiny rzi která chrání podkladový kov. Materiál potřebuje ne údržbou nebo nátěrem a jeho barva splývá s pouštními kameny a keře.
Dílo architekta Raye Kappea debutuje v kalifornské pouštiToto pohled ze zadní terasy ukazuje, jak mistrovsky to Kappe přinesl dohromady kontrastní materiály domu vytvořit a harmonické složení betonu, lakované oceli, skla a Cor-Ten.
Dílo architekta Raye Kappea debutuje v kalifornské pouštiMísto toho dřevěné sloupové a trámové konstrukce, kterou nejvíce preferoval ve své kariéře používal Kappe trubkové ocelové sloupy a nosníky (viz zde v nižší úrovni při pohledu nahoru na střední úroveň). The materiály se nezničí jako dřevo v drsné poušti prostředí a větší pevnost oceli také umožňuje menší členy a uhlazenější estetiku.
Kappe použil hladký hotový beton na podlahu, kde se obvykle by použili dřevo a koberec. Beton cítí chladit pod nohama v horkém klimatu.
Dílo architekta Raye Kappea debutuje v kalifornské pouštiA skleněná stěna v hlavní ložnici se otevírá na terasu s výhledem na poušť. Ocelové nosníky umístěné 8 stop od sebe v celém domě, dejte místnosti pocit struktury. The stěna za postelí směřuje na západ a Kappe se jí opatrně vyhýbal přidání oken, která by čelila brutálnímu odpolednímu slunci v poušť.
Dílo architekta Raye Kappea debutuje v kalifornské poušti kuchyně je orientována na východ a horní skříňky zanechávají klenbu nahoře, aby dopřálo kousek ranního slunce. Kuchyňská linka pokračuje za skleněnou stěnou a tvoří vnější kuchyni. Dřevěné akcenty dodávají bílé skříňce teplo.
Dílo architekta Raye Kappea debutuje v kalifornské pouštiRay a Finn Kappe
K dnešnímu dni bylo na 117 pozemcích postaveno pouze několik domů Pouštní palisády. Freeman nechává otevřenou možnost na některých pozemcích postavit několik speciálních domů. Pro většinu pozemků, kupující budou odpovědní za pronájem svých vlastních architektů a navrhování jejich domovů.
Freeman vytváří komisi pro přezkoumání návrhu, která bude přezkoumávat dům plány jako způsob, jak zajistit úroveň kvality. Mezitím Kappe dům bude stát jako zvonek toho, jak moderní architektura a poušť může žít v harmonii.


# Opravy bytů