Servista Tour: Barva a charakter v historickém městském domě

Designový profesionál pomáhá páru předělat jejich vnitřní prostory optimistický styl, který ctí historii budovy z roku 1874

Když pár si koupil městský dům v Cambridge, Massachusetts, oni zaujala jeho historie z 19. století, funky detaily a Půdorys podobný Jenga. Hlavní úroveň obsahovala primární obytné prostory a tři malé lofty. Nižší úroveň měla a vedlejší ložnice. Poté, co tam pár žil, se rozhodl že kuchyně na hlavní úrovni byla možná příliš zábavná a že je Plán primární ložnice zanechal mnoho přání. Zeptali se školící architekt Ian Masters na aktualizaci kuchyně, přepracování primární apartmá a osvěží zbytek interiéru. Mistři přišel s plánem, který byl moderní, ale vzdával hold bohatá historie budovy.
Cambridge Townhouse RenovationInteriérové fotografie "po". od
Dům na první pohled
Kdo zde žije: Pár a jejich kočka a pes
Místo:Cambridge, Massachusetts
Velikost:2 300 čtverečních stop (214 metrů čtverečních); dvě ložnice, tři koupelny
Návrhář: Ian Masters z
Tvůrce:
Budova byla postavena v roce 1874 a nachází se v blízkosti Harvard Square má vše od obchodu s potravinami a pekárny až po a prádelna a čínská restaurace. Dokonce přežilo žhářství v roce 1876. V 80. letech 20. století byl přeměněn na tři řadové domy. Více nedávno byl exteriér namalován výrazným červenkavým vejcem modrá.
"Tato budova má smysl pro kumulativní historii se vším všudy různých vlastníků a použití," říká Masters. "Cokoliv jsme udělali s interiér musel překonat čas, ale přidat další vrstvu a další příběh."

Renovace městského domu v CambridgeUvnitř předních dveří, vchod byl svého času pravděpodobně součástí výlohy. Předchozí majitel přidal dvě malá podkroví a schodiště, každé nad skříněmi a šatní skříně. Majitelé využívají prostory jako kanceláře vedle sebe se sdíleným stolem mezi. Masters navrhl zvýraznění oblast se dvěma odstíny červené: Ruleta na skříních a Cukr Řepa na stěnách, obojí od Behra.
"Klienti měli vizi a nebáli se být výstřední," Masters říká. "Ve skutečnosti se do toho opřeli, dokud to bylo funkční."
Cambridge Townhouse RenovationHned za vchodem se nachází jídelna a kuchyně. Masters si ponechal původní posty a odkryté trámy rámující obývací pokoj, propůjčující prostoru syrovost okraj. Dřevěná podlaha je originální i do interiéru.
"Tento městský dům je smyslovým zážitkem, který čeká objevili," říká Masters. "Apel je v tom, že musíte cestovat prostřednictvím něj najít tyto zkušenosti – nejsou všechny viditelné jednou."

Renovace městského domu v CambridgeKožený sekční a a křišťálový lustr jsou spárovány v obývacím pokoji. Mistři navrhl přidat jiskru jasně modré ke schodům, které vedou do dalšího loftu, který majitelé využívají k lenošení a pozorování TELEVIZE. Objem pod schodištěm uzavírá plnohodnotnou koupelnu pouze jeden na hlavní úrovni před renovací.
Cambridge Townhouse RenovationMistři měli stěnu jídelny a dveře do vchodu namalované v Newburyportu Benjamina Moora Modrá, aby odpovídala odstínu sousední kuchyně. Církevní okna nad dveřmi přiveďte denní světlo ze vstupu do obchodu. Mix stylů židlí dodává stolování bohémský nádech table.
Renovace městského domu v CambridgePřed FotoPřed:Pár prohmatal bývalou kuchyni, vyvýšený pár schodů nad jídelnou, byl datován a ne plně využít prostor. Byly využity dutiny pod podlahou na uskladnění a sporák přestal fungovat let dříve.
Renovace městského domu v CambridgePo:Mistři svlékli kuchyně na cvočky a prodloužil ji směrem k jídelně přidat více využitelného prostoru. Zakázková skříň natřená tmavě modrou barvou, betonové desky a nové spotřebiče dodají prostoru svěží vzhled, který není v rozporu s historickým kouzlem interiéru.
Mistři vyměnili kotlíkový sporák za malý plynový krb.
Kuchyňské skříně:
Cambridge Townhouse RenovationDřevěné a kovové barové stoličky mohou být uhnul z cesty, pokud někdo chce stát u poloostrova. Masters nahradil podlahu medovým tvrdým dřevem ladí s podlahou ve zbytku domu. Vystrojil se dutiny pod podlahou s úložnými zásuvkami navrženými tak, aby držely krmivo a voda pro kočku a psa majitelů.

Renovace městského domu v CambridgeNová okna nad dřez se zástěrou přináší do kuchyně více denního světla. Mosaz akcenty na řadě ILVE odrážejí světla a sanitární zařízení. Skříňka vpravo slouží jako spíž. Pro Masters navrhl, aby byly rozmístěny starožitné zrcadlové dlaždice s mosaznými distančními vložkami pro jemný nádech.
Cambridge Townhouse RenovationPřed FotoPřed:Sekundární obývací pokoj mezi kuchyně a hlavní ložnice byly nepohodlný, nepoužitelný prostor, a ukotvena na vzdáleném konci prachárnou. Mistrův úkol byl přepracovat tento konec městského domu na funkční primár apartmá.
Renovace městského domu v CambridgePo:Mistři otočili vedlejší obývací pokoj do šatny s organizéry skříně a pohovka ve stylu poloviny století. Část plochy místnosti byla použita k rozšíření původní prachárny na plnohodnotnou primární koupelna.
"Uvnitř jsme zachránili většinu původních architektonických detailů dům, když jsme prováděli rekonstrukci," říká Masters. "My přepracované věci, jako jsou stropní medailony a koruna formování."
Cambridge RefreshV nová šatna, nástěnná malba louisianské modré volavky obraz Johna Jamese Audubona dodává odvážný, organický nádech místnosti a získává modré akcenty v jiných částech domu. Vážka Benjamina Moora na stěnách poskytuje sytě zelenou barvu pozadí pro prostor a rámuje vstup do nového primárního prvku koupelna.
Cambridge Townhouse RenovationPřed FotoPřed:Bývalá primární ložnice představovala a malá skříň se zrcadlovými dveřmi a dveřmi, které vedly do a sousedův městský dům, blokovaný skříní.
Cambridge Townhouse RenovationPo:Mistři přeměněni stará skříň v ložnici vidět na předchozí fotografii do výklenku s policemi a zapečetil dveře do sousedova městského domu aby bylo místo pro další police. Majitelé si ponechali původní kamenná kamna z kuchyně jako sochařský kus u nohou postele.
Renovace městského domu v CambridgePřed FotoPřed:Pradelna u staré sekundární budovy obývací pokoj sloužil hlavní ložnici. Do sprchy, majitelé dříve musel přejít celé hlavní patro, aby bylo možné využít plné koupelna pod podkrovím obývacího pokoje.
Cambridge Townhouse RenovationPo:Masters expandoval bývalá toaleta pro vytvoření kompletní koupelny s vlastní koupelnou.
Dvě volně stojící umyvadla Signature Hardware s mastkovým kamenem desky jsou spojeny kusem zakázkové frézy, která poskytuje úložiště a elektrické zásuvky. Umyvadlo s dvojitým mosazným rámem z okenního rámu visí zrcadla. Nanesena průsvitná fólie do spodní poloviny okna poskytuje soukromí.

Renovace městského domu v CambridgeRozšířená koupelna má a volně stojící vana s nožičkami z leštěné mosazi. An starožitné zrcadlové dlaždice na stěnu a lustr na svíčku přidat glamour.
Renovace městského domu v CambridgeSprchový kout s dvojitým sprchové hlavice, obsahuje více starožitných zrcadlových dlaždic. Dlaždice se vzhledem dřeva byly praktickou volbou do koupelny podlahy.
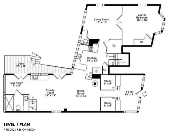
Cambridge townhouse renoPředtím FotoPřed:Půdorys předchozí hlavní úrovně ukazuje kuchyň uprostřed a hlavní ložnici vpravo nahoře. Vchod vpravo dole ústil do foyer, který vedl do a chodba pod dvěma malými podkrovními pracovnami a do jídelny a rodinný pokoj (uprostřed dole).
Cambridge Townhouse RenovationPo:Aktuální podlaží plán odhaluje rozšířenou kuchyň a předělané primární apartmá konfigurace. Nová koupelna (vlevo nahoře) a šatna (uprostřed nahoře) zabírají prostor, který byl kdysi druhotným bydlením oblast.


# Opravy bytů