Geodetická kupole inspirovaná Buckminster Fuller ukazuje svůj jas Strana

Návrhář a stavitel v Massachusetts předělávají prostory a přidejte bílou barvu, abyste zvýraznili trojúhelníkové tvary

I když geodetické kopule by mohly vykouzlit obrazy makramé, shag koberců a osmistopé kazety, Bostonský pár viděl potenciál, ne vintage kýč, když koupili třípatrový domek u jezera jako a prázdninové útočiště v Berkshires v západním Massachusetts. Ony najal interiérového designéra Jesse Cooneyho a stavitele Evana Hardcastla pro rozjasnění a modernizaci tmavého, zastaralého interiéru.

Obytná oblastFotografie "Po" od
Dům na první pohled
Kdo zde žije:Pár s dospělými dětmi a vnoučata
Místo: Becket, Massachusetts
Velikost: 2 567 čtverečních stop (238 čtverečních metrů); čtyři ložnice, tři koupelny
Interiérový designér:
Stavitel:Evan Hardcastle z
Cílem renovace interiéru domu bylo vytvořit a moderní, vzdušné a světlé prostředí. "Chtěli jsme udržet důraz na výhledech na jezero," říká Cooney, "takže jsme se drželi bílých stěn a světlé barvy v zařízení a doplňcích."
V předělaném obývacím pokoji ve druhém patře pár křesel s liniemi z poloviny století se vyhřívají v přirozeném světle, které poskytuje mnoho oken ve tvaru trojúhelníku.

geodesic domePřestože renovace byla omezena na interiér, vnější pohled na dům ukazuje geodetickou kopuli podpis hemisférického tvaru, složený z řady trojúhelníky.
Stavebnice, postavená v roce 1985, byla pravděpodobně inspirována geodézií stavby, které zastával zesnulý architekt, vynálezce a futurista Buckminster Fuller, rodák z Massachusetts, který vychvaloval pevnost, stabilita, snadná konstrukce a cenová dostupnost geodetické kopule.
Dům u jezera na svažitém pozemku má vstup, kuchyň, jídelnu a obývací pokoje ve střední úrovni. Hlavní apartmá zabírá a podkroví a pokoje pro hosty zabírají spodní patro.
geodesic domePřed fotkouPřed:Život velká geometrická okna pokoje a výhled na okolní lesy a jezero bylo to, co noví majitelé na domě milovali. The interiér? Ne tak moc.
"Interiér měl dřevěné obložení od podlahy ke stropu a staré koberce, díky nimž bylo všechno tmavé," říká Hardcastle. "To určitě potřeboval nějaké TLC."
Původní osvětlení bylo také "horkou kaší," říká Cooney. "Tam byly přívěsky visící všude dolů ve snaze dostat světla na správná místa."
geodesic domePo:Nové bílé stěny a teplý dub podlahy byly klíčem k proměně interiéru.
Hardcastle to konzultoval se specialistou na geodetické kopule, aby se ujistil předělání stěn bylo provedeno správně. "Přemýšleli jsme malování nebo moření dřevěných stěn," říká, "ale nakonec my šel se sádrokartonem, aby odrazil více světla do interiéru. My navíjení pomocí více spojovacích prvků a lepidel než ve standardu instalace sádrokartonu, aby kusy nepraskli."
V obývacím pokoji, stejně jako ve zbytku domu, se Cooney držel jednoduchá paleta světle šedé, modré a rzi, druhá jako an pocta slavným podzimním barvám Berkshires. Rekultivované dřevo konferenční stolek a pohovka ve vintage stylu ukotvují prostor.
Obytná oblastNový vápencový krb v obývacím pokoji s dubem krbová římsa nahradila staromódní kamna na dřevo. Nový Sálavé podlahové vytápění také pomáhá udržovat věci útulné a efektivní během chladnějších měsíců.
JídelnaJídelna pokoj je zastrčený pod podkrovím hlavního apartmá a jeho plochým stropem poskytla místo pro instalaci současného lustru. Zvyk ořechový jídelní stůl je obklopen vintage koženými židlemi a čalouněná lavice. "Můžete namačkat spoustu lidí." lavice," říká Cooney, "a má takovou neformální letní chatku podívej."
Nová sádrokartonová deska v trojúhelníkových obvodových oknech pomáhá odrážet světlo do místností.
geodesic domePřed fotkouPřed:Dřevo obložení zatemnilo původní kuchyni. Chyběla i kuchyně úložný a pultový prostor pro nové majitele, kteří rádi vaří. A neohrabaný dřevěný sloupek podpíral část hlavní sady loft.
Úhledná a moderní kuchyněPo:Přesunutí podpěry podkroví sloupek (a jeho nahrazení tenkým ocelovým sloupem) dovolil Cooney a Hardcastle pro rozšíření poloostrova kuchyně a přidání dalších pultový prostor, úložný prostor a sezení. Zakázkové truhlářství v šedě praný bambus a bledě modrá dodává moderní, lehký nádech. v místo hardwaru navrhl Cooney výřezy pro skříně. "Nic nedatuje interiér rychleji než kování," řekla říká. "Líbil se nám nápad čtvercových výřezů pro čisté, vzhled z poloviny století."
Křemenné pracovní desky a ručně foukaná skleněná závěsná svítidla dodávají jemnost zářit do kuchyně. Kapsová dvířka v zadní části prostoru vede do nové spíže, kde je lednice a mikrovlnka umístěn.
KuchyněNová řada a nalevo pomocná sada pro parní troubu jeviště pro seriózní vaření. Myčka, vpravo dřezu, splývá díky skříňkovému panelu.
Jídelní kout mimo kuchyniNaproti kuchyni, zvyk Ořechový stůl a vintage židle vytvářejí slunečné místo pro ráno káva.
Hlavní obytná oblast Nahoru vede původní točité schodiště, nově osazené dubovými nášlapy do podkroví hlavního apartmá a dolů do spodního patra, která zahrnuje pokoje pro hosty a doupě.
HudroomNa hlavní úrovni vchodu byla z překonfigurované koupelny vytesána nová mudroom. Zakázková bambusová skříň, lavice a háčky vytvářejí pohodlí prostor pro přezutí a uložení outdoorového vybavení.
geodesic domePřed fotkouPřed:Mistr Suite loft představoval vířivou vanu v (ano, v) s kobercem prostor na spaní, stejně jako malá šatna a koupelna.
Podkrovní ložnicePo:Výhled z podkroví odhaluje polygonální tvar stropu. Nové výklenky nahoře schodiště poskytuje prostor pro knihy a sběratelské předměty.
Podkroví hlavní ložniceS vířivkou vypuzenou, pán ložnice se stala klidným, přehledným prostorem. Nízká postel na platformě umožňuje výhledy přes nové skleněné vložky v zábradlí, které přidat na pocitu prostornosti. Ovladatelné střešní okno propouští dovnitř čerstvý vzduch a vánek.
Hlavní koupelnaOd odstranění vířivky, stavitel a interiérový designér byli schopen rozšířit hlavní koupelnu a šatnu, která slouží také jako šatna pro soukromí.
Zakázkové teakové umyvadlo s výřezem držadel a plovoucí policí jsou elegantní doteky, zatímco mosazná svítidla dodávají příjemné teplo.
Hlavní koupelnaSytě zelené skleněné dlaždice ve sprše slouží jako a kontrapunkt k bledým odstínům hlavní koupelny. Vestavěný výklenek udržuje osobní věci na dosah.
Zábavní místnostDoupě ve spodním patře je příjemné místo pro setkávání hostů díky TV, kuchyňce a salonek hodný sekční.
Během rekonstrukce bylo instalováno další okno do dálky konec místnosti, přidání více světla a výhled na jezero.
Namísto použití dubové podlahy instalované na hlavním a podkroví úrovně, projektant specifikoval dřevo-prkennou dlaždici pro spodní úrovni, která má přímý přístup k jezeru. "Všichni přicházejí z jezera s mokrýma nohama," říká Cooney. "Dlaždice je prostě víc odolný v tomto nastavení."
Ložnice pro hostyTkaná lanové křeslo dodává jednomu z nižších hostů přirozený nádech ložnice.
Koupelna pro hostyŠvýcarské dlaždice s křížovým vzorem v tmavě modrozelené barvě obklopuje napuštěnou vanu v koupelně pro hosty. Věšák na ručníky a výklenek jsou praktické doteky.
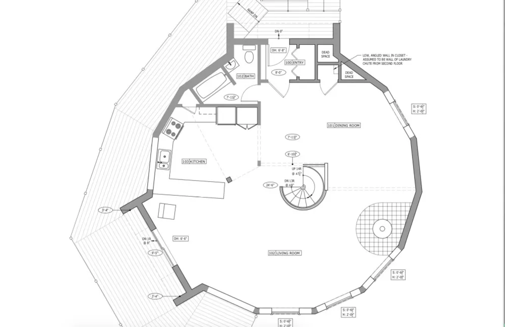
Rozjasnění geodetické kopule inspirované Buckminster FullerPřed FotoPřed:Hlavní půdorys ukazuje kuchyň (vlevo uprostřed) a vstup (nahoře) před přestavbou.
Rozjasnění geodetické kopule inspirované Buckminster FullerPo: Hlavní podlaží bylo překonfigurováno tak, aby bylo uživatelsky přívětivější kuchyně se spíží, dále funkční komora u vstup.


# Opravy bytů