Koupelna týdne: Více místa a úložného prostoru s párou Sprcha

Designér sundá zeď, aby přidal čtvercové záběry a vytvořil prostornější uspořádání koupelny s novými funkcemi a stylem

Po sedm let měl tento mladý profesionální pár se dvěma dětmi unaveni z jejich nudné a stísněné primární koupelny. The dlouhý, úzký prostor měl na jednom konci velkou vestavěnou vanu, a standardní sprchový kout na druhém konci a základní dvojité umyvadlo a mezi tím vmáčknutý záchod. Omezené úložiště vedlo k tomu pár přidat otevřenou policovou jednotku, která ještě více zaneřádila prostor — fyzicky i vizuálně.
Chcete vzdušné uspořádání s lepším úložným prostorem a živějším vzhledem, majitelé domů se obrátili o pomoc na designérku Haylie Lapinskas. Lapinskas odstranil zeď a začlenil prostor z velkého šatna, přidává 65 čtverečních stop a vytváří prostornější dispozice se samostatnou parní sprchou, samostatně stojící vanou, dvoul toaleta a toaleta. Modrozelený podstavec, elegantní světlo příslušenství a mix mramoru, porcelánu a porcelánu s mramorovým vzhledem dlaždice dodávají svěží styl.
Květnová rekonstrukce koupelny na uliciPřed fotkou"Po" fotografie od
Koupelna na první pohled
Kdo zde žije:Mladý profesionální pár se dvěma děti
Místo:Chicago
Velikost: 150 čtverečních stop (14 metrů čtverečních)
Návrhář:Haylie Lapinskas z
Builder: Pro One Builders Group
Před:Bývalá koupelna měla úzké uspořádání přeplněné na 85 čtverečních stop. Na jednom konci seděla velká vestavěná vana s záchod nacpaný mezi dvojitým umyvadlem, které postrádalo úložný prostor. Nedostatečný úložný prostor vynahradil otevřený policový systém, ale způsobilo to bolest v očích. "Všechno mi přišlo stísněné," Lapinskas říká.
Na druhém konci místnosti stála standardní sprcha. (Vidět Fotografie "před" níže.)
Jediná věc, kterou si majitelé domů chtěli ponechat, byla existence ovladatelné okno, které propouštělo přirozené světlo a čerstvý vzduch koupelna. "Nemělo to žádné problémy s ochranou soukromí, protože to tak bylo ojíněné a přehlížené na zadní příjezdovou cestu," říká Lapinskas.
Rekonstrukce koupelny v květnu na uliciPo: Tato fotografie nová koupelna byla pořízena přibližně ze stejného úhlu jako ta předchozí fotka. Lapinskas nechal okno na stejném místě, ale svlékl prostor až po cvočky a povalil zeď do kterého seděl policový díl.
Tím se dispozice otevřela do velké šatny, což umožnilo Lapinskas předělat půdorys a vytvořit prostorný sprcha s nízkým obrubníkem vpravo s funkcí páry."My překlopil koupelnu na bok do prostoru skříně," říká Lapinskas. Tento krok zvětšil velikost koupelny o 65 čtvereční stopa. (Viz půdorysy níže.)
Polozakázkové dvojité umyvadlo ve stylu Shaker obsahuje zásuvky s elektrické zásuvky a vložky pro specializované skladování. Teal barva (Underseas od Sherwin-Williams) v saténovém provedení a šampaňské bronzové tahy dodávají marnivosti styl a osobitost. The majitelé domů "za mnou přišli s vědomím, že chtějí barevnou marnost a něco, co by praskalo, ale zároveň působilo měkce a přirozeně," říká Lapinskas. "Hardware přidává jen trochu více detailů praskne proti modrozelené ješitnosti."
Podlouhlé šestihranné dlaždice z teplého šedého porcelánu vytvářejí akcent zeď za umyvadlo a obtočte místnost. "Líbilo se nám protáhlý tvar, protože díky němu je strop pocitově vyšší," říká Lapinskas. "Závěr se nám také líbil, protože by byl snadno se udržuje v čistotě."
Umyvadlová stěna má šest zásuvek, další čtyři na stěně vpravo, která odděluje umyvadlo od sprchy. Nástěnné lékárničky s integrovaným osvětlením mají USB nabíjecí porty a elektrické zásuvky uvnitř."Dříve měli jen jednu prodejnu, tak jsme chtěli abychom se ujistili, že už nikdy nebudou mít problém," Lapinskas říká.

Lékárničky:,Robern
Rekonstrukce koupelny v květnu na uliciChrome rozšířené baterie sladit s leštěným chromem namontovaným na podlahu vany. "My zvolili chrom tam, kde je voda, pro odolnost a dlouhá životnost příslušenství," říká Lapinskas.
Dvojice nástěnných nástěnných svícnů se třemi světly nad zrcadly má a povrchová úprava leštěná mosaz. "Mosaz vytvořila takové šperky." efekt, přidal nějakou nadmořskou výšku a přivázal k hardwaru na ješitnost," říká Lapinskas.
Svítidla: v leštěné mosazi, generace Osvětlení
Rekonstrukce koupelny v květnu na uliciPřed FotoPřed: Zde je pohled na standardní sprchu který stál naproti vaně v bývalé koupelně. Základní V barevném schématu dominovala béžová, která dala prostoru tlumenost vzhled.
Květnová přestavba koupelny na uliciPo:Tato fotka ukazuje stejná oblast jako na předchozí fotografii, ale z jiného úhlu. A toaleta nyní zabírá prostor, kde seděla bývalá toaleta. Volně stojící vana sedí na místě staré toalety a vestavěné vany byly lokalizovány. Lapinskas proměnil bývalou sprchu na jednu ze dvou skříně (viz půdorysy "po" níže) na druhé straně toaleta.
60palcová litinová vana má podstavec. "Tohle je víc." relaxační vany; je hlubší a elegantnější než oni měl předtím," říká Lapinskas.
Dvě mořené plovoucí dubové police ladí s podlahami z tvrdého dřeva zbytek domova.
Kapesní dvířka k toaletě šetří cenný prostor. A skříňka nad záchodovou lištou poskytuje úložný prostor pro role toaletní papír a další předměty.
Barvy nátěru: Snowbound (stěny) a Reflexní bílá (lemování), Sherwin-Williams

Květnová přestavba koupelny na uliciTeaková lavice poskytuje místo pro nastavení ručník, nápoj nebo svíčky a lze je přemisťovat po místnosti jako potřeba.
Rekonstrukce koupelny v květnu na uliciŠedé, bílé a krémové mramorové dlaždice v geometrickém vzoru dát podlaze pohyb a vizuální zaujmout a spojit barvy použité v celé místnosti. "Nechali jsme je zapečetit, aby se nezbarvily," říká Lapinskas.
Podlaha má také sálavé teplo.

Květnová přestavba koupelny na uliciJak již bylo zmíněno, Lapinskas sundal a zdi a přesunul umístění sprchy do toho, co kdysi bylo šatna. Sprchový kout má nízký obrubník a vlastní pouzdro z tvrzeného skla, které zachycuje páru uvnitř během páry funkce.
Vestavěná lavice má vrchní desku ze stejného křemene, jaký byl použit pro pracovní deska. Podlaha sprchy je 2 x 2 palce z porcelánu s mramorovým vzhledem dlaždice. "Je to parní sprcha, takže jsme nedělali mramor, protože je porézní," říká Lapinskas.
Odsávací ventilátor ve stropě těsně před sprchou má páru senzor, který automaticky zapíná a vypíná ventilátor. Sprcha klika dveří se může otáčet vodorovně a nabízí místo pro zavěšení ručník.
Květnová přestavba koupelny na uliciSprchový kout obsahuje také posuvné ruční sprcha a dešťová sprchová hlavice v leštěném chromovém provedení. Dva výklenky udržují produkty mimo sprchovou podlahu a zahrnují křemen police s lemem Schluter. Zadní strana malých šestihranných porcelánových dlaždic výklenky.
Sprchové příslušenství: kolekce Bancroft,

Květnová přestavba koupelny na uliciNová vestavěná skříň na prádlo z vstupní chodba koupelny má velkou horní skříňku se třemi police pro uložení dalších ručníků a dalších koupelnových nezbytností. Dva zásuvky a spodní skříňka pod nimi nabízejí další úložný prostor. "Vidím, že ve svém předchozím měli ten otevřený regál." v koupelně, věděli jsme, že tam musíme sehnat nějaké úložné prostory," Lapinskas říká. "Toto zabírá místo té provizorní jednotky."
Rekonstrukce koupelny v květnu na uliciPřed FotoPřed: Tento půdorys bývalé koupelny ukazuje jeho dlouhé a úzké uspořádání vlevo se sprchou stání (vlevo dole), umyvadlo (vlevo uprostřed) a toaleta a vana (nahoře vlevo) vše nacpané v těsném prostoru.
Šatna (uprostřed nahoře) nabízela potenciál k rozšíření. A skříňka na prádlo (uprostřed dole) stála mimo koupelnu. Krátký chodba mezi sprchovým koutem a skříňkou na prádlo spojovala prostory do ložnice.
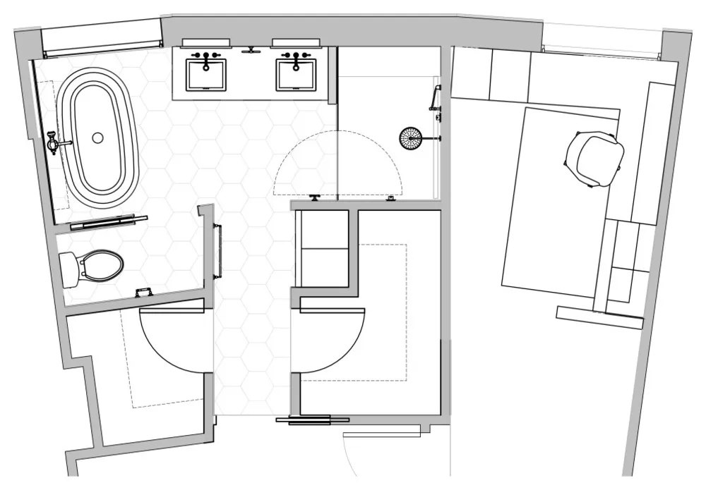
Rekonstrukce koupelny v májové uliciPo:V aktualizovaném rozvržení Lapinskas zboural zeď, aby spojil bývalou koupelnu a šatna. Znovu upravila rozložení a umístila marnost (uprostřed nahoře) podél zadní stěny a nové parní sprchy (horní vpravo uprostřed) v tom, co bývalo šatnou.
Z bývalého sprchového koutu se stala jedna skříň (vlevo dole), býv další se stala skříň na prádlo a část šatny skříň (vpravo dole uprostřed). Záchod (vlevo uprostřed) zabírá prostor, který kdysi držel marnost a novou vanu (vlevo nahoře) sedí tam, kde bývala vestavěná vana.
"Je to nejen krásnější a modernější, ale také funkčnější prostoru," říká Lapinskas.


# Opravy bytů