Kuchyně týdne: Krémově bílá, dřevo a mosaz v otevřeném prostoru Plán

Projektová firma pomáhá páru z Minnesoty vytvořit prostorný Kuchyň ve tvaru L se šedobílými skříňkami a ořechem ostrov

Se čtyřmi dětmi a rušnou domácností tato Edina, Minnesota, pár si uvědomil svůj jednopodlažní rambler a jeho rozdělené místnosti už pro ně nefungovaly. Ony najala designérku Katie Kath a tým společnosti Jkath Design Build + Znovu objevte a renovujte celý dům pomocí nápadů Servista na cestě ke sdílení návrhových nápadů. Pár přidal vteřinu patro s ložnicemi a koupelnami a otevřelo se přízemí vytvořit skvělý pokoj.
Za kuchyni, která je zde uvedena, majitelé domů a designový tým zakomponované krémově bílé skříňky a zakázkový ořech ostrov. Mosazné kování a svítidla, bílý dubový plášť digestoř a mramorový vzhled desky quartz backsplash kompletní lákavý prostor přechodného stylu.
Drew AvenueFotky od

Kuchyně na první pohled
Kdo zde žije: Pár se čtyřmi dětmi
Místo: Edina, Minnesota
Velikost: 200 čtverečních stop (19 metrů čtverečních)
Návrhář: Katie Kath z
Při odvozu bývalého domova dolů k základům a přestavbě, tým přemístil kuchyni na prominentnější místo, tj viditelné pro hosty, když vstoupí do předních dveří. Nové umístění také vytváří lepší propojení s jídelnou a bydlením oblasti.
Uklidňující barevná paleta kuchyně zahrnuje měkké bílé stěny a trim (Simply White od Benjamina Moorea) a vlastní Shaker-style javorové skříně natřené krémově špinavě bílou s šedou a béžovou barvou podtóny (Balboa Mist od Benjamina Moorea). "Chtěli neutrální." skříně, ale ne bílé," říká Kath. "Mluvili jsme také o nich životní styl a vše, co potřebovali uložit, takže jsme
mohl maximalizovat veškerý úložný prostor."
Starší mosazné knoflíky a tahy doplňují mosazné povrchy na svítidla a vodovodní baterie. Nerezové spotřebiče nabízejí a kontrastní provedení. Vlastní ořechový ostrov se vyznačuje přírodním dokončit.
Drew AvenueBílý dubový plášť podtrhuje zvyk digestoř. "To nám umožnilo vytvořit ústřední bod v kuchyně," říká Kath. Krbová římsa doplňuje obílené dřevěné podlahy.
Desky z křemenných desek a backsplash napodobují vzhled Mramor Calacatta Gold."Žílkování zvedne teplé tóny z ostrova vlašských ořechů," říká Kath.
Backsplash a pulty: Et Calacatta Gold,Silestone od ; podlaha: Millennium Whisky,
Drew AvenueVýklenky v Obvod digestoře pojme nezbytnosti pro vaření, jako je sůl a pepř a máslovou misku. "Není tu mnoho přístupných pultový prostor na obou stranách rozsahu, takže jsme přidali tyto výklenky," říká Kath. "Jsme příznivci držení věcí mimo čítače."
36palcová řada plynu z nerezové oceli v profesionálním stylu má čtyři hořáky a chromový rošt. "Líbil se nám vzhled, protože je to podstatné," říká Kath. "Může se držet zvyku prvky, které jsme v tomto prostoru použili."
Rozsah: 36palcový plynový profesionál,

Drew AvenueVýhled ze tří černých oken nad umyvadlem na dvorek a přináší spoustu přirozeného světla. "Byli jsme schopni jděte na tu stěnu oken nad umyvadlem, abyste přinesli co nejvíce přirozené světlo, protože jsme měli dostatek kuchyně úložný prostor a nepotřebovali jsme tam horní skříňky," Kath říká.
Na levé straně je panelový výsuv na odpadky a recyklaci dřez. Myčka nádobí z nerezové oceli vpravo obsahuje páru technologie, která eliminuje potřebu předoplachování nádobí, pomáhá rodina šetří energii a vodu.
Okna: kolekce Elevate, myčka: model SKSDW2401S, Signature Kitchen Suite
Drew AvenueDvě Svícny s otočným ramenem v industriálním stylu v mosazném provedení přesahují okna. Připojují se ke skleněným kupolovým přívěskům nad ostrovem, zapuštěná svítidla v 9 stopovém stropě a osvětlení podskříně vytvořit vrstvy světla.

Svícny: v teplé mosazi, Savoy House

Drew AvenueOčesaný mosazný kohoutek zakřivený přes 26palcovou spodní nerezovou ocel umyvadlo s jednou mísou.
Baterie: z broušené mosazi, Kraussink: , spodní montáž z nerezu ocel, Kraus
Drew AvenueVlastní stanice kávy a nápojů se nachází hned vedle kuchyně.
Drew AvenueDveře skříně se vyklápí a odhalují vestavěný ořech police, kávovar, mikrovlnná trouba, sklenice a koktejl zásoby. Dole je lednička na nápoje. "Je tam screening veranda v zadní části domu a to dává dětem cestu vezmi si džus nebo sodovku, když si hrají na verandě," Kath říká.
Chladnička: chladič nápojů, Zephyr
Drew AvenueV jídelně vedle kuchyně žehlička lustr visí nad rustikálním dřevěným stolem obklopeným černou cívková křesla.
Francouzské dveře s černým rámem vlevo vedou do přední části veranda.
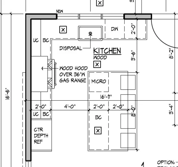
Drew AvenueTento půdorys ukazuje kuchyň ve tvaru L uspořádání se středovým ostrůvkem. (Mikrovlnná trouba viděná na ostrově byla přesunuli do nápojové stanice na předchozí fotografii.) "My upřednostnil tok a jako první navrhl kuchyň," říká Kath. "Nyní mají tuto zakázkovou kuchyni, kterou používají od slunce do západ slunce."

# Opravy bytů