Kuchyně týdne: Vzdušný statek s pocitem prázdnoty Nesters

Designér pomáhá páru z Utahu vytvořit světlý prostor pomocí a lepší uspořádání, moderní spotřebiče a vylepšené úložiště

Prázdné nerozenci Lawrence a Isabelle Buhlerovi milují svůj městský rok 1905 statek v zavedené čtvrti Salt Lake City. Ony na kole nebo pěšky do práce a mají zahradu, kde pěstují ovoce a zelenina pro zdravá jídla. Ale měli mnohem méně lásky jejich kuchyně.
20 let žili s jeho špinavými bílými zdmi, spadlými strop, stárnoucí dřevěné skříně, omezený prostor na pracovní desce a nedostatek přirozeného světla. Včetně hromady spotřebičů a přenosná myčka nádobí, která stála venku se zapnutou mikrovlnnou troubou horní. A nikdy nepoužívaná plná koupelna byla hned vedle kuchyně. Li Buhlerovi nechali dveře otevřené, naskytl se jim pohled na růžovou dlaždici vanou.
Chcete světlejší prostor s funkčnějším uspořádáním, modernizovaný spotřebičů a vylepšených úložných prostor, manželé se obrátili na designéra Nicole Zeigler o pomoc. Zeigler vyřadil koupelnu a mudroom rozšířit kuchyň, přidat 85 čtverečních stop a vytvořit prostor pro svěží, ale funkčnější uspořádání. Měkké zelené skříně a centrální jídelní stůl dodává prostoru přívětivou atmosféru.
Kuchyně městského statkuPřed fotkou"Po" fotografie od
Kuchyně na první pohled
Kdo zde žije: Prázdná hnízda Lawrence a Isabelle Buhler
Místo:Salt Lake City
Velikost: 285 čtverečních stop (26 metrů čtverečních)
Návrháři:Nicole Zeigler a Lacy Green z
Před:Bývalá kuchyně byla rozbitá časem spolu. Volně stojící drátěný policový systém seděl vlevo od stárnoucích skříní, které zde vidíte. Skladoval se malý spotřebiče a hrnce a pánve. "Pravděpodobně to tam bylo 10 let," říká Isabelle.
Přenosná myčka seděla vpravo s mikrovlnnou troubou nahoře. A volně stojící prkénko se pokusilo nahradit nedostatek pultový prostor. Pohled na koupelnu s růžovými dlaždicemi připravoval jídlo jídelní stůl trapný. A béžová vinylová podlaha, laminát pracovní desky a fádní bílé stěny dělaly jen málo pro to, aby byly věci víc příjemné.
"Ta kuchyně byla podle stavitelů stará 70 nebo 80 let," říká Isabelle. "Stěny se oprýskaly, elektřina byla stará, a stěny izolující tu koupelnu obsahovaly noviny 1946."
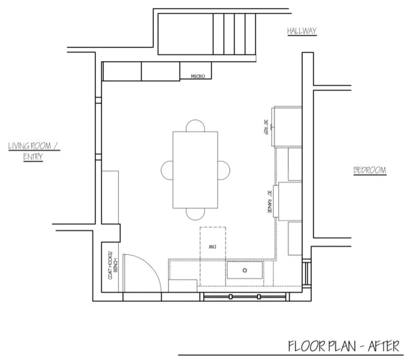
Kuchyně městského statkuPoté: Zeigler zaklepal na kuchyně zpět na cvočky. Zvedla strop asi o stopu. A vytlačila kuchyni, začlenila koupelnu a mudromu do rozvržení. Tyto pohyby přidaly 85 čtverečních stop půdorys. "Předtím byla kuchyně čtvercová," říká Zeigler. "My vzal tu koupelnu a mudroom a přidal je do kuchyně a vytlačil všechno ven, aby nám vznikl tento velký, obdélníkový kuchyně."
Zeigler poté přepracoval umístění spotřebičů. Položila nové 30palcový indukční rozsah o místě, kde seděl dřez, vytváří a ohnisko zvýrazněné plovoucími třešňovými policemi a vlastní kapuce se svislým drážkovaným obložením. "Máme rádi indukci protože se zdá být velmi přesný a ohřívá troubu velmi rychle," říká Isabelle. "Snadno se také čistí."
Rozšířené okno přináší přirozené světlo, které rozzáří nové zakázkové skříně natřené jasperovým kamenem od Sherwin-Williamse. The profil skříně je modifikovaný styl Shaker s korálkou detail vnitřního obložení."Nechtěli jsme jen čtverec Styl Shaker k těmto skříním," říká Zeigler. "Chtěli jsme zjemní vzhled přidáním profilované vnitřní hrany ke dveřím a rámy zásuvek."
Zeigler podlahu vyrovnal a vyztužil, poté dodal vzhled dřeva luxusní vinylové desky. "Je to tak nenáročné na údržbu a vyhovuje jim jednoduchý městský životní styl," říká Zeigler.
Skříně na míru: ; barva stěn, stropu a obložení: čistě bílá, Sherwin-Williams

Kuchyně městského statkuBílé keramické dlaždice ve stylu Zellige různé tóny tvoří backsplash, který Zeigler bral celou cestu ke stropu. "Líbila se nám jejich lehkost a jas a jak lesklý povrch odráží světlo," říká.
Horní skříňka nad novými 36palcovými francouzskými dvířky z nerezové oceli chladnička má přepážky pro uložení pekáče a cukroví listy.
Backsplash: v bílé barvě, dlaždice a kámen Bedrosians

Kuchyně městského statkuČerné bronzové knoflíky skříněk a tahy koordinují s matným černým kohoutkem, tmavá žula kompozitní dřez a křemenné desky s grafitově šedým mramorovým vzhledem s výrazným bílým žilkováním. "Měli obavy mít příliš mnoho bílé a požadovaný kontrast pro backsplash," Zeigler říká o výběru pracovní desky.
Dřez: v Cinder, Blanco; pracovní desky: Sorano, Pental; skříň hardware: a v černém bronzu, Amerock Hardware
Kuchyně městského statkuDvě stropní svítidla pro zapuštěnou montáž s vintage bronzovým povrchem a čirým skleněným stínidlem osvětlení nad dřezem.
Nerezová myčka nádobí s integrovanou rukojetí sedí na vpravo od umyvadla. "Je to jako den a noc z toho, co jsme měli předtím a vlastně myje nádobí," říká Isabelle.
Zásuvky napravo od myčky obsahují nádobí a příbory. Napravo je panelové vytahovací centrum odpadků a recyklace rozsah. Dveře vlevo dole od umyvadla se otevírají do vysokého úložná skříň s přepážkami na prkénka. Výsuv systém ve slepé rohové skříňce maximalizuje úložný prostor.
Kuchyni nyní spojují polosvětlá dvířka s třešňovým povrchem na vedlejším dvorku.
Stropní svítidla: ve Vintage Bronze, Designers Fontána
Kuchyně městského statkuVestavěný úložný prostor napravo od dveře vytvářejí prostor mudroom. Vysoká skříň napravo která zahrnuje stojanový pult, který Lawrence používá pravidelně pro práci na notebooku. "Chtěli jsme, aby to vypadalo jako a volně stojící kus nábytku," říká Zeigler.
Černý stůl s židlemi z umělé kůže poskytuje místo pro jídlo. "Vždycky jsem chtěl větší kuchyň, kde bychom mohli vařit a lidi můžu jíst, protože jsem Francouz a to je součástí mé kultury," říká Isabelle.

Kuchyně městského statkuDveře nalevo od lednice navazuje na chodbu vedoucí do dvou ložnic a schodiště do horního patra domu.
Kuchyně městského statkuPůsobivá odkládací stěna obsahuje spížové skříně s nastavitelnými policemi uvnitř. "Tyto jsou 18palcové skříně, takže jsme nepoužili výsuvné police tam," říká Zeigler.
Otevřené dřevěné police napravo od spížových skříní drží sběratelské předměty a nerezová pultová mikrovlnná trouba. "Nedělají používat mikrovlnnou troubu velmi často, takže máme malou, kompaktní mikrovlnnou troubu tady," říká Zeigler.
Kuchyně městského statkuPřed FotoPřed:V bývalé kuchyni těsně otevřené dveře uzavřely kuchyň z přední části domu. "Chtěli jsme jen vytvořit více spojení mezi kuchyně, obývací pokoj a přední vchod bez úplného otevření nahoru," říká Zeigler.

Kuchyně městského statkuPo: Vytvoří se širší otvor lepší spojení mezi prostory a umožňuje více světla vstupte do kuchyně.
Matné černé zapuštěné stropní svítidlo s jednoduchým designem klece a čtyři žárovky visí nad stolem. "Nedělali jsme žádné přívěsky tady, protože jsme pod tím neměli pevnou položku," Zeigler říká. "Chtěli jsme jim dát flexibilitu pro budoucí využití prostor."
Součástí kuchyně jsou také LED světla a skrytá elektrika vývody na dně plovoucích dřevěných polic, ale ne zapuštěná stropní svítidla. "Milujeme ta světla pod police," říká Isabelle. "To jsou světla, která používáme." čas. Opravdu mění atmosféru kuchyně."
Stropní svítidlo: zapuštěné v matné černé, zlaté Osvětlení
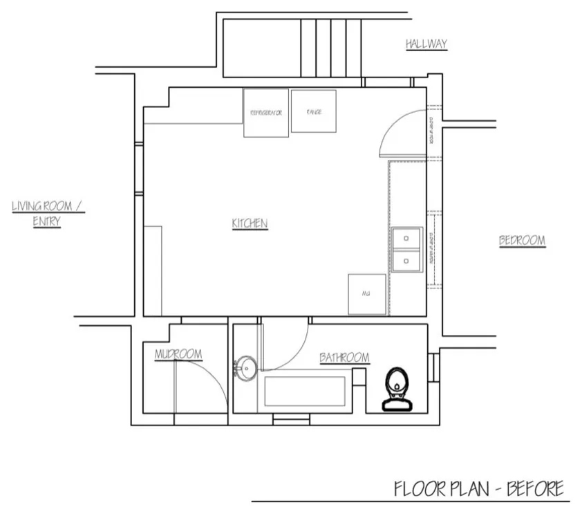
Urban Farmhouse KitchenPřed fotkouPřed: Tento půdorys bývalé kuchyně ukazuje, jak nevyužitá plná koupelna a mudroom (dole) zabíraly cenné čtvereční záběry které by mohly být použity k rozšíření kompaktního, čtvercového tvaru prostor.
Na stěně byla umístěna malá lednička a elektrický sporák (nahoře) naproti dveřím do koupelny. Vedle stála volně stojící myčka k dřezu (vpravo uprostřed).
Kuchyně městského statkuPo: Začleněním koupelna a bláto do prostoru, Zeigler vytvořil větší, obdélníková kuchyně s lepším průtokem a více úložným a přirozeným světlo. "Dům je velmi skromný statek a kuchyně je teď velký prostor," říká Isabelle. "Je to prostě nádhera pokoj."



# Opravy bytů