Servista Tour: Domov z 80. let 20. století aktualizován pro moderní rodinu Životní styl

Architekt pomáhá své sestře a jejím synům začít znovu v anglickém řadovém domě

Důležitá součást architekta Úkolem je poznat klienta a navrhnout mu takový dům dokonale vyhovuje potřebám a životnímu stylu klienta. Takže když architekt Angus Eitel se ujal úkolu renovovat domov pro jeho sestra, byl si docela jistý, že dokáže vytvořit takový prostor fungovala dokonale pro ni a její dva chlapce.
Výsledkem je světlý, útulný dům, který využívá maximum krásná země v oblasti East Sussex v Anglii.
Terasa z 80. let, předělaná a modernizovanáFotografie od
Dům na první pohled
Kdo zde žije: Architektova sestra a její dva synové
Místo: Lewes, Anglie
Velikost: Tři ložnice, dvě koupelny
Návrháři:Angus Eitel z (architektura) a
Clare Pascoe z (kuchyňská instalace a interiér design)
Eitelova sestra se zdráhala pustit do projektu renovace, když po rozvodu začala hledat dům. "Snižovala počet zaměstnanců a chtěl jsem se někam rovnou přestěhovat," říká. "Kůlna podívala se na mnohem menší nemovitost poblíž, ale protože má dvě aktivní chlapci, bylo jasné, že z toho brzy vyroste."
Když viděla tento řadový dům v zástavbě v 80. letech v Lewes, bylo to potřeba aktualizace. Tak ona a Eitel navštívili pár zrekonstruovaných nemovitosti v okolí, abyste posoudili potenciál domu. "Jednou viděla ostatní domy a spočítala, byla přesvědčena, že ano projekt je levnější," říká.
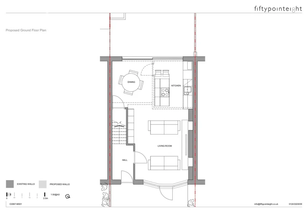
Servista Tour: Domov z 80. let 20. století aktualizován pro moderní životní styl rodinyThe původní nemovitost měla malou chodbu, která vedla do a obývací pokoj a jídelna s oddělenou místností pro kuchyň. Eitel otevřel prostor odstraněním stěn kolem kuchyně.

Terasa z 80. let, předělaná a modernizovanáVzadu byla zimní zahrada s nízkou střechou s a polykarbonátstřecha. "Zakryla okna v kuchyně a jídelny, takže nebylo vidět ven,"Eitelříká.
Tým odstranil zimní zahradu a nainstaloval širokou Původ posuvných dveří přes zadní stěnu odhalit krásné výhledy do údolí za ním.
"Vybral jsem posuvné dveře, abych minimalizoval rámování a maximalizoval pohled,"říká Eitel . "Jsou nejširší posuvné dveře můžete získat za střední cenu a dodavatelé byli docela nervózní z jejich montáže, protože neměly zadní část přístup."
Terasa z 80. let, předělaná a modernizovanáPředtím FotoPřed: Na oblouku byly umělé lišty výklenky v obývacím pokoji, s plynovým krbem v centrum.
Terasa z 80. let, předělaná a modernizovanáPo: Eitel odstranil náročné detaily a zarovnal vršky jednodušší vzhled. Poté nainstaloval jednoduché police z překližky ve výklencích a malá kamna na dřevo v krbu. Betonová závěsná svítidla na obou stranách zvyšují zajímavost prostor.
"Odstranili jsme podlahu do původní podoby dřevo, ale nebylo to nijak zvlášť pěkné a byl tam beton podlaha v kuchyni," říká Eitel. "Tak jsme položili vybělené." inženýrské podlahy v celém otevřeném prostoru a chodba."

Terasa z 80. let, předělaná a modernizovanáEitel's sestra zvolila praktické kuchyňské skříňky s plochým čelem. "Ona je osobního trenéra a rád připravuje výživné jídlo," říká. "Nepřehledný vzhled sluší její organizované osobnosti a čistý, svěží životní styl."
Interiérová designérka Clare Pascoe naplánovala kuchyň a použila její know-how, jak vyřešit problém dostatku práce úložiště.
"Kuchyně samotná byla největší výzvou, protože my chtěl zbourat zdi a přesto mít smysluplné stolování oblasti," říká Eitel. "Je tam integrovaná myčka nádobí, lednice s mrazákem a pračka v prostoru, tak to bylo důležité mít nějaké přetečitelné úložiště."
Skříňky Ventidue Grigio Chiaro v matném provedení: Pascoe Interiéry; tyčová madla a závěsná svítidla: ; Véčkový křemen pracovní desky: Caesarstone; šestihranné dlaždice backsplash:

Terasa z 80. let, předělaná a modernizovanáByla to Pascoe's nápad nainstalovat tyto vysoké kuchyňské skříňky za obývacím pokojem pokojová pohovka a udělejte z nich rys tím, že vymalujete skříňky, zeď vzadu a dveře do haly inkoustově modré.
Kaori vysoké skříňky v tmavě modrém matném laku: Pascoe Interiér
Terasa z 80. let, předělaná a modernizovanáJednoduché stolování oblast má výhled do dvora a do krajiny za ním. "Jako tam není opravdu kam jinam umístit jídelní stůl, vzali jsme ho příležitost umístit velký, dramatický přívěsek přímo nad něj," Eitel říká.
Terasa z 80. let, předělaná a modernizovanáPředtím FotoPřed: Původní přední dveře byly zdobené kolem ní umělé lišty, po kterých Eitel dychtil odstranit.
Dům z 80. let, předělaný a modernizovanýPo: "Sundali jsme obestavbu, uklidili zdivo a nasadili chytré dveře," říká.
Velká okna byla v poměrně dobrém stavu. "Kvalita světlo je jednou z nejhezčích vlastností v domě, zvláště teď že zimní zahrada to vzadu neblokuje." Eitel říká.
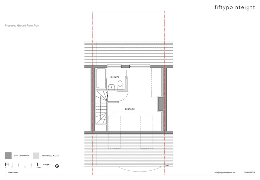
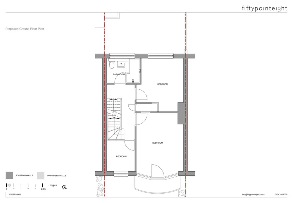
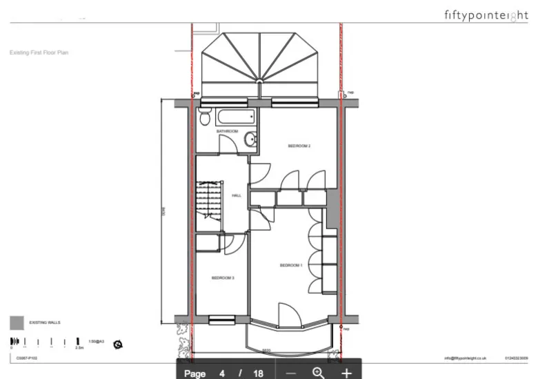
Terasa z 80. let, předělaná a modernizovanáNové bylo přistavěno schodiště přímo nad stávající, na které vede Podkroví. Aby tomu bylo možné vyhovět, museli stavitelé posunout zeď malé přední místnosti.
Větrací skříň (teplé místo, kde se pere prádlo může dosušit) sedí mezi dvěma dveřmi ložnice. za tím, v zadní ložnici byly dvě skříně. Eitel odstranil tyto a prodloužil zadní část větrací skříně mírně.

Servista Tour: Domov z 80. let 20. století aktualizován pro moderní životní styl rodinyPřed:Toto půdorys ukazuje původní umístění zadní ložnice skříně.
Servista Tour: Domov z 80. let 20. století aktualizován pro moderní životní styl rodinyPo: Nový půdorys znázorňuje prodlouženou větrací skříň hloubka.
Terasa z 80. let, předělaná a modernizovanáPřední a zadní ložnice patří dvěma chlapcům, kteří dostali volnou ruku navrhují vlastní prostory. Pokoje vyzdobili praktickými věcmi nábytek a dekorativní předměty.
Podlahu obou horních pokrývá šedý vlněný koberec příběhy.
Terasa z 80. let, předělaná a modernizovanáNa přední straně dveře jsou pracovna. Protože Eitelova sestra provozuje vlastní firmu, je to tak užitečné mít vyhrazený prostor pro kancelářskou práci.
I když zeď zde byla posunuta dopředu, aby vyhovovala podkrovních schodech je stále dostatek místa pro umístění samostatné postele potřeba.
Terasa z 80. let, předělaná a modernizovanáEitel nahrazen všechny interiérové dveře s robustními protipožárními dveřmi. Každý z nich je pokrytý lineárním dřevěným obkladem.
Terasa z 80. let, předělaná a modernizovanáPředtím FotoPřed: Koupelna na konci sál využívají hlavně dva chlapci. Mělo růžové příslušenství a dlaždice.
Terasa z 80. let, předělaná a modernizovanáEitel změnil rozvržení zde, aby fungovalo efektivněji.
"Pokoj slouží hlavně ke sprchování, ale my chtěl si nechat vanu," říká. Vybral si tedy Ideal ve tvaru L Standardní model s velkým sprchovým koutem na jednom konci a extra ret na sprchovou zástěnu, abyste ji zakryli.
Vzhledem k tomu, že soukromí ze strany sousedů není problém, Eitel to vzal možnost vyměnit zvlněné sklo za čiré, černě orámované okno pro maximální využití výhledu. Válec stín se kvůli soukromí stahuje dolů.
Zadní stěna byla postavena tak, aby skryla vodovodní potrubí, a Nahoře je umístěn pult Caesarstone. "Dává to pěkný robustní povrch," říká.
"Moje sestra byla velmi opatrná ohledně rozpočtu," dodává. "Takže všechny." kování je jednoduché z nerezové oceli. Celý projekt zaměřené na maximální využití prostoru při bytí nákladově efektivní a efektivní."
Servista Tour: Domov z 80. let 20. století aktualizován pro moderní životní styl rodinyThe podkroví byl přeměněn na ložnici a pro Eitelovu sestru. "Vložili jsme vikýř po celé šířce na zadní straně, který poskytuje úžasný výhled postel," říká.
Terasa z 80. let, předělaná a modernizovanáOkna Velux zapnutá obě strany postele přidávají na pocitu prostoru a poskytují a pohled na hrad Lewes.
Terasa z 80. let, předělaná a modernizovanáS vlastní koupelnou je umístěné podél stěny vikýře. "Použili jsme totéž [Ideal Standardní vybavení koupelny] jako v přízemí," říká Eitel. "Ale já přesvědčil mou sestru, aby šla pro tyto tmavě růžové dlaždice sprchový kout, který teď miluje."
Tesselátové mozaikové dlaždice: Grestec; bílá série Matrix dlaždice:
Terasa z 80. let, předělaná a modernizovanáNavíc do úložného prostoru za postelí Eitel navrhl překližkové police šikmé výklenky pro zachování jednoduchého vzhledu otevřít.

"Jakmile byl sádrokarton nahoře, vytyčili jsme police a hrál jsem si, abych se ujistil, že to funguje s věcmi mé sestry," on říká. "[Tesař] nám pomohl tím, že poradil, kde jsme potřebovali další podpěry a rámování."
Okna poskytují prostoru v létě hodně větrání, a koberec v zimě zútulní. "Zahájili jsme projekt zajistit, aby moje sestra získala efektivní a funkční domov pro čerstvé začněte s dětmi," říká Eitel. "Ale jsem také rád, že jsme mohli dejte jí svůj soukromý, útulný prostor s tak krásným zobrazit."
|||||||||||
# Opravy bytů