Servista Tour: Toronto Row House překonfigurováno pro rodinu

Architekti promyšleně vytvářejí více funkčních ploch posouvání prostorů

Tento pár se dvěma malými dětmi cítili, že jejich 14½stopý řadový dům v Torontu praskal ve švech, a tak zavolali architekty CAB, aby si promluvili o renovaci a dostavbě. "Ve schematické fázi my." zjistili, že nepotřebují více místa, prostě potřebují překonfigurovat prostor, který měli," architekt Charisma Panchapakesan říká.
Úplná renovace v přízemí zahrnovala vytvoření správného vstupu; stěhování jídelny, kuchyně a obývacího pokoje; a přidání nových oken. Nahoře našel Panchapakesan prostor pro přidání primární koupelna při zachování stávajícího počtu ložnic tři. Nová, otevřenější atmosféra slouží rušnému životnímu stylu rodiny dobře, a dokonce i beze změny v půdorysu je domov hodně cítit prostornější.
Victor VictoriousFotografieScott Norsworthy
Dům na první pohled
Kdo zde žije:Pár a jejich dvě malé děti
Místo:Toronto
Velikost:1 300 čtverečních stop (121 metrů čtverečních); tři ložnice, 2½koupelny
Architekti:Brian Hagood acharisma Panchapakesanz
Tady je přední část řadového domu. Jeho šířka je 14½ stopy je to jedna místnost plus chodba široká. V poznávání jejich potřeby a styl klientů,Panchapakesan a její manžel, architekt Brian Hagood, měl s nimi spoustu rozhovorů. Ony také studoval inspirační fotografie páru. Pak vytvořili 3D vykreslování, aby se podělili o to, co měli na mysli. Při podávání dům svěží vzhled, byli také citliví k domovu stávající prvky, práce s prvky, jako je dubové tvrdé dřevo podlahy a dřevěné obložení.

Servista Tour: Řadový dům v Torontu překonfigurovaný pro rodinuPředtím FotoPřed:"V mnoha z těchto řad v Torontu domy, obývací pokoj je v přední části, kuchyně je v zpět a jídelní prostor je mezi tím," Panchapakesan říká."Problém je ale v tom, že v zimě potřebujeme někde s dlážděnou podlahou, abyste si sundali boty a těžké kabáty vstoupíme a může to vytvořit dojem z prostoru sousedního obývacího pokoje chaotický."
Všimněte si také zdi, která vytvořila úzkou chodbu podél schodiště na této fotografii — architekti je odstranili, aby se otevřeli půdorys.
Victor VictoriousPoté:Architekti navrhli průčelí vchod s prostorem pro boty a kabáty. Měří 4 stopy, 9 palců o 8 stop, 6 palců. "Tito klienti milují vzory a barvy, takže my k vytvoření vzoru byly použity dlaždice ve tvaru diamantu ve třech barvách," Panchapakesan říká. Svítidlo hraje mimo tvar dlaždic a máslově žluté stěny dodávají veselou atmosféru dotyk.
Servista Tour: Řadový dům v Torontu překonfigurovaný pro rodinuPředtím FotoPřed:Tady je přední obývací pokoj před přetvořit. Rodina neměla dostatek prostoru, aby se mohla spolu stýkat tady. Další místností uprostřed plánu byla jídelna pokoj, s kuchyní v zadní části domu.
Victor VictoriousPo:Oknech viděných v předchozí fotografie jsou okna vidět zde. To dát obývací pokoj více prostoru, architekti umístili jídelnu na přední část domu, obývací pokoj v zadní části a kuchyně uprostřed. Odstranili některé zdi, aby dali domu a otevřenější a vzdušnější pocit.

Navrhli také zakřivenou stěnu pro vchod, jak je vidět na pravá strana této fotografie. "Výzva v těchto řadových domech je, že denní světlo přichází pouze zepředu a zezadu. Chtěli jsme aby se místnosti cítili odlišně, ale také aby věci zůstaly otevřené pro sdílení to světlo,"Panchapakesanříká. "The zakřivená stěna obalí světlo a vezme ho za roh. To také pomáhá zvětšit pocit z úzkého prostoru dynamický."

Jeden způsob, jak architekti vymezili prostory, byl průchod stropy. Současně integrovali potrubí do a způsobem, který mi připadal úmyslný. "Udělali jsme, aby ty přepážky vypadaly." účelný, který dělal věci více ticho,"Panchapakesanříká. V jídelně místnosti integrovali přepážku do designu stropu podnosu. Pak vymalovali strop nazelenalou modrošedou barva.
Victor VictoriousA sochařský lustr také pomáhá definovat jídelnu a Glóbusové přívěsky nad ostrovem pomáhají vymezit kuchyň.
Při prohlížení inspirativních fotografií svých klientů Panchapakesanvšimli si, že se jim nápad líbí míchání dřeva, barvy a kamene v kuchyni. Takže ona a Hagood našli způsob, jak vyvážit mramorový křemen, modré truhlářství a ořechové akcenty. "Použití vlašského ořechu na ostrovní základně to svázalo s podlahou a schody," říká. "Chtěli jsme nové design, aby byl v souladu se stávajícím domem."

Victor VictoriousPočítadlo vodopádů na ostrově vymezuje prostor kuchyně a dává mu čistý pohled z ostatních místností. "Ostrov je objekt sám o sobě," Panchapakesan říká.
Victor VictoriousPoužití křemen na vodopádovém ostrově, backsplash a zabalit strana skříňky vytvořila čistou a soudržnou podívej se.
Victor VictoriousVysoká backsplash za umyvadlem poskytuje oddělení od bydlení pokoj, místnost. "Také jim to umožňuje odejít do obývacího pokoje bez nich muset se po večeři dívat na nepořádek nádobí," Říká Panchapakesan.
Servista Tour: Řadový dům v Torontu překonfigurovaný pro rodinuPředtím FotoPřed:Kuchyně byla v zadní části dům a byla uzavřena z přilehlé jídelny.
Victor VictoriousPo:Teď si obývací pokoj užívá větší prostor v zadní části domu. Nový plynový sporák zachovává obývák toasty. Mramorový konferenční stolek hraje křemen v kuchyni. A koberec dodává barvu a hravý pruh vzor.
Victor Victorious zadní strana kuchyně backsplash poskytla dobré místo displej, něco, co dům předtím postrádal. Vlašský ořech police jsou mělké – kdyby byly tak hluboké jako standard police na knihy, zabíraly by v ní příliš mnoho místa obývací pokoj. Místo toho fungují spíše jako obrazové kolejnice.

Victor VictoriousArchitekti také přidali větší nové okna, aby dovnitř pronikalo více světla. Jsou opláštěné hliníkem s dvojitým zasklením dřevěná okna. "Tato okna jsou kvalitní a zachovávají si teplo," říká Panchapakesan.
Windows:
Victor VictoriousBledý modrá barva na stropě slouží k dalšímu vymezení bydlení prostor místnosti. Vlevo vede bahno do zahrady.

Victor VictoriousMudroom existovala, ale Panchapakesan to osvěžil novými dlaždicemi a vestavěnými prvky. "Přikývli jsme na vstup pomocí stejného vzoru dlaždic, ale." změnila barvy na šedou a žlutou," říká. Nová sklenice dveře prosvětlí prostor přirozeným světlem.
Victor VictoriousTakhle vypadají nová okna na zadní straně fasáda domu.

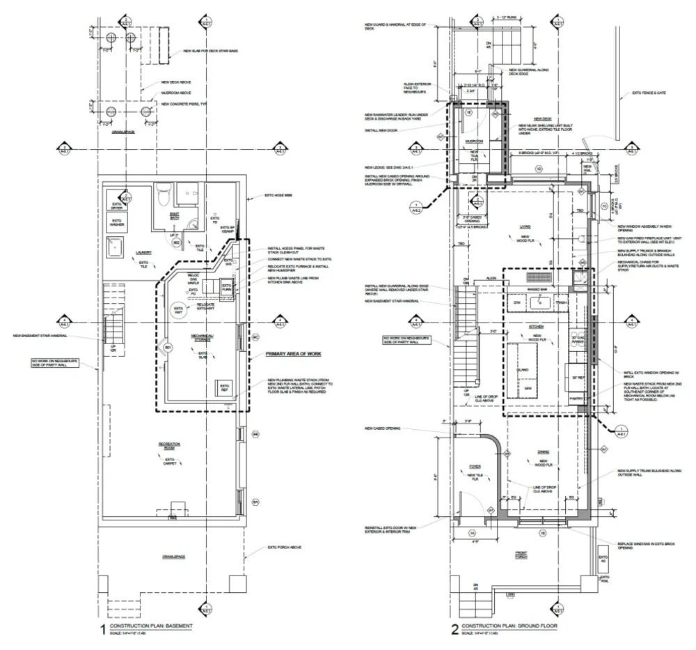
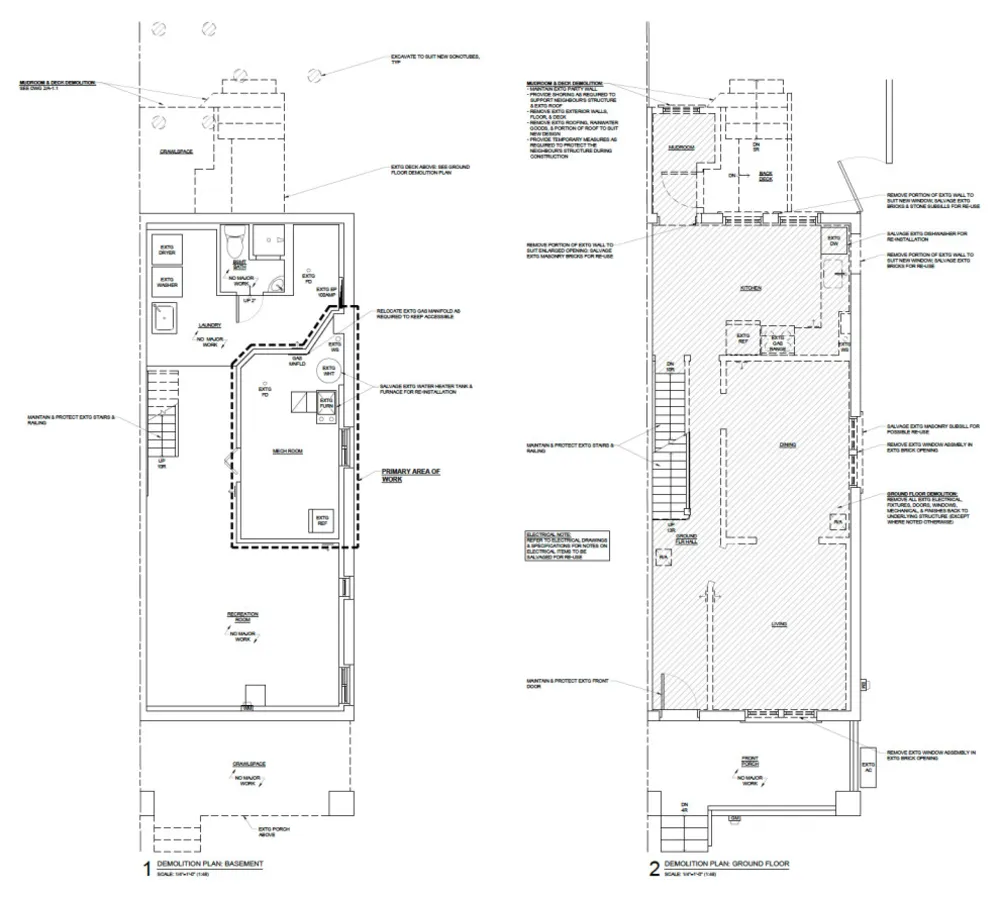
Servista Tour: Řadový dům v Torontu překonfigurovaný pro rodinuPřed: nákres vpravo ukazuje demoliční plány pro hlavní podlaha. Obývací pokoj byl v přední části (ve spodní části plán) a kuchyně byla vzadu (nahoře na plánu), s jídelnou mezi nimi. Stěny architekti odstraněné jsou označeny přerušovanými čarami.
Servista Tour: Řadový dům v Torontu překonfigurovaný pro rodinuPo: plán napravo ukazuje nové rozvržení s novým zakřiveným vstupem dole stěna a jídelna, vzadu obývací pokoj a kuchyň mezi nimi.
Victor VictoriousNahoře byly tři ložnice a jen jedna rodinná koupelna z chodby. Jeden z hlavních důvodů pár původně chtěl přidat k domu bylo získat a správné primární apartmá. Architekti přesunuli ložnici manželů z přední části domu do zadní části a překonfigurovat stávající koupelna v předsíni má být en suite. Poté znovu nakonfigurovali další prostory, aby se vytvořil prostor pro novou předsíňovou koupelnu pro děti.
"Tato ložnice je kompaktní, ale měla pro ně dost místa manželská postel a nyní mají hlavní koupelnu chtěl," říká Panchapakesan. Také dali pokoj větší nová okna a stěna skříní.
Victor Victorious"Chtěli v sobě cítit přímořskou pláž koupelna," říká Panchapakesan. Navrhla bílou na zakázku dubová marnost s rákoskou a pár zvolil geometrickou zelenou dlaždice na podlahu. Svítidla jsou ze saténové mosazi.
Victor VictoriousDlaždice ve sprše jsou velkoformátové porcelán, digitálně potištěný, aby vypadal jako mramor. Také kryjí strop pro čistý vzhled. Čiré skleněné pouzdro umožňuje celý pokoj si užijte světlo z matného okna.
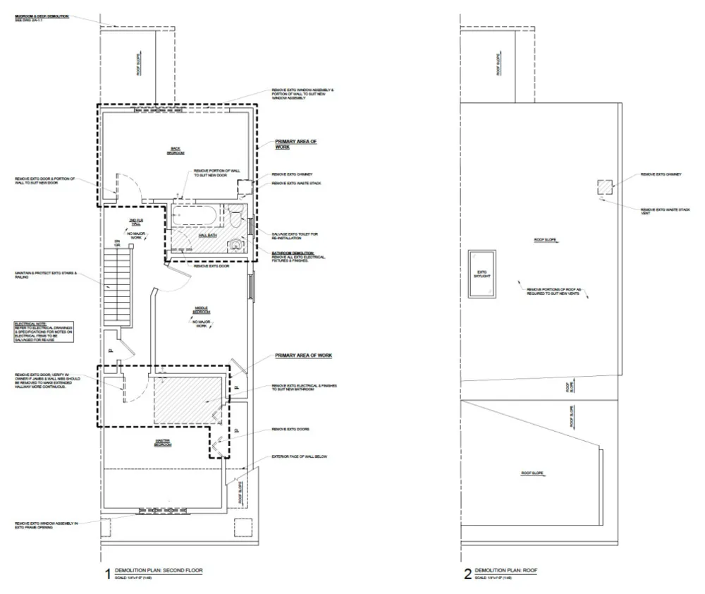
Servista Tour: Řadový dům v Torontu překonfigurovaný pro rodinuPřed: nákres vlevo je plán demolice pro druhé patro. Tučné přerušované čáry představují oblasti, kde architekti provedl změny.
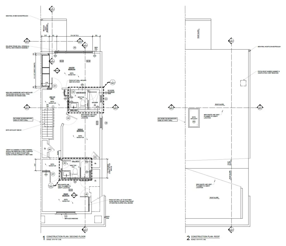
Servista Tour: Řadový dům v Torontu překonfigurovaný pro rodinuPo: Plány vlevo zdůrazňují umístění koupelen s tučnými přerušovanými čarami.
"Tato rekonstrukce byla skromnějším způsobem, jak jim dát prostor potřebovali, aniž by museli přidávat," říká Panchapakesan. Nyní dům je plný světla a tepla a lépe vyhovuje životní styl rodiny.
Více o Servista


# Opravy bytů