Dlaždice zelené mořské panny a nové rozvržení zvýrazňují starorůžovou barvu Koupelna

Tato nyní vzdušná koupelna na Whidbey Island je vybavena napuštěnou vanou, sprchový kout, vyhřívané podlahy a expandovaná voda zobrazit

Před lety Chasity Blank viděla online fotku, která součástí jsou krásné mořské zelené dlaždice ve vzoru často nazývaném mořská panna nebo rybí šupina.Zjistila, že dlaždice je tak nápadná věděla, že pokud někdy zrekonstruuje koupelnu, bude ji používat to.
Poté, co loni se svým manželem Timem koupili dům, dostala dům šance s koupelnou pro hosty, kterou pár nemohl vystát. Své růžová dlažba, modrá umyvadla, modrá vana, modrý bidet, zlaté povrchy a květinové růžové tapety, které dokonce pokrývaly strop, to udělaly přesně ten druh místnosti, který by mohl těžit z nějaké magie mořské panny.
Koupelna pro marockou mořskou pannuFotografie od Tacey Jungmannové
Koupelna na první pohled
Kdo zde žije:Chasity a Tim Blank
Místo: Coupeville, Whidbey Island, Washington
Velikost: 136 čtverečních stop (13 čtverečních metrů); 13 od 10½stop
Návrhář: Kristine Tyler z
The Blanks najali návrhářku Kristine Tyler z Tree Frog Design pomoci proměnit koupelnu a začlenit dlaždice z rybích šupin Chasity se zamilovala. Tyler použil nádhernou zelenou dlaždice jako ohnisko nad novým dvojitým umyvadlem a také uvnitř sprchový kout a záchod."Nechtěl jsem příliš mnoho to, protože jsem nechtěl, aby to všechno předběhlo," říká Tyler. "Chtěl jsem, aby to byl přízvuk, aniž by to bylo ohromující."
Dlaždice: Velké marocké rybí šupiny v mořské mlze, ; ješitnost: Penta texturovaný laminát v Aspenu,

Koupelna pro marockou mořskou pannuPřed FotoPřed: Kromě toho, co cítili Blankovi byly datované povrchové úpravy a příslušenství, an tvaru L marnost a připojená vana zasazená do velkého dřevěného rámu konfrontoval každého, kdo vstoupil do koupelny, ostrými rohy a příliš velká vizuální váha. Mezitím Tyler a majitelé byli zmatený, že velká koupelna nemá alespoň malou sprcha. "Nebylo to dobré využití prostoru," Tyler říká.


Koupelna pro marockou mořskou pannuPo: Toto je prostor viděno ze stejného úhlu jako na předchozím obrázku. Tyler se roztrhl vše ven a vytvořil nové uspořádání posunutím záchodu do zadní stěna a přidání sprchového koutu. Zakryla sprchu zeď ve více dlaždice mořské panny. (Odstranila barevné sklo okno, které neposkytovalo mnoho světla ani výhledu.)
Tyler udržoval vodovodní potrubí tak blízko, kde byly možné udržet nízké náklady. "Vím, jak rychle tyhle věci dokážou." raketově," říká.

Marnost je texturovaný melamin, o kterém si Tyler myslí, že je lepší možnost než dřevo pro koupelny s vysokou vlhkostí. "Je hned vedle do sprchy, ale je dobré zadržovat vlhkost," říká. "Spousta lidí chce lakované skříně, ale tento materiál drží dlouhodobě lépe."
Koupelna pro marockou mořskou pannuVíce dlaždice mořské panny pokrývá zadní stěna v prostoru WC. Tyler obložil většinu ostatních stěn v bílé lesklé dlaždici metra o rozměrech 4 x 16 palců.
Použila stejnou dlaždici metra orámovat také dveře. "Je to skoro o něco víc tradiční a měkčí vzhled," říká. Kolej na židle z bílé dlaždice překrývá obložení kolem dvou stěn.


Koupelna pro marockou mořskou pannuZblízka můžete vidět různé třpytivé barvy zvýrazňující dlaždice.
Tyler použil do sprchy křemen, který vypadá jako calacattský mramor lavice a police ve výklenku.
Koupelna pro marockou mořskou pannuPředtím FotoPřed: Velká vestavěná skříň, která se Blanky nemusely zabírat mnoho fyzického a vizuálního prostoru. A klenuté okno neodpovídalo pohledům na Juana průliv de Fuca. Atmosféra v místnosti byla stěží přívětivá s nejlepším výhledem z domova.
Pár chtěl bezbariérový sprchový kout, napuštěnou vanu a lepší výhled na vodu.

Koupelna pro marockou mořskou pannuPo: Tyler odstranil vestavěná vana a úložná skříň, protože Blanky už měly dvě skříně na prádlo hned za koupelnou. Velká napuštěná vana nyní sedí pod větším oknem. "Je to nejlepší výhled na dům," říká Chasity.


Koupelna pro marockou mořskou pannuPřed FotoPřed:Tento pohled ukazuje původní koupelnu od vchodu, s jeho nedostatkem ohniska a hojnosti tupých úhlů.
Koupelna pro marockou mořskou pannuPo: Tato fotografie, převzato z úhel podobný tomu na předchozí fotografii ukazuje nový otevřené a vzdušné uspořádání.
Chasity spolupracovala s Tylerem na nalezení modelu vany, který by to dokázal dostatečně udrží teplo a často se koupe po dvou hodinách, namáčení, pití vína, čtení a kochání se výhledem.
Tyler přidal extra hluboký parapet přelité kouskem stejného křemene jako ve sprše a dál pracovní desku, aby Chasity měla místo pro umístění toaletních potřeb nebo a sklenku vína při namáčení.
The designér nechal část zdi, dokud ji nevymaloval, takže Blanky mohou později překreslit, pokud chtějí změnit Koukni se. Podlaha je 12 x 24 palců porcelánově šedá matná dlaždice nad sálavým teplem.

Koupelna pro marockou mořskou pannuNástěnné baterie nalévají vodu elegantně podlouhlé dřezy na nádoby, které sedí na křemeni pracovní deska.

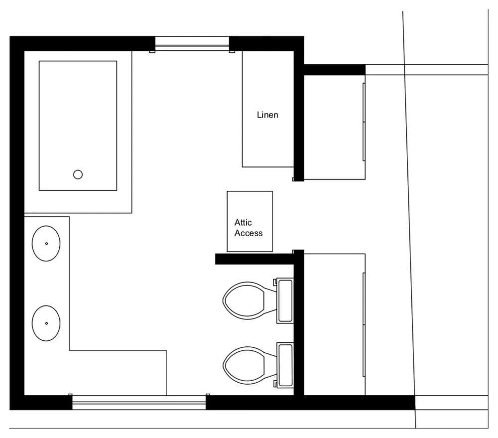
Před a po: dlaždice zelené rybičkyPřed FotoPřed:Tento půdorys ukazuje rozvržení stará koupelna. Vchod je vpravo od středu (kde je říká "Přístup do podkroví"). WC a bidet jsou ve spodní části že jo. Vlevo dole se ovinula pracovní deska a umyvadlo rohu, navazující na velkou vestavěnou vanu. Nepoužité prádlo skříňka je vpravo nahoře.
Před a po: dlaždice zelené rybičkyPo: Zatímco velikost koupelny se nezměnila, díky nové vzdušné dispozici místnost působí mnohem větší. Při pohledu na vchod (zase tam, kde to říká "Attic Access"), můžete vidět, kde Tyler část odstranil zeď a přemístil záchod na jinou stěnu (a odstranil bidet). Sprchový kout zabírá levý dolní roh a můžete vidět, jak odstranit skříň v pravém horním rohu uvolnil prostor pro velkou napouštěcí vanu. Dvojitá marnivost a jeho ohromující nástěnné dlaždice se staly ústředním bodem, když někdo vchází do koupelny.
Zelená rybí šupina a nové rozvržení dlaždice posilují kdysi růžovou koupelnuToto 3D vykreslování navrženého návrhu, které Tyler vytvořil, jeden ukazuje z mnoha výhod spolupráce s koupelnovým designérem. Chasity měla jen dlaždice mořské panny, ale když ona a Tyler navštívil různé showroomy po městě, přivezli je zpět vzorky pro pracovní desky, podlahové a nástěnné dlaždice, povrchová úprava toalety a další, abyste viděli, jak by materiály fungovaly s mořskou pannou dlaždice a jak by vypadaly v měnícím se přirozeném světle po celý den.
Zjistili, že dlaždice z rybích šupin vypadaly v showroomu zeleněji osvětlení, ale modřejší světlo v koupelně. To je informovalo rozhodnutí o dokončení. Stále jsme se ptali: ‚Co si o tom myslíme? tohle konkrétní světlo vypadá nejlépe?‘" říká Tyler.
S jejich výběrem materiálů si Tyler hrál s návrhy dlaždic ve svém 3D programu a přišla s více či zde zobrazena méně dokončená místnost. To dalo jí a Blankovým důvěru ve svá rozhodnutí, protože věděli, čím budou získávání.
I když je to technicky koupelna pro hosty v Blanks' dům se dvěma ložnicemi a dvěma koupelnami, nyní procházejí přímo kolem domu koupelna nejblíže jejich hlavní ložnici a do této nové koupelna. A kdo je může vinit?
Dodavatel: Whidbey South Woodworks



# Opravy bytů