Servista-tur: Strandhus med kurver i det hele taget Steder

En yndefuld beton-unipod bygget ind i en bakke i Sydney rækker ud efter havudsigt

Tama's Tee Home, opkaldt efter sit T-formet design og beliggenhed i Sydneys strandkvarter af Tamarama, blev bygget på de solide rester af originalen hus, der stod på den stejle og smalle grund. Den bedste måde at imødekomme behov og ønsker hos en familie på tre og deres gæster skulle bygge en betonunipod, der hviler sin fulde vægt på garagestrukturen under den.
Tama's Tee House - A Coastal Concrete UnipodFotos af Prue Ruscoe og Edward Birch
Et blik på huset
Hvem bor her: Et par, deres teenagedatter og en hund
Placering: Tamarama-området i Sydney
Størrelse:3.229 kvadratfod (300 kvadratmeter); fire soveværelser, 3½badeværelser
Designer: (arkitektur og indretning)
"Vores yndlingsdel af hjemmet er den måde, strukturen balancerer på på én fod som en betonballerina," siger arkitekt Luigi Rosselli.
Han elsker også finishen på den bræddede beton, skabt vha råhvid cement og trækornede former. "Det låner huset en beachy fornemmelse på trods af, at materialet ikke er traditionelt forbundet med stranden. Vi kan også godt lide den måde, denne følelse er fortsatte gennem de indre rum, hvilket giver en ægte følelse af plads til det færdige hjem."
Tama's Tee House - A Coastal Concrete UnipodSmale huse bøje sig sammen på næsset med udsigt over Tamarama Beach. De ser ud til at skubbe efter position og søger uafbrudt hav visninger.
Rosselli redesignede dette hjem med udsigten, den stejle skråning og vejret i tankerne, sammen med hans kunders ønsker: Siden dette familie elsker stranden og underholdende, huset skulle være praktisk og smuk.

Servista Tour: Tama TeeEfter at have revet omkring 40 procent af hus, redesignede Rosselli det, så det passer ind i bjergskråningen, med fire historier, der maksimerer hver en smule plads.
"Det mest udfordrende aspekt af projektet var at arbejde med eksisterende struktur," siger Rosselli. "I sammenligning med huset der oprindeligt var på stedet, ligner bygningen en helt nybyggeri. Vi beholdt dog over 60 procent af originale strukturer, herunder garagen på gadeplan, den støttemur og en række indvendige vægge i huset."
De nye tilbygninger blev bygget over den eksisterende garage og sandstensstøttemur, balancerende på en T-formet betonsøjle spredt ud for at bære husets hovedniveau.
Tama's Tee House - A Coastal Concrete UnipodSalt, fugt og vind kan skabe kaos på huse ved havet, så vejrbestandighed var en vigtig overvejelse i design, materialevalg og byggefaser af dette projekt.
Beton, rustfrit stål og tagdækning af marinekvalitet blev valgt for deres robuste kvaliteter.
Tama's Tee House - A Coastal Concrete UnipodKrumt hjørner er blevet en karakteristisk Rosselli-designegenskab. Heri tilfældet blev betonkurverne formet med trækornet tavler.
Mkrydsfinerskodder i arinkvalitet ført med en CNC (computer numerisk kontrol) maskinekan glide foran vinduerne og terrassen at yde beskyttelse mod elementerne efter behov for den dækkede udendørs spiseplads.
Tama's Tee House - A Coastal Concrete UnipodSpisningen område, som indeholder etCarrara marmorbord, er ideelt til underholdende det meste af året.
Skoderne giver beskyttelse, men blokerer ikke for udsynet uden for. Fra gaden skærmer de dog området fra nysgerrige øjne.

Tama's Tee House - A Coastal Concrete UnipodProjektarkitekt tilføjet detaljer og materialer i tråd med den raffinerede strand husets æstetik, som kunderne ønskede, valgte naturlige materialer, synlige tagrammer og lette finish.
De specialdesignede skodder tillader plettet og konstant skiftende lys til at filtrere ind i interiøret. Lette og luftige gardiner tilbyde yderligere lysstyring.
Konstrueret trægulve:

Tama's Tee House - A Coastal Concrete UnipodLoftbjælkerne har traditionelle seler på kryds og tværs.
Tama's Tee House - A Coastal Concrete UnipodNorfolk fyrretræer trives på Tamaramas salthærgede skråninger, hvilket giver en lodret kontrast mod horisontlinjen.
"Romerne kunne lide ortogonalitet," siger Luigi Rosselli. "Horizoner skulle have lodrette kontrastlinjer, ofte leveret af obelisker eller søjler. Havlandskaber kræver også lodrette elementer, såsom dette træ eller en sejlmast."
Mantis gulvlampen er designet af Bernard Schottlander i 1950'erne.
Tama's Tee House - A Coastal Concrete UnipodEn standout træk ved det tredje niveau er den skulpturelle pejs, navngivet Rorschach Blotch af arkitekten for dens lighed med en blækklat i enRorschach psykologisktest. Den frie form gas pejsen sidder i midten af rummet og serverer spisningen værelse, køkken og tv-stue.
Tama's Tee House - A Coastal Concrete UnipodYderligere skulpturel interesse kommer fra' Oracle pendellys i spisepladsen.Maleriet er af Joshua Yeldham.

Tama's Tee House - A Coastal Concrete UnipodKøkkenøen genlyder pejsens kurver. Laboratorie-graden konstrueret sten bordplade af har en mat finish - en afgang fra de blanke bordplader, der er typiske for mange hjem.
Building With Options, bygherren for dette projekt, opførte køkkenskabene.

Servista Tour: Tama TeeThe gulvet gav endnu en mulighed for at vise nogle frem kurver.
Tama's Tee House - A Coastal Concrete UnipodDen uber-stilfulde pudderum er klemt inde mellem vaskeriet og butlerens pantry.
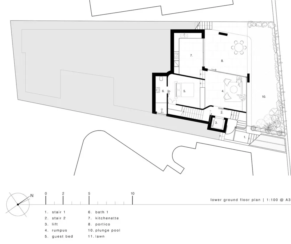
Servista Tour: Tama TeeThe kælderen huser en garage til to biler og en kælder. Der er elevator adgang til de tre niveauer ovenfor.
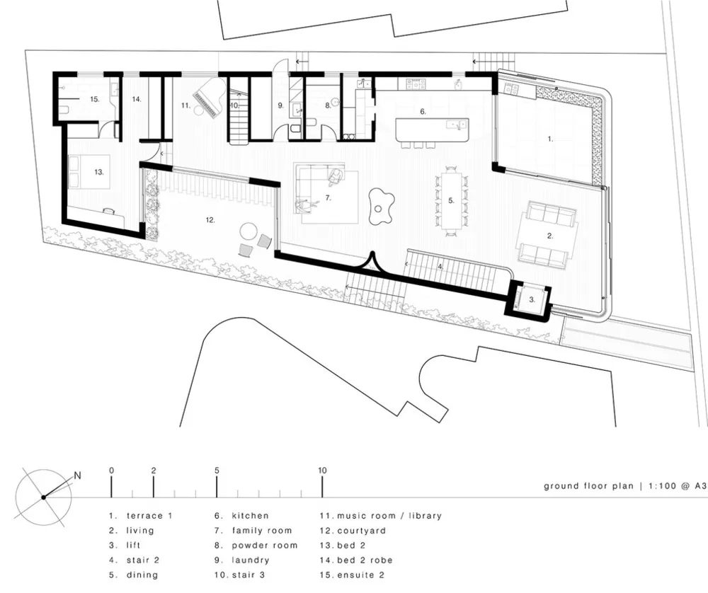
Servista Tour: Tama TeeDet selvstændige stueetage har et fremtidssikret, fleksibelt layout med samme indendørs-udendørs opholdsarealer som resten af huset. Det fungerer i øjeblikket som en teenageunderlag. Bassinet er også på dette niveau.
Servista Tour: Tama TeeDet tredje niveau indeholder et soveværelse med badeværelse og walk-in closet, vaskeriet og fælles opholdsstue mellemrum.
Servista Tour: Tama TeeThe øverste etage har et soveværelse, et arbejdsværelse og enmastersuite komplet med privat terrasse og omklædningsrum.
Tama's Tee House - A Coastal Concrete Unipodtrapper fra hovedområderne går ned til teen-retræten.
Tama's Tee House - A Coastal Concrete UnipodDette er overdækket terrasse ud for rumpusrummet i stueetagen. Luigi Rosselli sammenligner det buede kryds mellem søjlen og stråle til krydset mellem næsen og øjenbrynene. Åbningerne indramme udsigten over havet og bjergskråningerne.
Keramiske flisegulve:
Servista Tour: Tama TeeThe master suite har en dobbelt forfængelighed i soveværelset og en en suite bag.
Tama's Tee House - A Coastal Concrete UnipodPenny fliser og disse afslørende kurver gør disse vægge til en overraskende og iøjnefaldende træk ved det store soveværelse.


# Renovering af lejlighed