Virginia downsizere bevarer den originale charme af deres nye hjem, mens de renoverer det, så det passer til deres behov
En gang den sidste af deres børn var flyttet ud af deres store forstadshjem i Herndon, Virginia, disse husejere var klar til en forandring. Den par valgte Ashton Heights-kvarteret i Arlington, Virginia, for dets gangbarhed til butikker, museer og restauranter og tæt på Washington, D.C. og dets kulturelle liv. Da dette er et område, hvor ejendomsmarkedet er så varmt, at budkrige kan bryde ud, før et hus officielt rammer marked, at finde en bungalow fra 1925, der havde brug for meget arbejde flot score. Før foto"Efter" fotos af Et blik på huset Placering:Arlington, Virginia Størrelse:2.073 kvadratfod (193 kvadratmeter) Designere: Michael Winn, Stan Khramov og Jennifer Hall af Før.Huset i hyttestil havde store knogler og masser af charme, men der var store problemer. På et tidspunkt havde nogen fjernet en konstruktionsstolpe i kælderen og en bærende konstruktionsvæg på første sal, hvilket får gulvet til at hænge og gør huset strukturelt usundt. En tilføjelse bagfra var i dårlig stand, og dæk og veranda skulle genopbygges. Der var defekt mekanik, elektrisk og VVS systemer, og tag, beklædning og sidespor skulle udskiftes eller repareret.Men ved renoveringen husejere var i stand til at beholde den oprindelige ånd i hjemmet i live og samtidig skræddersy det til deres behov. Arbejdets omfang. Husejerne hyrede designfirmaet Winn Design + Byg for at fuldføre alt fra det første design planlægningsfasen frem til byggeriets afslutning. Dette var en ned til nitterne ombygning. "Der var alvorlige strukturelle problemer og en masse andre problemer," siger firmaets ejer, Michael Winn. "Det er i bund og grund som nybyggeri indeni nu." Stil.Husejerne ønskede, at deres hjems ydre respekterede stoffet og kvarterets historie. Designerne brugte til Craftsman bungalow kit huse, når du planlægger udvendige ændringer. Indvendigt har mølleværket detaljer i håndværkerstil, men noget mere åben plan for det moderne liv. Parret var også ved at renovere deres strandhjem på samme tid som de renoverede dette hjem, så nogle strandfarver kom i spil her. Eksteriør. "Det var vigtigt for mine kunder, at ydre passede fint ind i nabolaget og at det være lav vedligeholdelse," siger Winn. For eksempel retningslinjerne anbefalede firkantede verandasøjler med skrå sider, Håndværker-stil veranda rækværk og klapbeklædning (gengivet her i lav-vedligeholdelse Hardie board). En gul bungalow-stil døren er munter og imødekommende. Winn bemærker, at den forreste gangbro og trin, landskabspleje og en fritliggende garage var alle en del af Fase II af projektet, som ikke var færdig, da disse billeder blev taget. Sideside: Deep Ocean, James Hardie Smooth Color Plus; fhoveddørs- og verandagyngemaling: Early Dawn, Benjamin Moore Før fotoBo Værelse Før. Hoveddøren åbner lige ind i stuen. EN helt nye HVAC-system er mere energieffektive og elimineret brug for radiatorer som den du ser her og fodlisten varme i hele huset. "Det er altid en tumult med radiatorer. Nogle mennesker elsker dem, og nogle mennesker har brug for rummet. Disse husejere havde brug for værelset," siger Winn. Efter. Husejerne besluttede at opdele det store frontrum i to separate siddepladser områder på hver side af døren. Den ene side hygges med indbyggede bogreoler og en pejs ovenover. Den oprindelige pejs fik en makeover med en ny fedtstensramme og ildsted og en kamin med håndværkerstil. Ny indbygget bogreoler langs væggen til venstre. Vægmaling: Etiquette, Benjamin Moore Dette er den anden side af stue. "Dette par havde ikke nogen interesse i en formel spisestue, som nok ville være gået her," siger Winn. I stedet skabte de endnu et stueområde med en sæt-fødderne-op sofa og skammel. Designerne bandt den til stuen på den anden side af hoveddøren ved at bruge samme vægfarve, Etiquette, by Benjamin Moore, og de samme stribede tæpper. Lige ved siden af er en lille bump-out, der fungerer som en solrig læsekrog. Før FotoHal og trapper Før.En gang igennem den store stue, skabe og vægge skabte et akavet flow. Disse blev fjernet for at åbne op grundplan. Pladsen til venstre havde været et soveværelse og havde en komplet badeværelse fra det. Nu er dette rum køkkenet, et spisekammer skab og et pudderum. Efter.Dette område er bare forbi stuen og er nuåben og lys. Bemærk hvordan den marineblå maling på bagsiden af bogreolerne afspejler farvepaletten i det ydre. Det gulve er hjertefyr, et træ, der typisk bruges til gulvbelægning, når huset blev bygget. Designerne åbnede op for layoutet omkring trappeopgangen og flyttede køkkenet fra højre side af opgangen til dets nye plads i det tidligere soveværelse til venstre. At slippe af med den eneste soveværelset på første sal betød, at de kunne forvandle hele badeværelset nedenunder ind i et pulverrum og brug den ekstra plads til en spisekammer; begge er placeret bag det runde spejl. Gennem dør til højre for trappen er et nyt vaskerum, hvor den gammelt køkken var. "Fordi deres børn var voksne og ude af huset, husejere havde ikke brug for de ekstra soveværelser eller et legerum som en mange af vores andre kunder gør. Og de behøvede ikke at afslutte kælderen heller," siger Winn. En anden overvejelse: En gang en fritliggende garage blev afsluttet ude bagved i en kommende bygning fase, ville parret komme ind ad en bagdør. Godt se, hvordan det udspiller sig om lidt. Reolmaling: Hale Navy, Benjamin Moore; trappeopgang og køkkenmaling: Grey Cloud, Benjamin Moore; Parisisk indbygningsmontering lys: Franklin Iron Works; hjertefyrgulv: Lux Gulvbelægning Køkken Det renoverede køkken er lyst og luftigt og har strandsommerhus stemning. En bagplade af glasfliser reflekterer lyset, mens en ø giver ekstra arbejdsplads og et sted at sidde og holde kokken Selskab. Koboltvedhæng og en midnatsø bringer et par stykker ind stænk af mørkeblå farver. Vedhæng:Alina,Tech Lighting; bordplader: Brittanica Marble kollektion,Cambria
Køleskabet er gemt rundt om hjørne til venstre for området, hvilket fuldfører et nemt arbejde trekant. Skabe over de øverste skabe maksimerer opbevaringen potentiel. Pantry skabet er ude af ramme til venstre, på anden side af den store åbning til køkkenet. Skabene har perleindsats detaljering. Et par glasfrontskabe bryder tingene op og holder ting lyser. Chrome-finish tilføjer et moderne touch. Sænk: Mirabelle; vandhane: Newport Messing; kabinetter: Pacifica, Rutt Skab; hardware: Topknapper; backsplash: Vintermorgen, Flisebutikken Powder Room Lige ved køkkenet og alrummet ligger pulverstuen, fhv et komplet badeværelse. Navy, hvid og krom fuldender en sprød og ren palet. Brug af en konsolvask og et stort drejeligt spejl får rummet til at føles større. Vægmaling: Hale Navy: Benjamin Moore; vandhane og håndklædestang: Brizo; Sutton dobbelt sconce og Dillon Classic pivot spejl: RH; Mason Apothecary enkelt vask konsol: Pottery Barn Familieværelse Lige forbi køkkenet langs bagsiden af huset ligger familien værelse, hvor ejerne ser tv. De kunne spare penge ved at beholde de fleste af de eksisterende vinduer, selvom det dobbelte sæt af døre bag sofaen er nye. De fører ud til dækket og gårdhave. Lige uden for rammen til højre er en fransk dør, som den husejere plejer at komme ind i huset, når de kommer ind fra det nye fritliggende garage bagved. Det højteknologiske brugt her, andre steder i huset og på verandaen har sensorer til temperatur, luftfugtighed og belægning, juster i overensstemmelse hermed, når du går ind eller ud af et rum og kan styres af en smartphone. Før fotoTøjvask Værelse Før.Her er et kig på det originale køkken, som var trangt og dateret. Designerneforvandlede den til en ny vaskerum-mudderrum. Vaskerum-Mudroom Efter.Dette billede blev taget nær den franske dørindgang. Med de nye cubbies, kroge, skuffer og kurve er det nemt at husejerne til at smide deres sko, frakker og tasker så hurtigt som de går ind i huset. Vaskerummet har også rigelig foldning rum, en rustfri stålvask og sort granit bordplader. En lille, men virkningsfuld detalje, der er værd at bemærke, er udluftningen i gulv, som matcher hjertefyrgulvet. "Vi har lavet matchende træventiler en standarddetalje i specifikationerne for vores virksomhed," siger Winn. Selvom denne skulle laves specialfremstillet på grund af den særlige træsort, kan du finde lignende færdiglavede udluftninger i andre træsorter. Vægmaling: Grey Cloud, Benjamin Moore; Pax vask: Kraus; kabinetter: Hannover, Wellborn; krom hardware: Top Knobs
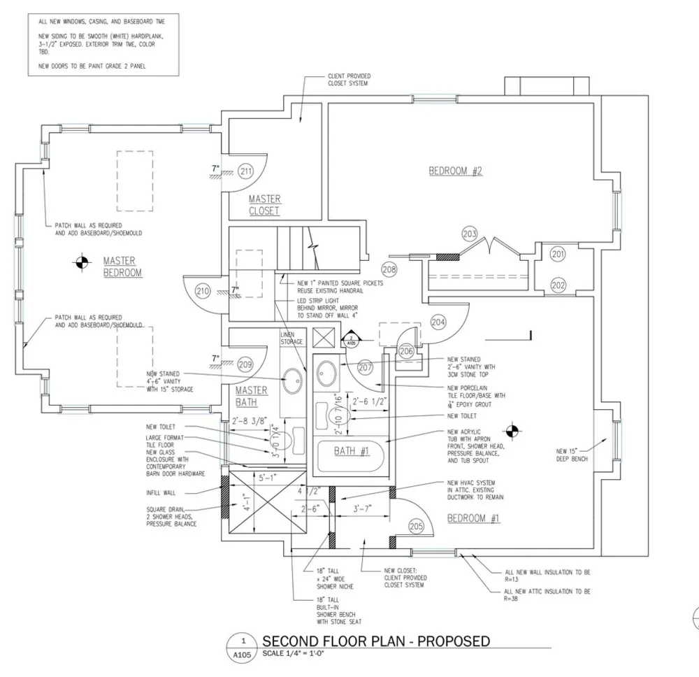
Trappe Dette område ved foden af trappen fungerer som en mini foyer. Trappen forblev på samme sted, men er nu et lige løb i stedet for at have en tur. Den nye newel stolpe og rækværk har Håndværkerstil. Først Gulv Før.Dette er nedrivningsplanen. De ændringer, de lavede til den eksisterende plan er med rødt. Delen mærket "eksisterende køkken" (øverst i midten) er nu vaskerummet. Efter. Her kan du se, hvordan den franske bagdør relaterer sig til mudroom-vaskerum (øverst til venstre) og hvordan pantry og pulver værelse passer ind i den nye plantegning (midt under trappe). Hovedværelse På anden sal er tre soveværelser hyggeligt gemt ind i tagudhæng af taglinjen. I det store soveværelse denne mørkere accent væg hygger tingene endnu mere. Accent vægmaling: Shadow Grey, Benjamin Moore; bænk (lignende): ; En skydedør i stald fører til skab. Bemærk, hvordan dens design passer ind i resten af mølleværk. Vægmaling: Grey Cloud, Benjamin Moore Før FotoHovedbadeværelse Før.Der var plads foran den lille brusekabine at spilde. Og fodpladevarmen var også i vejen. Der var en forfængelighed lige ude af rammen til venstre for toilet. Efter.Ved at flytte bruseren til slutningen af rummet og udskiftning af fodpanelvarmen med nyt HVAC-system samt elektriske strålevarmegulve, de fået plads til den nye brusekabine. Den har en skåret sten mosaikflisegulv i nuancer, der fanger forfængelighedens farver. Og der er et regnbruserhoved og en håndholdt tryllestav. Vægmaling: Etikette, Benjamin Moore; brusehoved: Scossa og håndholdt, Wave, både Rohl En forfængelighed i ahorntræ med sort perle granit bordplade med en læder finish bringer rig teksturer og mørkere nuancer ind i rummet. Forfængelighed: ; vandhane: Rohl Wave 8"; Vask: Terning, Lacava; Bryant sconce: Visuel komfort; gulvfliser: 1x6 Levity Mosaic, Crossville Gæsteværelse Den marineblå-hvide farvepalet så vi glimt af nedenunder fortsætter ind i dette ekstra soveværelse. Vægmaling: Normandiet, Benjamin Moore Før FotoHal badeværelse Før.Entre-badeværelset, der tjener to soveværelser ovenpå var træt og dateret. Men dets effektive layout gav mening, så de beholdt det. Efter. Farvepaletten i hall badeværelset kommer fra farverne i Carrara marmor på brusekabinen og gulvet. Brusefliserne er 6 x 24 tommer aflange undergrundsfliser med slebet finish, og gulvet er sammensat af 1-x-3-tommer polerede Carrara-fliser arrangeret i en sildebensmønster. Spejlet har integreret sideliste LED-lys, som tilføjer en rent moderne element. Splurger og sparer.Splurges på ombygningen omfatter skabe, hvidevarer, el-armaturer og ventilatorer. Ved ikke færdiggørelse af kælderen og bjærgning af så mange vinduer som muligt, de var i stand til at spare på budgettet. Maling: Grey Cloud, Benjamin Moore; Newcastle Vanityind Ocean Grey: Ronbow; hardware: Topknapper; vandhane: Abruzzo,Fortis vandhane; toilet: Bradenton, Mirabelle; badekar: Archer, Kohler; brusehoved: Delta; Sunrize spejl: Luna Series, Fleurco Anden Gulv Efter.Der blev ikke foretaget større ændringer i layoutet af anden sal, men du kan få en idé om, hvordan det hele er lagt herude. Takeaways
Tjek med din lokale kommune eller historiske samfund for retningslinjer ved renovering af et historisk hjem.
Hav det sjovt med din .
Tænk over, hvordan du vil bo i dit hjem, og hvordan du ønsker at bruge hver plads. I dette tilfælde havde parret ingen brug for en formel spisestue eller masser af ekstra soveværelser.
Bind rum, der er åbne over for hinanden, sammen med en væg maling, tæpper og farvepaletter.
Når du maksimerer antallet af skabe, der kan passe i din køkken, bland nogle glas-front skabslåger for at holde en mere åben følelse.
Hvis du kan presse en vask ind i dit vaskerum, er det praktisk at have til pletter og håndvask sarte genstande.
Overvej at matche træventiler til trægulve.
En staldskydedør behøver ikke at ligne en dør fra en egentlig lade.
Den flise, du vælger, kan være et startpunkt for alle de farver du vælger til et badeværelse.