Servista-tur: Se en landskabsdesigners bjerghytte

I North Carolina designer en arkitekt et dogtrot-hus som et baggrund for de omkringliggende haver

Vi tog for nylig en tur af biograflandskabsdesigneren Jay Siffords North Carolina-bjerg hus. Og det efterlod Servista-læsere ivrige efter at få et kig ind i huset selv og tjek plantegningerne. Dit ønske er vores kommando. Kom og tag en rundtur i Siffords sorte hundehus, designet af arkitekt Jim Owen fra DIGSdesign.
black box lifeFotos af Jim Owen
Et blik på huset
Hvem bor her:
Landskabsdesigner
Placering:NearWest Jefferson, North Carolina
Størrelse: 1.659 kvadratfod (154 kvadratmeter); to soveværelser, 2½badeværelser
Arkitekt: Jim Owen fra
Sifford, hvis primære bolig er to timer væk i Charlotte, havde altid drømt om at have et bjerghus. Efter at have nydt venlig stemning på en pub i West Jefferson, han vidste, at han havde fundet den rette sted at søge efter ejendom. Til webstedet vidste han, at han ønskede et sted i en dal, ved siden af en å med masser af høje indfødte rhododendron. "Du skal finde det rigtige for dig sjæl. Nogle mennesker vil have en bjergtop, nogle mennesker vil have en sø, men jeg er hjemme i en dal," siger han. "Det føles bare imødekommende og plejer mig." Han har kaldt ejendommen Rhodwood.
Til strukturen ønskede Sifford noget moderne, men det var han ikke interesseret i en beton-og-glaskasse. Han kendte arkitekt Owen socialt og fagligt fra Charlotte og hyrede ham til designe huset. Owen tjekkede ejendommen ud med Sifford, og tog ham også med på en rundtur i en han havde designet. Sifford blev solgt videre ideen, især efter at have lært, at stilen havde været en en del af regionens arkitekturhistorie.
Et dogtrot-hus er sammensat af to enkle kabinestrukturer forbundet med et tag, der skaber en brisevej mellem dem. Det breezeway, eller dogtrot, blev opkaldt efter stedet, hvor hunde kunne nyd skyggen og køligere luft på dage, hvor det var "for varmt til trav."

Dogtrot... med hunde!Her er Siffords standard pudler, Sonoma og Amador, hvilket giver et "deraf navnet"-øjeblik i hjemmets dogtrot.To store skydedøre kan lukkes væk fra pladsen til kraftig vind eller bjørne og blokerer adgangen til dækket når Sifford er ude af byen.
"Jeg vidste, at jeg ville have et sort hus stort set fra starten. jeg ville set sorte huse, jeg kunne lide på Servista," siger Sifford. "Jeg kan virkelig godt lide humørfyldte huse, og jeg vidste, at det ville være en fantastisk kulisse for min haveplaner."
Beklædningen er udvendig krydsfiner med cedertræslægter. Lægterne tilføjer et lodret element og dimension til facaden. Alle beklædningen er sortfarvet, hvilket giver det anderledes materialer et ensartet udseende. "Brug af krydsfiner gemt på budget, og du ville aldrig vide, at det ikke er cedertræ," siger Owen. Taget er metal med stående søm, et passende materiale til en kabine i skoven. Disse materialer hjælper med at lave weekendhuset lav vedligeholdelse.
black box life"The struktur og jorden arbejder hånd i hånd," siger Owen. Hjemmets sort sidebeklædning opvejer smukt forhavens enghave. Bedømmelse på siden drejede sig om korrekt placering af septiktank og udvaskningsfelt ude foran, men bortset fra det var det for det meste uberørt. Indkørslen er til højre, lige uden for rammen på dette billede.
"Jeg elsker asymmetri," siger Owen. Han fandt de rigtige proportioner til huset ved først at beregne den plads, han skulle bruge til det store værelse, køkken og mudroom-pantry. Så planlagde han dogtrot og soveværelsessiden. Dette bestemte husets længde, og strukturens behagelige proportioner faldt på plads fra der.

black box lifeEn anden måling, der hjalp Owen bestemme proportionerne var den nådige bredde af dogtrot. "Jay ønskede, at det her skulle tjene som opholdsrum og talte om at sætte et spisebord herude," siger Owen, der fandt på en 11 fods bredde. Arkitekten foreslog pejsen herude, med spisning ved varmen fra en ild i tankerne.
Dogtrot giver et åbent udsyn til trækronen og direkte adgang til bagdækket. Disse to rum skaber omkring 1.000 kvadratmeter udendørs boligareal.
Soveværelsessuiterne er stablet på venstre side og stuen mellemrum er til højre. Den første dør til venstre åbnes til trappe, der fører ned til gæstesuiten. En dør på bagsiden til venstre fører til Siffords soveværelsessuite. Og en glasdør til højre fører til det store værelse, spisestue og køkken rum. (Dens dørmåtte kan ses i forgrunden.)
black box lifeHuset sidder på en stejl skråning. Dette gjorde det muligt for gæsten på lavere niveau suite, som har udsigt ud over hele vinduer og et dæk, der vender mod træer. Det hjalp også Sifford med at organisere haverne.
Døren til venstre er en mudderrumsindgang. Det giver nem adgang når Sifford kommer indenfor efter havearbejde eller indkøb shopping.
Servista Tour Jay Sifford/DIGSDesignHer er et kig på det vigtigste niveauets grundplan. Mudroom-indgangen er placeret ud for indkørsel i højre side af huset.
Selvom Sifford var fast besluttet på at bygge et hjem med en dogtrot layout, har han en advarsel til alle, der planlægger at finansiere en. "Da jeg prøvede at få dette hus vurderet, var der vanskeligt regler omkring at dele huset i to med uopvarmet rum i imellem," siger han. "Ingen vidste, hvordan man vurderede det på grund af måden dogtroten deler det på. På grund af reglerne kunne de ikke finde nogen comps."
Mens du glaserede og konditionerede ville dogtroten have taget tog sig af problemet, Sifford havde det ikke. "Hele grunden til, at jeg bygget her var for at møde naturen," siger han. "Jeg elsker at mærke afstivning af kolde eller lune temperaturer, når jeg går fra det store rum til mit soveværelse." Han bemærker også, at temperaturen i huset topper ved omkring 79 grader, selv på de varmeste dage. Væggene er godt isolerede, vinduerne er tykke og vinden er vidunderligt, så han skal sjældent tænde for luften conditioning.
black box life"Vi brugte matchende sidespor på soveværelsesdørene og glas på det store værelse dør," siger Owen. For at sikre, at besøgende vælger den rigtige dør, Sifford lagde en dørmåtte foran døren til det store rum, hvor der står "Velkommen", mens soveværelsesdørmåtterne ikke byder på det budskab.

Sifford balancerede besparelser (såsom den udvendige kvalitet krydsfiner) med splurges. "En af mine udbytter var terrassen materiale," siger han. "Det er brasiliansk tigertræ. Det er tæt nok til at kræve meget lidt vedligeholdelse, i modsætning til det fyrretræ, jeg har på mit dæk i Charlotte."
black box life"Vi oprindeligt ønsket pladeformet beton til pejsevæggen, men hver bygmester sagde nej. Tingen ville have vejet så meget at det ville have krævet en enorm mængde støtte nedenfor," siger Sifford. Så i stedet valgte han en grå afsatsfiner, der passer til den rustikke stemning i regionen. Denne accentvæg forankrer værelse og rummer en pejs, tv og kunst.
Sifford arbejdede kunst og håndlavede stykker ind i sit hjem, ofte at vælge lokale håndværkere. Det skulpturelle stykke til højre er dog en 300 år gammel bambusskærer fra Kina. Det maleri over pejsen er af Charlotte-kunstneren Elaine Connors.En lokal møbelsnedker skabte den levende kant spisebord i valnød. Sifford købte de skulpturelle lysestager på spisebordet i Servista Shop.
En glasfiberkugle ved pejsen er en favorit. "En af mine signaturelementer i mine havedesigns er en kugle. De laver mig føle sig fredelig," siger Sifford.
black box lifeSifford oprindeligt ønskede genvundne bjælker til loftet, men han kunne ikke finde nogen, der var store nok. "Jeg tror, de slog disse nye bjælker op med kæder og hamre for at give dem en gammel, beat-up look," siger han. Lysekronen, lavet af gammel vin tønder, havde været på hans ønskeliste i omkring et årti.
"Bjælkerne er rent dekorative. Taget har et spærsystem det understøtter det," bemærker Owen. Men bjælkerne tilføjer karakter og hjælpe med at bringe det høje hvælvede loft ned til menneskelig skala.
Gulvene er i B-klasse hvid eg. "B-klasse betyder, at de er knottier castoffs, som jeg elsker, fordi de har så meget karakter," siger Sifford. "De var også meget billigere. Hvis der var sådan noget som C-klasse, ville jeg have valgt dem."
black box lifeTo sæt panorama-glasdøre åbner til bagdæk. På grund af boligens aborre på skråningen, stor vinduer og døre langs bagsiden af huset har udsigt over trætoppe. "Disse døre var en af mine store splurges, og det var de det værd," siger Sifford.
black box lifeEn ø adskiller køkkenet fra spisepladsen. En soffit skaber en alkove til hvidevarer og skabe. Sifford spildte på Thermador serie og brasilianske kvartsit bordplader. Han reddede ved ved hjælp af semi-tilpassede skabe.
Owen gemte nogle vigtige rum bag køkkenvæggen. Der er et pulterum placeret til venstre, og spisekammeret og mudroom er til højre. Mikroovnen er i pantry.
black box lifeHer er Siffords udsigt fra køkkenet.
black box lifeWindows på den anden side af køkkenet giver udsigt over enghaven. Sifford undgik vinduesbehandlinger. "Det er lidt rart, når nogen vinker til mig fra vejen," siger han. "Men til sidst stedsegrønne planter jeg plantede ude foran vil give mere privatliv."
black box lifeDækket løber langs hele den store værelsesside af huset til den yderste ende af dogtrot, hvilket giver plads til spisning og hygge. Sifford har valgt ikke at have trapper, der kommer til dækket fra jorden.

black box lifePlacering af soveværelsets indgangsdør mod bagsiden af dogtrot giver nem adgang fra soveværelset til dækket. Owen placerede et 8-x-8-fods vindue for at give en klar udsigt over skoven fra Siffords seng.
"Jeg ville spille følelsen af at flyde i en rhododendron op skov herinde," siger Sifford. "Du svæver op i træerne, og nogle morgener triller tågen ind, og der er det her magiske følelse af at svæve i tågen." Derfor valgte han en humørfyldt grå maling til væggene, et maleri af et klaver, der flyder i skyer og møbler, der svæver oven på metalben.
black box lifeHer er et bedre kig på udsigten.
black box lifeSifford ønskede også et sted at arbejde i hus. Owen designede en arbejdsalkove til ham, der føles som den eget separat rum i soveværelset. Frit udsyn på to sider af skrivebordet inspirerer hans landskabsdesign.

black box lifeBadeværelset fortsætter følelsen af flyder i skoven. Sifford valgte et vindue i stedet for et andet spejl over forfængeligheden. Glaspeapod-skulpturen er af kunstneren Randy Walker. Det 8 fod høje vindue til højre er inde brusekabinen. Toilettet er skjult bag ponyvæggen til venstre.
"Jeg var træt af at se skabslåger overalt, så jeg gik bare forfængeligheden åbnede og købte beholdere til at putte mine ting i," siger Sifford. "Jeg ønskede at holde alting virkelig enkelt og uden dikkedarer, ligetil og autentisk."
black box lifeHøjden fra jorden og masserne af Rhododendron giver alt det privatliv, der er nødvendigt i bruseren. Sifford valgte en porcelænsflise i stort format. Dens kulfarve giver samme kontrast til løvet fra det indre at den sorte sidebeklædning yder på ydersiden.
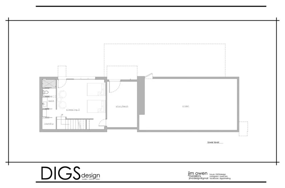
Servista Tour Jay Sifford/DIGSDesignDenne plan for det lavere niveau viser gæstesuiten og trappen, der fører til den til venstre. Området under dogtrot er til mekanisk og opbevaring. Området til højre er en krybekælder.
black box lifePå grund af hældningen gør det lavere niveau det ikke føles som et lavere niveau overhovedet. Sifford placerede to fuld senge til rumme alle slags gæster. Han tog billederne over senge, som skildrer lokale scener.
black box life"Udsigten er fantastisk hernede. Rododendrons stammer er virkelig skulpturelt og knudret," siger Sifford. "De er så smukke og denne udsigt lader folk virkelig opleve, hvad de kom her for."
"Jeg elsker at arbejde i trange rum som dette. Og det elsker jeg hjem opmuntre til samling uden for huset," siger Owen. "Dette projekt er helt klart blandt mine mest yndlingsrejser. Det var dejligt at partner med en klient, der kender og deler sin kærlighed til det, han gør og hvordan han vil have de to dele [haven og huset] til lev i harmoni."
Hvis du gik glip af linket, .


# Renovering af lejlighed