Ugens badeværelse: Dramatiske sorte vægge og art deco Stil

En designer opdaterer et kedeligt bad med masser af sort maling, mørke marmorfliser og gulddetaljer, der skaber en vintage vibe

Et kendetegn ved art deco-stilen er dens glamourøse håndværk og brug af naturmaterialer. Så når dette tomt-rede-par købte en etværelses lejlighed i en Art Bygning i deco-stil i centrum af Salt Lake City, de vidste, at de nødvendige for at forbedre designet af de generiske indvendige rum. At omfattede enhedens eneste badeværelse, hvis cremefarvede vægge, grundlæggende hvid forfængelighed, aldrende brusebad og tæppebelagt gulv kunne ikke har været længere fra luksus.
De henvendte sig til designeren Rachel Hutchens og bygmesteren Jared Reesor for hjælp. Holdet rev alt ud og indarbejdede plads fra et nærliggende skab for at skabe et mere rummeligt layout med en lav kantsten bruser. Stablede vasketøjsapparater optager et tidligere linnedskab. Og for en sprudlende stil, der passer bedre til bygningen, hold lænede sig op af helt sorte vægge, forskellige slags marmorfliser og masser af guldfinisher.
Downtown SLCFør Foto"After"-billeder af Ann Parris Photography
Et blik på badeværelset
Hvem bor her:Et par med tom rede
Placering:Salt Lake City
Størrelse: 62 kvadratfod (5,8 kvadratmeter)
Designer:Rachel Hutchens fra
Bygmester:Jared Reesor fra
Før: Dette billede af den tidligere lejlighed blev taget fra soveværelse ser mod badeværelset til venstre og skabet på det rigtige. Du kan se det slidte tæppe og få et kig på grundlæggende finish og aldrende bruser-badekar-kombination på badeværelset. "Det badeværelset var bare grimt og gammelt," siger Hutchens.
Ombygningsteamet stjal plads fra skabet for at udvide badeværelse og skab et mere rummeligt layout.
Downtown SLCEfter:Ombygningsteamet bankede på tidligere badeværelse tilbage til studsene. Det inkorporerede derefter en del af skabet ind i det nye rum, hævede loftet så meget som muligt og flyttede døren over en fod. Disse ændringer, sammen med en rammeløs glasbruser med lav kantsten og en åben håndvask, hjælpe med at holde de 62 kvadratfod rummelige.
Messing og gulddetaljer popper mod de sorte vægge og mølleværk (Tricorn Black af Sherwin-Williams) og den 3 x 6 tommer sorte finpudsede marmorfliser, hvilket skaber elegant spænding. "De var åbne overfor et dramatisk badeværelse, og de ville have en Art Deco-stemning," Hutchens siger.
En specialtilpasset marmorbordplade på håndvasken koordinerer med mosaik marmor gulvfliser i et kurvvævet mønster. "Vi valgte sort og hvid marmor for deres indtog," siger Hutchens. "Vi følte at vælge sort og hvid marmor til badeværelset hjalp med at binde alt sammen."
Backsplash-fliser: Ferrara-slibet marmor i Nero, 3 gange 6 tommer,

Downtown SLCFør fotoFør:Et af de hovedkradsende træk ved det tidligere badeværelse var toilet, som sad vinklet i et hjørne med en del af sin tank forsænket i væggen.
Downtown SLCEfter: Stjæler plads fra skabet tilladt Hutchens at placere det nye todelte toilet i en straight position. Guldtoiletstangen og toiletpapirholderen koordinere med andre finish i rummet, herunder guldramme sort-hvid kunst.
Det øverste vægpanel til højre for toilettet er faktisk et touch-åbent skab, der opbevarer toiletartikler, en idé Reesor, den bygmester, fandt på."At have en stor bygmester lavede alle forskel," siger Hutchens.
Den udbredte vandhane har en buetud og en poleret guld Afslut. "Jeg elsker en buetud; det er fint og traditionelt udseende," siger Hutchens.
Sconces i messing med glascylindre og eksponeret Edison-stil pærer nikker til art deco-stil.
Toilet: , Kohler; loftmaling: Reflekterende hvid, Sherwin-Williams

Downtown SLCEt sort makeupskab med messingtræk og en specialfremstillet marmorplade, der matcher vaskestandstoppen, der sidder på tværs fra toilettet. Et 24 x 36 tommer spejl med LED-lys hænger over. "Det er noget, jeg sætter ind i mit eget badeværelse og elsker fordi den er så fantastisk til at lægge makeup på," siger Hutchens.
Gulvfliser: Aurora-mosaik, Bedrosians-fliser og sten

Downtown SLCDen sorte marmorflise omslutter den nye bruser — væg til væg, gulv til loft og også på den lave kantsten. Det samme flise i en 1-x-1-tommer mosaik dækker brusebadets gulv, giver godt greb.
Bruseren har en håndbruser med glidestang, afledning, regndåse brusehoved og termostatventil, alt i guld færdig.
Et opgraderet matteret dobbelthængt vindue giver privatliv og ventilation.

Downtown SLCEn niche inde i bruseren har to kvarts hylder til at holde produkter væk fra gulvet, og det er bakket ind den samme mosaikflise, der blev brugt til gulvet.
Downtown SLCDen Condo havde ikke et vaskerum før ombygningen, så Hutchens skabte plads til en stablet vaskemaskine-tørretumbler i det, der havde været et linnedskab. Mesh-døre skjuler delvist apparaterne. "Nettet giver mulighed for ventilation til vaskemaskine og tørretumbler og giver også en cool designfunktion," siger Hutchens.
En krog til højre for apparaterne holder håndklæder i nærheden af bruser. Der er en anden krog på bagsiden af badeværelsesdøren til venstre.

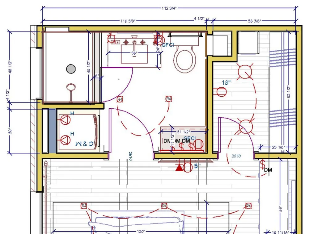
Downtown SLCFør fotoFør: Dette plantegning af det tidligere badeværelse viser dets stramme planløsning med bruser-karbad combo (venstre), voluminøse forfængelighed (i midten top) og mærkeligt vinklet toilet. Et skab (til højre) gav mulighed for at expand.
Downtown SLCEfter:Absorbering af en del af skabet tilladt husejerne at udvide deres badeværelse, hvilket resulterede i en renere, mere rummelig layout. "Dette projekt var en succes, fordi kunder lader os virkelig være kreative og tage risici," Hutchens siger.


# Renovering af lejlighed