Ugens badeværelse: Et smartere layout med et tv og Pejs

En designer forvandler et Pennsylvania-pars trange og dateret master bad til en luftig tilbagetog med afslappende faciliteter

Steve og Christine Miller købte for nylig en 1998 Hus i kolonistil i en forstad til New Hope, Pennsylvania tæt på en virksomhed Christine planlægger at starte snart. Parret, som er forældre til to døtre på college, kunne lide hjemmets traditionel stil og stor baghave, men de ønskede at opdatere nogle af de indvendige rum for bedre at passe til deres travlhed livsstil.
Et stort fokus var deres master badeværelse, hvor et akavet layout og et farligt step-up indbygget boblebad spildplads. Dens beige vægge, grundlæggende mørkt træ forfængelighed og lille brusekabine gjorde lidt for at give det inspirerende tilbagetog, som Millers håbede til. Parret arbejdede sammen med designeren Marina Franks fra Ryann Reed Design Byg for at gentænke layoutet for at maksimere kvadratmeter og frigør plads til afslappende funktioner som et stort badekar med udsigt til en elektrisk pejs og tv. En beroligende hvid-og-grå farvepalet og rummelig ny bruser med justerbare sprays fuldfør det foryngende rum.
Primært badeværelse | New Hope, PAFør Foto"After"-billeder af Jake Dunderdale fra
Et blik på badeværelset
Hvem bor her:Steve og Christine Miller, som er forældre af to døtre på college
Placering: New Hope, Pennsylvania
Størrelse: 180 kvadratfod (17 kvadratmeter)
Designer:Marina Franks fra
Før:I det tidligere badeværelse et stort indbygget step-up badekar i det ene hjørne spildte en masse kvadratmeter og skabte en potentiel skridfare. Møllerne tænkte også det overordnede farver og materialer - beige vægge, Hollywood forfængelighedsbelysning, mørke træskabe — kunne godt bruge en genopfriskning.
Den brede hvide dør set i spejlet reflektion over karret var den oprindelige indgang til badeværelset. Døren åbnede sig en måde, der ramte den lille brusekabine i hjørnet overfor badekar.
Primært badeværelse | New Hope, PATV og pejs
Efter: Dette billede blev taget fra omtrent samme vinkel som det forrige billede. Franks fjernede det indbyggede hjørnekar og gamle forfængeligheder og, på den tidligere spejlvæg, installeret nyt forfængelighed, en pejs og et tv. Hun flyttede også døråbningen ind badeværelset over et par fødder for at tilføje en rummelig bruser og iblødsætning badekar på en mere central placering (se "efter" plantegninger nedenfor).
Christine brugte Servista og andre onlinekilder til at samle design ideer til det nye badeværelse. Sådan kom hun på ideen at tilføje den udluftningsfri elektriske pejs med fjernbetjening og en fladskærms-tv, som parret begge nyder af komforten af et nyt fritstående badekar. "Det tager det hele miljøet i badeværelset til næste niveau," Christine siger.
Franks designede en opbygning for at give udseendet af en pejs skorsten og til visuelt og fysisk at flugte med flankeringen forfængeligheder. Stablede naturstenspaneler dækker udbygningen og koordinere med den overordnede hvid-og-grå palet i værelse. Franks forsænkede en hvidmalet niche i udbygningen der opbevarer rullede rene håndklæder og dekorative tilbehør.
Glaserede porcelænsfliser i træ-look tilføjer dybde og optager på de forskellige grå og sorte i hele rummet.

Primært badeværelse | New Hope, PADobbelt håndklæder
De dobbelte semi-brugerdefinerede malede ahorn-vaskeborde har fuld overlay Shaker-stil låger og skuffer med overgangsstil mat sorte pulls i to størrelser. De duegrå farvekoordinater med den ægte grå vægmaling (March Wind af Sherwin-Williams) og hvide elementer. "Jeg synes, det her farveskema er på trend, og det holder badeværelset lyst, luftigt og afslappende," Christine siger.
Hvert vaskeskab indeholder et underskab med udrulningshylder til rengøringsmidler og hår- og badeprodukter. "Bagsiden af skabene har udtag indeni, så jeg kan holde min hårtørrer tilsluttet i, mens de er gemt væk i skabet," siger Christine. Tre soft-close skuffer på hver side af skabene gemmer ting som makeup og medicin.
Høje og slanke pilleformede spejle med matsorte rammer hænger over hver forfængelighed. Moderne stål- og glasrørlignende lampetter lys området og udfyld, hvad der ellers ville være dødt rum på væg.
Sconces: i sort, Millennium Lighting; skab hardware: Metro pull, , og Metro pull, , Berenson Hardware

Primært badeværelse | New Hope, PAHver forfængelighed inkluderer en undermonteret rektangulær hvid vask og en højbuet matsort vandhane. "Jeg havde altid haft et mere traditionelt badeværelse, og jeg vidste, at jeg ville noget andet, men ikke for voldsomt moderne," Christine siger.
Bordpladen og den korte bagplade er kvarts, der efterligner udseende af statuer marmor.
Dræn: , Kohler; vask vandhaner: Moen
Primært badeværelse | New Hope, PAFristående badekar
En akryl hvid fritstående oval badekar sidder i en central plads i rummet foran den nye bruser. En gulvmonteret matsort karfyld med håndbruserstativer bagpå hjørne. Små stenmosaikfliser under karret tilføjer definition og koordinerer med den samme flise, der bruges til brusegulvet.
Karbeholder: et håndtag med håndbruser i mat sort, Moen

Primært badeværelse | New Hope, PARummeligt brusebad
Franks flyttede døren ind til badeværelset over et par meter for at frigøre op plads til en større bruser med en brugerdefineret rammeløs hærdet glas indkapsling. Porcelænsfliser i marmorlook (12 x 24 tommer) dække brusevæggene til og strække op til det skrå loft til fremhæve højden. De toner af grå åring på den cremede hvid baggrund supplerer forfængelighed bordplader og overordnede rumpalet.

Primært badeværelse | New Hope, PAMatsorte brusearmaturer koordinere med forfængelighed vandhaner, kabinet hardware, spejl rammer og andre sorte detaljer i rummet. Et regnhoved, hånd bruser og to kropssprays giver afslappende brusebad muligheder.
Franks placerede hovedtermostatventilen (den store kontrol til venstre), der styrer temperaturen og trykket på vand tæt på brusedøren, så Millers kan tænde for vand uden at blive våd. "Jeg elsker det," siger Christine. "Det er rummelig og har alt, hvad jeg ønsker i et brusebad. Kropssprayerne er justerbar, og nichen giver mig al den plads, jeg har brug for til min shampoo og badeprodukter."
Bruseelementer: , ogi mat sort, Moen
Primært badeværelse | New Hope, PABrusenichen over indbygget bænk omfatter stablet flad-småsten mosaik fliser lavet fra snittede sten, der tilføjer et strejf af tekstur og organisk følelse inde i bruseren.
Primært badeværelse | New Hope, PAPå brusegulvet, småsten mosaikfliser i en mat finish omgiver et matsort afløb cover.
Primært badeværelse | New Hope, PAVandskab
Vandkloset var en af de få funktioner, Millers ønskede At beholde. Franks flyttede døren, da han omkonfigurerede badeværelset layout. Sort dørbeslag koordinerer med den anden sorte elementer i rummet.
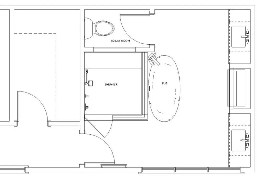
Primært badeværelse | New Hope, PAFør FotoPlattegning
Før: Denne plantegning af det tidligere badeværelse viser hvordan alle elementerne trængte sig ind i hjørnerne, også de store badekar nederst til højre, spilder værdifuld plads i midten af rummet. Den lille brusekabine (nederst i midten) stod i en uheldig position nær badeværelsets indgang. Døren svinger i denne plan blev ved et uheld vendt. Selve døren svingede mod brusekabinen.
Primært badeværelse | New Hope, PAEfter:Fjernelse af det gamle bruser, håndvask og badekar og omkonfigurering af layoutet frigivet plads til større vaskeskabe på højre væg og en rummelig ny bruser og badekar i midten. Disse træk, kombineret med tilføjelsen af forkæle-mig bekvemmeligheder, gav Millers afslappende tilbagetog de ønskede. "Det tilføjer en zen-agtig følelse til vores hjem," siger Christine.


# Renovering af lejlighed