Ugens køkken: Et sofistikeret bud på 1920'ernes sommerhus Stil
En designer fra Illinois omfavner sit 100 år gamle hjems vintage udseende, mens den inkorporerer moderne funktioner og afslutter
Fotos afStoffer Fotografi interiør Et overblik over køkkenet Hvem bor her: Alessia Loffredo fra , der har designet køkken; hendes mand; deres tre børn; og deres hund Placering: Glen Ellyn, Illinois Størrelse:240 kvadratfod (22 kvadratmeter); 16 gange 15 fødder I dette køkken møder 1920 hyttestil 2018 moderne bekvemmeligheder. Der er også et strejf af Italien. Hvornår Indretningsarkitekt Alessia Loffredo og hendes familie flyttede til et Chicago-forstaden fra Detroit, forelskede de sig i charmen fra deres bungalow i engelsk hyttestil fra 1920. Men de var ikke så inde elsker med sit lille, mørke køkken. For at afhjælpe situationen, de vendte solrummet på bagsiden af huset (en tilføjelse fra 1980'erne) til et køkken og omdannet det gamle køkken til en hverdag spisestue. Arbejdets omfang. Køkkenrenoveringen var mest vigtig del af en større renovering af førstesalen. Fordi det nye køkken havde været en solstue, de skulle fjerne og udskifte mange vinduer. Det krævede noget arbejde til det ydre, ny beklædning indvendig og ny gulvbelægning. Det indebar også nyt VVS- og el-arbejde. Stil.Loffredo ønskede, at hjemmets sommerhusstil skulle fortsætte ind i køkkenet, men med opdaterede detaljer og moderne bekvemmeligheder. Nikken til boligens oprindelige arkitektur omfatter tnot-og-not-paneler, skabe i Shaker-stil med låse og enkle knopper, tidstypiske sconces, karm vinduer og klassisk mølleværksmatch, der findes andre steder i huset. Loffredo inkluderede også funktioner, der minder hende om at vokse op i Italien. Disse omfatter marmor bordplader, der Fortsæt op ad væggene for at blive bagsiden og et bondehus vask med indbygget afløbsbræt. Layout.Funktionelt, layoutet er en lang arbejdstrekant med øen i midten. Det er køleskabet, der gemmer sig bag panelfronter i forgrunden til højre. Opvaskemaskinen er skjult af et panel til højre for vasken. Brug af panelfronter opretholder kontinuiteten i hele rummet. Trapper, der fører til baghaven, er til venstre lige ud af udsigt. Vaskområdet har et dejligt stort vindue, der lukker masser af lys og ser ud på baghaven. Opbevaring. Loffredo anbefaler at tage en komplet opgørelse af alt, hvad du skal bruge til at opbevare og designe skabene derfor. I dette rum har et skab på den ene side af sortimentet lameladskillere til pladepander og skærebrætter; den anden side har en 12-tommer udtrækbar krydderihylde. Øen har dybe skuffer til gryder og pander, og bag dørene er der udtræk hylder. Skabe: Svævende hylder. Parret brugte omhyggeligt designet specialskabe til deres underskabe og besluttede at give afkald på overskabe. Dette gav plads til flere vinduer, en ekspansiv bagplade og åbne hylder. "Jeg ville virkelig gerne bringe noget træ ind i rummet, og det var en fantastisk måde at gøre det på det," siger Loffredo. De bruger de nederste skabe til hverdag varer og de øverste hylder til at vise yndlingsting.
Bordplader og backsplash.Loffredo valgte Calacatta Crema marmor for skrankerne, og den fortsætter op ad væggene som en forlænget backsplash. "Det her er meget europæisk. Jeg ville have lidt med Italien hjem," siger hun. "Og fordi den ikke har fugemasse de fleste backsplashes gør, det er meget nemmere at rengøre." Vindueskarmene der møder bagpladen er lavet af den samme marmor.
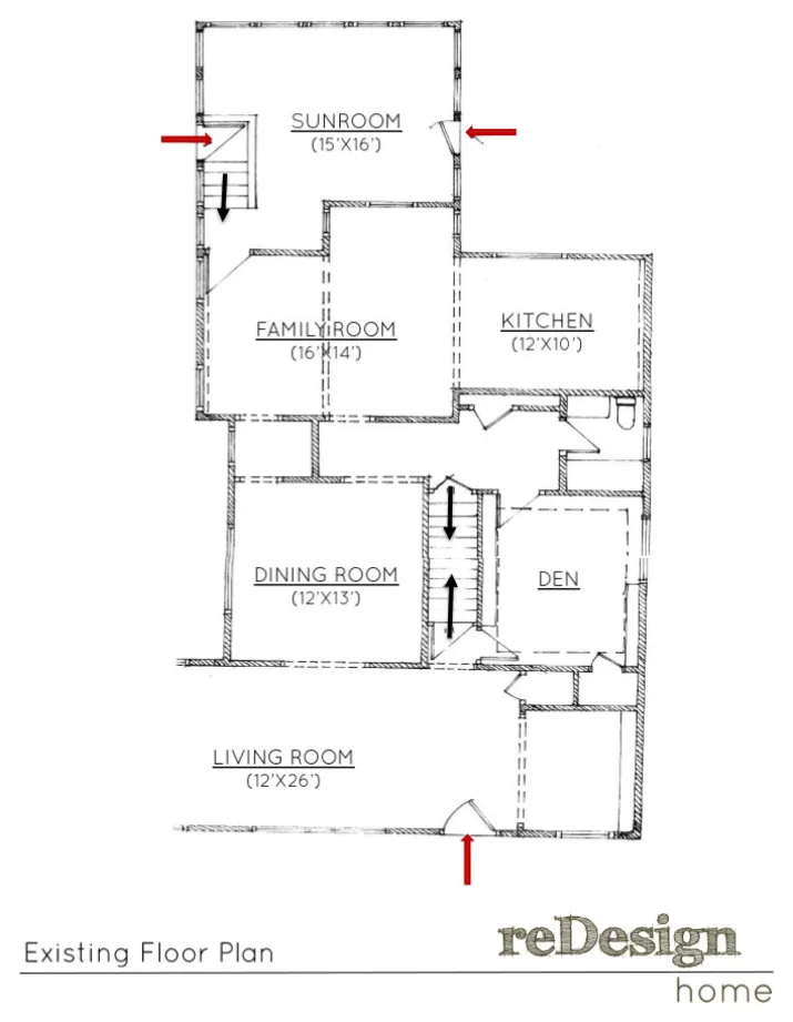
Belysning. Mens hun holdt med klassisk hardware og andre vintage-stil detaljer, designeren havde det sjovt med disse pendellamper. "Dette var en god chance at tilføje noget mere moderne og iøjnefaldende," siger hun. Det nuancer er beton og har træaccenter. Hun valgte en størrelse der ville ikke overvælde rummet. Pendellamper: , Four Hands Furniture Sænk. Dem, der står kl. vasken nyde udsigten ud over baghaven. Opvaskemaskinen skal højre for vasken. "Denne vask havde et afløbsbræt, der mindede om mig fra min bedstemors køkken i Italien, så jeg var nødt til at have det." siger Loffredo. "Jeg elsker ikke kun udseendet, men det er meget funktionel." Armatur. Den polerede nikkelbrohane passer til æraen af hjemmet. Sink: Wetstyle; vandhane: Perrin & Rowe; Hardware. "Jeg brugte ulakeret messing på skabsbeslag og lampetter pga det vil ændre sig i patina over tid. Og mens det tilfældigvis er det meget i stil lige nu, det er noget, der binder rummet til begyndelsen af 1900-tallet," siger Loffredo. "Jeg tror, at blanding af metaller giver et hjem et tidløst look." Skabsknopper og -træk: Foryngelse; Vægge. Loffredo brugt fer-og-not-paneler på væggene for at give dem en hygge sommerhus udseende. Panelerne fortsætter ned ad trappeopgangen, venstre. Selvom disse birkekammerdøre er nye, er Loffredo og business partner Sarah Coscarelli designede dem til at ligne den anden flotte originale døre i huset. Loffredo bar også mølleværk, såsom fodlister, fra den oprindelige arkitektur ind i køkkenet. Vægmaling: Alabaster, Sherwin-Williams;dørhåndtag: Rejuvenation Pantry. "Det prøver vi altid arbejde i et walk-in pantry for vores kunder, når vi kan," siger Loffredo. I dette tilfælde indrammede de blot et hjørne af rummet til at skabe rummet og dækkede interiøret i metroen fliser fra gulv til loft. Spisekammeret har plads til både mad og små apparater (kaffemaskinen sidder ude i køkkenet tæller). Den får naturligt lys fra et vindue. Gulvebelægning.Nogle af originale røde egetræsgulve i boligen skulle udskiftes pga af vægfjernelse og fordi de skulle udjævne gulvene. Det designer matchede den samme art til det nye gulv i køkken og så gav alle husets gulve samme mørke plet. "Mange mennesker ville gå lettere på gulvene, når de brugte sort skab, men væggene var så hvide, at jeg ville have den kontrast. De mørke gulve gør det hyggeligere," siger hun. Hun fik farvet gulvene ved hjælp af en "vandpopping"-teknik. Det gulve er dækket af vand, så træet vil absorbere det. "Det vand åbner kornene og trænger ind i dem. Dette gør dem alle mere ensartede i farven, når man pletter dem," siger hun. Nogle få timer senere påføres pletten. Spiseplads.Loffredo og hendes familie besluttede at skabe et afslappet spisested i det gamle køkkenplads til at bruge til de fleste af deres måltider sammen. (De har slippe af med den formelle spisestue i renoveringen.) Nyt fransk døre til venstre fører ud til dækket. Loffredos søster er uddannet i kunst og har et stort øje for finde vidunderlige værker og restaurere dem. Hun gav familien det dejlige portræt, som hun fandt ved et ejendomssalg i Michigan og restaurerede sig selv. Før FotoFør.Køkkenet blev flyttet til dette tidligere solrumsområde. De slap af med døren langs bagvæggen der førte ud til dækket. Nu får de adgang til dækket fra den nyligt ombygget afslappet spisestue. Før FotoFør.Dette var det gamle køkkenrum. Ikke noget om det holdt nogen af bungalowens originale charme på grund af en tidligere renovering. Det blev lavet om for at fungere som enafslappet hverdags spiseplads. Før. Du kan se den tidligere solstue, som blev til køkkenet, ved toppen af planen. Det gamle køkken, nu en afslappet spiseplads, skal højre. Efter. Dette er de konceptuelle skitser (skalaen er lidt større end "før"-planens). Det nye køkken var en del af et mere omfattende renovering på første sal. Familien opgav sin formelle spisestue for at udvide det åbne køkken-alrumsrum, venstre. Loffredo og hendes familie boede i huset under renoveringer. Hendes bedste råd til at komme igennem det er at foregribe alle de måltider, du vil købe på restauranter og som takeaway. "Det lægger op, og du er nødt til at planlægge det som en del af budget," siger hun. "Heldigvis er mine børn tålmodige, og det lovede jeg dem ville jeg lave en masse gode måltider til dem i det nye køkken, når det var klar." Takeaways
Panal-front-apparater giver et kontinuerligt udseende.
Opgørelse af alt, hvad du skal bruge for at passe ind i din skabe er en vigtig del af planlægningsprocessen.
Med nutidens smart designede underskabe er du måske det kunne give afkald på nogle overdele, hvilket får et køkken til at virke luftigere og lysere.
Forlængelse af bordpladematerialet op ad væggen som en backsplash gør området nemt at rengøre.
Blanding af metaller holder tingene tidløse og klassiske.
Glem ikke at inkludere takeaway-mad i dit køkken ombygningsbudget.