Ugens køkken: Addition åbner op for en koloni

En arkitekt adskiller kogerummet fra børnerummet dette lyse og lyse Massachusetts køkken

Rummet var ganske tæt i denne Boston-områdets families Garrison Colonial. Så de hyret arkitekt Caitlin Struble til at designe en tilføjelse. Hendes design fordoblet køkkenets størrelse, bragte mere lys ind i køkkenet første sal og gav sikrere adgang til baghaven. Efter lyttede til, hvordan den travle familie på fem fungerede derhjemme, hun strategisk placeret en drikkevarebar og håndvaskestation til holde børnene ude af madlavnings- og forberedelseszonen. Hun også gennemtænkte, hvordan køkkenet skulle forholde sig til rummene omkring det.
KOW Winslow CaitlinFotos af
Et overblik over køkkenet
Hvem bor her:
Et par, deres tre små børn og deres hund
Placering:Needham, Massachusetts
Størrelse:250 kvadratfod (23 kvadratmeter)
Designere:Caitlin Struble af (arkitektur); Morgan Mackintosh og Nicole Keys af (indretning og foto styling)
Builder:
Før:Det eksisterende køkken var dateret og omkring halvdelen størrelsen på det nye køkken. Struble udvidede hjemmet ud over vaskevæg ses her. Hun færdiggjorde alle de arkitektoniske planer og køkkenindretningen. Indretningsarkitekterne hos Beige og Bleu Design Studio hjalp husejerne med finish og inventar.
"Først ville en af husejerne vælge alle finish hende selv. Men så skete pandemien, og hun var en børnelæge first responder med tre børn, så pludselig der var der ikke tid til det. Beige og Bleu Design slog ind og virkelig reddede dagen," siger Struble.

Husejerne henvendte sig til Servista for at hjælpe med at kommunikere deres stil præferencer. "Vi brugte Servista til at dele ideer i planlægningsfaserne og derefter i konstruktionsfasen for valg af finish," siger arkitekten. "Husejeren havde flere idébøger til hver plads og fortsatte med at tilføje dem i løbet af projekt." Andre rum tilføjet til huset var et familieværelse og mudderrum på første sal; en garage; og to soveværelser, to badeværelser og vaskerum på anden sal.
Familieorienteret tilføjelse og renoveringEfter:Dette billedet stemmer ikke overens med det forrige billede, så forestil dig det ydervæg på det forrige billede rammer cirka halvvejs igennem øens længde. Alt set mellem vandhanen og pejsen er en del af tilføjelsen.
Struble omhyggeligt zoneinddelt køkkenet ved at fokusere på den måde par kan lide at interagere med deres børn. Hvert barn har deres eget bordskammel. "Alt køkkenarbejdet foregår på den anden side af øen," siger hun. Øen indeholder en opvaskemaskine, affald udtræk og hverdagsopbevaring. Begge ender har også opbevaring. "De har en baby og to andre små børn, så enderne var et godt sted at stille legetøj og plastikkopper og sådan noget," siger Struble. Enderne giver også opbevaring til kogebøger.
Ud over køkkenet er dørene til det nye alrum nemt adgang til baghaven. "De havde ikke god adgang til deres baggård fra huset før og deres gade er travl. Del af projektet gjorde det mere sikkert. Vi tilføjede også et nyt dæk bagpå der," siger Struble.
Skabsmaling: Espan>grå Hvid,Sherwin-Williams; vægmaling: Bleg Eg, Benjamin Moore
Familieorienteret tilføjelse og renoveringDenne side af øen danner en let arbejdstrekant med vægovne på den ene side, køleskabet på den anden og rækkevidden og vask overfor hver andet imellem. Der er rigeligt med bordplads på begge sider af sortimentet, og skufferne under det er ergonomisk gryde og pande opbevaring. Grydefyldet gør det nemt at fylde gryder, mens de sidder på rækken. Det er nemt at dreje over til vasken over for rækkevidde for at dræne dem.
"Vi var heldige at få et vindue på denne væg, fordi rækkevidden væg er den eneste ydervæg i rummet," siger Struble. "Men de nye vinduer og døre i alrummet tilføjelse fylder køkken med lys."
Familieorienteret tilføjelse og renoveringMed køkkenet placeret i centrum af den nye åbne plan, Struble skulle skabe sammenhængskraft fra rum til rum. Det nye alrum er indenfor fuld udsigt over køkkenet, så hun brugte matchende mølleværk og vinduessæder med samme skuffeprofiler som køkkenet kabinet.
Familieorienteret tilføjelse og renoveringSer mod modsatte ende af huset er der en spisestue med en ildsted. Langs pejsevæggen er en egetræsdør, spisekammerskabe og en drikkevarebar.
Designerne hos Beige og Bleu blandede skabsfarver og metalfinish i køkkenet. "Vi endte med at gå med antik tinhardware - vi kunne godt lide, hvor tidløst det var uden at tage væk fra guldvedhængene over øen," indretningsarkitektMorgan Mackintosh siger. "Vi kan godt lide at blande metaller for at tilføje mere dimension i et rum."
Ø- og kabinetmaling: Sstardew, Sherwin-Williams
Familieorienteret tilføjelse og renoveringDet nederste skab på til venstre er et drikkevarekøleskab. "Placering af baren ud af arbejdet trekant hjælper med cirkulationen og gør det nemt for alle tag en drink," siger Struble. "Også vasker børnene deres hænder her." Den glaserede keramiske bagplade strækker sig til loftet bag specialfremstillede vinreoler i eg og en udstillingshylde.
"De vil oprette det her som en bar for fester, men det meste af tiden drikkevareskufferne er fyldt med juicebokse, som børnene kan gribe sig selv," siger Struble.
Backsplash-flise: Cloe,
Familieorienteret tilføjelse og renoveringStruble tilføjede disse indbygning som en fin overgang mellem baren i køkkenet og et væghængt tv i alrummet. Skabsprofilerne, fødder og farve matcher køkkenskabene. "Vi tilføjede disse indbyggede elementer som et ekstra omdrejningspunkt, fordi det er rart at have et omdrejningspunkt punkt, der ikke er et tv," siger Struble.
Familieorienteret tilføjelse og renoveringRenovationen også omfattede omdannelse af den eksisterende stue til spiseplads og åbner det op til køkkenet. "Deres stue var lille, og fordi de tilføjede et nyt familieværelse, var vi i stand til at transformere det ind i en spisestue," siger Struble. "Medmindre de griber en hurtig morgenmad eller frokost på øen, de har det meste af deres måltider i spisestuen. Det er slet ikke formelt."
Den strukturelle søjle markerer, hvor der tidligere har været en solid væg mellem køkkenet og dette rum. Struble fjernede væggen og tilføjet kabinet, der betjener begge sider. Spisestuesiden har opbevaring til fancy porcelæn, servise og sengetøj. Og disken fungerer som buffet, der betjener spisestuen. "Spisestuen er på en side af huset, der ikke får meget naturligt lys. Fjernelse af væggen bragte det delte lys ind fra tilføjelsen," Struble siger.
KOW Winslow CaitlinFør:Væggen bag køleskabet er den ene Struble fjernet for at åbne køkkenet op til spisestuen værelse.
Familieorienteret tilføjelse og renoveringEfter:Det nye mudroom plads er placeret langs siden af huset. Når skydedøren er åben, og der er en flot udsigt over en charmerende hollænder dør der fører til indkørslen. "Den hollandske dør er fantastisk, fordi de kan lukke vinden ind, men forhindre små børn og hunden fra at komme ud," siger Struble. En dør til højre for hollænderne døren åbnes til den nye garage.
Mudroom inkluderer en smuk skiferflise i et sildeben mønster. Og indbyggede skabe opbevarer overtøj, tasker og sko organiseret.
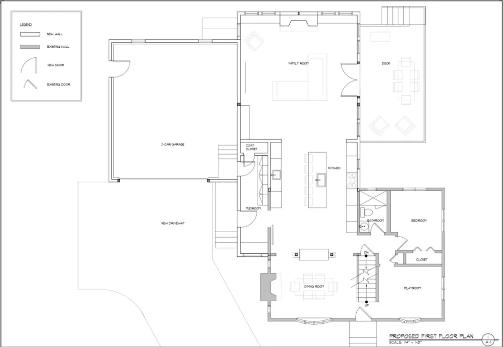
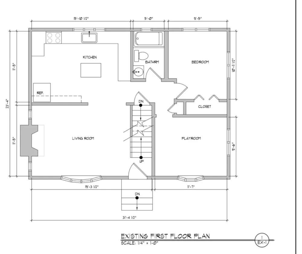
KOW Winslow CaitlinTil den eksisterende planløsning, ses det originale køkken i toppen venstre hjørne. Planen viser også væggen, der delte køkken fra den oprindelige stue (nu spisestue værelse).
KOW Winslow CaitlinDen ny tilføjelse begynder cirka halvvejs gennem det originale køkken, med alrummet øverst i planen. Mudderrummet tilføjelse løber langs venstre side af køkkenet. De levende værelse-vendt-spisestue er nederst i planen. Elementet mellem køkken og spisestue er den tosidede indbygning buffet.



# Renovering af lejlighed