Ugens veranda: Et indbydende rum til udendørs brug Underholdende

En ny veranda i Atlanta har et udendørs køkken, en spisestue værelse og en stue med pejs

Denne travle Familien i Atlanta-området elsker at hænge ud udendørs, og de ofte underholde i deres gårdhave. Men det kunne deres eksisterende bagdæk ikke rumme de store grupper, de gerne vil have over efter deres kickball-turneringer og meget mere. Så de hyrede lokalt design-build firma Renew Properties for at tilføje en stor veranda, der ville tjene som en behageligt sted mellem gården og hjemmets interiør.
"De har et barn i gymnasiet og et barn i mellemskolen, og vi havde for nylig afsluttet en renovering af deres første sal. Så en del af det var at ville have et rum, der ikke ville kræve så mange folk, der skal hænge ud inde i huset," projektleder Lindsey Parker siger. Det nye rum har et udekøkken, en smuk pejs og hyggelige rum til spisning og slapper af.
Ugens veranda: Forny DunwoodyFør FotoBilleder af Kelley Klein Photography
Et overblik over verandaen
Hvem bor her:Et par og deres to børn
Placering:Dunwoody, Georgia
Størrelse:530 kvadratfod (49 kvadratmeter); 20 gange 26½ fødder
Designer og bygherre:
Indretningsarkitekt:
Før:Det eksisterende dæk var placeret på bagsiden af hus. Det var ikke stort nok til at rumme grupper af voksne og teenagere, som husejerne kan lide at være vært for.
"Denne familie ønskede en udvidelse af deres primære boligareal med en indendørs-udendørs følelse og et forhøjet design," Parker siger.
Dunwoody RemodelEfter: Den ekspansive nye veranda, måler 20 gange 26½fod, erstattede dækket. Der er en spiseplads ved siden af udendørs køkken, bar siddepladser at med udsigt over gården og et opholdsområde omkring en pejs. Trinn ved siden af udendørskøkkenet fører ned til gård.
Husejerne var allerede bekendt med deres entreprenører, som havde for nylig renoveret stueetagen. Entreprenørerne delte andre projekter på Servista med dem for at give dem en fornemmelse af materialer, de måske vil bruge. "De ønskede, at det skulle have følelse af en stue," siger Parker. "Det betød at gøre det raffineret, luftig, komfortabel og beboelig." Den forhøjede stil kommer ind gennem afslutningerne. Disse omfatter en not og fer loft med indbygget belysning, hvidmalet mursten og premium behandlet træterrasse bejdset, så det ligner naturligt hvidt egetræ. "Vi specialblandet en plet for at holde røde og orange toner i skak," Parker siger.
Familien ønskede også at kunne forlænge verandasæsonen så længe som muligt. En infrarød varmeovn hjælper med at opvarme verandaen under koldere måneder, mens loftsventilatorer giver brise i sommer.
Infrarød varmelegeme:

Dunwoody Remodel"Vi placerede udekøkkenet ved kant, så eventuel røg fra grillene ville gå ud mod gård," siger Parker. Husejernes ønskeliste inkluderet en Big Green Egg-grill, en propangrill og rustfri ståludstyr som en vinkøler, en skraldespand og skuffer.
En hvid mursten indbygget base omkring disse elementer matcher hjemmets ydre. Bordpladerne er udendørs klassificeret kvarts ligner lædergranit. Den er UV-klassificeret, hvilket betyder, at den er mørk farve falmer ikke i sollys.
Bordplader:

Dunwoody RemodelI den modsatte ende af verandaen er udendørs stue. En sten pejs fungerer som en smuk fokuspunkt. Den har en støbestensramme og en kalkstensmantel og ildsted.
Vægmonterede lanterner på hver side af pejsen tilføjer en blød mulighed for belysning. Og kobberpatinaen bringer varme til plads. Indretningsfirmaet Linen & Flax hjalp husejerne vælg møbler og tilbehør. En blanding af teksturer, bl.a forvitret træ, flet, beton og linned, giver verandaen en organisk look og en afslappet følelse.

Dunwoody Remodel"Vi havde malet murstenens ydre af deres hjem hvid under en tidligere renoveringsfase, så de ville have et hvidt murstenselement på verandaen," siger Parker. Hun gav det til dem i form af smukt buede vægge, der flankerer skorsten.
Dette var et af de mere udfordrende elementer konstruere, og de krævede, at der skulle hældes fod under dem for støtte. Disse vægge giver privatliv fra huset ved siden af samtidig med at der er mulighed for luft og udsigt gennem åbningerne. Og deres kurver bidrager til verandaens raffinerede se.

Dunwoody RemodelDen Bænkesæder langs pejsevæggen klappes op, så puder kan gemmes væk i pollensæsonen. Til højre en slank bar fungerer som drikkevareafsats. Dette er et godt sted at se nogen aktivitet, der foregår i baghaven.
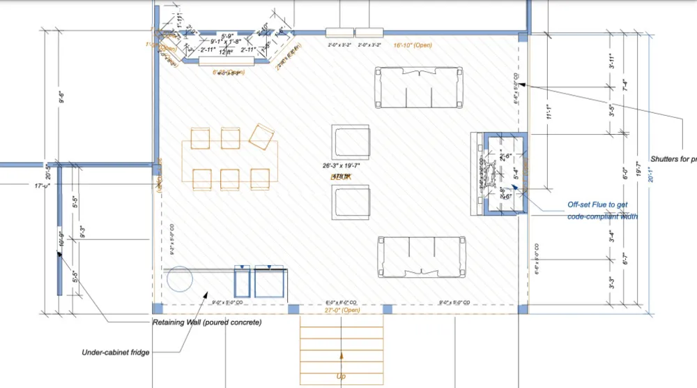
Ugens veranda: Forny DunwoodyHer er planen for det nye veranda. Nederst ses trappen til baghaven. Det pejs er i højre side, og udekøkkenet er i nederste venstre hjørne.

Mere om Servista


# Renovering af lejlighed