Varm moderne stil til aktive tomme føddere

Et designfirma overvejer et pars kærlighed til sollys og planter, når de planlagde deres nye hjem

Dette par havde elsket bor i byen Minneapolis, inden han flyttede til forstæderne til opdrage deres familie. Da deres børn flyttede ud, var de det klar til at flytte tilbage til byen og nyde byvandringen og cykelstier, de elskede. Og mens de havde nydt havearbejde kl deres forstadshjem, var de klar til en ejendom, der var nemmere at vedligeholde.
Startende fra bunden med en ny bygning, vendte de sig til arkitektonisk designer Jim Scott fra Locale Design Build. Scott satte sig ind i deres stil og lærte, at de elskede moderne linjer, højt til loftet, planter og naturligt lys. Han opdagede deres yndlingskunstværker og -møbler. Og han designede et hus, der omfavnede de elementer og andre ting, de elskede.
Linden Hills RedoFotos af
Et blik på huset
Hvem bor her:
Et par
Placering:Minneapolis
Størrelse: Omkring 3.000 kvadratfod (279 kvadratmeter)
Design-build team: Jim Scott og Bill Nagel af
Ved konfiguration af det ydre, bydelens tilbageslag og nabohuse informeret Scott og partner Bill Nagel. "Det her er en lang, smal grund, så huset løber stort set fra tilbageslag foran til tilbageslag bagi," siger han. Det lang gavltaglinje til venstre løber også forfra og bagud og fungerer godt med skalaen og massen af det høje nyere hjem næste dør. De nederste taglinjer og verandaen reagerer på 1½-etagers hjem fra 1940'erne til højre.

Linden Hills RedoTidligere en skråning, der var for stejl for græs til at vokse var mellem fortovet og den forreste græsplæne. Scott afbød skråningen med terrasser kantet i Cor-Ten stål. De giver et moderne lineært element langs forhaven og forstærke de stærke vandrette taglinjer.
"Terrasserne er med til at få ejendommen til at føles åben og indbydende," siger Scott. "Og de giver en fin adskillelse mellem de fortovets og det private rums offentlige rum."
Verandaloftet er klart lodret-kornet cedertræ.
Linden HillsDette er udsigten fra den forreste indgang. Det her gang er åben til køkkenet til venstre og det store værelse og spisestue til højre.
"Boligejerne ville rigtig gerne have en fornemmelse af alle rummene forbinder," siger Scott. "Og de elsker naturligt lys. De ville oversvømme huset med dagslys." Ud over store vinduer, glasdøre og præstegårdsvinduer i værelserne trappeopgang fungerer også som lysbrønd. Alle vinduer, døre og isolering er høj effektivitet og står op til Minnesota winters.
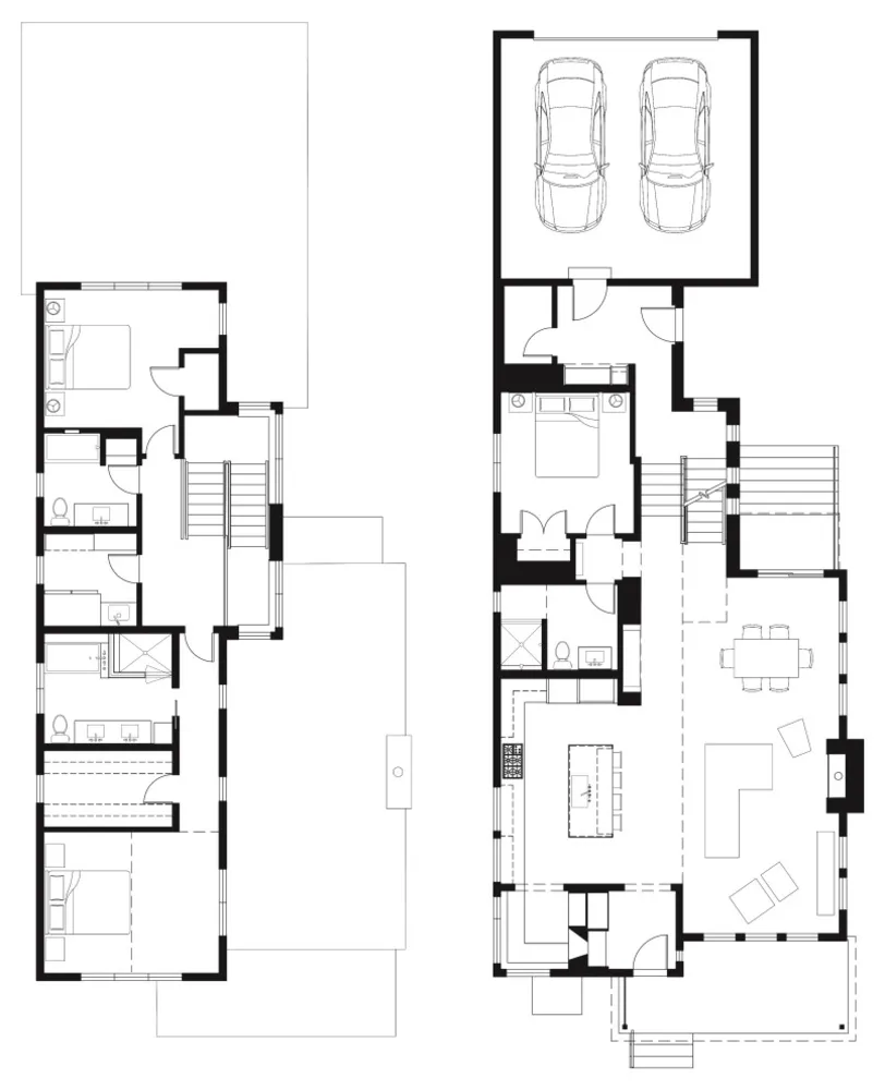
HT Locale Design BuildDen anden historie (til venstre) er placeret under sadeltaget. Det indeholder en master suite og et gæstesoveværelse og badeværelse.
Til højre er det nemt at matche første sal med forrige billede. Værd at bemærke er placeringen af planterummet (forreste venstre hjørne) og mastersuiten på første sal. Det trappeopgang fører ned et par fødder til et mudroom område og garage. Garagen, der ligger ud for en baggyde, er hovedvejen husejere går ind i boligen.
Linden Hills"Dette er en bygrund, så vi var nødt til at balancere lys og privatliv," Scott siger. De rektangler af vinduer, pejs og pejs surround er en del af en behagelig komposition. Han kendte størrelserne på tv'et, højttalere og mediekonsollen, når huset skal designes, og deres rektangulære former fungerer som en del af kompositionen. Han placerede pejsen og TV strategisk - vinduer i de pletter ville ikke have tilbudt meget privatliv. Til højre ses verandaen og højden over fortovet tilbyder privatliv fra gade. Og garderobevinduer er en smart måde at få lys på uden at ofre privatlivets fred.
Pejsen er en fuld finersten, der er 4 tommer tyk. "Min kunder elsker materialer og ønsker at forblive tro mod naturen når som helst muligt," siger han. Mantelen er et slankt stykke pulverlakeret stål.
Linden HillsNår han gør status over sine kunders favorit møbler, noterede Scott sig de europæiske bøgestykker, de havde planlagt til brug i det nye hjem. Det er skabene i køkkenet altså kvartsavet dampet europæisk bøg. Dale Chihuly-maleriet på venstre påvirkede lyse farvevalg fra tidligt i proces.
Bordpladerne er perlemor kvartsit. Dette er en meget hård natursten med smukke åremønstre og en varm, let tone. "Disse husejere elsker rene moderne linjer, men de elsker også tanken om taktil - at røre ved og føle sig anderledes teksturer," siger Scott. Gulvene er af rød birk.

Linden HillsEt af de mindste rum i hjemmet er også en af de mest personlige og betænksomme. En af de husejere elsker at have, men der var så mange haver på forstæder hjem, at hun ønskede at ringe det tilbage. De forreste terrasser er lav vedligeholdelse, og der er ikke meget plads til yderligere haver i gården. Og hun ville gerne kunne nyde planter indendørs året rundt. Så Scott designede dette planterum, og det er det et yndlingssted. Den multifunktionelle alkove er placeret ud for køkken i boligens forreste hjørne. Det nyder tonsvis af naturligt lys takket være hjørnevinduerne.
Pladsen fungerer som et spisekammer, og husejerne fik ham til at lave plads til mikroovnen herinde, fordi de ikke gad kigge på det i køkkenet. Bøgeskabet og perlemor kvartsit bordplader fortsætter fra køkkenet ind i anlægget værelse. Scott tilføjede en 9 tommer dyb afsats, der omslutter det højre hjørne så planterne kunne bade i det naturlige lys. Til højre han arbejdede cubbies ind i kabinettet til kogebøger og havearbejde bøger.

Linden Hills RedoI midten af bogen er cubbies en overraskende åbning. Vinklede sider tvinger perspektivet hen over forreste gang mod et lille udvendigt vindue. Gennem vinduet og på tværs af verandaen indrammer det bare naboen naboens flag, som var serendipitøst.
Linden HillsScott planlagde dette sted for 3D-kunst af Patrick Hughes. "Når du går forbi og ser på det, ændrer det sig. Vi designet dette rum med dette stykke i tankerne," siger han.
Hans trapperumsdesign opfylder boligejernes ønsker om åbent, lyse, højloftede rum. Det vasker rummet med naturligt lys. Det hvide loft, der ses her, er bunden af et drama udkragning over rummet. Trappen ned fører til mudderrummet og garage og videre ned til kælderen. Åbningen til venstre fører til en mastersuite på første sal, som de bruger som gæst suite. Dette alsidige rum kan også bruges som et kontor eller en den.
Linden HillsDette er pulverrummet, som også tjener som et komplet badeværelse til soveværelset på første sal. Det flydende forfængelighed, backsplash og spejl er alt sammen et strømlinet stykke inkorporerer paletten af europæisk bøg og kvartsit.
Linden HillsDette mudderrum er et par trapper ned fra stueetagen, hvilket giver en repos zone lige inden for garagen. Gulvet her er et porcelæn der ligner sten. Det slidstærke materiale modstår snavset støvler og sportsudstyr. Skabet af bøg og kvartsit varsler, hvad der skal komme ovenpå.
"Dette par er meget aktive, og de elsker at cykle og stå på ski," Scott siger. Døren til højre fører til et walk-in closet, der giver plads til sportsudstyr og varer uden for sæsonen.
Linden Hills RedoDet udendørs opholdsrum er i sidegården, med trin, der fører til spisestuens dobbeltdøre. Det pulverlakeret stålrækværk matcher det indvendige gelænder, minus trægelænderet. Et udhæng med klar lodret cedertræ og lys giver beskyttelse over disse døre. Til højre ses en dør, der fører til mudderrummet. Firkantede vinduer tilføjer en legende røre ved trappeopgangen.
Linden HillsDette trapperumsvinduer er et godt sted for planter at suge i nogle sollys.

Linden HillsOmrådet set i nederste højre hjørne af dette foto kantilevers over hallen nedenunder.
Rækværket er specialdesignet af Scott. Ligesom kaminen, de er pulverlakeret stål, men han dækkede dem med samme røde birketræ brugt på gulvene. Dette går tilbage til husejernes kærlighed til teksturer. "Vi kunne have brugt metal på gelænderet, men i stedet brugte vi det blødere, varmere materiale af træ," han siger.
Linden HillsParret bruger master suite på anden sal. Badeværelset har et kar med en niche, der løber langs hele dens længde. Flisen har rene moderne linjer og den surround er hvid Macaubas kvartsit.
Linden Hills RedoDette billede viser, hvordan det store lysarmatur i opgangen kaster interessante skygger rundt om væggene og loft.


# Renovering af lejlighed