Eine Küche aus den 1950er Jahren erhält ein wunderschönes, elegantes Update

Industrielle Materialien, klare Linien und grifflose Schränke verleihen einer offenen Küche ihren zeitgemäßen Look Architektenpläne für ein erweitertes Erdgeschoss und a Umgebautes Layout, die Besitzer dieses Hauses aus den 1950er Jahren in der Nähe von Oxford, England, wandte sich der Küche zu. "Das ursprüngliche Anwesen war ein kleines Haus, das inzwischen komplett umgebaut wurde und verlängert, mehr als verdoppelt", sagt Lindsay Anderson von Nachhaltige Küchen. "Wir haben mit den Eigentümern an der Gestaltung gearbeitet die Küche, begehbare Speisekammer [Schlammraum] und Hauswirtschaftsraum."
Zeitgenössische graue IndustriekücheFotos von Charlie O’Beirne von
Küche auf einen Blick
Wer lebt hier: Ein berufstätiges Ehepaar mit zwei Personen Kinder
Ort:Witney, England
Größe:215 Quadratfuß (20 Quadratmeter)
Designer: und Woodfield Brady Architects
Die neue Küche im Erdgeschoßanbau ist Teil einer offene Küche, Ess- und Sitzbereich an der Vorderseite des Haus. "Die Eigentümer wollten eine klare Ästhetik mit einem industriellen Charakter Element des Designs, das das Zeitgenössische, Minimalistische widerspiegelt Aussehen des Rests des Hauses", sagt Andersons.
Die begehbare Speisekammer versteckt sich hinter der Schiebetür auf der linken Seite. "Es verfügt über Eichenschränke mit offenen Schubladen und freiliegende Regale, plus umlaufende Wandregale und LED-Leuchten", fügt sie hinzu.
Zeitgenössische graue IndustriekücheHellgraue Schränke, Küchengeräte aus Edelstahl und Quarz-Arbeitsplatten in Betonoptik Erstellen Sie den eleganten Look, den die Besitzer wünschen.
"Die Flachtüren sitzen in einem Rahmen, und die Griffe sind es in die Türen und Schubladen geleitet", sagt Anderson. "Die Besitzer wollten einen zeitgemäßen industriellen Look, also haben wir die Schränke gestrichen grau und baute ein mit Edelstahl umwickeltes Gerätegehäuse."
Die Schrankkästen und Fronten sind aus Birkensperrholz gefertigt, während die Schrankrahmen sind aus massiver Eiche.
Kabinettfarbe Purbeck Stone:

Moderne Industrieküche in GrauEin maßgefertigter Edelstahl Box beherbergt den eingebauten Kühlschrank und Ofenturm. "Das Gerät cube ist mit Edelstahl verkleidet, der immer ein paar liefert Herausforderungen", sagt Anderson. "Es ist ein Look, den Kunden lieben, aber es kann sehr kompliziert zu erreichen sein."
Ofen SF6372X und Kombi-Ofen-Mikrowelle SF4390MCX: Smeg; Kühlschrank: Liebherr
Zeitgenössische graue IndustriekücheEine zentrale Insel war der Schlüssel zum Fluss und Layout der Küche. Es misst 58¼ um 52½ Zoll, mit einer Frühstücksbar entlang einer Seite für Casual Dining.
"Das Eichenholz-Interieur der Frühstückstheke wurde gelaugt, das Grau der Schränke widerspiegelt", sagt Anderson. "Weiße Holzlauge wirkt aufhellend und stoppt den Orangestich des Holzes [von] durchkommen. Es wird oft verwendet, um ein helles zu erstellen Skandinavischer Look."
Die Arbeitsplatten sind ein technischer Quarz, der das Aussehen hat Beton, aber mit einer haltbareren Oberfläche.
Grigio Concreto Quarz-Arbeitsplatten:
Zeitgenössische graue IndustriekücheZusätzlich zu Schublade und Schrankaufbewahrung sowie Steckplätze für Tabletts und Schneidebretter, die Multifunktionsinsel beherbergt ein extrabreites Induktionskochfeld mit Edelstahlverkleidung.
Eine große Dunstabzugshaube aus Edelstahl, die über dem Kochfeld eingebaut ist entfernt effizient unerwünschte Kochgerüche.
EH975MV17E Induktionskochfeld: Siemens; Stella Dunstabzugshaube: Falmec
Moderne graue IndustriekücheAbgesehen von der Höhe Gerätekasten, die Schränke bleiben auf Sockelniveau, wodurch ein leichteres, helleres Gefühl in der Küche.
Die Umfassungsschränke umfassen Stauraum, ein Waschbecken, ein integriertes Mülleimer und eine Spülmaschine. Ein eingebauter Weinschrank steckt hinein eine Seite der Insel.
"Der Hauswirtschaftsraum enthält den Gefrierschrank, den Waschtrockner und [Wasser Heizung], während die begehbare Speisekammer die meisten Lebensmittel bereitstellt Lagerung", sagt Anderson. "Dadurch konnte der Küchenbereich sein Ziemlich minimalistisch und ohne Oberschränke, was manchmal geht einen Raum schließen."

Moderne Industrieküche in GrauMattweiße U-Bahn-Fliesen mit dunklen Fugen verstärken die moderne industrielle Atmosphäre.
Phoenix Heißwasserspender in poliertem Nickel:
Zeitgenössische graue IndustriekücheIndividuelle Besteckschubladen in die insel schafft platz für alle utensilien.
Die Taschentür zur begehbaren Speisekammer lässt sich schließen, um das zu verbergen Inhalt; Wenn es geöffnet ist, löst es Scheinwerfer aus, um das zu beleuchten space.
Moderne graue IndustriekücheDank einer Ergänzung und erhebliche Umbauarbeiten, die Küche ist Teil einer offenen Koch-, Ess- und Sitzplatz, und die Insel überschneidet sich mit der Essbereich.
Große, dunkelgraue Keramikfliesen, erwärmt durch Fußbodenheizung, bedecken die Erdgeschossfläche.
Zeitgenössische graue IndustriekücheEin niedriges integriertes Sideboard (Entworfen vom Architekten und gebaut vom Bauunternehmer) verbindet diesen Bereich mit dem Wohnzimmer.
Auffällige gelbe und blaue Sitzgelegenheiten verleihen dem Restaurant eine fröhliche Farbe Industriedesign, während der zentrale Holzofen eine gemütliches Ambiente in der kalten Jahreszeit.
Zeitgenössische graue Industrieküche Ein Eingang links davon Das Sideboard führt zu einem ebenfalls gestalteten Mudroom und Nutzraum von Sustainable Kitchens.
Zeitgenössische graue IndustriekücheDer Mudroom bietet zusätzlicher Stauraum mit Schränken, offenen Regalen, einer Schuhecke, Kleiderhaken und eine Aufbewahrungsbank.
"Die Schränke passen zu den Kücheneinheiten, während die [Arbeitsplatte] und Garderobenständer sind in der gleichen weiß gelaugten Ausführung behandelt wie die Einrichtung der Frühstücksbar", sagt Anderson.
Zeitgenössische graue IndustriekücheHier ist ein Außenfoto des Hauses, das vier Schlafzimmer und vier hat Badezimmer.
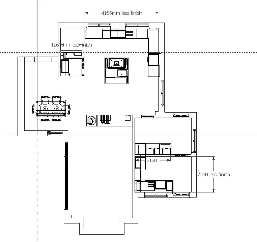
Contemporary Grey Industrial KitchenEin Plan des Erdgeschosses zeigt die Küche und Speisekammer an der Spitze, die zum Essen führt Bereich und Wohnzimmer, mit dem Mudroom und dem Hauswirtschaftsraum zum richtig.
|||||||||||