Küche der Woche: Industriell trifft auf eleganten Italiener Stil

Sorgfältig ausgewählte Ausstattungen und Oberflächen ergänzen das Original Besonderheiten in einer umgebauten Fabrik aus dem 19. Jahrhundert

Im Jahr 2005 wurde a Ehepaar kaufte dieses Haus in New Jersey, das von einem umgebaut wurde Fabrik, in der früher Schiffsmotoren und andere Produkte hergestellt wurden. Aber als ihre Familie auf sechs wuchs, platzte ihr Haus am Boden Nähte. Sie liebten ihr Zuhause und ihre Nachbarschaft und wollten es dass es funktioniert, egal was passiert, was eine gute Sache war, denn Der Anbau an das denkmalgeschützte Gebäude war kein leichtes Unterfangen. Der Die Neugestaltung dauerte aufgrund ihrer sorgfältigen Bemühungen mehrere Jahre originale Fabrikmerkmale im Innenbereich erhalten und die Fassade restaurieren des Gebäudes in den Zustand von 1889. Die neue Küche fügt eleganten italienischen Stil hinzu und bleibt gleichzeitig anmutig im Hintergrund, sodass die einzigartigen ursprünglichen Merkmale des Hauses erhalten bleiben Mittelpunkt.
Jersey City Historical HouseFotos von Alexander Severin Fotografie

Küche auf einen Blick
Wer lebt hier:
Eine sechsköpfige Familie
Standort:Nord-New-Jersey
Größe: 23 Quadratmeter (256 Quadratfuß)
Designer: (Küchendesign), Fogarty Finger (Architektur) und (Innenarchitektur)
"Die Hausbesitzer lieben das Haus so sehr. Obwohl sie es hatten ausgewachsen, wollten sie herausfinden, wie sie bleiben könnten", sagt sie Amir Ilin von ihrer Küchendesignfirma Kuche+Cucina. Das Zuhause war vor dem von einem Architekten in ein Wohnhaus umgewandelt worden aktuelle Hausbesitzer kauften es.
Vor ihrer kürzlichen Renovierung und Ergänzung hatten sie alte ausgegraben Fotos des Gebäudes im Originalzustand und restauriert Fassade entsprechend. Die Renovierungsarbeiten umfassten einen dreistöckigen Hinzufügung auf der Rückseite, die eine Master-Suite der zweiten Ebene enthält, eine Erweiterung der Hauptebene und eine begehbare Gartenebene darunter Es. Dieser Zusatz ist von der Straße aus nicht sichtbar.
Zuvor hatten sich die Vordertüren zu einem langen schmalen Korridor geöffnet und Die Schlafzimmer befanden sich in diesem vorderen Bereich des Hauses. Das neue Darüber hinaus ermöglichte die Familie, diese privaten Räume in die zu verlegen Rückseite des Hauses und die öffentlichen Bereiche nach vorne in einem offenen Bereich. "Sie lieben es, große Gruppen zu unterhalten – sie haben 20 Leute zum Abendessen vorbei – und sie haben vier Kinder", sagt Ilin. Fogarty Finger entwarf das neue Layout und die Ergänzung Kuche+Cucina entwarf die Küche und Leah Almog-Arazi von Oor Design Build arbeitete mit den Hauseigentümern an der Innenarchitektur. Diese Gruppe hatte haben im Laufe der Jahre an vielen Projekten mitgearbeitet, so dass sie bereits gut zusammengearbeitet. "Und die Hausbesitzer wussten wirklich, was sie wollten wollte, was es sehr einfach machte", sagt Ilin.
Die ursprünglichen Balken und Sparren definieren den Raum. Nachdenklich ausgewählte Leuchten – ein skulpturales Industriestück über dem großer Esstisch auf der rechten Seite und ein Trio von großen glänzenden weißen Anhänger über der Insel – betonen die Architektur.

Historisches Haus in Jersey CityWährend der Renovierung sie sorgfältig die ursprünglichen Merkmale des Hauses erhalten, einschließlich der Holzbalken und Sparren, der schönen Säulen und industrielle Elemente wie die Metallstange und Zahnräder. Vieles davon musste währenddessen demontiert und vorsichtig wieder eingebaut werden Konstruktion. Das Küchendesign ist zwar elegant und schön, benötigt, um die ursprünglichen Funktionen zu ergänzen und in der zu bleiben Hintergrund.
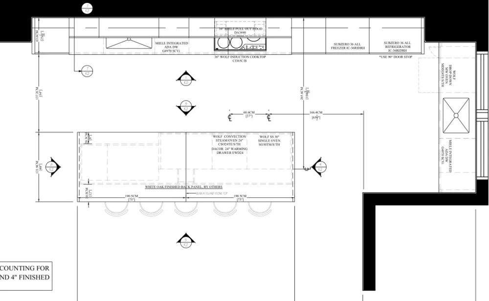
Moderne Schränke der italienischen Firma fügen sich in die Rückwand ein. Ilin tarnte die Geräte auf zwei Arten. Er gebrauchte Blendenfronten an den Geschirrspülern (links neben dem Main Waschbecken und rechts neben dem Waschbecken unter dem Fenster) und weiter der integrierte Kühl- und Gefrierschrank (am äußersten rechten Ende des Schränke). Er platzierte die anderen außer Sicht – einen Ofen und einen Konvektionsdampfgarer stehen nebeneinander auf der Arbeitsseite des Insel, und er steckte die Mikrowellenschublade in den Bereich unter der Fenster. Der Induktionsherd passt sauber entlang der Theke, mit seine Abzugshaube wird von passenden Blenden über dem Kopf verdeckt.
Die schlichten modernen Pendelleuchten harmonieren mit den Lichtfarben entlang der gleichen Sichtlinie. Ihre Schnüre und Drähte nicken einander zu Industrieelemente, die von der Decke hängen.
Der Bereich unter dem Fenster war für harte Arbeit gemacht. Es ist eine Zone das ist dem Koch nicht im Weg und von den meisten nicht sichtbar andere Räume. Dieser Bereich verfügt über eine Mikrowelle, eine Kaffeemaschine und einen zweiter Geschirrspüler. "Dies ist ein guter Ort für sie, um das zu stapeln schmutziges Geschirr, wenn sie unterhaltsam sind, weil es nicht drin ist Blick auf den Speisesaal", sagt Ilin. Das durchsichtige Fenster Behandlungen lassen das Licht herein und bieten gleichzeitig Privatsphäre. Und sie lenken nicht von der restaurierten historischen Fassade ab die Straße.

Historisches Haus in Jersey CityDie Insel ist eine große Aussage Stück, das einen Übergang zwischen der Küche und dem herstellt Essbereich. "Die marmorne Wasserfalltheke gibt ihm ein Möbelstück Schau mal", sagt Ilin. Ein herausragendes Merkmal ist die schöne Äderung der Carrara-Marmor, der durch die Wasserfalltheke und die zur Schau gestellt wird Rückwand. Aber die Theken entlang der Schrankwand und in der Arbeitsbereich unter dem Fenster sind ein einfacher weißer Quarz, der kann vielen Aktivitäten standhalten.
Ilin setzte einige der gleichen Materialien in der Küche fort von den Architekten vorgegeben. Die cerused Eiche auf der Insel ist wiederholt sich in anderen Räumen und schafft so einen Zusammenhalt im ganzen Haus. Die schwarzen Deckenleuchten und die originalen Betonböden, die wurden gebeizt und poliert, sorgen auch für Kontinuität im gesamten öffentlichen Räumen.
Jersey City Historical HouseDie Schränke sind ausgestattet mit intelligente Organisatoren wie Regale für Öle und Gewürze, Besteck Einsätze, Müll- und Recyclingauszüge und Auszugböden für Töpfe und Pfannen. Der Vorratsschrank auf der linken Seite der Küche hat ausziehbare Chromkörbe und rechts den Vorratsschrank lässt sich vollständig in einem Stück herausziehen, um einfachen Zugriff auf Gegenstände zu ermöglichen hinten verstaut.

Historisches Haus in Jersey CityHier ist der Blick aus der Küche zur Rückseite des Hauses. Die ursprünglichen Beiträge beschreiben a Flur für den Verkehr. Die neue Treppe führt in die zweite Etage den Anbau sowie die neue untere Ebene darunter. Der Flur führt zu den anderen privaten Räumen im Haus, einschließlich des Rests der Schlafzimmer.
KOW AmirDieser Grundriss verrät, wo die Geräte in der Küche versteckt sind.


# Wohnung renovieren