Küche der Woche: Modernes Bauernhaus mit offener Optik

Ein Designer überarbeitet das Küchenlayout und die Aufbewahrung in a historisches Kolonialhaus in Scarsdale, New York

Grace Lin und Warun Kumar wollten holen Dinge richtig. Sie verbrachten Jahre damit, die Renovierung ihres Hauses zu planen historisches Kolonialhaus in Scarsdale, New York, einschließlich Verlegung der ursprünglichen Küche auf die gegenüberliegende Seite des Hauses um näher an einer neueren Garagenerweiterung zu sein. Nach dem Abriss begann, traf sich das Paar mit der Designerin Sarah Robertson, die sie gefunden auf Servista, um sich auf die Küche zu konzentrieren. Aber mit Blick auf 3D Mockups erfuhren sie, was in ihrem neuen Zuhause alles möglich ist Plan entsprach nicht ganz der Küche, von der sie geträumt hatten. So Sie gingen zurück zum Reißbrett, und Robertson hörte nichts von dem Paar für mehrere Monate.

Modernes Bauernhaus mit bewegter VergangenheitFotos vonAdam Kane Macchia
Küche auf einen Blick
Wer lebt hier: Grace Lin, eine Verhaltenstherapeutin; Warun Kumar, der im Finanzbereich tätig ist; und ihre drei Kinder im Alter von 4, 8 und 9.
Ort: Scarsdale, New York
Größe: Etwa 38 Quadratmeter (405 Quadratfuß); 27 zu 15 Füße; Es gibt auch einen angrenzenden 8 x 13 Fuß großen Frühstücksbereich
Designer: Sarah Robertson von
Interessant: Das Haus gehörte einst Walter Winchell, ein berühmter Zeitungs- und Radio-Klatschkommentator in der 1930er und 40er Jahre.
Als sie sich erneut an sie wandten, hatten Lin und Kumar neu gezeichnet Teil des Hauses und änderte den Fundamentplan um a Ausbau-Zusatz zur Küche, der 100 Quadratmeter hinzufügte. Das änderte alles und gab dem Paar ein offeneres Gefühl gesucht, zusammen mit mehr Schränken und Platz für einen Essbereich.
Nachdem der Grundriss endlich festgelegt war, bekamen das Paar und Robertson um den Schnickschnack hinzuzufügen, für den der Designer bekannt ist in ihren Küchen: maßgeschneiderte Staufächer für Dinge wie Schneidebretter, Gewürze und Brot; Auszüge für Müll u Recycling; und mehr.
Eine fast 13 Fuß hohe Insel verankert die Long Küche und verfügt über eine Arbeitsplatte aus Quarzplatten, die so aussieht Calacatta-Marmor und geht in eine gebeizte Rift-Eiche über Arbeitsplatte.
Auf dieser sichtbaren Seite der Insel befindet sich ein vertikaler Ablageschlitz für a Großes Serviertablett teilt zwei 30-Zoll-Gefrierschubladen. Robertson beschloss, den Gefrierschrank hier zu platzieren, damit sie einen benutzen konnte Einzelkühlschrank links neben der Spüle, die erlaubte ihr, die volle Größe des Fensters beizubehalten. "Sie Verwenden Sie nicht so oft Gefriergeräte, also musste es nicht in einem sein Top-Lage", sagt sie.


Modernes Bauernhaus mit bewegter VergangenheitDie Tür zu links von der Kühlschranksäule gelangt man zum sonnigen Frühstück Ausstoß.


Modernes Bauernhaus mit bewegter VergangenheitKumar verbracht viel Zeit, um nach dem richtigen Sortiment zu suchen und sich schließlich festzulegen ein BlueStar in Stahl, Schwarz und Altmessing, der gut funktioniert Die andere Küche ist fertig. Die schwarz-messingfarbene Dunstabzugshaube ist Benutzerdefiniert.
Ein Dampfofen befindet sich am Ende der Insel gegenüber Bereich. Die Mikrowelle befindet sich auf der gegenüberliegenden Seite der Insel Kühlschrank.

Modernes Bauernhaus mit bewegter VergangenheitLin’s Servista Ideenbücher enthielten viele Fotos von bläulich-grauen Schränken, aber a Farbberater schlug ein Grau vor, das grünlich-gelblich war Untertöne und sie ging damit. "Ich habe mir darüber Sorgen gemacht, bis an dem Tag, an dem es hochging, und dann dachte ich: ‚Oh mein Gott, es ist wunderschön", sagt Lin.

Gehäusefarbe: Rockport Grey, Benjamin Moore

Modernes Bauernhaus mit bewegter VergangenheitDas Schubladenfrontprofil ist eines der charakteristischen Designs von Robertson. "Dieser dünne erhöhte Rahmen macht alles sauberer, einfacher und leichter", sagt sie. "Es ist wie das, was Sie gewohnt sind, mit einem Perleneinsatz zu sehen, aber es ist sauberer und moderner."

Modernes Bauernhaus mit bewegter VergangenheitMehrere Auszüge für Reinigungsmittel, Müll und Recycling finden sich unter einem großen Edelstahlspüle nach Maß.
Benutzerdefinierter Papierkorbauszug mit zusätzlichem AufbewahrungsbehälterRobertson selten gestaltet eine Küche heutzutage ohne eingelassenes Küchenpapier Halter wie hier über den Wertstofftonnen.
Um eine gute Vorstellung von einer Küche von Sarah Robertson zu bekommen, haben Lin, Kumar und Robertson besuchte eine ihrer früheren . Dies gab dem Paar die Gelegenheit, individuelle Schränke zu sehen und zu fühlen und zu erleben Grundrisse und stellen Sie dem Hausbesitzer eingehende Fragen zu den Umbauprozess, was zu erwarten ist und ob es irgendwelche Dinge gab sie hätten sich geändert. "Sie spüren, wie der Schrank fertig, offen und offen ist Schließen Sie die Schubladen, interagieren Sie mit den Details der Fräsarbeiten und gehen Sie herum, um ein Gefühl dafür zu bekommen, wie über die Aufbewahrung nachgedacht wurde", sagt Robertson. "Dinge, die man nicht aus Fotos bekommen kann."

Brotschublade --Modernes Bauernhaus mit bewegter VergangenheitRobertson ist auch für maßgefertigte Schubladeneinsätze bekannt. Hier ein Edelstahl Brotkasten ist in einer Schublade am Fuß einer Arbeitsplatte untergebracht Kabinett. Gehäusebau ist auch ein Robertson Markenzeichen."Die handwerkliche Qualität ist wunderschön Zeug", sagt Lin. "Die Liebe zum Detail und die Qualität des Holzes fällt wirklich auf."

Vertikale Schubladenaufbewahrung mit benutzerdefinierten Ablagen und PfannenEine Schublade an das ende der insel gegenüber der reihe vertikal speichert Backbleche und Topfdeckel.

Modernes Bauernhaus mit bewegter Vergangenheit Ein sekundärer Kabinettbereich verfügt über hohe Aufbewahrungsschränke für Besen und Überlaufaufbewahrung für Glaswaren.
Modernes Bauernhaus mit bewegter Vergangenheit Das Netz auf einigen der Schränke hatten ursprünglich eine glänzende Oberfläche, aber Lin wollte es so erscheinen abgestumpft. Sie und Robertson verbrachten einen Nachmittag in der Garage Schwarze Sprühfarbe auf die Hardware auftragen und abpolieren mit Stahlwolle, um ein antikes, bronzefarbenes Finish zu erhalten.
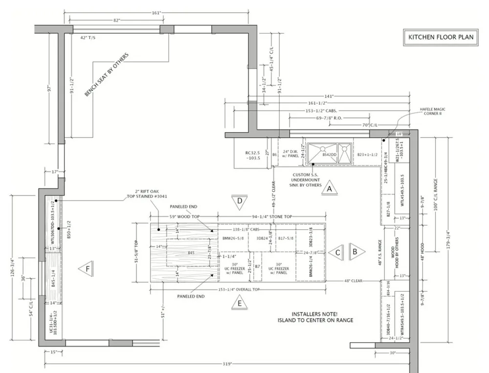
Küche der Woche: Grace KitchenDer Grundriss für Lin und Kumars Küche zeigt die Ausrichtung der extra langen Insel in das Zentrum. Die Öffnung am unteren Rand des Plans ist dort, wo die Küche verbindet sich mit dem Familienzimmer. Die Ausbuchtung oben links ist der Frühstücksbereich.



# Wohnung renovieren