1t2d3 Esteetön pääkylpyhuone Luxurious Feel

Esteetön pääkylpyhuone, jossa on ylellinen tunnelma

Tämä Marylandin uudistus tarjoaa ideoita suunnitteluun esteetön kylpyhuone, joka on myös tyylikäs

Tämä pariskunta asuu kaksikerroksinen koti oli valmiina siirtymään ensimmäisen kerroksen asumiseen. Miehellä oli diagnosoitu heikentävä sairaus rajoittaisi vähitellen hänen liikkuvuuttaan ja vaatisi a pyörätuoli. Asunnonomistajat päättivät jäädä Bethesdaan, Maryland, asuinpaikka ja muuttavat pääsviittinsä alakerrassa. He kääntyivät suunnittelija Jonas Carnemarkin puoleen, jonka suunnittelu-rakennusyritys olivat tehneet aiempia töitä heidän hyväkseen tehdäkseen pohjakerroksensa enemmän pääsee käsiksi ja muuttaa alakerran kylpyhuoneen a esteetön pääkylpyamme.
Elinikäinen mukavuusKuvat:Anice Hoachlander
Kylpyhuone yhdellä silmäyksellä
Kuka täällä asuu:Puoliksi eläkkeellä oleva pariskunta, jonka lapset ovat kasvanut
Sijainti:Bethesda, Maryland
Koko:100 neliöjalkaa (9,3 neliömetriä)
Suunnittelija:
Carnemarkin tavoitteena oli suunnitella tila, joka tuntui kuin ylellinen retriitti pikemminkin kuin sairaanhoitajan asema. The asunnonomistajat olivat budjettitietoisia, joten suunnittelija keskittyi myös tarjoaa lisäarvoa materiaalien ja ominaisuuksien valinnassa.
Kylpyhuone on voittanut useita palkintoja, mukaan lukien National Remodeling Industry Associationin vuoden 2018 palkinto universaalille suunnittelu.
Esteetön kylpyhuoneen kohokohdat

Elinikäinen mukavuusA Monipuolinen kylpy ja suihku ikääntymiseen paikallaan
Kylpyhuoneen erottuva ominaisuus on tämä komea märkä alue, joka on suunniteltu mahdollistamaan asiakkaan rullata suoraan sisään ja suihkuun tai kylpeen penkkien istuimien avulla baareja.
Suihku ja kylpyamme.Hansgrohen sadesuihkupää on asennettu kattoon, ja Hansgrohen termostaattikäsisuihkua voidaan käyttää istuessaan. Kohler-kylpytynnyrissä on leveä toimii penkkinä. Runsas määrä kromia tartuntatankoja on sijaitsee tuen tärkeimmissä paikoissa.
"Tämä oli yksi niistä harvoista tapauksista, joissa minulla on miesasiakas joka vain rakastaa kylpyammetta", Carnemark sanoo. "Tartukiskot ovat sijoitettava niin, että hän voi nousta ammeeseen ja sieltä pois helposti ja palaa sitten kävelijään tai pyörätuoliinsa." (The orkidea oli täällä vain valokuvausta varten.)
Ammattilaisen vinkki:Kun ostat syvän kylpyammeen, Carnemark sanoo, että sinun ei tarvitse huolehtia altaan syvyydestä noin - se on ylivuototyhjennysaukon korkeus. Tässä kylpyammeessa, ylivuoto on sijoitettu korkealle lähellä yläreunaa, jotta amme täyttyy korkeammalle, hän sanoo.
Laatoitus.Lattia ja seinät on vuorattu suurformaatilla posliinilaatta nimeltä , Lavagnassa. "Valitsimme sen, koska sillä oli rikas, orgaaninen tunne", Carnemark sanoo. "Toinen ominaisuus, jonka me piti siitä, että se on todella liukastumista estävä. Halusimme jotain, jolla oli korkea kitkakerroin, erityisesti märkänä." The suunnittelija sanoo, että se oli hyvin hinnoiteltu posliinilaatalle, joka teki ero budjetissa niin suurella katettavalla alueella. Ne Käytettiin olennaisesti tahraa kestävää epoksilaastia ja lattian alla laatta, kalvo, joka estää laatan halkeilun.
Ammattilaisen vinkki: "Älä pelkää tukitankoja. Suunnittele ne ajoissa" Carnemark sanoo. "Mielestäni tukitangot ovat kuin turvavöitä. Sinä tarvitset niitä vain silloin, kun tarvitset niitä."
Elinikäinen mukavuusVerho ja viemäri. Painotettu kattoon asti ulottuva suihkuverho ja lineaarinen reunakaivo, kuvassa, pidä vettä roiskumasta poissa märältä alueelta. The suihkulattia nousee huomaamattomasti (noin kahdeksasosa tuumaa per jalka) kohti takapenkkiä veden ohjaamiseksi viemäriin, joka on samassa tasossa kylpyhuoneen lattian kanssa. Tämä säästi rahaa verrattuna avoimiin suihkuihin, joissa lattia on upotettu viemäröinti, Carnemark sanoo, koska lattiaan kaivaminen maksaa enemmän. Asiakkaat ovat kertoneet hänelle, että suihkutila toimii hyvin niitä.

Elinikäinen mukavuusDesign-yksityiskohdat, jotka tekevät a Ero
Myös turhamaisuus, pesuallas ja wc-alue ovat täysin esteettömiä.
Turhamaisuus ja pesuallas.Oregonin mäntykaappi ja kvartsi työtasot ovat matalia, jotta niihin pääsee helposti käsiksi, ja pidennetyn pesualtaan alla on tilaa pyörätuolille Huomioi vedettävä käsipyyhehylly ja koukku, jotka sijaitsevat alla pesuallas. Tpariskunta päätti, että he eivät sen jälkeen tarvinneet kahta pesuallasta he ovat enimmäkseen eläkkeellä, eikä heidän tarvitse kiirehtiä aamulla kylpyhuonerutiini.
Valaistus.Modernin näyttävät Sonneman-valaisimet kirkkaalla LED-valolla valo kyljessä tilavaapeilattua lääkettä kaappi. Altaan ja pesualtaan välissä oleva aukko seinässä Itsepuhdistava bidee-yhdistelmä-wc päästää valoa läpi.
Ammattilaisen vinkki:Bidee on mukava ominaisuus kylpyhuoneessa ikääntymiseen paikallaan, Carnemark sanoo. He voivat auttaa puhtaus ja virtsatieinfektioiden ehkäisy.

Elinikäinen mukavuusKaiken yhdistäminen
Päämakuuhuoneen ovesta näet koko pituuden kylpyhuone. Turhamaisuus, pesuallas, seinä ja wc ovat päällä vasemmalla ja seinäpeili, suihku ja kylpyamme ovat oikealla. Suihkuverho on kylpyammeen vieressä.
Voit luoda tämän suuremman kylpyhuoneen nykyisestä kylpyhuoneesta suunnittelija lainasi tilaa sen takana olevasta eteisen kylpyhuoneesta ja sieltä pääkaappi. Hän levensi tätä ovea makuuhuoneesta mahdollistaa pääsyn pyörätuolilla.
Esteetön pääkylpyhuone, jossa on ylellinen tunnelmaennen ValokuvaTiskiallas (ennen)
Alkuperäisessä kylpyhuoneessa oli pesuallas ja kaakeloitu työtaso makuuhuoneesta johtavan oven oikealla puolella. Ei ollut alla säilytystilaa.
Esteetön pääkylpyhuone, jossa on ylellinen tunnelmaennen ValokuvaWC ja suihku (ennen)
Suihkukaapin ovi ei tyhjentänyt wc:tä avattaessa. Alakerran amme sijaitsi toisessa kylpyhuoneessa.
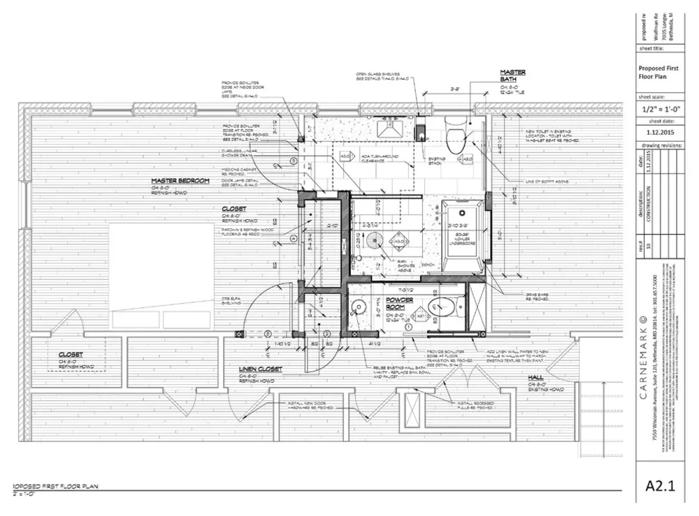
Esteetön pääkylpyhuone, jossa on ylellinen tunnelmaennen ValokuvaPohjapiirros (ennen)
Tämän "ennen"-suunnitelman vasemmassa yläkulmassa on nyt makuuhuone käytetty makuuhuoneena. Nykyinen kylpyhuone on huippu keskellä, ja pääkaappi on sen alla. Käytävän kylpyhuone ja liinavaatekaappi ovat aivan oikealla.
Esteetön pääkylpyhuone, jossa on ylellinen tunnelmalattia Suunnitelma (jälkeen)
Carnemark konfiguroi alueen uudelleen luodakseen suuremman pääkylpyammeen ja matalampi pääkaappi leveämmällä oviaukkolla. Halli kylpyhuone purettiin ja sinne rakennettiin esteetön pesuhuone oli liinavaatekaappi, lyhyt eteinen ja osa pääkaappia ollut. Liinavaatekaappi siirtyi vasemmalle isännän viereen makuuhuone. Carnemark levensi oviaukkoja kauttaaltaan tehdäkseen niitä pyörätuolilla.

Sinun vuorosi: Aiotteko muuttaa kylpyhuonettasi enemmän saatavilla? Kerro meille siitä kommenteissa.


# Asunnon remontti