Mestarikylpyhuone puhtailla linjoilla ja rauhoittavalla tunnelmalla
Suunnittelijat käyttävät betonia, puuta ja mattamustaa luodakseen a rauhallinen tila pennsylvanialaiselle pariskunnalle
Kuvat: Kylpyhuone yhdellä silmäyksellä Kuka sitä käyttää:Pari Sijainti:Wexford, Pennsylvania Koko:135 neliöjalkaa (13 neliömetriä) Suunnittelijat: Lauren Levant ja Paul Bentham, Näillä asunnonomistajilla Wexfordissa Pennsylvaniassa oli tilava isäntä kylpyhuone, mutta suuri poreallas vei suurimman osan tilasta. Keittiö- ja kylpyhuonesuunnittelijat Lauren Levant ja Paul Bentham auttoi paria täydellisessä remontissa. Saadakseen käsityksen asiakkaiden tarpeista suunnittelijat keskustelivat organisaation mieltymykset ja elämäntaparutiinit heidän kanssaan. Mitä tulee tyyliin he katselivat inspiraatiokuvia, mukaan lukien Servistain ideakirja, jonka asiakkaat olivat koonneet havainnollistaakseen suunnitteluaan asetukset. "Päätimme, että etsimme ekologista, Zen-tyylistä kylpylää kylpyhuone, jossa on pehmeät neutraalit värit ja luonnollisen näköinen materiaaleja", Levant sanoo. Lopputulos on ilmava, minimalistinen kylpyhuone puhtailla linjoilla, houkuttelevilla tekstuureilla ja virtaviivainen säilytystila, joka antoi kodin omistajille rauhoittavan tunnelman he halusivat rentoutuessaan päivän päätteeksi.
Asunnonomistajat halusivat rentoutua suihku tarpeeksi iso kahdelle ammeen sijaan. Levant käytti a hyvin muokattu materiaalipaletti isokokoinen, konkreettisen näköinen kuvioitu posliinilaatta, jota korostavat mattamustat kalusteet ja muita pieniä yksityiskohtia. Tuotteille tarkoitettu virtaviivainen reunus ulottuu telan leveydeltä. Kirkas lasikotelo tekee siitä suihku tuntuu suuremmalta ja kirkkaammalta. Säästöt ja rahat Budjettia tasapainottaessaan suunnittelijat panostivat putkituksiin kalusteet. "Tälle alueelle sijoittaminen on aina viisasta ottaen huomioon vaihtamisen mahdolliset kustannukset huonolaatuisia tuotteita tässä kategoriassa", Levant sanoo.
Laattojen valinta auttoi tasapainottamaan budjetti."Posliinilaatta, jota käytimme paljon kaksi tekstuuria tähän kylpyhuoneeseen, on laadukas mutta vaatimaton hinnoiteltu materiaali", Levant sanoo. "Otimme huomioon sen kustannukset tehokkuutta sekä sen helppohoitoisuutta." The betonimainen ilme toimii hyvin nykyaikaisena ja orgaanisena materiaalia. Pienikokoinen laatta koristaa suihkulattiaa. Sen tumma sävy ja suorat linjat täydentävät seinälaatta. Vinkki: Pienet yksityiskohdat merkitsevät. Tämä neliönmuotoinen viemäri mattamusta on pieni mutta tärkeä aksentti.
Ennen ValokuvaEnnen:Turhamaisuusalue ei ollut kutsuva ja laskutila puuttui. Suunnittelijat päättivät, että tämä oli paras paikka tilavalle suihkukaapille. Ennen KuvaEnnen:Huoneessa oli korkea holvikatto ja kattoikkunat, mikä antoi sille mahdollisuuden mukavaan ilmavaan tunteeseen. Kuitenkin suuri poreallas ja surround miehittivät a valtava määrä lattiatilaa ja teki asettelusta hankalan. The tällä alueella on nyt uusi turhamaisuus. tiivistetty säilytystila Suihkua vastapäätä 118 tuumaa pitkä turhamaisuus huolehtii suurimmasta osasta kodin omistajien säilytystarpeista näyttämättä kookkaalta. "Säilytys oli asiakkaan suuri huolenaihe, joten pyrimme sisällyttämään siihen pitkän ajan turhamaisuus lääkekaapeilla ja kuudella laatikolla lisää säilytystilaa." Levant sanoo. "Halusimme sallivia tallennusvaihtoehtoja jotta tavarat voidaan laittaa pois eivätkä vie paljon tiskitilaa." Turhamaisuus oli liian painava kellumaan irti seinästä, joten suunnittelijat keksivät nerokkaan tavan saada samanlainen ilme. "Kaappialue on rakennettu kaakeloidulle alustalle antaa sille vaikutelman, että se kelluu", Levant sanoo.
Kuusi syvää alasäilytyslaatikkoa ja a pari lääkekaappia tarjoavat kaiken säilytystilan pariskunta tarvitsee. Integroiduilla pistorasiailla, the peilatutlääkekaapit tarjoavat sijoituspaikan kuten sähköparranajokoneet ja hammasharjat sotkeen työtasot.
tekstuurien sekoitus Muut valinnat säilyttävät minimalistisen puhtaat linjat muotoilu lisää samalla kiehtovia tekstuureja materiaaliin mix. Lääkekaapit ovat pitkiä sylinterimäiset riippuvalot kuvioiduilla lasivarjostimilla. The suoraviivaiset astiat uppoavat betonimaisesta laattasta.
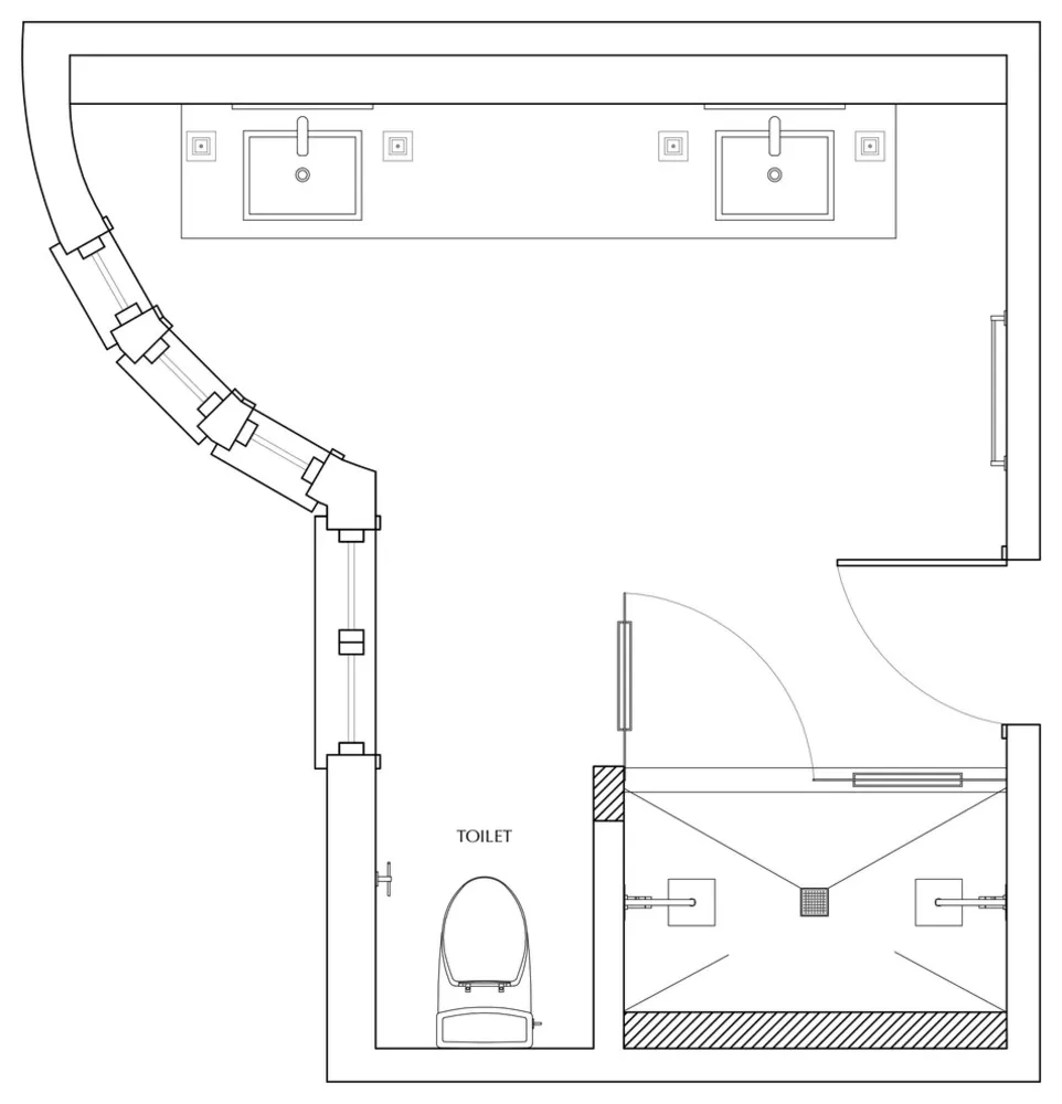
"Betoniastian käyttö uppoaa Tämä muotoilu korostaa visuaalisesti pitkää turhamaisuutta tuovat myös tämän orgaanisen materiaalin lämmön kylpyhuoneen paletti", Levant sanoo. "Ja nielut auttavat luomaan tunne, että turhamaisuus on huonekalu, joka toimii keskipisteenä." Pohjapiirros WC on siististi sijoitettu suihkukaapin viereen. Se on samassa paikassa kuin ennen remonttia. "Aina kun siirrämme wc:tä sijainti dramaattisesti olemassa olevassa kodissa, sen on oltava harkitaan huolellisesti, jotta minimoidaan vaikutus muihin valmiisiin tiloihin alla. Onneksi tässä tapauksessa se oli jo huipussaan paikka uudelle kylpyhuonesuunnittelullemme, joten meillä kävi onni", Levant sanoo. Takeawayt
Kun etsit minimalistista ilmettä, muokkaa sitä huolellisesti tekstuuri ja väripaletti muutamaan valintaan asti.
Laadukkaiden LVI-kalusteiden valitseminen kannattaa investointi.
Tukee raskasta turhamaisuutta sopivalla kaakeloidulla alustalla on näppärä tapa antaa kelluva ilme.
Pistokkeilla varustetut lääkekaapit ovat käteviä ja auttaa pitämään asiat selkeinä.
WC:n pitäminen paikallaan voi säästää huomattavasti rahamäärä.