1t2d3 Servista Tour: Studio Morphs Into a Yhden makuuhuoneen huoneisto

Servista Tour: Studio muuttuu 1 makuuhuoneen huoneistoksi

Vaatteiden rakastajan koti Pariisin lähellä saa erilliset unet tila, pukuhuone ja skandinaavinen sisustus

tämän asunnon omistaja Pariisin esikaupunkialueella Neuilly-sur-Seine etsi vuoden ennen kuin lopulta löysi hänen unelmiensa koti: studio 1960-luvun viidennessä kerroksessa rakennus. Hän oli lumoutunut sen sijainnista, kirkkaudesta, tammista lattia ja avoimet näkymät.
Vaikka asunto oli melko hyvässä kunnossa, se valitettavasti ei tavannut useita hänen neuvottelemattomia vaatimukset. Ensimmäinen oli muusta erotettu makuuhuone avaruus. Toinen oli suuri pukuhuone hänen säilyttämistä varten vaatteita ja kenkiä. Lopuksi tämä kova bargain metsästäjä ja taiteilija kaipasi kodikasta sisustusta, joka heijastaisi häntä persoonallisuus. Sisustuskaksikon Anne Fathin luovuus ja Julia Schmit voitti hänet, ja hän uskoi remontin
Photo ServistaKuvat:
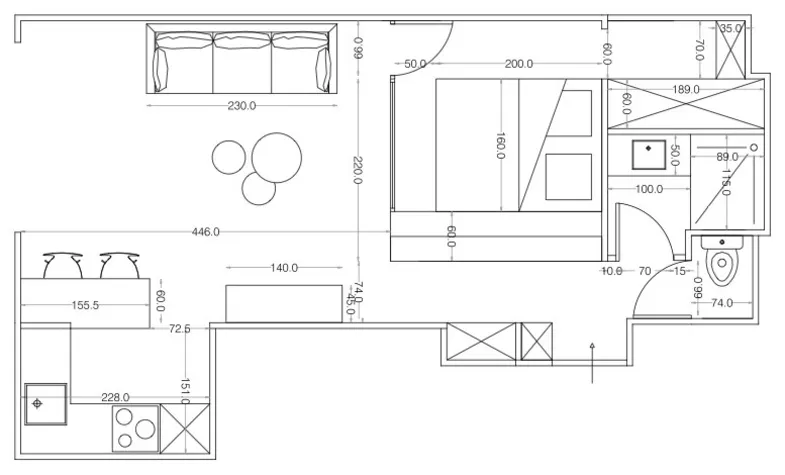
Asunto yhdellä silmäyksellä

Kuka täällä asuu:Muotia rakastava nuori nainen
Sijainti:Neuilly-sur-Seine, Ranska
Koko:398 neliöjalkaa (37 neliömetriä)
Suunnittelijat:Anne Fath ja Julia Schmit,
"Ovi oli erottanut alkuperäisen sisäänkäynnin studiosta" Fath sanoo. "Avasimme samalla sisäänkäynnin olohuoneeseen lisää draamaa. Tätä varten päätimme luoda yllätyksen: Halusimme jotain tapahtuvan sisäänkäynnillä, joten keskiyö sininen maali. Tämä pimeä sisäänkäynti kutsuu sisään tulevia, houkuttelee heitä vastustamattomasti kohti valoa ja ydintä asuntoon."
Sininen maali: Minuit, , Ressource
avant appartement SEnnen KuvaEnnen.Tämä miltä studion sisäänkäynti näytti, kun Fath ja Schmit näki sen ensimmäisellä vierailullaan. Valkoiset seinät, vinyyli lattia ja vanhentuneet johdot, asunto todella tarvitsi a muodonmuutos.
Photo ServistaUudessa sisäänkäynti, alkuperäinen seinä, joka oli erotettu kylpyhuoneesta uusittiin ja laajennettiin. Nyt se piilottaa sähköjohdot ja putket.
Kaapit säilyttävät omistajan kengät, kun taas yläpuolella olevat nivelet pitävät hänen kirjansa ja koriste-esineensä.
avant appartement SEnnen valokuvaEnnen.Juuri etuovea vastapäätä on kylpyhuone, joka oli suurin alue kunnostus vaikuttaa. Tämä 86 neliömetrin huone alun perin oli kylpyamme, wc, bidee ja pesuallas. Se oli suhteettoman paljon suuri studion pienille neliöille a kokonainen.
avant appartement SEnnen KuvaEnnen. suunnittelijat tarttuivat tilaisuuteen jakaa kylpyhuone ja hyötyä enemmän tilaa makuuhuoneelle ja pukuhuoneelle. He laittoivat suihkuun kylpyhuoneessa ja käänsi olemassa olevaa kaappia sisäänkäynnin vieressä erilliseen wc-huoneeseen.
Photo ServistaUusi kylpyhuone pienennettiin pienimpään mahdolliseen kokoon, vaikka se on silti mukava suihku ja turhamaisuus.
Appartement STyylikäs peili, aluksen pesuallas ja konkreettinen ilme laatat ovat tyylikkäitä.
Peili:
Photo ServistaOmistaja halusivat suunnittelijoiden luovan viereen pienen erillisen makuuhuoneen olohuone. Koska kaikki studion ikkunat ovat samat puolella he valitsivat lasiseinän vetääkseen osan valosta huoneeseen.
"[Omistaja] on kiinnostunut taiteesta ja muotoilusta. Sen sijaan, että ehdottaisi sellaisen lasiseinän, jota näet kaikkialla nykyään, suunnittelimme alkuperäinen malli, joka on saanut inspiraationsa maalauksista", Fath sanoo. Lasi seinä maksoi noin 5 000 dollaria 40 000 dollarin kokonaisbudjetista.
Photo ServistaMakuuhuone ei ole kovin suuri, mutta siihen mahtuu parivuode sänky. Makuuhuone otti lattiatilan olohuoneesta, kun taas pukeutumistila sängynpäädyn takana – erottuu tummasta posliinilaattalattia — otti osan vanhasta kylpyhuoneesta.
Photo ServistaTämä on kuvassa näkyvän osion toinen puoli kolmas valokuva. Suunnittelijat muotoilivat tämän seinän molemmilta puolilta niin että seinän toisella puolella olevat osat vastaavat koloja muu. Makuuhuoneen puolella markkinaraot korvaavat puutteen yöpöydät.
Keskiyön sininen korostusseinä antaa huoneeseen syvyyden tunteen ja näkökulmasta katsottuna olohuoneesta. Tammihylly jossa Kolme suunnittelijoiden luomaa upotettua peiliä erottuu joukosta sen keskusta. Omistaja heitti päälleen marokkolaisen hääpeiton sänky lisää pehmeää ja mukavaa tunnelmaa. Nämä tekstiilit on kudottu käsin Atlasvuorten naiset ja berberimorsiamen yllään heidän hääpäivänsä.
Sininen maali: Minuit, Sarah Lavoine kokoelma,resurssi
avant appartement SEnnen KuvaEnnen. Omistaja rakastui olohuoneeseen sen lasin takia liukuovi, joka avautuu pienelle parvekkeelle. Sen vasemmalla puolella a puolikorkea väliseinä jakoi keittiön olohuoneesta, pienen baaritiskin luominen.
Photo ServistaJälkeen.Suunnittelijat pitivät keittiön sisätiloissa sama paikka, mutta se kunnostettiin kokonaan antaakseen sille uuden ilmeen. The tärkein muutos oli baaritiskin muuntaminen a keittiön niemimaalla. Se ei vain antanut keittiöön lisää laskuria tilaa ja modernia ulkonäköä, mutta se tarjosi myös omistajalle jossa on ruokapöytä ja työtila.
Photo ServistaMitä suurempi työtaso luo myös enemmän tilaa ruoanlaittoon, ja siellä on sivuilla runsaasti säilytystilaa. Se on valmistettu matista laminaatti, joka vastaa posliinilaattalattian väriä.
Ikea-kaapit luonnonvalkoisilla etusivuilla korvasivat alkuperäisen kalusteet.
Omistaja esittelee kokoelmaansa maljakoita ja astioita – tavaroita hän pitää erityisen mielellään tinkimistä - kahdesta avoimesta taitetut metallihyllyt.
Taso: ; posliinikivilattialaatta: Leroy Merlin
Photo ServistaMusta hartsi pesuallas kätkeytyy keittiön nurkkaan vapauttamaan niin paljon työtason pintaa mahdollisimman. Se on kulmakaapissa, mukana astianpesukone oikealla. Tämä oli mahdollista, koska ikkuna pesualtaan yläpuolella avautuu ulospäin.
Photo ServistaPitkä keittiön kaappiin mahtuu perinteinen uuni, yläosassa mikroaaltouuni ja jääkaappi-pakastin alareunassa.
Riippuvalot: ;
Photo ServistaElämässä huoneeseen, omistaja kiinnitti huomionsa sisustukseen. "Olimme tekemisissä suunnittelun harrastajan kanssa, jolla oli jo paljon asioita edellisestä kodistaan. Lisäsimme vain muutaman kosketuksen, Fath sanoo.
Suunnittelukaksikko ansaitsi maineensa mestarillisesti , tanskalaisen sisustusfilosofian soveltaminen intiimi, vieraanvarainen, viihdyttävä ja palauttava sisätilat.
Photo Servista"[Omistaja] rakastaa mustaa ja valkoista, värejä, joita hän käyttää usein. Me aloitimme tästä klassisesta paletista ja lisätty luonnollisia kuituja niiden lämpimänä väri", Fath sanoo.
Sohva, lattiavalaisin ja karvainen suojus: Ikea; villapussi: La Redoute;
Appartement STo varmistavat, että kontrastit eivät ole liian jyrkkiä, suunnittelijat käytetty harmaan sävyjä, beigeä ja kuvioita. Kaikki alkaen tyynyt sohvalle sohvapöydälle oli huolellisesti valittu luomaan tämä lopullinen kokoonpano, joka nyt tuntuu ilmeinen valinta.
Appartement SSeos materiaaleja on toinen avain menestykseen jalostettuja ja rento sisustus. Puu ja harjakattoinen metalli toistavat teräsrungon lasiseinä.
Samoin kappaleiden asettelu on visuaalisesti dynaaminen, kanssa pystysuora lamppu ja peili tasapainottavat vaakasuuntaista kahvia pöytä ja sohva. Tämä on hyvä sisustusvinkki säilyttää mielessä.
Photo ServistaSuunnittelijat virkistivät myös parvekkeen, joka toimii nyt sisustuksen jatkeena. Se visuaalisesti laajentaa olohuonetta ja kompensoi osittain tilaa hävisi makuuhuoneeseen. Sälelattia lisää tilan tuntua sisätilojen lattia. Pajunäyttö lisää luonnollista kosketusta ja jonkin verran yksityisyys.
avant appartement SSe Suunnittelijoilta kesti 2½ kuukautta täydelliseen uudelleensuunnitteluun tila, joka valmistui viime vuonna. 40 000 dollarin budjetti sisälsi sähkö-, lämmitys- ja lämmitysjärjestelmien täydellisen uusimisen LVI-järjestelmät toiminnallisten ja koristeellisten lisäksi uudistaa. Lisäksi koko alueelle asennettiin laskettu katto huoneisto äänieristyksen mahdollistamiseksi ja johdotuksen piilottamiseksi valaisimet. Lopulta seinään luotiin uusia kanavia piilota johdot.
|||||||||||
# Asunnon remontti