Servista Tour: Kuinka luoda koti elämällesi

Suunnittelija löysi Servistaista budjettia säästävien temppujen avulla hyödyntää asunnon pohjaratkaisua isälle ja poika

Tässä entisessä toimistorakennuksessa sijaitsevassa asunnossa oli kaksi makuuhuoneet, kaksi kylpyhuonetta, tilava eteinen, keittiö ja a olohuone-ruokailuhuone. "Asiakas otti meihin yhteyttä Servistain ja pyysi meitä suorittamaan täydellisen sisustuksen kunnostuksen. Hän kertoi meille, että hän piti avoimista tiloista ja antoi meille haasteen löytää paikka ripustaa pyykkiä ja kääntää osa olohuoneesta toimistoon. Mutta se oli ennen COVIDia!" sanoo Leticia Yagüez, Leticia Yagüez Studiolta, joka johti projektia.
Hogar de MiguelValokuvia Leticia Yagüez Studiosta
Asunto yhdellä silmäyksellä
Kuka täällä asuu:isä ja hänen pieni poikansa
Sijainti: Madrid, Espanja
Koko: 754 neliöjalkaa (70 neliömetriä)
Arkkitehti:
Rakentaja:Grupo Plumysa
Budjetti:Noin 50 000 $. Tärkeimmät kohteet olivat kalusteet (18 000 dollaria) ja rakennustyöt (15 000 dollaria)
Tämä sisustusprojekti ja pieni peruskorjaus valmistuivat Kesän 2020 pandemiasta huolimatta, juuri sen jälkeen ensimmäinen lukitus purettiin.
"Parin tapaamisen jälkeen asunnossa ja studiossani, päätökset tehtiin verkkoviestinnän avulla PowerPointin avulla esityksiä ja käyttämällä Servista-ideakirjoja valokuvien vaihtamiseen. Yagüez sanoo.

Hogar de MiguelEnsimmäisessä kuvassa puoliavoin asuminen huone erottuu edukseen, ja se erotetaan hienovaraisesti keittiöstä ruokailutilan avulla alueella. "Laajensimme väliseinää, muutimme keittiön pohjaratkaisua ja onnistui luomaan pyykinpesualueen [katso seuraava kuva], alkuperäisen pesualtaan vedenottoaukon uudelleenkäyttöä varten pyykinpesuallas", Yagüez sanoo. "Muutimme myös sijoittelua joitain valaisimia valaistuksen mukauttamiseksi huonekalujen layoutiin."
Ruokailutilassa Yagüez laajensi seinän samalle leveydelle kuin ruokapöytä.

Hogar de MiguelPyykkitilan varustaminen maksoi 2 100 dollaria. Omistaja pyysi Yagüeziä vaihtamaan putkiston alkuperäinen keittiö alentaa remonttikustannuksia.
Omistaja kertoo, että hänen kotinsa remontti oli sekä stressaavaa että jännittävää, ja ammattilaisen palkkaaminen oli hänen paras päätös tehty. Hänen neuvonsa jokaiselle, joka ryhtyy omaan remonttiin, on saadakseen selvää, mitä he etsivät, millaista kotia he haluavat ja kuinka mukauttaa se elämäänsä.
Hogar de MiguelNämä kauniin värikkäät markkinaraot ovat keittiö. "Halusimme tehdä tästä iloisen ja valoisan kodin tietyllä pop-taiteen ilmalla ja paljon värejä", Yagüez sanoo.
Keittiökoneet maksoivat 2 600 dollaria.
Omistaja kertoo, että talo oli alun perin kapea ja useista suurista ikkunoista huolimatta pimeää tiettyinä vuorokaudenaikoina. Uuden avoimen pohjaratkaisun ansiosta luonnonvalo tunkeutuu sisään talon koko päivän ja siellä on avaruuden tunne. Tämä mukava asettelu osoittautui siunaukseksi pandemian aikana kun omistaja joutui viettämään enemmän aikaa kotona.
Casas Servista: El hogar de MiguelEnnen ValokuvaEnnen.Olohuoneessa ja keittiössä oli ollut erillinen.
Hogar de MiguelJälkeen.Kuten tässä näkyy, osa osio on poistettu avoimen ja erittäin kirkkaan luomiseksi asuinalue. Pieni säilytystila sohvan takana olevalla seinällä on yksi tämän tilan mittatilaustyönä tehdyistä ominaisuuksista.
Hogar de Miguelpandemian myötä työtiloista on tullut tärkeitä kodeissa. "Asiakas etsi ratkaisua siihen antaisi hänen työskennellä ollessaan poikansa kanssa, kun taas muut asiakkaat vaativat suljettuja työalueita, joissa he eivät ole hajamielinen", Yagüez sanoo.
Hogar de Miguel"Oma suosikkitila talossa on sisäänkäynti, joka on yhdistetty keittiöön ja olohuoneeseen. Se on erittäin iloinen esteettinen", Yagüez sanoo.
Peili sisäänkäynnin oven vieressä (näkyy taustalla tämä kuva) avautuu ja paljastaa sähköpaneelin.
Hogar de MiguelYksi hankkeen haasteista oli valtava patteri sijaitsee aivan pääoven edessä. He valitsivat olla siirtämättä sitä, pitääksesi kustannukset kurissa.
Yagüez keksi nerokkaan ratkaisun. "Pidimme sisäänkäynnin osittain irrotettu toimistotilasta asettamalla sisään taottu rautaikkuna, jossa mittatilaustyönä valmistettu yksikkö jäähdyttimen peittämiseksi pinnan alla. Sitten maalasimme seinän antrasiitilla antaaksemme sille enemmän läsnäoloa ja luo kontrastia retropopin kanssa tulostaa."
Hogar de MiguelNämä printeissa esiintyy amerikkalaisia indie rock -yhtyeitä. "Käytimme hyväksi omistajan intohimo musiikkiin. Hän valitsi printit itse. Varten seinälle, harkitsimme värikkäiden geometristen tapettien asentamista mallit. Lopulta valitsimme sopivaksi antrasiitinmustan maalin teollisella tyylillä, jota omistaja rakastaa."
Casas Servista: El hogar de MiguelEnnen ValokuvaEnnen.Tässä kuvassa näkyy makuuhuone, sen epätavallisen kulmat seinät.
Hogar de MiguelJälkeen:Uusi sisustus on täyttänyt tilan valon kanssa. Omistaja valitsi vaaleanpunaisen ja harmaan yhdistelmän. "Me merkitsimme sängynpäädyn alue, jonka koostumus on lattiasta kattoon maalattu puiset säleet tuovat visuaalista järjestystä kapeaan tilaan. Lisäsimme pehmeä pääty, joka on verhoiltu aivan kuten sohva", Yagüez sanoo. A Tintin print erottuu myös.
Hogar de MiguelHuone on vaatekaappi ja oma kylpyhuone.
Hogar de Miguel"Me ei tehnyt paljon kylpyhuoneissa. Pääosassa laitamme a näyttö ja lisävarusteet, jotka antavat sille teollisen ilmeen."
Hogar de MiguelPojan huoneessa, maalattu vuorijono seinämaalaus ympäröi sängynpäätä. "Poika sanoi haluavansa paljon leikkitilaa ja tilaa tavaroiden ripustamiseen. He valitsivat mintun vihreä, jota käytimme myös kylpyhuoneessa."
Hogar de MiguelToinen kylpyhuone oli tylsä. "Halusimme tehdä siitä hauskempaa kuluttamatta paljon rahaa", Yagüez sanoo.
"Teimme edullisen päivityksen: valitsemme Lokolokon vinyylin lattia ja toinen tavallinen minttu muuttaa ulkonäköä pesuallaskaappi, ja lisäsimme peilin kehyksen", Yagüez sanoo.
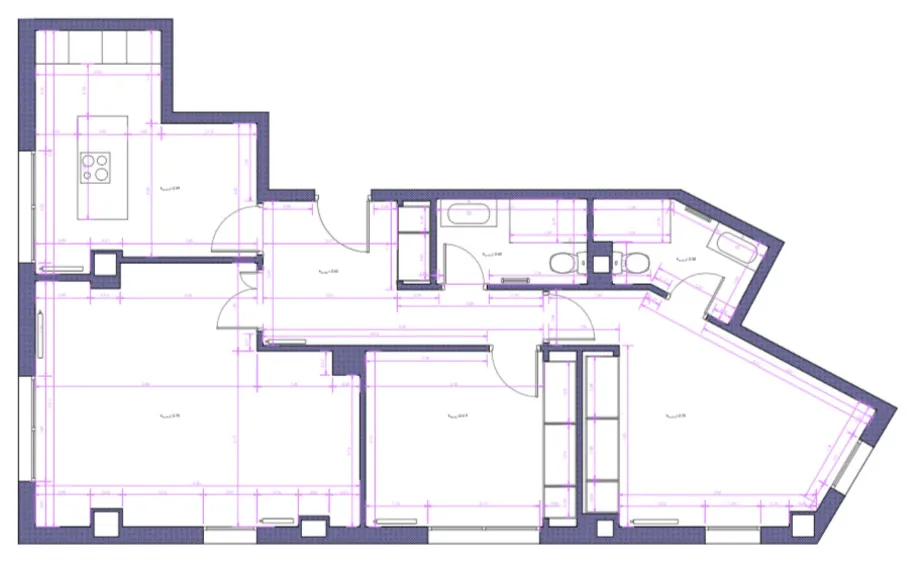
Casas Servista: El hogar de MiguelEnnen.Kohteen asettelu talo, tilava huoneisto, jossa on kaksi makuuhuonetta ja kaksi kylpyhuonetta, ennen pientä remonttia.
Casas Servista: El hogar de MiguelJälkeen:Kun remontin jälkeen talossa on puoliavoin oleskelutila, jossa on a pesutupa keittiön vieressä.


# Asunnon remontti