Bagno della settimana: una mansarda nera, grigia, dorata e glamour Ritiro

Un rimodellatore di cucine e bagni trasforma una mansarda angolare in un sofisticata zona per adolescenti che funzionerà per i nonni later

Il bagno esistente nella mansarda di Janelle Helms i clienti avevano bisogno di un aggiornamento. Nonostante occupi quasi 200 quadrati piedi, lo spazio del terzo piano, utilizzato principalmente dai proprietari di casa figlia adolescente, aveva solo una vasca, un gabinetto e uno specchietto sopra un minuscolo lavabo a piedistallo. Inoltre, il bagno non aveva un porta, e l'adolescente, la cui camera da letto è accanto, aveva bisogno di lei intimità. Helms, un designer con Karr Bick Kitchen and Bath a St. Louis, ha lavorato a stretto contatto con l'adolescente e i suoi genitori riconfigurare il layout. L'affascinante rifugio che hanno creato fa la maggior parte dello spazio unico e funzionerà per la figlia per i pochi anni rimanenti che vive a casa, poi più tardi per il i genitori anziani dei proprietari di case.
Spazioso bagno mansardatoBagno a colpo d'occhio
Chi abita qui:Una coppia e la loro figlia adolescente u2060— èla più giovane di sei figlie e l'unica uno vive ancora a casa
Località:St. Luigi
Dimensioni:192 piedi quadrati (18 metri quadrati)
Designer:Janelle Helms di
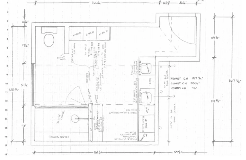
Bagno della settimana: un rifugio in soffitta nero, grigio, oro e glamour Le pareti spioventi del solaio presentavano il primo ostacolo Elmi e la sua squadra ha dovuto affrontare. La planimetria mostrata qui illustra come Helms ha reinventato lo spazio per mettere a frutto le sue linee uniche use.
Spazioso bagno in soffitta"La sfida più grande erano ovviamente gli angoli, essendo al terzo piano tipo quello", dice Helms. "E poi essendo un grande spazio, facendo certo che hanno riempito lo spazio e non era solo un mucchio di cose casuali attorno al perimetro."
Per fare ciò, i clienti si sono ispirati ai libri di idee di Servista e andò avanti con il progetto di Helms, che includeva un vanità extra lunga e postazione per il trucco, vista qui, ancorata da mobili ad angolo personalizzati. Gli specchi corrispondenti vanno fino in fondo e aggiungi luminosità riflettente mentre mostri anche quella della stanza linee interessanti e soffitti alti. Hardware in oro spazzolato e le applique e la sfarzosa lampada a sospensione in cristallo conferiscono alla zona trucco un tocco di glam della vecchia Hollywood. L'adolescente è una ballerina, e lei e i suoi amici usano spesso lo spazio per prepararsi prima dei recital.
"Voleva che avesse un fattore wow e fosse un po' glamour per lei, quindi quando le sue amiche vengono da lei è un posto divertente per loro tutto per essere in grado di prepararsi", afferma Helms.


Bagno della settimana: un rifugio in soffitta nero, grigio, oro e glamour Foto precedentePrima:La grande stanza aveva solo un piccolo lavabo a colonna e un piccolo specchio.
Spazioso bagno mansardatoDopo: La luce il doppio lavabo grigio personalizzato è sormontato da contatori al quarzo. Sotto i piedi, il pavimento è in gres porcellanato effetto marmo. L'adolescente lo sapeva voleva accenti dorati, come la sedia di metallo e le maniglie dei cassetti, ma quando Helms le ha mostrato i rubinetti in nichel lucido che amava loro. Hanno deciso di utilizzare entrambi.
"Pensavamo che avrebbe aggiunto un altro livello di profondità per mescolarlo un po'", Helms dice.

Alto 108 pollici, l'armadietto della biancheria sullo sfondo di questa foto ha posto un altro problema al team: Tqui non era un modo semplice per portarlo in soffitta. La casa ha un ascensore, quindi l'equipaggio ha inviato la cabina dell'ascensore nel seminterrato e caricato l'armadietto sopra di esso dal primo piano. L'auto poi si fermò al secondo piano e la troupe tirò fuori il pezzo dal tetto dell'auto dal pianerottolo del terzo piano.

Bagno della settimana: un rifugio in soffitta nero, grigio, oro e glamour Foto precedentePrima:la stanza aveva una vasca ma no shower.
Spazioso bagno in soffittaDopo:Installazione in a la doccia a grandezza naturale tra le pareti inclinate del bagno era complicata.
"La parte centrale del bagno era abbastanza alta dal soffitto, ma sfortunatamente è anche lì che si trovava la finestra", dice Helms. "Non potevamo semplicemente attraversare la parte posteriore, quindi abbiamo aggiunto un muro da realizzare quello dove sarebbe il soffione della doccia."
La doccia presenta piastrelle di marmo nero per le pareti e un quarzo soletta per la panca che ne copre la lunghezza. Il soffione può essere tenuto in mano, che può rivelarsi particolarmente utile, insieme al panchina, quando i genitori anziani dei proprietari di casa si trasferiscono.

Bagno della settimana: un rifugio in soffitta nero, grigio, oro e glamour Foto primaPrima:i colori vivaci della stanza e le caratteristiche erano adatte per uno spazio per bambini ma non funzionavano più per un adolescente. Lo spazio doveva anche essere allestito alla fine accogliere i nonni.
Spazioso bagno mansardatoDopo: Elementi neri oltre la doccia, come boiserie e infissi, aggiungere consistenza ed equilibrio.
"Abbiamo realizzato la boiserie nera per farla risaltare lungo il perimetro quindi è stato un bel contrasto", afferma Helms.


# Ristrutturazione appartamento