Bagno della settimana: una sensazione di apertura in 50 piedi quadrati

Una tavolozza bianca, un layout intelligente ed elementi mobili si espandono lo spazio visivo in questa vasca da bagno del New Jersey

Squeezing tutto ciò di cui i suoi clienti avevano bisogno questobagno di 50 piedi quadrati ha presentato a sfida alla designer di cucine e bagni Alison Griffin. La designer ha usato le sue abilità per realizzare il lo spazio un tempo angusto sembra più aperto e arioso, anche se ha perso pochi metri quadrati nel processo. E ha dato il New Jersey proprietari di case lo stile europeo pulito e moderno che desideravano per lo spazio. Ecco come se l'è cavata.
BOW GRiffinFoto primaFoto "dopo" di Fotografia di Whitney Kidder
Bagno a colpo d'occhio
Chi lo usa:
i due figli di una coppia e occasionalmente durante la notte ospiti
Luogo: Summit, New Jersey
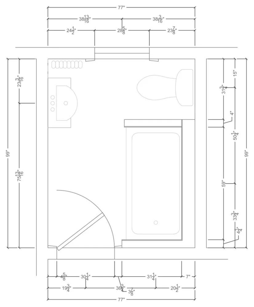
Dimensioni: 50 piedi quadrati (4,6 metri quadrati)
Designer: Alison Griffin di
Appaltatore:Adam Seelig di Hacklebarney Contracting
Prima:la casa è stata costruita nel 1912, ma il bagno sì stato rinnovato da allora. I proprietari della casa hanno assunto Griffin per realizzare funziona bene per i loro due figli e durante la notte ospiti.

"I miei clienti sono tutti alti, e anche questa vecchia vasca standard lo era breve e superficiale per loro ", dice. "E non ce n'era abbastanza distanza tra la toilette e il radiatore. Il progettista e l'appaltatore Adam Seelig ha fatto un po' di archeologia architettonica e ha scoperto che c'era una pila di servizi igienici originale altrove nel stanza, che ha permesso loro di cambiare il layout. "Spostare un gabinetto può essere un incubo logistico", afferma Griffin. La pila esistente le ha permesso di creare più facilmente un ambiente aperto e arioso camera.


L'arte del travestimentoA la lunga vasca da bagno era nella lista dei must-have dei proprietari di case alte. Mentre questo bagno è utilizzato principalmente dai figli della coppia e ospiti, dispone dell'unica vasca della casa. Griffin si adatta a un nuovo Vasca d'aria lunga 72 pollici lungo la parete di fondo. "Questo è un vero ammollo vasca", dice. Il nuovo layout ha aperto la vista dalla porta nella stanza, facendola sembrare più grande.
I proprietari di casa adoravano anche l'aspetto e la qualità del marmo di Thassos, così Griffin ha dato alla vasca un rivestimento Thassos e ha coperto le pareti in piastrelle di marmo Thassos da 6 pollici per 12 pollici. "Piastrelle standard da 3 x 6 pollici sarebbe sembrato troppo impegnato", dice. "Ma poiché è così stanza monocromatica, avevamo bisogno di un po' di interesse da parte della malta linee. Questa dimensione delle tessere ci ha dato la giusta quantità."
Il rivestimento della doccia è in vetro trasparente che include una larghezza di 36 pollici porta. Griffin ha sostituito la vecchia finestra con una nuova finestra a tendina che offre maggiore privacy. La finestra è rifinita in marmo e ha un davanzale leggermente inclinato per il deflusso dell'acqua.
L'intradosso sopra la vasca è stata una scelta di design. "Non volevo piastrellare l'intero soffitto e questa transizione gli ha dato un buon risultato punto di sosta", dice Griffin. "E ha reso l'area al di fuori di la vasca sembra quasi un quadrato. L'area senza vasca della stanza è 5½ per 6 piedi.
La doccia ha un soffione a pioggia e una doccia portatile montata Testa. Il portasciugamani ha un elemento riscaldante. La nicchia della doccia è un materiale insolito: acciaio inossidabile spazzolato. "Abbiamo avuto tutto questo metallo lucido con i soffioni doccia, barra scaldasalviette, rubinetteria e pannello a filo", dice Griffin. "E lo specchio ha un metallo lucido guardalo. Volevo raccogliere quegli elementi con il nicchia." La nicchia è di 18 x 18 pollici, il che ha funzionato bene con l'altezza di 6 pollici della piastrella.

BOW GRiffinPrima: Il posizionamento della vasca da bagno e il il rapporto tra la toilette e il radiatore era imbarazzante e ha reso la stanza angusta.
BOW GRiffinDopo: Per far sembrare la stanza più grande, Griffin ha optato per a wc sospeso, un lavabo galleggiante con rubinetteria a parete e un armadietto dei medicinali incassato. Ciò significava costruire il muro dietro questi elementi 7 pollici di spessore per accogliere i servizi igienici serbatoio nascosto, l'impianto idraulico per i rubinetti e la medicina nicchia del mobile.

Sebbene l'espulsione dei muri abbia comportato la perdita di un pochi metri quadrati, il water galleggiante e il pavimento ripulito dalla vanità spazio, ha creato un aspetto ordinato e nel complesso ha fatto sentire la stanza più grandi. Griffin ha recuperato parte dello spazio perso sostituendo il radiatore con pavimento radiante.
BOW GRiffinIn corso:Il motivo per cui Griffin ha perso un po' lo spazio intorno alla vasca era dovuto al rivestimento in marmo di Thassos supporto pesante e necessario. "La vasca stessa non avrebbe potuto adattato al peso della lastra di marmo, quindi abbiamo dovuto creare un sovrastruttura su tre lati per sostenerlo all'interno delle mura, lei dice. Questo ha spinto i muri nella stanza 1¼ pollici intorno alla vasca.

BOW GRiffinIspirazione architettonica:The home's lo stile architettonico è Arti e Mestieri. "I miei clienti sentivano che il Il movimento Arts and Crafts era una ribellione contro lo stile vittoriano e che attribuiva importanza all'artigianato e ai materiali", Griffin dice. "Quindi sentono che lo stile di partenza in bagno è stato fatto nello spirito dell'architettura originale della loro casa. Uno dettaglio che lega il design del bagno al resto della casa lo stile è la piastrella del pavimento. "Sono stato ispirato dai dettagli unici lungo la parte superiore delle ringhiere e i rettangoli orizzontali all'interno la tessera del mosaico me lo ha ricordato", dice Griffin.
L'arte del travestimentoLa vanità fornisce a ogni figlio un cassetto, e c'è ulteriore spazio di archiviazione nel grande armadietto dei medicinali. IL L'armadietto dei medicinali ha anche un altoparlante Bluetooth integrato, che sostituito un piccolo altoparlante utilizzato nel vecchio bagno. Ha anche un presa interna dell'interruttore automatico con guasto a terra (GFCI), nonché Luci LED integrate nello specchio. Utilizzo di luci integrate risparmiato spazio sulla parete e mantenuto l'aspetto ordinato della stanza. "Sono stato attento con la temperatura del LED con il cabinet e il plafoniera", dice Griffin. "2.700 gradi Kelvin sono piacevoli luce soffusa simile alle lampadine a incandescenza."
La vanità galleggiante è un modello già pronto in un profondo blu notte di . Griffin lo ha personalizzato con un piano in marmo Thassos, realizzato dall'intaglio nella soletta del bordo vasca. "Abbiamo usato squadrato bordi per costruirlo in modo che sembri spesso 2 pollici ", dice.
: Roberto

BOW GRiffinPrima della fotoRistrutturazione di una vecchia casa di solito porta sorprese che possono presentare sfide di progettazione, ma alcune delle sorprese sono divertenti. Questo messaggio del 1938 è stato scritto dentro le mura e firmato da un costruttore. "In realtà l'ho guardato ed è stato un residente di lunga data di Summit", afferma Griffin.


# Ristrutturazione appartamento