Cucina della settimana: la cucina è al centro di tutto questo Casa

Gli architetti capovolgono una planimetria per adattarla a quella di una giovane famiglia stile di vita e stile pulito e colorato

Questo Washington, D.C., la coppia acquistò una casa a schiera a tre piani del 1880 nel quartiere di Dupont Circle per la loro famiglia in crescita. Tuttavia, precedenti lavori di ristrutturazione avevano spogliato la casa del suo storico dettagli. Fortunatamente, i proprietari di casa avevano gusti moderni minimalisti Comunque. Gli architetti Elizabeth Emerson e Mark Lawrence di E/L Studio ha trovato il modo di adattare il layout in modo che funzioni per i giovani lo stile di vita e i gusti della famiglia. Uno dei più grandi cambiamenti è stato capovolgendo la disposizione del primo piano, posizionando il fronte della cucina e centro. Dal momento che cucinare e raccogliere in cucina lo erano parti importanti della vita per questa famiglia, il cambiamento li ha fatti sentirsi davvero a casa.

Logan Circle RowhomeFoto di Paul Burk
La cucina in breve
Chi abita qui:
Due dottori e i loro due bambini piccoli
Località:quartiere Dupont Circle di Washington, DC
Dimensioni: 200 piedi quadrati (19 metri quadrati)
Architetti:
La casa a schiera è larga 18 piedi. Ciò significa che la sua larghezza si adatta una stanza più la larghezza di un corridoio. L'esterno della casa è pieno di carattere storico che mancava all'interno. IL Il progetto della cucina è stato una parte cruciale del rinnovamento dell'intero casa. La baia vista qui ora funge da accogliente colazione da mangiare angolo in cucina e fornisce un forte legame con il strada e quartiere.

KOW EL Studio (Lindley)Prima FotoPrima:Il soggiorno era nella parte anteriore della casa e la cucina sul retro. "Lo stile era generico e i dettagli storici erano stati strappati dalla casa durante un prima della ristrutturazione", afferma Emerson.
In termini di layout, i proprietari di casa ne volevano uno che fosse di più favorevole a guardare i bambini nel cortile di casa. Ciò ha reso necessario un flusso migliore e una connessione più forte con l'esterno.
Logan Circle RowhomeDopo: gli architetti hanno capovolto il soggiorno e cucina e posto una sala da pranzo tra i due. Lo stile è snello e moderno. Mentre i clienti sono attratti al minimalismo, curano collezioni di cose preferite. Emerson e Lawrence sono stati in grado di farsi una buona idea del loro stile visitando la loro ex casa e vedendo le loro opere d'arte e mobili.
"Non appena ho visto le loro cose, ho pensato: 'Oh, questo sta per succedere sii buono "", dice Emerson. I loro beni includono iconici pezzi moderni della metà del secolo, una vasta collezione di Heath Stoviglie in ceramica e il poster visto qui nella nuova sala da pranzo la zona. "Questo poster esemplifica i loro colori preferiti", Emerson dice. Illustra anche la sensazione giocosa e dinamica del famiglia voleva lavorare in un ambiente pulito e relativamente scarno progettazione.
"Hanno anche visitato il nostro studio ed erano entusiasti di quello che stavano facendo visto lì", dice Lawrence. "Potremmo dire che avevamo tutti la stessa mentalità in termini di stile e che lavorare con loro sarebbe una buona scelta. Il marito è chirurgo e ha un occhio molto acuto e preciso."

KOW EL Studio (Lindley)Prima FotoPrima:Con lo stile ben definito, il gli architetti hanno avuto conversazioni dettagliate su come la coppia voleva la casa per funzionare per il loro stile di vita. "Avevano vissuto in un loft a New York City e amavo quella sensazione di apertura, e anche noi dovevo tenere a mente i bambini piccoli", afferma Lawrence.
Questa è la cucina nel suo posto precedente. "La cucina era inceppata nel retro della casa e ha interrotto la connessione a il cortile", dice Lawrence. "C'era anche una larghezza imbarazzante tra gli armadi." In altre parole, la cucina non era stretta abbastanza per funzionare bene come cambusa, ma non era abbastanza largo ospitare un'isola.
Logan Circle RowhomeDopo:girando gli spazi intorno, con la cucina davanti e il soggiorno dietro, era il soluzione migliore. "Amano cucinare ed è fondamentale per loro vita familiare", dice Emerson. Quindi avere la cucina davanti e centro all'apertura della porta d'ingresso era una scelta naturale per loro. Gli architetti hanno ampliato l'apertura sul retro della casa a creare una visione più ampia del cortile da quelli che ora sono i vivi camera. Infatti, il cortile può essere visto completamente dalla parte anteriore ingresso.
Hanno anche progettato il layout della cucina attorno agli elementi strutturali come il palo alla fine dell'isola. "Il post era appena uscito nel mezzo dello spazio in cui i bambini potrebbero imbattersi in esso ", Emerson dice. "Abbiamo posizionato l'isola della cucina accanto al palo, integrandolo nel design e rimuovendolo come un ostacolo."
L'isola, compreso il piano di lavoro, è in rovere bianco con a macchia bianco-grigia. I controsoffitti sono rivestiti con un sigillante. "L'acqua gocciola su questi banchi", dice Emerson.

KOW EL Studio"Entrambi i proprietari sono indiani e amano cucinare piatti tradizionali indiani quando i loro genitori vieni a trovarci", dice Emerson. "Conoscevamo i piatti che gli piacevano preparare richiederebbe molti bruciatori, quindi il fulcro del room è un grande top di gamma BlueStar."
Gli architetti hanno capito che la coppia era attratta dal blues e terrecotte del manifesto e della loro collezione Heath Ceramics. Hanno suggerito un blu intenso trovato in alcuni dei pezzi di ceramica per il colore dell'armadio. Questa è stata una decisione presa all'inizio del processo di progettazione, quindi hanno pianificato gli altri materiali con cui lavorare quella tonalità. E hanno fornito alla coppia scaffali aperti entrambi i lati della cappa per mostrare i loro collection.
KOW EL StudioIl nitido, le linee minimaliste e il colore scuro dei mobili creano un ambiente fantastico sfondo per il resto della cucina. E usando i tiri delle dita invece dell'hardware conferisce un aspetto semplice, pulito e disadorno. IL controsoffitti in cemento grigio-blu di colore personalizzato e lavori di backsplash magnificamente con i toni blu scuro degli armadietti.
Luci sotto i ripiani incassati e la cappa e sopra il il grande armadio dispensa fornisce ulteriori strati di luce nel space.
KOW EL Studio (Lindley)Prima FotoPrima:Questa è la baia vista dall'esterno foto della casa. Faceva parte dei vivi room.
Logan Circle RowhomeDopo:Gli architetti hanno ottenuto il massimo della baia, trasformandolo in un luminoso angolo colazione dove la famiglia può guardare il mondo che passeggia sul marciapiede. I posti a sedere incorporati avvolgono la baia e la parete adiacente per a sguardo continuo. La panchina meno profonda sulla destra è un buon posto togliersi le scarpe e sistemare le borse dopo essere entrati in casa. IL il tono neutro del fard scelto per il rivestimento gioca con il collezione di ceramiche, e gli architetti hanno ripetuto questa tonalità in tutta la casa.
Un classico tavolo a tulipano della metà del secolo mantiene l'area libera dai "baraccopoli". di gambe" si lamentava l'iconico architetto Eero Saarinen quando lui ha creato il tavolo negli anni '50. Il piano in marmo presenta giusto la giusta quantità di motivi e un bellissimo materiale naturale, e la lampada a sospensione aggiunge una giocosa forma simile a una ghianda sopra la testa. "Ci sono tre aree salotto distinte", afferma Emerson. "La baia è per colazione e pasti veloci. L'isola è per la famiglia tempo di cucinare e uscire dopo la scuola. La sala da pranzo è per pasti più abbondanti per tutta la famiglia."

KOW EL StudioEcco uno sguardo attraverso lo spazio dal retro della casa in avanti. Il soggiorno ha un piccolo bar con frigorifero per bevande a scomparsa a pannello frontale. Il disegno di il built-in riecheggia l'isola in rovere bianco della cucina e controsoffitti in cemento e paraschizzi.
KOW EL Studio (Lindley)Prima FotoPrima:Il muro di mattoni a vista era uno dei pochi dettagli storici ancora intatti. "Elementi come questa ringhiera erano roba storica falsa che non andava bene ", dice Emerson. La riprogettazione delle scale ha avuto un grande impatto sul primo piano ristrutturazione.
KOW EL StudioDopo:Lawrence ha inventato una forma a Z volume per la nuova scala. "Elizabeth ed io siamo spesso fissati sulle scale come oggetto, perché occupano molto spazio" lui dice. "Sono anche un modo per far scendere la luce tra i piani. Volevamo che le ringhiere fossero il più sottili e leggere possibile per non competere con il muro di mattoni. Ha usato fogli laminati di compensato per realizzare i nuovi guardrail e ha salvato l'originale scale, che erano in ottima forma.
KOW EL StudioUtilizzo di un la tavolozza minimalista non significa vuota e noiosa. Dai un'occhiata al modo in cui i mattoni, il legno e la vernice bianca lavorano insieme. Il giocoso il colore rosso sul corrimano riproduce un tavolo d'ingresso adiacente (vedi nella quinta foto), e porta una scossa di energia verso l'alto le scale per il secondo piano. La costruzione del guardrail a destra ti fa fermare e pensare. "Il binario è fatto di fogli laminati di compensato. Lo abbiamo esposto tra i due bordi e ha dipinto l'interno arrossendo per risaltare sottilmente contro il bianco", dice Lawrence.
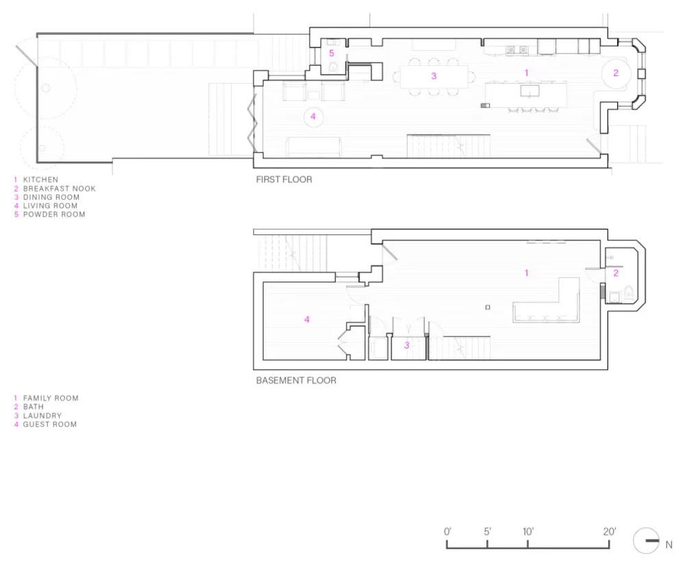
KOW EL StudioIl top la planimetria mostra come tutto si incastra. Il nuovo, più ampio le porte a sinistra forniscono una visione chiara del cortile dal intero primo piano. Sulla destra, puoi vedere come gli architetti accoccolato la cucina nella parte anteriore della casa in un ambiente accogliente modo. La parte inferiore di questa pianta mostra il seminterrato, che era anche parte della ristrutturazione dell'intera casa.
Gli architetti sono stati attenti a limitare gli sprechi durante il progetto. "Ad esempio, il montascale aveva solo 5 anni e perfettamente a posto, quindi non volevamo tirarlo fuori ", dice Lawrence. Hanno anche spogliato e restaurato la pavimentazione esistente e mantenuto lucernari esistenti. E hanno donato tutto in cucina che era ancora in buone condizioni per , un'organizzazione no profit impegnata all'eliminazione dei rifiuti di costruzione attraverso il riutilizzo. Rivendono e donare i materiali e finora hanno fornito oltre $ 500.000 in materiale gratuito ai vicini bisognosi e ai locali organizzazioni non profit.



# Ristrutturazione appartamento