Cucina della settimana: bianco, legno e grigio con tonnellate di Stoccaggio

Un designer si espande in una sala da pranzo per creare un grande cucina con un'isola spaziosa, ampi armadi e fresca style

Con due adolescenti, questa coppia della Pennsylvania voleva farlo espandere la loro cucina con la loro famiglia in crescita. L'esistente Lo spazio di 265 piedi quadrati sembrava stretto, con una piccola isola che aveva stanza solo per due. Gli armadietti superiori corti offrivano spazio di archiviazione limitato e ha favorito la sensazione di spazio angusto.
La coppia si è rivolta alla designer Maria Cross per chiedere aiuto. Croce ha preso lungo un muro tra la cucina e la sala da pranzo raramente utilizzata e ha incorporato lo spazio extra per ingrandire la cucina di 165 piedi quadrati. Ciò ha liberato spazio per una grande isola che può ospitare quattro, e ha permesso a Cross di aggiungere tonnellate di spazio per l'armadio, tra cui a stazione di bevande laboriosa con TV a schermo piatto. Bianco gli armadi danno allo spazio un aspetto leggero e arioso, mentre un vetro grigio backsplash di piastrelle, un'isola grigio scuro e dettagli neri portano un tocco elegante. Pavimento in rovere sbiancato e fascia in rovere sbiancato la cappa da cucina aggiunge calore.
Rock Run Road ProjectFoto prima"Dopo" foto di
La cucina in breve
Chi vive qui: Una coppia con due adolescenti e due cani
Ubicazione: Peters Township, Pennsylvania
Dimensioni: 430 piedi quadrati (40 metri quadrati)
Designer: Maria Cross di
Prima: i proprietari di casa sentivano che la loro vecchia cucina era carente archiviazione e stile. Armadietti bassi e alti affollavano la stanza e non offriva abbastanza spazio di archiviazione, costringendo la coppia a mantenere piccoli elettrodomestici sui piani di lavoro e la spazzatura e il riciclaggio cassonetti all'aperto. La piccola isola a due posti non lo era sufficiente per la famiglia di quattro persone, e una paratia centrale abbassata le lampade a sospensione sono troppo basse.
Nel frattempo, armadi marroni, pavimenti in legno di media tonalità, pareti rosso intenso e controsoffitti di granito scuro hanno dato allo spazio una bassa energia atmosfera.
Il muro della gamma separava la cucina dal formale inutilizzato sala da pranzo, dove Cross ha cercato di ampliare la cucina. "IL la cucina aveva davvero bisogno di essere ravvivata", dice. "Avevamo bisogno per creare più spazio sul bancone e renderlo di più funzionale."
Rock Run Road ProjectDopo:Cross ha spogliato il primo cucina indietro e rimosso il muro tra la cucina e la sala da pranzo camera. Ha usato lo spazio extra per espandere la cucina di 165 piedi quadrati, a 430 piedi quadrati. Ha anche rimosso la paratia sull'antica isola. "Questo ci ha davvero dato più apertura sensazione", dice.
L'espansione ha permesso a Cross di installare un'isola più grande che può posto quattro. Il nuovo layout a forma di U le ha anche permesso di massimizzare lo spazio di archiviazione aggiungendo tonnellate di armadietti, incluso un centro bevande sul Sinistra. Portare gli armadi superiori al soffitto ha aiutato a prendere vantaggio di ogni centimetro.
Gli armadi bianchi in stile Shaker donano alla stanza luminosità, freschezza stile. Calde pareti grigie (Gossamer Veil di Sherwin-Williams), grigio alzatina in piastrelle di vetro e isola grigio antracite quasi nera (Iron Ore di Sherwin-Williams) danno un tocco di eleganza e drammaticità. IL il pavimento in rovere bianco e la fascia in rovere bianco sulla cappa aggiungono una dose di calore. "Volevamo qualcosa che sembrasse aggiornato ma lo fosse ancora un aspetto classico", afferma Cross.
Armadi: Martin, frameless, Oak e Pillar Cabinetry di

Rock Run Road ProjectComplemento controsoffitti in quarzo effetto marmo il bianco e il grigio in cucina. "Il quarzo ingegnerizzato è fantastico perché è resistente ai graffi e alle macchie, quindi è perfetto soluzione per una famiglia impegnata", dice Cross. "Il bianco aiuta illuminare lo spazio, perché è una delle prime superfici il tuo occhio colpisce."
Due grandi ciondoli a globo di vetro sopra l'isola hanno un nero finitura che si coordina con gli sgabelli neri.

Rock Run Road ProjectA Piano cottura a gas in acciaio inossidabile da 36 pollici con bruciatori in ottone sigillati, piastra infusa di cromo e griglie in ghisa danno ai proprietari di casa un serio potere di cottura. Manopole e pomelli in bronzo lucidato a olio i tiranti si coordinano con altri dettagli scuri in cucina.
La cappa custom ha un profilo curvo. "Questo cliente aveva un stile di transizione con linee semplici e pulite, ma perché questo era un punto focale, abbiamo inserito delle curve per suscitare più interesse", dice Croce. "La fascia era macchiata per abbinarsi ai toni scuri del pavimento e per creare più contrasto con quel muro."
Questa vista offre anche uno sguardo più da vicino al vetro grigio da 2 pollici per 4 pollici piastrelle paraschizzi incastonate in un motivo a mattoni con stucco bianco.
Gamma: Noir in acciaio inossidabile, 36 pollici,
Rock Run Road ProjectQuesto lato interno dell'isola include cassetti con divisori e pioli per organizzare i piatti. "L'isola precedente era piuttosto piccola, quindi avendone una più grande isola con contenitore consente più spazio per gli elettrodomestici sul perimetro e tiene le persone fuori dalla zona di cottura principale quando afferrare i piatti", dice Cross.

Rock Run Road ProjectA Lavello in composito di granito monovasca sottotop color carbonio viene fornito con una griglia per lavabo e un filtro a cestello. È abbinato a un elegante rubinetto a scomparsa nero opaco. "Perché questo stile era di più di transizione, il sottopiano consente una facile pulizia e parla a quello stile", dice Cross. "Vado con un lavandino composito nero era anche un modo per attirare l'attenzione, invece di essere giusto un ripensamento."
Rubinetto: in nero opaco, Signature Hardware

Rock Run Road ProjectApplique da parete in bronzo brunito con i paralumi in vetro trasparente forniscono illuminazione sopra l'area del lavandino. "Questo la finestra era in realtà quella che abbiamo esteso, un ottimo modo per portarne di più luce dentro", dice Cross. "Di notte, il posto migliore per mangiare bene la luce d'accento è sopra il lavandino."
Una lavastoviglie da incasso in acciaio inox da 24 pollici con manico tascabile si trova a destra del lavandino. Un forno a microonde e a parete da 30 pollici e un frigorifero con portafinestra in acciaio inossidabile nelle vicinanze.

Rock Run Road ProjectA il mobile superiore poco profondo a destra del lavandino contiene tazze extra e vetreria. "Volevamo assicurarci intorno alla finestra che noi l'ho tenuto aperto", dice Cross. "Quindi, invece di renderlo completo armadio, abbiamo scelto una profondità di 12 pollici per mantenere quell'area bella e open."
Rock Run Road ProjectIl la stazione delle bevande offre un sacco di spazio di archiviazione e una TV per la famiglia utilizza per tenere il passo con notizie e sport.
Una mensola di legno galleggiante sopra la stazione si coordina con il fascia della cappa. "Era solo un altro modo per portare calore lo spazio e collega visivamente entrambe le aree", afferma Cross.
Gli ampi cassetti contengono oggetti divertenti, mentre il piano di lavoro gli armadietti per la vetreria e la posta consentono alla superficie di rimanere pulita Per servire. Vetrine con vetrine in alto espongono oggetti da collezione. "Abbiamo utilizzato luci a LED all'interno per creare un punto focale per il pezzi", dice Cross.
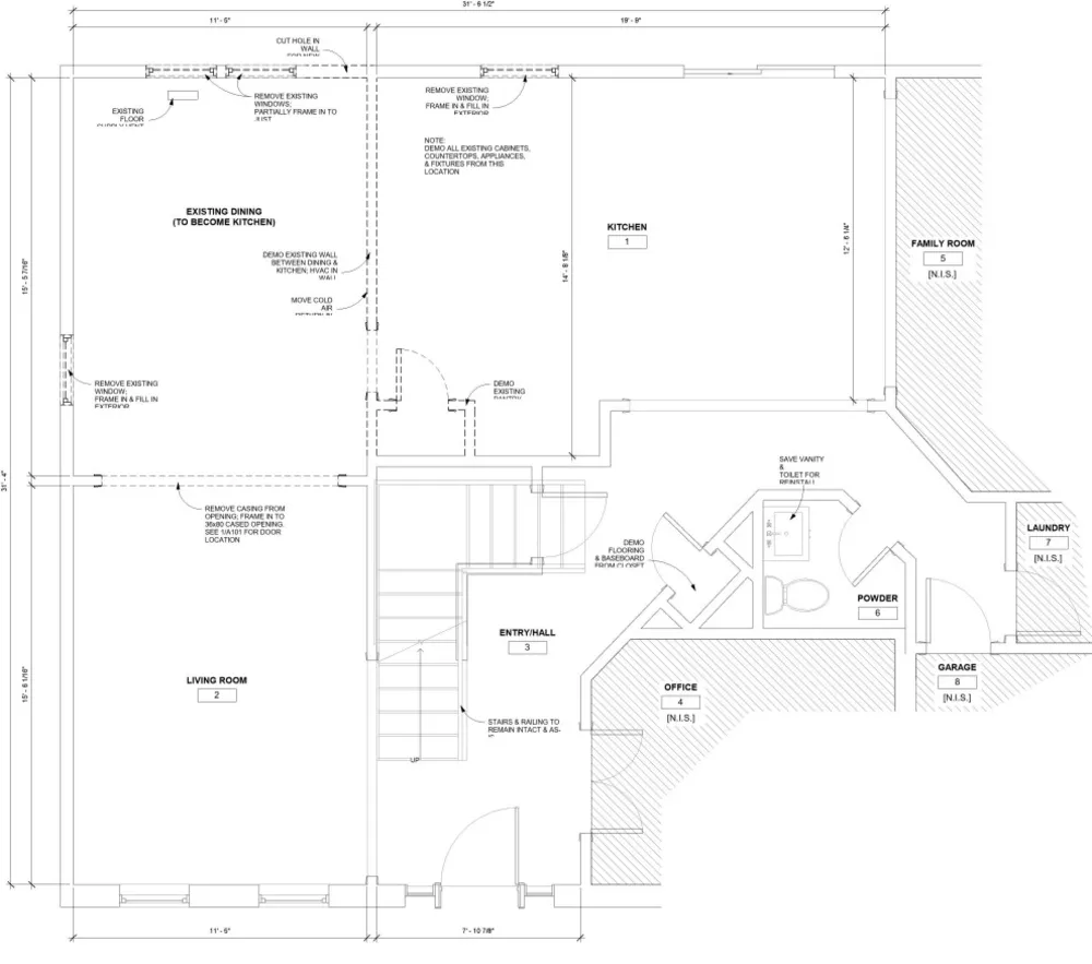
Rock Run Road ProjectFoto precedentePrima: Questa planimetria dell'ex cucina (in alto al centro) mostra la sua separazione dalla sala da pranzo raramente utilizzata (in alto a sinistra). IL disposizione taglia la cucina dal soggiorno principale (in basso Sinistra). "C'è stata molta separazione e nulla ha parlato davvero insieme", dice Cross.
Rock Run Road ProjectDopo: Cross ha rimosso il muro separando la sala da pranzo e ampliando la cucina in quella spazio (in alto a sinistra). Ciò ha consentito l'isola più grande e altro ancora layout efficiente a forma di U. "La cucina è un enorme miglioramento rispetto a quello che avevano in termini di stile e persino di elettrodomestici", dice Cross. "Ora hanno così tanto spazio. È una cucina che vogliono usare invece di una cucina devono usare."


# Ristrutturazione appartamento