Cucina della settimana: più grande, open space e green Armadi

Un'azienda di progettazione e costruzione abbatte i muri per aggiungere metratura e creare un layout arioso con una grande isola

Questi i proprietari di case non pensavano che la loro cucina murata funzionasse con il dimensioni espansive della loro casa. Volendo una cucina più grande e a grande disposizione della stanza, si sono rivolti ai designer Mina Fies ed Emily Bickl per chiedere aiuto. Il team ha abbattuto i muri, aggiunto un nuovo muro e ha trasferito la sala da pranzo a più del doppio della metratura della cucina e creare la grande sala aperta e ariosa avevano cercato i proprietari di casa. Ciò ha anche dato loro spazio per aggiungere un grande isola e molti armadi verdi anneriti che completano ricchi dettagli in legno.

Reston Contemporary Kitchen, Bar & Powder Room RemodelPrima FotoFoto del "dopo" diAshley Sullivan Marks of Fotografia espositiva
La cucina in breve
Chi vive qui: Una famiglia attiva con due bambini
Località:Reston, Virginia
Dimensioni:308 piedi quadrati (29 metri quadrati)
Designers:Mina Fies e Emily Bickl di
Prima:Uno sguardo all'ex piano principale mostra il natura murata della cucina di 130 piedi quadrati, dritto davanti a sé, e il soggiorno sulla destra. (Vedi planimetria "prima". sotto.)
Si intravede il lavello della cucina sotto la sponda di tre finestre, così come un bar a penisola che si apriva su una tana inutilizzata. "Essi voleva che l'intera grande sala fosse visibile da tutte le parti del casa e desideravo che la cucina avesse un collegamento migliore con il spazi in cui avrebbero intrattenuto i loro ospiti", Bickl dice.
Reston Contemporary Kitchen, Bar & Powder Room RemodelDopo:Fies e Bickl riportò la cucina ai montanti e se ne andò le pareti che lo dividono e il soggiorno per creare un ambiente luminoso e disposizione ariosa. Questo ha più che raddoppiato le dimensioni della cucina, a 308 piedi quadrati.Il nuovo lavello si trova nella stessa posizione sotto la sponda di tre finestre.
Un nuovo muro a sinistra ha sostituito la penisola e sostiene a ampia gamma. "I clienti andavano avanti e indietro chiudendo quel muro, ma non c'era modo di ottenere il bello gamma che volevano senza quel muro", dice Bickl. Il team di progettazione trasformato la tana inutilizzata in un'area bar domestica e polvere camera.
Mobili senza cornice in un colore verde annerito (Dakota Shadow di Benjamin Moore) mixa lo stile Shaker e le ante in lastra. "[IL proprietari di casa] hanno una personalità davvero eccezionale ed erano disposti a farlo sii avventuroso con il loro colore", dice Bickl.
Una trave in legno, infissi in legno, colonna portante e i pavimenti in rovere esistenti rifiniti aggiungono calore e completano il armadi verdi. Pareti e soffitto bianchi con un tocco di grigio freddo (Cascade Mountains di Benjamin Moore) e un semplice 3 x 12 pollici backsplash in piastrelle di ceramica bianca con stucco bianco esaltano il luce naturale che entra da lucernari, finestre e a porta scorrevole in vetro.


Reston Contemporary Kitchen, Bar & Powder Room RemodelPrima FotoPrima:l'ex cucina era in buone condizioni con elettrodomestici aggiornati e belle finiture, ma soffriva di a layout stretto e i proprietari di casa volevano elevare lo stile. "Noi cercare di donare quanti più elettrodomestici possibile e lo ha fatto in questo situazione", afferma Bickl.
Gli armadi sulla destra che circondano la gamma precedente danno a sbirciare nell'ex sala da pranzo con una porta scorrevole in vetro al cortile.
Reston Contemporary Kitchen, Bar & Powder Room RemodelDopo: Con la scomparsa dei precedenti armadi della gamma, Fies e Bickl hanno ampliato il cucina nell'ex sala da pranzo. Le grandi caratteristiche dell'isola armadietti sul lato dei posti a sedere per articoli stagionali e un sostanzioso piano in quarzo effetto marmo con bordi a cascata. "Penso che la i controsoffitti bianchi hanno permesso al colore verde di risaltare e anche portato una bella trama dall'aspetto naturale con l'aspetto del marmo", Bickl dice.
Un lampadario in stile metà del secolo con una finitura nera pende sopra il isola e coordinate con maniglie nere opache.
Lampadario: , Mateo Lighting; piani di lavoro: Calacatta Gold, Silestone di Cosentino

Reston Contemporary Kitchen, Bar & Powder Room RemodelThe lato interno dell'isola presenta numerosi cassetti, due prese elettriche e un forno a microonde in acciaio inossidabile da 24 pollici cassetto.
Questa vista mostra la connessione ora aperta alla zona giorno e sala da pranzo trasferita.

Reston Contemporary Kitchen, Bar & Powder Room RemodelA la stazione del caffè occupa una parete. Gli armadietti in acero contengono extra piatti e libri di cucina. Gli armadietti superiori vengono utilizzati di rado elementi; gli armadi e i cassetti inferiori contengono oggetti come biancheria e bottiglie d'acqua.
Due armadi alti che fiancheggiano la stazione del caffè sono dispensa armadi con ripiani estraibili. "Volevano il magazzino più alto di lato in modo che potessero mantenere bella e bella la zona cucina principale aperto", dice Bickl.
Reston Contemporary Kitchen, Bar & Powder Room RemodelThe i proprietari di case hanno fatto una pazzia sulla gamma professionale a doppia alimentazione da 48 pollici. "Entrambi amano molto cucinare e volevano che lo fosse l'area cottura quel bel regalo che si sono concessi con questa ristrutturazione", Bickl dice.
I ripiani in legno galleggianti mantengono la parete leggera, ariosa e coordinata con gli altri dettagli in legno. Un grande monovasca, sottotop il lavello in acciaio inossidabile si trova sulla destra.
In basso a sinistra si trova un centro per la spazzatura e il riciclaggio estraibile con pannelli del lavello, mentre una lavastoviglie inox è in basso giusto.
Gamma: serie Rise da 48 pollici a doppia alimentazione professionale gamma,Jenn-Air; : ZLINE; lavello: , Elkay; rubinetto: dentro Inossidabile artico, Delta

Reston Contemporary Kitchen, Bar & Powder Room RemodelThis l'ampia visuale mostra il nuovo acciaio inossidabile controprofondità intelligente da 36 pollici frigorifero con portafinestra in acciaio. A sinistra dell'intervallo puoi intravede la nuova area bar in quella che era stata la tana.
Reston Contemporary Kitchen, Bar & Powder Room RemodelThe bar presenta gli stessi armadietti verdi, banconi in quarzo effetto marmo e ripiani in legno aperti per un look coordinato. A destra stand la toilette di nuova costruzione con una porta tascabile salvaspazio e sfondo in grassetto.
Cucina della settimana: Reston ContemporaryPrima FotoPrima: questa planimetria dello spazio precedente mostra la disposizione compartimentata con la cucina (in alto al centro) recintato dal soggiorno (in basso). La tana inutilizzata (in alto sinistra) sedeva dall'altra parte della penisola, e la sala da pranzo (in alto a destra) sembrava un potenziale sprecato.
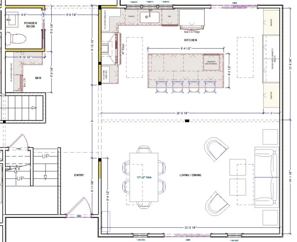
Cucina della settimana: Reston ContemporaryDopo: Rimozione le pareti hanno creato una grande stanza aperta e hanno contribuito ad espandere il cucina nell'ex sala da pranzo. Il bar e la toilette (in alto a sinistra) occupano ora quella che era stata la tana.
"Questa cucina ha davvero ampliato le loro opzioni e funzioni di archiviazione meglio per la loro famiglia", dice Bickl. "È diventato anche tanto di un'area di intrattenimento come il soggiorno e la sala da pranzo."


# Ristrutturazione appartamento