Cucina della settimana: stile morbido e arioso con molto altro Stoccaggio

In South Carolina, una cucina scomoda con finiture datate ottiene un layout migliore e un aspetto casual aggiornato

Dopo crescendo i loro tre figli, Mike e Linda Brawner si sono trasferiti a casa a due piani con vista sul lago Murray nella Carolina del Sud dove potevano rilassarsi e godersi la pensione. sebbene il la posizione era ideale, sentivano che molte caratteristiche nella casa del 2001 erano datate, specialmente la cucina con la sua scomoda disposizione, diversi tipi di piastrelle, isola pentagonale e insufficiente armadi.
Collaborando con un architetto, un designer e un ebanista, the Brawners ha creato uno spazio più user-friendly con un efficiente planimetria, stile più sofisticato e migliore spazio di archiviazione.
Ristrutturazione Lago MurrayFoto prima"Dopo" foto di Claretta Kaufman
La cucina in breve
Chi vive qui: la coppia di pensionati Mike e Linda Brawner
Località: Colombia, Carolina del Sud
Dimensioni: 300 piedi quadrati (28 metri quadrati)
Designers: (interior design) e (architettura)
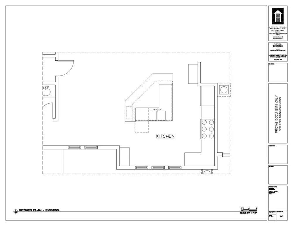
Prima: la cucina esistente soffriva di un disagio disposizione a causa di un'isola multilivello extra-larga, dalla forma strana che ha lasciato un sacco di spazio inutilizzato sulla destra.
L'ingresso della casa è all'estrema sinistra, oltre il bianco colonna. L'alto armadio bianco sulla mezza parete vicina si è aggiunto la natura spigolosa e confusa del layout. Intorno a destra lato dell'armadio alto, e di fronte all'isola, c'è un muro con un intervallo.
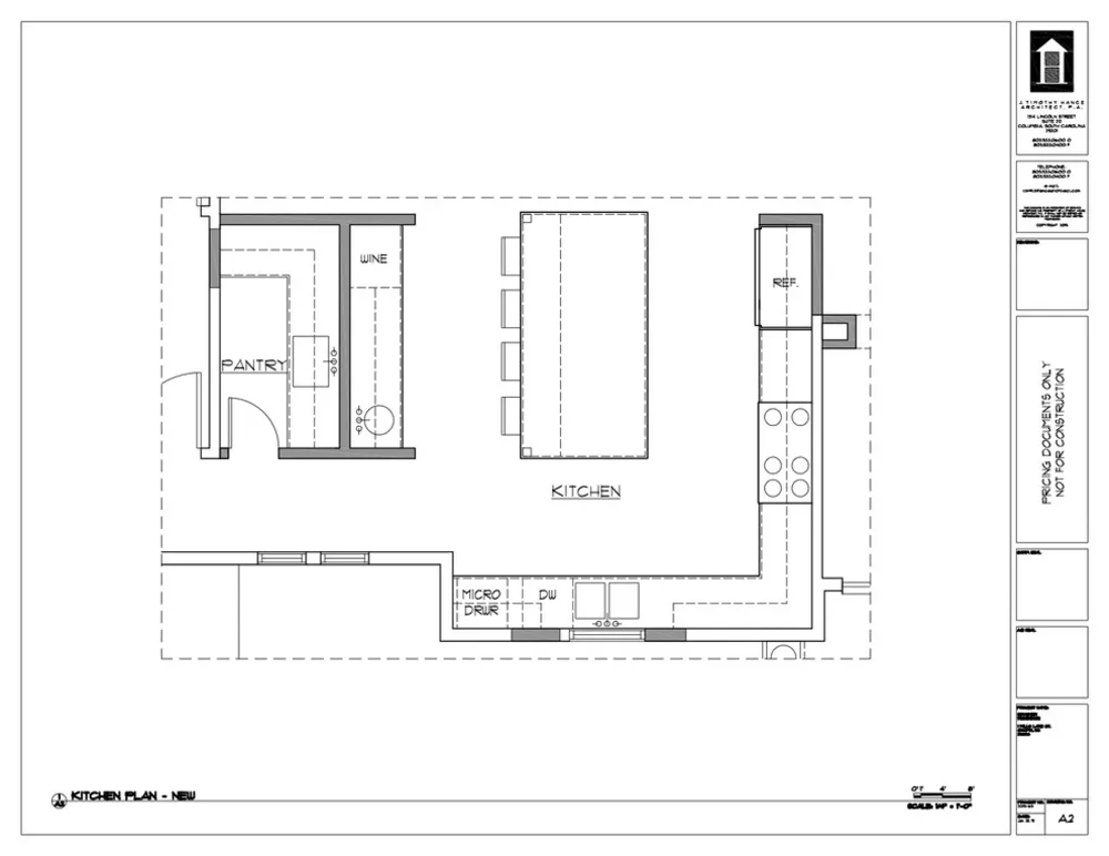
Mills LakeDopo: Questa foto, presa più o meno dalla stessa posizione della precedente foto, mostra comeunarchitetto Tim Hance è stato rimosso il mobile e la mezza parete a sinistra e prolungavano la cottura parete con un nuovo frigorifero pannellato. Ha sostituito l'isola precedente con un'isola rettangolare e aggiunto il muro sulla destra che contiene un nuovo wet bar e la dispensa del maggiordomo walk-in, o cosa Linda la chiama "cucina di preparazione".
Queste mosse di design hanno creato un layout più user-friendly che ha ristretto la cucina a una larghezza più praticabile e ne ha aggiunti circa 80 piedi quadrati.
Hance ha anche cambiato il muro della finestra sul retro da tre finestre sottili a un'ampia finestra operabile che offre viste, consente aria fresca all'interno e conferisce un aspetto più simmetrico con un'applique e armadi su ogni lato. Ha trasferito il lavandino su questa parete di fondo da dove si trovava nell'isola angolare.
Le travi di pino decorative sono state sgrossate per un po' di consistenza e poi macchiato per abbinarsi al bianco europeo macchiato largo 8 pollici assi del pavimento in rovere con finitura opaca.

Mills LakeLinda ha usato Servista per raccogliere idee per elettrodomestici e finisce, e il designer Steven Ford l'ha aiutata a guidare le sue scelte e creare uno schema di colori tenui. "Abbiamo fatto una gamma di grigi con il pareti, soffitto e mobili", afferma Ford. Le pareti sono moderne Grigio di Sherwin-Williams.
Per gli armadi su misura, Linda ha lavorato con l'ebanista Phillip Kaufman di creare un'archiviazione personalizzata che ne tragga vantaggio ogni centimetro di spazio. Gli armadi da incasso sono caratterizzati da cornici frontali in acero in una finitura grigio platino personalizzata con uno smalto sottile e a finitura catalizzata per una maggiore durata.
Una lampada a forma di lanterna color oro sopra l'isola personalizzata completa i toni dorati della cappa e del mobile hardware. Il marmo di Calacatta Borghini sovrasta l'isola. "Stefano mi ha incoraggiato a tenerlo tutto sul piano di lavoro e a non interrompere il spazio con un lavello di preparazione ", dice Linda. "È stato un consiglio meraviglioso. Adoro l'aspetto pulito e penso che aiuti davvero il bello Splendi Calacatta Borghini."
Ferramenta per mobili: in ottone, varie misure, Lew’s Hardware Bar serie, Forge Hardware Studio; lampada a isola: in ferro dorato-cera, Visual Comfort;appliques che fiancheggiano il lavello: , Visual Comfort

Mills LakeL'isola comprende ampi cassetti con chiusura ammortizzata diverse dimensioni per lo stoccaggio designato. Questo cassetto extra profondo di fronte alla gamma memorizza pentole e padelle, e ha un inserto per coperchi.

Mills LakeQuesto primo cassetto dell'isola include le posate inserti per forchette, coltelli, cucchiai e accessori per servire. "Esso mi aiuta a mantenere le cose dritte e tutto ciò che uso in un unico posto," dice Linda. "Un sacco di tempo, mangiamo proprio sull'isola, quindi è così fantastico avere tutto proprio lì."
Mills LakeIl mobile bar inoltre include vetrine superiori per la visualizzazione più fine bicchieri, un lavello da bar, un frigorifero per vini, un pannello frigorifero per bevande sottopiano e fabbricatore di ghiaccio a pannelli. "Noi vivere su un lago e divertirsi un po'", dice Linda. "Mio mio marito lavorava nel settore alimentare da 37 anni, quindi ne sapevamo di più la refrigerazione era un must."
Un corridoio fuori dalla cucina che conduce a un bagno di servizio sulla sinistra lato del mobile bar comprende anche la porta del nuovo walk-in dispensa. La sala da pranzo è a pochi passi dalla cucina il lato destro.
Cucina della settimana: migliore utilizzo dello spazio con spazio e stilePrima FotoPrima: Questa foto della cucina esistente era scattata dall'altra parte dell'isola (si vede l'alto armadio bianco che è stato mostrato nella precedente immagine "prima"). Questo colpo mostra i vari materiali, altezze e angoli sul isola.
"Il frigorifero era così vicino che riuscivi a malapena ad aprire la porta del frigorifero senza andare al bar dell'isola," dice Linda.
Lago dei MuliniDopo:Linda ama cucinare e ora ha un Gamma a doppia alimentazione da 48 pollici con cappuccio in acciaio inossidabile personalizzato. "IO sicuramente volevo molto spazio sul bancone su ciascun lato ", afferma. "Mi piace anche che la mia gamma abbia un forno più piccolo per l'uso quotidiano visto che siamo solo noi due. Richiede meno energia e noi in realtà lo usi più del grande forno."
Linda voleva qualcosa di un po' diverso dalle piastrelle della metropolitana per il backsplash, quindi ha deciso per una piastrella in ceramica bianca lucida con un forma esagonale allungata che Ford suggerì di correre orizzontalmente. "Il più delle volte, eseguo le cose in verticale perché dà il illusione dell'altezza, ma in questo caso non ne avevano bisogno", Ford dice. "Questa è solo una dichiarazione migliore."
Alzatina: piastrella in ceramica Cocoon Mosaic, collezione 6th Avenue, ; autonomia: 48 pollici doppia alimentazione, cofano personalizzato:

Lago dei MuliniA destra della gamma, include un ritiro contenitori in acciaio inossidabile per un facile accesso agli utensili da cucina. UN analogo cassettone sul lato sinistro presenta ripiani per olii, aceti e spezie.
Mills LakeUn angolo cieco mobiletto inferiore tra la gamma e la zona lavello comprende estraibili per le teglie di Linda. Questo aiuta a massimizzare lo spazio di archiviazione in questa sezione della cucina e rende facile per Linda farlo trova solo il piatto di cui ha bisogno.

Mills LakeLa cucina di preparazione dà a Linda un posto per l'ultimo minuto lavorare sugli antipasti durante l'intrattenimento. Include un lavandino, a lavastoviglie pannellata, frigorifero pannellato sottopiano e a centro di cottura. "Mantiene la cucina principale bella e pulita", ha detto dice.
Piano di lavoro: quarzite Bianco Pearl levigata,
Lago dei MuliniIl centro di cottura della cucina di preparazione con un mixer sul counter include questo mobile inferiore ad angolo cieco con estraibili per le teglie di Linda. Gli armadi superiori hanno contenitori per la farina, zucchero gocce di cioccolato e altri elementi essenziali per la cottura.
Lago dei MuliniUn mobile superiore poco profondo nella cucina di preparazione ha scaffali per le spezie extra, la gelatina, la marmellata e il caldo di Linda cioccolato. "Occupa poco spazio ma contiene un sacco di cose," dice Ford. "Non perdi nulla nella parte posteriore perché non lo è profondo."
Cucina della settimana: migliore utilizzo dello spazio con spazio e stilePrima FotoPrima: questa planimetria della cucina prima la ristrutturazione mostra il layout scomodo che ha lasciato molti sprechi spazio. La prima foto "prima" in questo articolo è stata presa da parte superiore di questa planimetria. Il quadrato con dentro un cerchio vicino all'angolo in alto a destra rappresenta la colonna bianca mostrata in l'immagine "prima".
Cucina della settimana: migliore utilizzo dello spazio con spazio e stileDopo: La planimetria migliorata rende la cucina molto più user-friendly e adatto per preparare pasti quotidiani e intrattenere. "Io amo per cucinare, e abbiamo una bellissima vista del lago da ogni sgabello in cucina", dice Linda. "Mi calma e noi lo adoro."


# Ristrutturazione appartamento