Cucina della settimana: i pensili Minty trasformano un appuntamento Spazio

Racchiudere un portico schermato in Texas apre la planimetria per una zona pranzo più spaziosa e un armadio più efficiente storage

Era la tua tipica situazione con un vecchio casa. La casa del 1955 di Amy e MikeGennrich ad Austin, in Texas, ha avuto la sua parte di problemi, incluso un tight cucina con mancanza di luce naturale, armadi fatiscenti con spazio di archiviazione insufficiente e un layout complessivamente scadente. "Apriresti il il forno e la cucina erano piccoli la metà", afferma il designer Justin Veloce, chi ha aiutato iGennrichesriconfigurano il layout e approfitta di un portico schermato per creare un zona pranzo più spaziosa e un nuovo vano portaoggetti vicino al finestrino zona.

Allandale metà secoloPrima della fotoFoto di Ryan Davis | CG&S Design-Build
La cucina in breve
Chi vive qui: Amy e Mike Gennrich; loro due bambini, di 12 e 7 anni; e il loro cane wiener, Daisy
Località:Austin, Texas
Dimensioni: la cucina e la sala da pranzo combinate sono 400 quadrati piedi (37 metri quadrati)
Designer: Justin Quick di
Prima: IGennrichessi sentivano la disposizione della cucina esistente era troppo angusta."Ci piace cucinare e ospitare la famiglia, e tutti sarebbero lì dentro e stava diventando troppo affollato", dice Amy.
La finestra sopra il lavandino dava sul portico schermato, uno spazio che la famiglia amava ma sentiva di poterci mettere uso migliore. "Era piuttosto buio là fuori", dice Amy. "E i portici dello schermo diventano davvero polverosi.

Allandale Mid-CenturyDopo: visto da Pretty più o meno lo stesso angolo dell'immagine precedente, puoi vedere come rimuovendo il muro, la finestra e gli armadietti sopra il lavandino e racchiudere il portico schermato ha creato un'atmosfera più aperta. Il portico divenne una sala da pranzo più confortevole. La ristrutturazione ha portato la cucina e la sala da pranzo da 190 piedi quadrati a 400 piedi quadrati.
Amy ha trovato CG&S Design-Build dopo aver notato che molti dei le foto che aveva salvato nel suo libro delle idee Servista erano state caricate dal ditta. Dopo aver contattato l'azienda, ha lavorato con Quick e i suoi colleghi su un piano di progettazione, che includeva lo spostamento del lavandino pochi piedi, estendendo il piano di lavoro e centrando la gamma la parete di fondo. "Abbiamo ampliato l'impronta ma non l'abbiamo fatta saltare fuori", dice Quick. (Vedi le planimetrie prima e dopo di seguito per ulteriori informazioni su come è cambiato il layout.)

La scelta del colore della vernice verde menta (Breaktime by Sherwin-Williams) è nata per caso. Quick aveva aggiunto a caso agli armadietti nel suo programma di modellazione computerizzata 3D, usandolo come segnaposto quando lui ei suoi colleghi avevano incontri con iGennrich. Più tardi ci hanno provato giocando con diversi colori del cabinet ma continuavano a tornare al verde menta. E si è bloccato."Pensavo che l'avremmo fatto hanno armadietti completamente bianchi, ma quando abbiamo visto la zecca l'abbiamo pensato sembrava davvero carino ", Amy dice.


Allandale Mid-CenturyPrima FotoPrima:Altri problemi nella cucina esistente incluso un frigorifero che sporgeva troppo e pannelli di particelle armadi che erano stati danneggiati dall'acqua gocciolante e dall'usura e lacrima. "Il layout era buono", afferma Quick. "Doveva solo esserlo ripensato".

Allandale metà secoloDopo: Mentre l'impronta no aumentato molto, è diventato più efficiente grazie a better deposito dell'armadio. "Mettiamo molti cassetti al posto delle ante" dice Quick. Ha anche portato gli armadietti al soffitto per massimizzare magazzinaggio.

Allandale MidcenturyPrima FotoPrima:The la parete del frigorifero era visivamente e fisicamente affollata.
Allandale metà secoloDopo: Un frigorifero da bancone ha contribuito a risparmiare pollici preziosi liberando spazio di archiviazione più efficiente spazio per un centro bevande. A destra del centro bevande è un nuovo mobile dispensa profondo 20 pollici.
Ripiani all'estremità dell'isola tengono libri di cucina. "È un bel modo di concludere la corsa del controsoffitto," Quick dice.

Allandale metà secoloLa stazione delle bevande include il forno a microonde e un piccolo frigorifero.

Allandale metà secoloUna pila di cassetti nei negozi dell'isola forniture per arti e mestieri. Amy possiede , attraverso il quale insegna artigianato ai bambini. Mike è un pediatra.
Cucina della settimana: i mobili verde menta ravvivano la casa di AustinPrima FotoPrima:il portico schermato includeva un picnic tavolo e un ripostiglio.
Allandale MidcenturyDopo:Un nuovo posto vicino al finestrino con lo spazio di archiviazione integrato ha sostituito l'armadio di stoccaggio e il resto il portico schermato è diventato la nuova zona pranzo. Amy ha avuto l'idea per il posto vicino al finestrino da varie foto che ha visto su Servista. "Quello è la parte che preferisco della ristrutturazione", afferma.
Gli armadi alti che fiancheggiano la finestra includono cassetti estraibili con deposito profondo. Gli armadietti superiori tengono le vacanze usate di rado stoviglie e forniture per feste. Ogni membro della famiglia ha un cassetto per le scarpe, e anche il cane wiener di famiglia, Daisy, ha il suo cassetto. In infatti, Daisy ha in qualche modo rivendicato il posto vicino al finestrino. A lei piace sdraiarsi sul cuscino con il mento sul davanzale, a guardia del casa.
La porta a vetri sulla sinistra conduce al posto auto coperto.
Una piccola area salotto con due sedie girevoli, appena fuori dall'inquadratura alla destra del posto vicino al finestrino, sostituito quello che era l'ex sala da pranzo area.

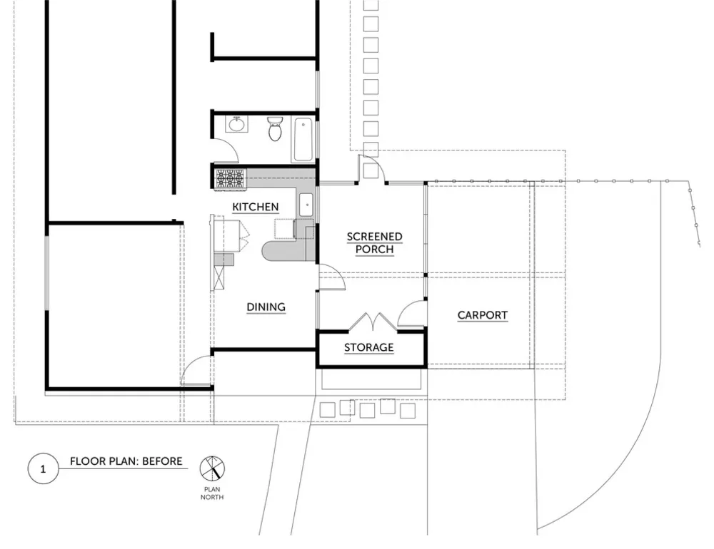
Cucina della settimana: i mobili verde menta ravvivano la casa di AustinPrima FotoPrima:questa planimetria del layout originale mostra la cucina compatta e la zona pranzo, al centro, e il portico schermato e ripostiglio a destra.
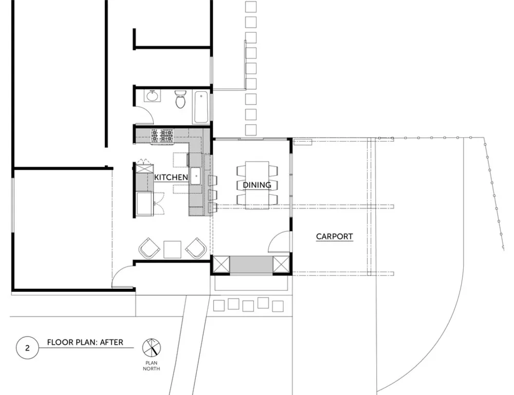
Cucina della settimana: i mobili verde menta ravvivano la casa di AustinDopo:The la nuova planimetria mostra come è consentito incorporare il portico schermato per una disposizione riconfigurata del piano di lavoro e dell'armadietto e altro ancora comoda zona pranzo e posto vicino al finestrino.



# Ristrutturazione appartamento