Servista Tour: benvenuto nella giungla in città

Un architetto australiano costruisce nel pendio sotto un vecchio Cottage di Brisbane per creare una vita simile a un terrario space

Terrarium House è la casa dell'architetto John Ellway e la sua compagna, Amber Winter. Dopo una ricerca di 18 mesi per a casa, si sono imbattuti in un cottage con una camera da letto a Brisbane, Australia. Anche se molte persone avrebbero trasmesso il edificio secolare che si stava sgretolando in una giungla di cortile, Ellway e Winter ne videro il potenziale e lo trasformarono in un casa lussureggiante e piena di luce che abbraccia il suo selvaggio dintorni.
StradaFoto di Toby Scott
Casa a colpo d'occhio
Chi abita qui:Architect e Amber Winter
Ubicazione: area di Highgate Hill a Brisbane, Australia
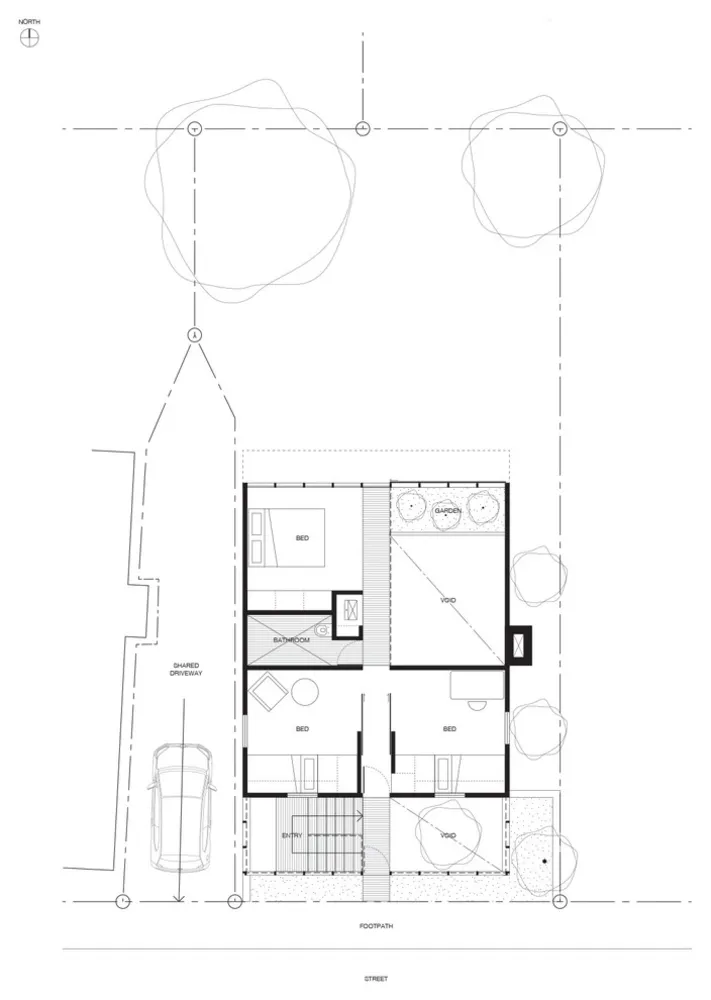
Dimensioni: 1.130 piedi quadrati (105 metri quadrati); tre camere da letto, due bagni
"La casa è nata come esercizio di pragmatica e gestione condizioni del sito problematiche, e finito come flessibile, casa di famiglia adattabile a strati con i nostri ricordi dell'infanzia e viaggia", dice Ellway.
Before – StreetFoto primaPrima: Ellway e Winter voleva una casa che potesse adattarsi a una giovane famiglia e stare comodo in tutte le stagioni. Dopo aver guardato le case per un anno e mezzo, la coppia si era quasi arresa quando loro notato questo cottage con una camera da letto. A 100 anni, aveva visto giorni migliori, ma Ellway e Winter ne hanno visto il potenziale.

Prima – CantiereFoto primaPrima:"The la terra scende di circa [8 piedi] dal marciapiede al cortile, e questo il cambiamento di livello significava che il cottage poteva crescere abitando il sottotetto aperto sottostante", dice Ellway. "Il paesaggio stradale e il il rapporto del cottage con il suo vicino gemello potrebbe rimanere intatto senza alzare la casa."
YardIl cottage ha un cortile esposto a nord. Nascosto nel pendio, riceve luce solare per tutto il giorno mantenendo più fresco all'interno temperature durante le calde estati nel nord-est dell'Australia stato del Queensland.
EsplosoDimensioni e costo erano i vincoli principali. Il lotto era relativamente piccolo di 2.315 piedi quadrati, il cottage necessitava di ampie riparazioni e il budget consentito solo per un piccolo aumento dell'ingombro.
"La pianificazione è stata la chiave per garantire che ogni spazio della casa fosse abilitato usi multipli o presi in prestito l'uno dall'altro", afferma Ellway. "Noi camere da letto create che potrebbero diventare aree di gioco più grandi; vanità che si aprono alla circolazione; aperture che prendono in prestito viste da cortili vicini; uno spazio lavanderia che funge da ampliamento della cucina; e uno spazio abitativo che sembra aperto come patio esterno."
Piano (superiore)La parte superiore, piano a livello della strada ha due camere da letto flessibili nella parte anteriore e a bagno e camera matrimoniale verso il retro. Ce ne sono anche due vuoti: Il primo è all'ingresso della casa, dove una passerella e le scale forniscono l'accesso a ogni livello; il secondo è sopra il sala da pranzo al piano terra accanto al padrone del primo piano camera da letto.
VineÈ coperto uno schermo a rete che si appoggia al marciapiede una vite di frutto della passione, che nasconde la facciata della casa. IL lo schermo è fissato in modo che le grandi porte e i pannelli intorno al la casa può rimanere aperta per la ventilazione incrociata.

VoidUna passerella in metallo e legno permette l'accesso alla casa, attraversando il vuoto all'ingresso. Questo vuoto esposto a sud ha felci lussureggianti e altre piante che non amano molto il sole, e il la vite del frutto della passione li protegge dalla mattina presto e raggi del tardo pomeriggio. Ellway ha anche selezionato la vite per la sua rapidità crescita. "Mi piace che sia una pianta produttiva, che possiamo usare e mangia. L'ora del cocktail al frutto della passione? dice Elway.
Un soffitto traslucido protegge la passerella esterna e le scale, che scendono nel giardino del livello inferiore. "Il fondamentale strategia era quella di creare una linea ambigua tra interno e giardino esterno - sei dentro o fuori? Elway dice. "Uno di la ragione principale di ciò era far sembrare gli spazi più grandi. IL casa ha solo [1.130 piedi quadrati] di superficie interna, ma l'ambiguità della piantumazione fa molto percepire l'area più grande."
HallwayLe camere da letto sono raggruppate e accessibili attraverso la porta del cottage originale. Ellway e Winter lo sperano le due stanze sul davanti un giorno saranno le stanze dei bambini. Le stanze avere ampie aperture fuori dal corridoio per creare una stanza più grande per i bambini per giocare insieme. Il bagno è al centro del pavimento e la camera da letto principale è sul retro, accanto al vuoto sopra zona pranzo.
Camere da lettoPannelli scorrevoli, al posto delle porte, può essere regolato per gestire il livello di privacy e apertura nelle camere anteriori.
Camera da lettoLe camere da letto hanno letti e scaffali personalizzati realizzati con blackbutt nativo e compensato.
ScaffaliLe camere dispongono di angoli per ninnoli e tesori ispirati ai ricordi dell'infanzia dei proprietari case.
Armadi, letti a incasso e scaffali:
VoidUna grande parete di pannelli scivoli aperti per consentire brezze attraverso la casa dal cortile a strada, e un giardino si trova dall'altra parte del vuoto. Ampiamente distanziati le tavole blackbutt forniscono una superficie di pavimentazione simile a un ponte. IL il lavabo da bagno si trova fuori dallo spazio bagnato a sinistra.
Vanity"È il posizionamento qui è per due motivi: il primo è che gli spazzolini da denti non dovrebbe mai trovarsi nello stesso spazio di una [toilette], e secondo - e probabilmente più importante: il rituale quotidiano di lavarsi i denti e asciugare i capelli diventa una cosa sociale che non viene nascosta", Ellway dice.
"Tutti possono comunicare durante la colazione o la cena fatto. Non solo al piano superiore del cottage, ma anche in basso attraverso il vuoto fino alla cucina e alla zona giorno."
BagnoLa doccia, come lo spazio d'ingresso anteriore, ha un tetto in policarbonato semitrasparente che lascia entrare luce e suono della pioggia. Il pavimento è in legno e le pareti lo sono rivestito con piastrelle in pietra calcarea.
"Il bagno è stato ispirato dai ricordi della doccia case e hotel durante i viaggi in Asia", afferma Ellway. "Durante il giorno, è uno spazio pieno di luce che sembra quasi aperto al cielo. Di notte, lo spazio diventa un'oscura caverna con una fioca sorgente di luce calda vicino all'ingresso."
I pannelli Blackbutt offrono una superficie calda e drenante. Regolare le piastrelle del pavimento si trovano sotto di loro.

ScaffaleEllway ha lavorato a stretto contatto con ebanisti e carpentieri. Il carpentiere e saldatore Ash Brown ha fatto gran parte del lavoro in acciaio, sperimentando idee meno convenzionali come quella del bagno binario e ripiano.

Camera da lettoLa camera da letto principale si trova accanto al grande vuoto, consentendo la sorveglianza passiva e la comunicazione in tutto il casa. "La connessione dei due livelli consente chiacchiere e attività", dice Ellway.
StairLe scale al davanti alla casa scendere al giardino in fondo al vuoto. I blocchi di cemento sul muro di contenimento creano un terrazzamento giardino.

Scale e balaustra in acciaio: Ash Brown

Piano (inferiore)Sul livello inferiore, lo spazio abitativo si trova sotto la parte anteriore della casa, con la zona pranzo e la cucina che si aprono sul cortile. IL la cucina avvolge la lavanderia e un secondo bagno, e il la passerella della camera matrimoniale si affaccia sullo spazio.
Void"La parte inferiore livello è stato progettato e dettagliato per evocare ricordi del ex sottotetto ombroso, con soffitti macchiati di nero che creano compressione quando entri", dice Ellway.Un solido muro al ovest protegge lo spazio dal sole pomeridiano, mentre è finemente strutturato il vetro a est cattura la luce del sole del mattino invernale.
L'artwork, Pool VI (2016), è di Jordy Hewitt.

VoceGrandi porte scorrevoli con telaio in legno racchiudono il lato nord e lati sud del livello inferiore. Sono invisibili quando sono aperti, scivolando dietro le pareti esterne e creando spazi che si sentono ambiguo. "Sei dentro casa o sei ancora fuori?" Elway dice.
VivereLa sporgenza perimetrale attorno alla zona giorno e pranzo crea la sensazione di sedersi sotto il livello del giardino. "Questo è un spazio seduto nell'ombra, che consente di ritirarsi dall'intenso Luce del Queensland", dice Ellway.
LivingMolti dettagli in casa sono statiinconsciamente ispirati da Ellway e i ricordi personali di Winter, di cui si sono resi conto solo dopo vivere in casa. "Il vetro oscuro traslucido e l'uso di schermi per aprire e dividere lo spazio evoca i nostri viaggi Giappone", dice Ellway.
DiningProtezione grondaia profonda il vetro a nord in estate e consentire al sole di fluire nel casa d'inverno. Luce screziata e ombre filtrano attraverso il vetro strutturato, che, come una lente soft-focus, offusca la vista la rigogliosa vita vegetale lungo il lato della casa. "Adoro guardare il modo in cui la luce cambia durante i giorni e le stagioni," Ellway dice.
LightL'illuminazione è minima e solo funzionalità dove necessario, sopra i banconi della cucina e il tavolo da pranzo e per lettura — creando un ambiente che aiuti relax la sera prima di dormire. Il resto dello spazio è illuminato dall'illuminazione del giardino fuori dalle finestre per arricchire il senso di essere circondati da una vegetazione lussureggiante.
di Poul Henningsen:Louis Poulsen
VoidLa cucina ha due zone: un'area pubblica per la preparazione del cibo, la cottura e divertente e un'area nascosta per elettrodomestici, lavaggio e dispensa.
Alza lo sguardo dalla sala da pranzo e puoi vedere il mobile del bagno, dando un senso di apertura e connessione all'interno del interno.
IsolaL'isola della cucina si trova su uno stretto, zoccolo in blocchi di cemento, che riduce le dimensioni e le dimensioni dell'isola sembra più un mobile che galleggia nello spazio. IL l'isola è fatta di solido blackbutt e sormontata da granito nero. La ceramica riempie gli scaffali aperti, mentre gli elettrodomestici sono nascosti dall'altra parte.
Lunar Black gi>piano in granito con finitura in pelle: e Servizi di pietra di precisione
CucinaUn grande cemento controsoffitto si estende lungo il muro occidentale della casa, che è in parte sotto il livello del suolo per proteggere le zone giorno da sole pomeridiano. Il bancone in cemento a sbalzo è strutturale, versato come parte della costruzione del muro e poi levigato e lucidato. Ampi cassetti in legno e la lavastoviglie pendono dal lato inferiore del bancone. "Mantenere il pavimento di cemento lucidato visibile sotto l'armadietto rende lo spazio più grande e più ampio - una strategia importante in una casa di soli [1.130 piedi quadrati]," Elway dice. Una mantovana in legno nasconde l'aspiratore personalizzato e il Illuminazione a LED.
Il frigorifero, la lavatrice, l'asciugatrice e la dispensa si trovano dall'altra parte cucina. "La dispensa ha un segreto", dice Ellway. "Un grosso metallo la cerniera gli consente di ruotare lontano dal muro come un pezzo completo di ebanisteria. Dietro si trovano molti dei servizi per la casa, inclusa acqua calda istantanea, patch panel, LED trasformatori, un inverter solare e uno spazio per il futuro batterie."
CucinareUn'asta d'acciaio con un ripiano in legno pende dal soffitto sopra il piano di lavoro. L'asta contiene oggetti di uso quotidiano, come come utensili e strofinacci, e lo scaffale è per pentole, soprammobili e piante.
Forno, frigorifero, fornelli a gas e integrati lavastoviglie:
VascaC'è un grande lavello all'estremità del bancone della cucina multiuso. "Può essere usato per il bucato, come bagno per i bambini e per il lavaggio di pentole e tegami di grandi dimensioni. È un ricordo del vasche prefabbricate trovate sotto molte ", dice Ellway, riferendosi a case tradizionali del Queensland spesso sopraelevate.
Un bagno semiesterno con doccia è alla fine della cucina, racchiusa da un'anta scorrevole in vetro testurizzato. È accanto a un giardino pieno di felci e si apre al vuoto frontale, esaltando il spazio simile a un terrario.


# Ristrutturazione appartamento