Servista Tour: casa sostenibile con studio di yoga

Entra in una casa flessibile progettata per ospitare il esigenze di una famiglia in età e stadi diversi

Quando è arrivato alla progettazione di questa nuova costruzione nel sobborgo costiero di Mosman Park a Perth, nell'Australia occidentale, i proprietari pensavano di no solo dei loro bisogni oggi, ma anche di come vorrebbero vivere in futuro.
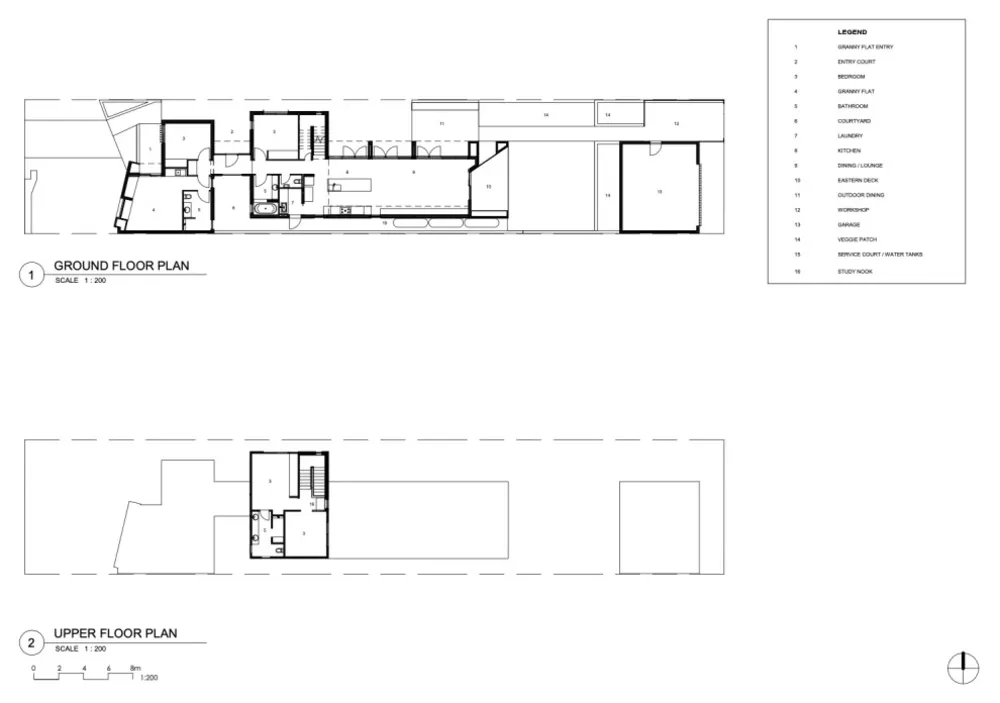
L'incarico è stato affidato all'architetto Simone Robeson di Robeson Architects creando un progetto per una giovane famiglia di quattro persone. Il brief incluso spazi flessibili che potrebbero adattarsi alle loro mutevoli esigenze, in più disposizioni per la nonna dei bambini lungo la pista. "Una chiave parte del brief era l'inclusione di un "appartamento della nonna", con il suo proprio bagno privato e angolo cottura e un ingresso privato. Questo spazio sarebbe stato utilizzato come studio di yoga fino a che punto la nonna dovrebbe trasferirsi", afferma Robeson.

Mosman Park HouseFoto die stitolo di

Panoramica della casa

Chi abita qui:Una giovane famiglia di quattro persone. IL la nonna dei bambini si unirà a loro in futuro.
Posizione:Mosman Park, Australia occidentale
Dimensioni:circa 2.895 piedi quadrati (269 metri quadrati)
Architetto:Simone Robeson, direttore dell'azienda, e Lauren Benson, architetto laureato, di
Costruttore:
Oltre a prevedere il cambiamento delle età, la casa doveva esserlo anche sostenibile. "Il cliente era sinceramente appassionato design sostenibile, che ha permesso a noi architetti di assicurarci queste funzionalità sono state implementate a tutti i livelli di progettazione", ha affermato dice.

Mosman Park HouseUna rampa accessibile in sedia a rotelle conduce all'ingresso della casa
Il risultato è una casa adattabile con cinque camere da letto e 3½ bagni (compresi quelli del unità di suoceri), con un'atmosfera rilassata e aperta che accoglierà lo stile di vita della famiglia per gli anni a venire. I clienti erano così felicissimi della loro nuova casa che hanno lasciato un grande per Robeson su Servista

Tour Servista: casa Mosman ParkIl cliente desiderava un ambiente flessibile e casa sostenibile che si adatterebbe alla loro giovane famiglia sia adesso che in futuro, compreso uno spazio abitativo privato e provviste per la nonna dei bambini quando si trasferisce a un certo punto il futuro.
Tutte le aree della casa dovevano essere accessibili in sedia a rotelle e rispettare il gold standard dell'Australia's Livable Housing Linee guida di progettazione, che richiedono corridoi, porte e spazi di circolazione.
Ciò significava anche il progetto necessario per affrontare una pendenza nel sito attraverso rampe e percorsi graduati per consentire a una persona di attraversare dal confine anteriore al confine posteriore senza salire o giù di un gradino.

Mosman Park HouseIl brief del cliente all'architetto includeva quanto segue:

Mosman Park HouseLoro volevano che la loro casa fosse semplice, funzionale e contemporanea Tatto. Hanno cercato di massimizzare gli spazi esterni e mantenere il ingombro interno al minimo, con l'architetto che utilizza elementi come grandi porte e finestre per creare un senso di apertura e connessione.
Mosman Park HouseLargo corridoi, porte più grandi della media e transizioni di livello in tutta la casa - oltre a una doccia più ampia della media con n gradini e un'ampia area di circolazione intorno alla toilette nel unità di suoceri - sono caratteristiche chiave che rendono la casa accessibile.
Mosman Park HouseIl cliente è appassionato di design sostenibile, quindi un significativo una parte del budget edilizio è stata destinata all'attuazione misure e progettazione sostenibili attraverso tutti i livelli della costruzione — non solo i materiali visibili, ma le carcasse e le borchie delle pareti pure. "È facile dimenticare i materiali da costruzione nascosti dalla vista, ma quando un proprietario prende sul serio la sostenibilità e è disposto a investire in essi, si traduce in un maggiore risultato sostenibile", afferma Robeson.

Mosman Park HouseRobeson ha optato per un open space zona cucina-soggiorno-pranzo che massimizza il senso dello spazio all'interno dell'impronta della casa.
La zona giorno è stata spinta al confine meridionale per consentirlo per aprirsi sui giardini.
La casa presenta pavimenti in cemento al piano di sotto e macchie riciclate assi del pavimento in legno di gomma nella camera da letto principale al piano di sopra.

Mosman Park House"Con il lotto che va da est a ovest, il la principale sfida progettuale è stata quella di garantire un'abbondante luce del nord potrebbe accedere alle principali aree abitative", afferma Robeson. "Abbiamo deciso non allineare il grosso della casa verso la strada, lasciando a ampio cortile, ma piuttosto creare zone esterne più piccole con i propri usi distinti che sono intervallati tra i impronta dell'edificio."
Mosman Park HouseIl l'ala vivente della casa corre da est a ovest ed è spinta a un'estremità della pianta, che si apre su una pianta rettangolare, settentrionale cortile. Ad est di questo c'è un ponte coperto, che riceve il sole del mattino.
Questo ponte si affaccia sul giardino più grande, con verdure e frutta alberi che circondano un'area giochi in erba per i bambini.
Perth è nota per le sue estati calde e secche, la temperatura così intelligente il controllo era una priorità, in particolare quando il cliente dispensava con aria condizionata.
Il cortile d'ingresso presenta uno stagno che attira brezze rinfrescanti verso l'interno nel pomeriggio. Feritoie situate adiacenti a lo stagno a bassa quota permette all'aria fresca di entrare in casa, mentre feritoie posizionate nella parte superiore del soffitto nel soggiorno ala dall'altra parte della casa espellere l'aria calda.
Mosman Park HousePoiché la famiglia trascorre gran parte del proprio tempo al chiuso nella cucina-soggiorno-sala da pranzo a pianta aperta, questo era un attenzione importante per il controllo del clima. "La grondaia rivolta a nord sono stati dimensionati per fornire un'ombreggiatura di 60 gradi. Ciò significa che il sole da ottobre a marzo [i mesi estivi in Australia] non raggiunge il vetri sottostanti. Anche queste finestre rivolte a nord erano dotate di doppi vetri per contribuire a moderare la temperatura interna", afferma Robeson.
"Le feritoie di basso livello sono state collocate sulle pareti meridionali mentre feritoie di alto livello sono state collocate sulle pareti settentrionali per promuovere i sud-occidentali per rinfrescare la casa. Grandi ventilatori a soffitto promuovere la ventilazione a flusso incrociato, afferma.

Mosman Park HouseLe mura meridionali e occidentali del casa sono state costruite con mattoni di utilità in cemento grigio che contribuiscono alla massa termica della casa. Specificare muratura con n la finitura applicata si aggiunge alla struttura robusta e sobria estetico.
Mosman Park HouseI boschi ecologici sono in primo piano in tutta la casa, aggiungendo calore e consistenza. La zona giorno i soffitti sono rivestiti con compensato riciclato, mentre l'esterno le pareti sono ricoperte di gomma maculata riciclata che diventerà grigia nel tempo.
Mosman Park House"Il al cliente piacciono molto i mobili scuri e lunatici, quindi abbiamo scelto carbone per la cucina, che funziona bene qui come no sminuire il caratteristico soffitto in compensato", afferma Robeson.
Mosman Park House Accoglienti angoli per sedersi dentro e fuori significa che ci sono un paio di posti dove godersi un caffè mattutino o rannicchiati con un libro.
"I clienti hanno lavori molto impegnativi, quindi questa casa è un rifugio per loro di rilassarsi e distendersi", dice Robeson. "I vestiti di legno l'angolo lettura incastrato nella parete del ponte orientale è uno dei preferiti. Questo punto riceve il sole mattutino e l'ombra pomeridiana - esattamente cosa è necessario per leggere o fare un pisolino.
"Sono questi piccoli dettagli che danno personalità a una casa", lei dice.
Mosman Park House"Il la facciata è stata progettata per avere aperture minime rivolte a ovest. Suo Perth: nessuno ha bisogno di troppi vetri rivolti a ovest", Robeson dice.
Mosman Park HouseA combattere il caldo sole pomeridiano, la finestra nella parete in muratura era incastonato in una profonda rivelazione, formando un posto vicino al finestrino, che è ombreggiato da un albero liquidambar (noto anche come sweetgum). Nello studio il la finestra ha persiane in legno.
Mosman Park HouseVerde le piastrelle aggiungono un tocco di colore e divertimento al bagno principale, che è utilizzato dai bambini. L'aggiunta di un passaggio al bagno lo rende facile i bambini di entrare e uscire e i genitori di aiutare con il bagno tempo.

Mosman Park HouseBiancheria da letto luminosa in un mix di stampe diverse aggiungono un'energia giocosa a uno dei bambini camere da letto.
Mosman Park HouseIl le camere da letto erano situate nella parte nord della casa per fornire spazi riposanti lontano dal soggiorno e dalla sala da pranzo più stimolanti aree.
Il livello superiore ospita la camera da letto dei proprietari di casa (nella foto), la loro bagno privato (sotto) e uno studio.

Mosman Park HouseIngegnere: WA Structural Consulting Ingegneri
Consulente Energetico: Lo Studio



# Ristrutturazione appartamento