Un moderno ponte di vetro collega vecchio e nuovo

Una casa di Sydney spinge i design tradizionali e contemporanei a il limite, offrendo ai suoi proprietari il meglio di entrambi i mondi

Avere ha vissuto per molti anni in un pittoresco bungalow nella grande Sydney e sviluppato forti legami familiari con la zona, i proprietari erano entusiasti trasformare la loro casa nel sogno di un nidificatore vuoto, dopo tutto tranne uno dei loro quattro figli si era trasferito. Nonostante la sua solida struttura e meravigliose caratteristiche d'epoca, è rimasta l'accogliente casa in mattoni bloccato nel passato, con una minuscola cucina e un soggiorno scollegato dal paesaggio.
La coppia aveva grandi sogni per creare un'emozionante casa per sempre, così hanno cercato uno studio di architettura che spingesse il confini del design contemporaneo ma conservano la bellezza del architettura tradizionale. Danny Broe ha realizzato la loro visione. "[Oltre] una cucina aperta, sala da pranzo e spazio abitativo, quello della coppia la lista dei desideri includeva una grande sala del treno per [il proprietario] set di treni all'avanguardia, quindi sapevamo fin dall'inizio che era così sarà una ristrutturazione non convenzionale", dice Broe.
Aggiunta contemporanea al bungalow californianoCasa a Colpo d'occhio
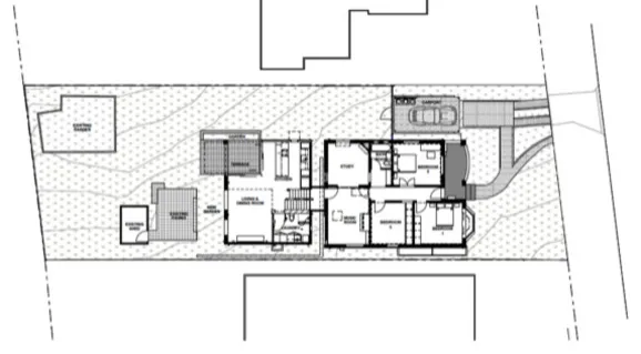
Chi vive qui: Un macchinista ferroviario, sua moglie designer e uno dei loro quattro figli
Posizione:area di North Epping a Sydney
Dimensioni: 2.465 piedi quadrati (229 metri quadrati); quattro camere da letto, due bagni
Architetto:
Fin dall'inizio, la coppia è stata di mentalità aperta e ha condiviso il la visione dell'architetto di aggiungere un'aggiunta contemporanea alla parte posteriore della casa, piuttosto che imitare la costruzione degli anni '40 il loro bungalow. "Abbiamo colto questa opportunità per fare qualcosa emozionante ma anche pratico, così abbiamo separato la vecchia casa e nuova aggiunta con uno spazio e li ha collegati con un ponte di vetro. L'approccio è stato quello di spingere lo stile di ogni parte all'estremo", Broe dice.
Aggiunta contemporanea al bungalow californianoIl bianco l'aggiunta simile a un cubo nella parte posteriore colpisce ancora con un tono scultoreo audace è ricoperto di legno sostenibile per legarsi al quartiere. Il sito è leggermente inclinato dalla parte anteriore a quella posteriore, il che ha permesso al oltre ad avere una disposizione su due livelli.
Il livello del pavimento scende al livello del giardino, creando il collegamento con l'esterno. Nel frattempo, salendo un mezzo volo di le scale ti portano nella stanza del treno che galleggia sopra. "Da aggiungere a la natura scultorea dell'aggiunta, la terrazza all'aperto è scolpito dall'estensione ed è invece uno spazio recessivo un add-on", dice Broe.
Aggiunta contemporanea al bungalow californianoLo stato del nuovo Il Galles del Sud ha accelerato la sua approvazione per il monocromatico tavolozza esterna. "Il processo di progettazione e approvazione è andato molto bene senza intoppi, permettendo a noi e al cliente di scegliere i colori che noi voluto, piuttosto che aderire ai toni terrosi preferiti dal consiglio ", dice Broe.
, il costruttore, ha poi realizzato delle tende da sole in alluminio sul lato ovest finestre, esaltando l'elegante aspetto contemporaneo del addition.
Aggiunta contemporanea al bungalow californianoIl bungalow originariamente aveva tre camere da letto, un angusto soggiorno, un piccolo cucina e una veranda in stile anni '60. Dopo essere stato amorevolmente restaurato, la casa comprende ora una sala pianoforte e uno studio per la donna di la casa, con porte scorrevoli tra di loro.
Aggiunta contemporanea al bungalow californianoUna doppia altezza il vuoto e le grandi finestre in alluminio creano un senso di spazio e luce nell'addizione. "Adoriamo gli spazi vuoti e il vuoto sopra il il soggiorno è uno dei migliori", dice Broe. "Il contrasto del spazi bassi contro le aree aperte crea sia intimità che drammaticità ed evoca un senso di dinamismo spaziale. Lo spazio stesso diventa un elemento scultoreo della casa."
Aggiunta contemporanea al bungalow californianoGrande scorrevole le porte offrono una splendida vista della terrazza dalla zona pranzo, mentre una lampada a sospensione pende da una parte inferiore del soffitto a illuminare il punto ristoro.
Il pavimento è in cemento lucidato con finitura brunita, risultante in un morbido look grigio.
Aggiunta contemporanea al bungalow californianoUn tappeto tattile definisce l'area salotto. È volutamente ridotto nello stile, permettendo al dramma di svolgersi attraverso l'architettura.
Aggiunta contemporanea al bungalow californianoUna di queste aree di drammaticità è il colossale muro di arenaria che segna la doppia altezza vuoto delle scale, iniettando consistenza, calore e interesse. "IL l'arenaria è stata tagliata a mano in loco, riciclando le fondamenta del demolito parte della casa e aggiungendo un altro collegamento tra il vecchio e il nuovo", dice Broe.
Aggiunta contemporanea al bungalow californianoLa cucina è accanto alle zone pranzo e soggiorno. Squadre di impiallacciatura di legno con a Piano di lavoro Piatra Grey Caesarstone per completare il grigio pavimento di cemento e il muro di pietra giallo burro. Una penisola offre una generosa superficie di lavoro per servire e intrattenere lo spazio di vita sociale assicura ancora che la zona cottura sia chiaramente definito dal layout a forma di U.
Elettrodomestici: Miele; rubinetto: Franke; cappa: Qasair
Aggiunta contemporanea al bungalow californianoUno dei le maggiori sfide per il team di costruzione sono state la costruzione del scala innovativa e strutturalmente avventurosa. "Ci sono pochissimi supporti verticali al corrimano mentre zigzaga verso l'alto e giù. È quasi come uno strumento musicale", dice Broe. "IL i fili di acciaio inossidabile sono in tensione e, di conseguenza, mettono molto di pressione sulla struttura. Abbiamo dovuto lavorare a stretto contatto con il ingegnere, costruttore, produttore di acciaio e certificatore di codici da raggiungere una struttura spigolosa ma sicura."
I gradini inferiori della scala sono in cemento fuori forma, creando una finitura scultorea in sé.
Aggiunta contemporanea al bungalow californianoContinua su scala e attraversi il ponte di vetro che porta nel vecchio parte dello spazio abitativo. L'aggiunta incorpora parte del esterno originale in mattoni, alimentando ulteriormente il vecchio e il nuovo connessioni e aggiungendo alle trame grezze trovate in tutto il nuovi interni.
Aggiunta contemporanea al bungalow californianoDopo l'attraversamento il ponte di vetro, si entra nella parte vecchia della casa, dove il la sala del pianoforte e la seduta dello studio, separate da porte scorrevoli.
Le caratteristiche originali, compreso il pavimento in legno, sono state rinnovate dove possibile.
Aggiunta contemporanea al bungalow californianoIl rustico il muro di arenaria si ripete nel nuovo bagno per creare una texture contrasto con il gres porcellanato scuro, mentre la sottile doccia screen aggiunge una nota elegante e contemporanea.
Riquadri:
Aggiunta contemporanea al bungalow californianoBroe lo dice è molto orgoglioso della sensazione "veramente eccitante e sensazionale". di spazio creato dalle aree vuote. "Ma siamo anche entusiasti il contrasto tra tradizionale e contemporaneo, e il puro natura di ogni componente", aggiunge.
Stickybeak of the Week: un ponte di vetro collega vecchio e nuovo|||| |||||||< /span>
# Ristrutturazione appartamento