Kasten van gebleekt wit eiken schitteren in deze tweekleurige uitvoering Keuken

De kasten en een nieuwe indeling transformeren een eens donkere New Jersey keuken tot een lichte ruimte

Voor meer dan 16 personen jaren had een stel uit New Jersey het uiterlijk van hun willen veranderen verouderde keuken, met zijn donker gebeitste houten kasten en disfunctionele indeling. Eindelijk, met twee dochters naar de universiteit en een op de middelbare school, waren ze klaar om een renovatie aan te pakken. Ze huurden ontwerper Amy Brown in om hen te helpen een betere flow te creëren en een meer luchtige look met handgebleekt wit eiken kasten.
Heights Road Residence"Na" foto's door
Keuken in één oogopslag
Locatie: Ridgewood, New Jersey
Wie woont hier: Een echtpaar met drie dochters, twee in universiteit en één op de middelbare school
Grootte: ongeveer 33 vierkante meter
Ontwerper: Amy Brown van
Handgebleekte wit eiken kasten voor de koelkast met panelen op de links en het eilandbasispaar met esdoornkasten geschilderd en gebroken wit met grijze ondertonen (Strong White van Farrow & Ball). creëer een licht en luchtig gevoel in de gerenoveerde keuken.
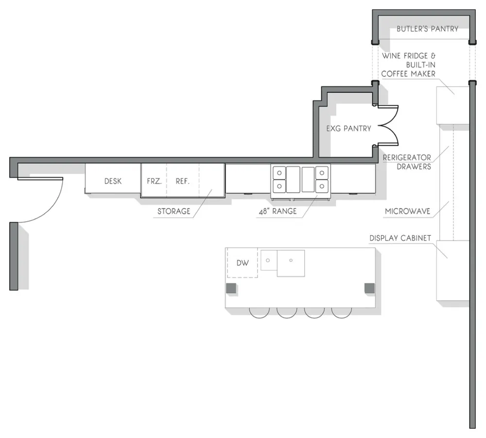
In plaats van muren te verwijderen, wat kostbaar zou zijn geweest veranderingen, Brown behield de algemene voetafdruk van de open keuken. Maar ze creëerde een efficiëntere lay-out met nog 4 lineaire voeten van kasten door het fornuis en de spoelbak tegelijkertijd op dezelfde plek te houden het verplaatsen van de koelkast (nu panelen, links gezien in deze foto). "Het verplaatsen van de koelkast was heel belangrijk iets voor ons', zegt Brown. "Vroeger voelde het volledig verwijderd uit de hele ruimte."
: Visueel comfort
Keuken van de week: met de hand gebleekte witte eiken sterren in New YorkVroeger FotoVoor: Deze foto toont het voormalige donker kasten, waarvan de huiseigenaren vonden dat de keuken er somber uitzag. De sierlijke houten afzuigkap boven de kookplaat zorgde voor een zwaar gevoel. Een paar van muurovens en de roestvrijstalen koelkast van het gezin zat onhandig buiten de belangrijkste werkdriehoek. "De apparaten waren verspreid en er was geen organisatie', zegt Brown.

Heights Road ResidenceNa: Naast de aansteker kasten, bovenkasten met aan weerszijden zwevende planken het assortiment hielp de look en feel van de keuken te transformeren. "Wij kwam altijd terug op het verlangen naar een lichte, open ruimte, maar hier bij de bereik ging het om een ontspannen en welkom gevoel met open planken', zegt Brown.
Een geglazuurde witte bakstenen backsplash verving de beige tegel, terwijl hij zacht was neutraal grijze muren met een vleugje groen (Bone by Farrow & Ball) zorgen voor een aantrekkelijk decor. "We wilden geen gewone metro tegel, 'zegt Brown. "We gingen met de geglazuurde baksteen mee als zoveel textuur in de keuken als we konden."
De huiseigenaren, die hun oude kasten en apparaten schonken aan de non-profitorganisatie behield de bestaande houten vloer en hangers boven het eiland maar verving de beige granieten aanrechtbladen door duurzaam lichtgrijs kwarts op zowel het eiland als de omtrek tellers.
Heights Road ResidenceA aangepaste marineblauwe metalen kap boven de nieuwe 48-inchreeks creëert het middelpunt van de keuken.
Heights Road ResidenceA metalen pottenrek toegevoegd boven de zwevende plank rechts van de assortiment houdt potten en pannen binnen handbereik van de kookplaat. "Wij geprijsd een volledig op maat gemaakte uit ongelakt messing, maar dat kwam in meer dan we bereid waren uit te geven', zegt Brown. "Wij winkelden rond en vond dit geweldige alternatief."
Heights Road ResidenceDe paneelkoelkast met messing handgrepen en de hoge en slanke voorraadkasten met messing vergrendelingen coördineren met de koperen hardware die is gekozen voor de geverfde esdoorn kasten en lades. "We hielden ervan hoe het koper speelde de witte eik, 'zegt Brown. "Het gebruik van knoppen, handgrepen en sluitingen stelde ons in staat om wat interesse en opwinding te brengen in de keuken."
Kasten op maat:
Heights Road ResidenceNaar de linkerkant van de koelkast, Brown voegde dit werkgebied toe, wat inclusief een gebroken wit ingebouwd bureau met lades en een grote kast boven. "Het was ongebruikte ruimte vanwege de indeling van het oude keuken', zegt ze. "Dit geeft ze een thuishub voor hun schema's en laat haar zich verbonden voelen met het gezin ruimte."
Heights Road ResidenceA meer gestroomlijnd eiland met een gootsteen onder de boerderij, op het dek gemonteerde brugkraan en lichtgrijze kwartswerkbladen verving het voormalige eiland en de verhoogde lat. De familie bestaande roestvrijstalen vaatwasser zit handig aan de rechts van de gootsteen.
Links van de spoelbak bevinden zich lades voor bestek en uittrekelement afval- en recyclingbakken.

Heights Road ResidenceDe glazen deur aan de linkerkant leidt naar een dek. De vaste deur om de hoek van het assortiment gaat open een inloopkast. De voorraadkast van de butler (rechtsachter van de foto) zit vlak bij de belangrijkste werkzone van de keuken. A rechts is een grote op maat gemaakte gebroken witte opbergeenheid zichtbaar.
Heights Road ResidenceDe uitgestrekte gebroken witte gewoonte opslageenheid heeft een dubbele functie als een onderhoudend centrum en omvat een ingebouwd koffiezetapparaat, wijnkoelkast, twee koelkastladen voor dranken, een magnetron en een tweezijdig glazen hok voor het uitstallen van serveware en decoratieve artikelen. "I voelde dat het iets was dat ons een unieke kijk zou geven op een traditionele servieskast, en het was onderdeel van ons doel om te maken deze ruimte voelt open en luchtig aan', zegt Brown.
Heights Road ResidenceDeze close-up van de bijgewerkte butler's voorraadkast benadrukt het lichtgevende marmeren mozaïek achterwand. De leigrijze (Downpipe by Farrow & Ball) kasten en lades zijn voorzien van meer koperen hardware.
De bovenkasten hebben een rift-cut wit eiken interieur dat coördineert met de panelen koelkast en vriezer kolommen en de basis van het eiland.
Keuken van de week: unieke look, mix van texturen in New JerseyVroeger FotoVoorheen:Deze plannen laten zien hoe de RVS koelkast en twee onderbouw wandovens werden weggeplaatst van de gootsteen en kookplaat.
Keuken van de week: unieke look, mix van texturen in New JerseyNa: De vernieuwde keuken biedt nu een efficiëntere indeling, gemakkelijk toegankelijke opbergruimte en een bureau. "Het creëert een ruimte die ze willen zijn die zowel comfortabel als mooi is, in plaats van een plaats alleen om te koken', zegt Brown.


# Appartement renoveren