Servista-tour: is dit het groenste Victoriaanse huis van het VK?

Denk dat je geen ouderwets huis kunt hebben dat warm, droog en energiezuinig? Dit Engelse herenhuis smeekt om meningsverschillen. Wij denk vaak aan Victoriaanse huizen als vochtig, tochtig en niet bijzonder milieuvriendelijk, maar wat als het kon pas een historisch gebouw aan om het droog, warm en energiezuinig te maken en goed voor je gezondheid? Dat is precies waar het team naar op zoek is milieuadviesbureau Ecospheric deed het door een huis in te richten Engeland is de eerste Victoriaanse die voldoet aan de strenge milieunormen ingesteld door het Passiefhuis Instituut in Duitsland.
Zetland PassiefhuisFoto's door Rick McCullagh
Herenhuis in één oogopslag
Wie woont hier: Het huis staat te koop.
Locatie: Greater Manchester, Engeland
Grootte: Vijf slaapkamers, 2½badkamers
Ontwerpers: Kit en Ellie Knowles van en (architectuur)
Dit prachtige Victoriaanse herenhuis en zijn buurman waren geweest in de jaren 80 verbouwd tot appartementen, dus het doel was om te brengen het oorspronkelijke karakter van het gebouw terug te brengen en modern te gebruiken technologieën om het milieuvriendelijk te maken voor .
Eerst isoleerde het team het gebouw met gerecycled papier isolatie en de dikke lagen aan weerszijden van het gebouw hier te zien bekleed met koper. De leidingen en goten zijn dat ook gemaakt van koper, gekozen vanwege zijn duurzaamheid.
Servista Tour: is dit het groenste Victoriaanse huis van het VK?Voorheen: Het huis was in de loop van de tijd gemoderniseerd jaar, dus wilde het team de originele kenmerken herstellen gebruikmakend van zowel moderne als traditionele technologieën.
Zetland PassiefhuisDe voordeur is ontworpen in het Victoriaanse stijl, met voorgevormde panelen, maar met moderne warmte functies om het huis grondig geïsoleerd te houden.
Het plaatsen van de brievenbus in de lage bakstenen muur links vermeden een gat in de deur hebben dat tot problemen had kunnen leiden tijdens Passiefhuis druktesten. De meeste brievenbussen zijn ook van gemaakt metaal, wat problemen met vocht kan veroorzaken. "Een externe oplossing omzeilt al deze problemen", zegt Ecospheric-ontwerper Kit Knowles, die samen met zijn vrouw en bedrijf het project leidde partner, Ellie.

Zetland PassiefhuisNaast het milieuvriendelijk maken van de woning vriendelijk, het team wilde de mooie periode herstellen elementen van het oorspronkelijke gebouw.
Het team legde langs de voorkant ongeglazuurde Victoriaanse mozaïektegels pad en in de gang, en gipsen kroonlijst op maat geplaatst, plafondrozen en lijstwerk door het hele huis.

Zetland PassiefhuisEcospheric is gespecialiseerd in het maken van ramen volgens de passiefhuisnormen. In deze periode herenhuis, het team glas-in-loodramen met driedubbele beglazing geïnstalleerd.
Kalkpleister op de muren reguleert de luchtvochtigheid en creëert een gezonde omgeving. Kalk krijgt ook milieupunten voor koolstofdioxide absorberen wanneer het droogt.
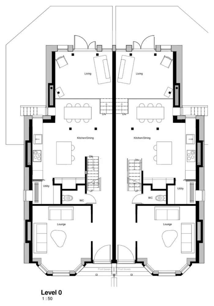
Servista Tour: is dit het groenste Victoriaanse huis van het VK?De twee aangrenzende woningen werden bijgewerkt met bijpassende indelingen. Dit is de begane grond.
Zetland PassiefhuisLokale meubelmaker maakte de keuken kasten van massief hout, dat duurzaam genoeg is om lang mee te gaan jaren. "We gebruiken Engels [woods] en halen ze vaak uit een duurzaam online knooppunt genaamd TreeStation', zegt hij.
Messing keukenkraan:
Zetland PassiefhuisHet berken multiplex deuren op sommige kasten zijn bedekt met een watergedragen, reukarme donkerblauwe verf. De omtrek werkbladen zijn gemaakt van duurzame leisteen uit Wales.
De ruimte is voorzien van energiezuinige apparaten. Messing aan de spatwand en armaturen zorgen voor een luxueus gevoel.
Zetland PassiefhuisEen kleine bijkeuken is weggestopt naar de hoek van de keuken. Naast wasapparatuur, het bevat geventileerde lades voor het bewaren van groenten.
Zetland PassiefhuisArchitect Chris Rodgers van Guy Taylor Associates legt de getrapte lay-out aan de achterkant van de herenhuis: "De oorspronkelijke begane grond was hoog opgehoogd boven de tuin, en de gladde trappen waren niet ideaal voor gezinsleven. Dus het interne maaiveld werd verlaagd tot lijn op met de tuin."
Zetland PassiefhuisIn plaats van het gebouw te ondersteunen met een stalen balk, het team gebruikte hout, dat minder energie kost fabricage, zegt Kit. De balken zijn gepositioneerd in een A en een V structuur, zowel om praktische als esthetische redenen: De driehoekig ontwerp is extreem sterk, en het ziet er goed uit architectonisch verbluffend.
Zetland PassiefhuisEr is geen dure centrale verwarming systeem; in plaats daarvan bevat het herenhuis slim ventilatie.
De mechanische ventilatie met warmte terugwin systeem is in wezen een reeks kanalen die door het huis stromen en haal muffe lucht uit vochtige ruimtes, zoals de keuken, bijkeuken kamer en badkamer, en vervang deze door frisse lucht van buiten. A warmtewisselaarbox gebruikt de muffe lucht om de frisse lucht te verwarmen, die vervolgens gelijkmatig over het huis wordt verdeeld.
"We hebben ook een door de overheid goedgekeurde houtkachel toegevoegd, maar als een gezellige functie in plaats van een essentiële warmtebron, "Ellie zegt. "Het is kamerafsluitbaar, wat betekent dat het lucht van buiten gebruikt het pand in plaats van warme lucht van binnenuit aan te zuigen."
Zetland PassiefhuisDe achterzijde van het herenhuis is goed geïsoleerd zoals de zijmuur, maar hier is hij bedekt met een rot- en UV-bestendig hout. "Het [hout] is voortijdig verouderd, waardoor het onderhoudsvrij is en deze mooie bleke kleur krijgt kleur', zegt Ellie.
De ramen liggen op het zuiden om de zonnewinst te maximaliseren.
Het pad is aangelegd met hout dat is teruggewonnen uit de balken van het huis, en de tuinmuur is gemaakt van teruggewonnen bakstenen.
Zetland PassiefhuisDe damestoilet heeft bovenop een wasbak van de toilettank, die helpt bij het recyclen van water. Wanneer het toilet is gespoeld komt er vers water uit de kraan om de handen te wassen en wordt dan opgeslagen in de tank eronder om later voor te gebruiken blozen.
Water door het hele huis wordt verwarmd door een boiler die verwarmt alleen wat nodig is. Het maakt gebruik van technologie die water binnenin stratificeert de tank van warm naar koud en verwarmt geleidelijk water terwijl het wordt gebruikt, in plaats van het hele volume meteen te verwarmen. Het huis energie wordt geleverd door fotovoltaïsche panelen op het dak en, zoals de huis meer stroom opwekt dan het gebruikt, kunnen de eigenaren verkopen elektriciteit terug naar het landelijke net.
Servista Tour: is dit het groenste Victoriaanse huis van het VK?Boven op de tweede verdieping zijn twee slaapkamers, een familiebadkamer en een .
Zetland PassiefhuisHet erkers in de woonkamer en de hoofdslaapkamer, afgebeeld, zorgde voor enkele uitdagingen toen het team de binnenmuur.
"Om eventuele vochtgerelateerde risico's te ondervangen, hebben we een vrijstaand gemaakt intern [houten] frame, "zegt Kit. Maar om het allemaal passend te maken, ze moest de binnenste metsellaag volledig verwijderen en vastbinden buitenste laag aan het houten frame voor ondersteuning.
Zetland PassiefhuisHet origineel vloerplanken,behandeld met een ademende vernis,zijn gelegd in een chevronpatroon in tal van kamers door de hele huis.
De kroonluchters en hangers in alle kamers kwamen van,een lokaal bedrijf dat herstelt en upcyclet antieke verlichtingsarmaturen.
Hoofdeinde van teruggewonnen hout: ohn George Fine Timmerwerk
Zetland PassiefhuisHet en suite badkamer is voorzien van een ruime douche omzoomd met Toscaanse marmeren tegels, die ook de keukenvloer bedekken. "We wilden laten zien dat een eco-huis zowel stijlvol als praktisch kan zijn", zegt Ellie.

Zetland PassiefhuisLichtschakelaars en stopcontacten zijn gemaakt van ongelakt koper, dat van nature antibacterieel is eigendommen.
Zetland PassiefhuisHet muren in de kinderkamer zijn geverfd met een product dat een combinatie van limoen en grafeen (niet te verwarren met de grafiet in je potlood), een nieuwe en oersterke en duurzame materiaal. Het is ook een efficiënte warmtegeleider, waardoor het kan de woning thermisch regelen.
Zetland PassiefhuisA een ligbad staat op het verlanglijstje van veel mensen, dus het team moest wel weeg de voor- en nadelen van het installeren van een in de badkamer. "De de sleutel is om ze als een luxe te zien en niet als iets dat je elke keer gebruikt dag", zegt Kit. "Bij baby's kun je een babybadje binnen gebruiken bad om water te besparen, en als mijn drie kinderen nu in bad gaan, doen ze dat allemaal ga samen naar binnen.'
Om de kuip te compenseren, beperkte het team de stroom van de douches thuis tot minder dan 2½ gallon per minuut.
Bad:
Zetland PassiefhuisLED stroken verzonken in de achterwand zorgen voor energiezuinigheid verlichting hoog op het schuine plafond.
Servista Tour: is dit het groenste Victoriaanse huis van het VK?The plattegrond op de derde verdieping toont drie slaapkamers en een badkamer elk huis.


# Appartement renoveren