Kjøkkenet åpner opp til tilstøtende rom og utsikt fra utsiden

En ny layout og en begrenset palett hjelper denne australieren kjøkkenet føles større enn det er

I denne spørsmål og svar intervju, arkitekteneNick Skepper og Zuzana Kovar deletenkningen bak kjøkkenet de har designet for en renovert hytte fra 1950-tallet i Brisbane, Australia.
Tarragindi HouseBilder av Toby Scott
Kjøkken med et blikk
Hvem bor her: En ung familie med to barn
Sted:Tarragindi-området i Brisbane, Australia
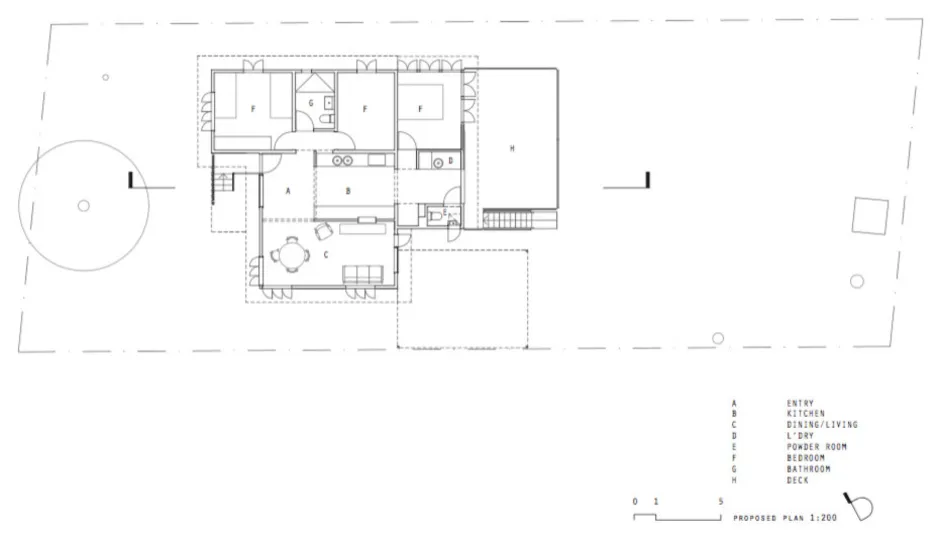
Størrelse:22 x 10 fot (6,7 x 3 meter), inkludert pantry og klesvask
Arkitekter:Nick Skepper og Zuzana Kovar, direktører for
Tarragindi HouseHva var målet?Prosjektet involverte renoveringer av en eksisterende hytte fra 1950-tallet som inkluderte en nytt kjøkken, vaskerom og toalett. Det opprinnelige kjøkkenet var en mørk plass i midten av huset, isolert fra tilstøtende rom på grunn av minimale åpninger, og mangelfulle bekvemmeligheter mht lagring og [disk] plass.
Nye åpninger ble skåret inn i eksisterende vegger, og kjøkkenet [var] rekonfigurert fra en L-form til en bysse for å forbedre tilgangen til lys, og skaper dermed utsikt til hagen og forbindelser med tilstøtende rom. En minimal og moderne designtilnærming, som var fortsatt sympatisk med karakteren til den eksisterende hytta, ble forfulgt.
Overheadlagring ble unngått for å opprettholde en følelse av åpenhet på en ellers liten plass, med spyleskap detaljer brukes også av denne grunn.
Tarragindi HouseHvor startet du?Det sentrale fokuset av det nye designet var å la kjøkkenet fungere som hjemmets romlige og sosiale fokus. Kjøkkenet visuelt og kobler bokstavelig talt inngangsdøren til bakdekket og hagen, og denne kvaliteten ledet de fleste designbeslutninger.

Tarragindi HouseHva var fargepalett?Sorte gulv, hvite vegger og tak, naturlig [treverk] finish.
Tarragindi HouseOg materialene? Eksisterende tregulv ble beiset med Feast Watsons. Skapet er i en Tasmansk eikefiner, og den [benkeplater] er betong. Det ble brukt hvitlaserte keramiske fliser på [backsplash], og spesialdesignede messingdetaljer var inkludert gjennomgående, som på skaphåndtak og kjøkken hengende skinne.

Tarragindi House
Tarragindi HouseHva er nøkkelinnredningen?En Serge Mouille pendellampe [og] en tilpasset opphengsskinne i messing designet av Zuzana & Nicholas.
Tarragindi House
Tarragindi HouseHva var utfordringene?Å jobbe innenfor det eksisterende fotavtrykket til det lille huset satte en streng grense for tilgjengelig plass til kjøkken, og oppbevaring måtte ordnes nøye.

Ukens rom: Zuzana&nicholasHvorfor gjør rommet fungerer?Den strenge materialpaletten og enkle detaljeringen tillater en kompakt plass å føle sjenerøs og stille, mens den sentrale plassering i huset gir mulighet for sosiale forbindelser mellom rom — en kokk kan chatte med noen i salongen, på dekk eller [til] barn som gjør lekser på soverommene.


# Renovering av leilighet