My Servista: A House Made of Mud in Arizona

Et par restaurerer en adobe-bygning fra 1880-tallet i Tucson murstein ved murstein som blander rustikk finish med midcentury innredning


My Servista: The Arizona House Made of MudHouse at a Blikk
Hvem bor her: og Christopher Cokinos
Sted: Barrio Viejo-området i Tucson, Arizona
Størrelse:Hovedhus på 3800 kvadratfot (353 kvadratmeter), med to soverom og 2½ bad; gjestehus på 825 kvadratmeter (77 kvadratmeter), med ett soverom og ett bad
Byggeår: 1880-tallet; renovert i 2014
"Kjøper du et lager?" spurte en venn da han så et bilde av det falleferdige stedet Kathe Lison og hennes partner, Chris Cokinos, planla å gjøre hjemmet deres. Som svar, Lison sier: «Chris bare lo.»
Lison, en forfatter og daværende arkitekturstudent, og Cokinos, en vitenskaps- og naturforfatter og professor, kjøpte smuldrende Sonoran Desert rekkehus i Tucsons historiske Barrio Viejo nabolaget i 2014. «Vi var på utkikk etter et gammelt hus i barrio, og jeg ble fascinert av den fallende historiske Adobe,» sier Lison. "Du må elske at den er laget av gjørme. Du må forstå tyngden og tyngdekraften til et slikt materiale, og hendene av arbeiderne som gravde murene fra bakken over et århundre siden.»
Barrio Viejo startet som en støvete meksikansk by. På 1880-tallet ble det var et kulturelt mangfoldig fellesskap av arbeiderklassefolk fra Amerika, Europa, Afrika og Asia, hvorav mange jobbet for Southern Pacific Railroad.
Oppussingen av huset tok mer enn ett år. Lison og Cokinos hentet hjelp av arkitekt Kegan Tom fra og entreprenører fra .
Den røde emaljepeisen i stuen er vintage og har en elektrisk innsats.
Crate & Barrel; salongbord: vintage
My Servista: The Arizona House Made of Mud"Det var tydelig noe måtte gjøres hvis huset skulle holdes unna vender tilbake til skitten den kom fra, sier Lison, avbildet til høyre med Cokinos. "Sannsynlig avgjørelse uansett var, bestemte vi oss for at det var vi som skulle gjøre det.»
Lison dokumenterte transformasjonen fra en smuldrende murstein struktur til en fabelaktig flerromsbolig på bloggen hennes, .
Min Servista: The Arizona House Made of Mud"Du må elske formen og kraften til rekkehusgeometrien, sier Lison. "Ikke bare det, men de gir også plass til noe fantastisk interiør design.»
Avbildet her er det ene hjørnet av stuen og inngangen til kjøkkenet.
: West Elm;
My Servista: The Arizona House Made of MudFør FotoFør.Her er et hjørne av spisestuen rom før veggene ble reparert. Huseierne pusset opp den eksisterende komfyren til bruk på kjøkkenet.
My Servista: The Arizona House Made of MudEtter.Veggene av stue og spisestue er utført delvis med kalk puss og delvis med original gjørmepuss fra sen 1800-tallet. "Jeg er helt forelsket i utseendet og følelsen til dem," sier Lison.
Taket i stuen og spisestuen er 12 fot høye. Noen av takene er originale, mens noen er laget av gjenvunne gulvplanker fra huset.
Eames Lounge stol og ottoman er vintage.
My Servista: The Arizona House Made of Mud: København Import; i kirsebær med kullbeis: Room & Board; : Design Innen rekkevidde
My Servista: The Arizona House Made of MudEn bokhylle i spisestue viser parets platespiller og plater.
My Servista: The Arizona House Made of MudSnekker John Kalnins bygget kjøkkenøya ved hjelp av gjenvunnet tre.

My Servista: The Arizona House Made of Mud"The vintage Norge komfyren var i huset, men den fungerte ikke, så vi hadde den pusset opp, sier Lison. – Vi følte det var viktig å holde på så mange ting som allerede var her som mulig."
My Servista: The Arizona House Made of MudBeyond the kitchen er walk-in pantry og bakdør.
My Servista: The Arizona House Made of MudHalvparten av alkovene i kjøkkenet fantes, og halvparten ble lagt til.
Den oransje veggen som representerer Skytten - Lison's stjernetegn — var i huset da de kjøpte det. "Det var som om huset hadde navnet mitt på det, sier hun.
My Servista: The Arizona House Made of MudDet er innebygd benker på begge sider av kjøkkendøra. Basen til kjøkkenbordet er vintage, og toppen er en skiferrest fra en lokal benkeplateprodusent.
My Servista: The Arizona House Made of Mud"Vi kunne ha forlatt alt av de nødstedte veggene i sin rå tilstand, men vi endte opp gipsing av noen av de som var i virkelig røff form,» sier Lison.
Kaktuspute: Etsy
My Servista: The Arizona House Made of MudEt bibliotekområde er første rom utenfor inngangen foran.
: Import fra København; elektrisk peis: ; ottomanske: vintage
My Servista: The Arizona House Made of MudDet andre hjørnet av biblioteket har en innebygd hylle og en komfortabel lenestol for lesing.
Skinnstol: ; innrammet fotografi:
My Servista: The Arizona House Made of MudBiblioteket er utstyrt med en skjult bokhylledør, en funksjon huseierne alltid ønsket. Bordet i biblioteket er en del av et sett som tilhørte Lisons besteforeldre.
Innrammet fotografi: ; teleskop og stol: vintage

Min Servista: Huset i Arizona laget av gjørmeveggene overalt huset er 18 til 24 tommer tykt, bredden på adobe murstein. På bildet her er veggen mellom biblioteket og Lison kontor, som er bak den skjulte bokhyllen.
My Servista: The Arizona House Made of MudSiden både Lison og Cokinos jobber ofte hjemmefra, det var viktig at de skapte komfortable kontorområder. Lisons kontor består av to små rom siden mye av huset opprinnelig var konfigurert slik. Tilbake på 1800-tallet ville hvert sett med to rom ha vært et leilighet.
Eames lenestol i formstøpt glassfiber: Design Within Reach
My Servista: The Arizona House Made of MudLison bruker den andre rom på kontoret hennes for sine kunst- og designprosjekter.
My Servista: The Arizona House Made of MudAvbildet her er en rom i Cokinos’ arbeidsområde.
My Servista: The Arizona House Made of MudHans andre rom har en elektrisk peis og en sofa som tilbyr et rolig sted å les.
Elektrisk peis: Dimplex; i kirsebær: Rom og kost; sofa og stol: vintage
My Servista: The Arizona House Made of MudVeggen til venstre kollapset under byggingen, så murstein fra den ble brukt til å bygge gulvet i , hovedinngangen. «Veggen til venstre var gjenoppbygd med nye mud adobe murstein laget på stedet for hånd av entreprenører, deretter pusset, sier Lison.

:
Corbett Lighting,Servista
My Servista: The Arizona House Made of MudI den andre enden av inngang, et vintageskilt komplementerer runde speil og en garderobe i moderne stil fra midten av århundret. Døren leder ut til bakgård.
: Rom og kost;

My Servista: The Arizona House Made of Mud
My Servista: The Arizona House Made of MudDen solfylte mesteren soverommet var opprinnelig to rom. «Det er vanskelig å beskrive hvordan heldigvis føler vi at vi hver morgen våkner i dette rommet,» Lison sier.
Den andre delen av hovedsoverommet var stor nok til å passe en sofa.
: West Elm; : Ikea
My Servista: The Arizona House Made of MudDenne døren i masteren soverom skjuler walk-in-garderobe og vaskerom. Veggene inn dette rommet ble etterlatt i den nødstilte tilstanden de var i da par kjøpte huset.

i hvitt: CB2


My Servista: The Arizona House Made of MudHuseierne beholdt master bad åpent. Dusj og badekar er murt inn på to sider. Geometriske sementfliser dekker gulvet.
: Sementflisbutikk

My Servista: The Arizona House Made of Mud"Jeg fant et bad forfengelighet som jeg likte på et bilde, så jeg spurte en lokal snekker om det kopier det for meg,» sier Lison.
: West Elm; : Ikea
My Servista: The Arizona House Made of MudGjestebadet deres har sekskantede sementfliser.
in Pacific Green: Cement Tile Shop

My Servista: The Arizona House Made of MudHuseierne la til takvinduer i hele huset når de skal skifte tak. I gjestesoverommet deres fremhever de det originale gjørmepusset vegger.
My Servista: The Arizona House Made of MudEn vintage benkhuske ligger nær bakgården foran en bølgepapp metallgjerde.
My Servista: The Arizona House Made of Mud"This is our favorittdelen av gården», sier Lison. «Vårt utendørs peis var vedovnen som var på kjøkkenet i huset da vi kjøpte den.»
My Servista: The Arizona House Made of Mud"Da vi kom inn bakgården ble vi overrasket over salt sedertre som vokste der, sier Lison. "Vi regnet med at det sannsynligvis var over 100 år gammel."
Min Servista: The Arizona House Made of MudFør BildeFør. Siden det ikke er mulig å kjøpe tradisjonelle adobe murstein, huseierne fikk dem laget i deres Hagen. Hver adobe murstein er laget av gjørme som er håndpakket og deretter lufttørket. Den resulterende adobe-klossen måler omtrent 4 x 12 med 18 tommer og veier mer enn 35 pounds.
My Servista: The Arizona House Made of MudFør FotoFør. Da de kjøpte huset, Lison sier: «Dørene og vinduene var tettet; dens vegger, laget av tradisjonelle gjørme adobe murstein fra 1880-tallet, smuldret; og taket så ut som om det kunne holdes fast med tyggegummi. Av den tiden vi så på det, hadde huset vært på markedet i ni år», sier hun.
Ved midten av 1900-tallet var mange av adobe-husene i nabolaget ble nedslitt, og bystyret i Tucson besluttet å bøte på dette ved å rive rundt halvparten av dem. Dette ansporet naturvernere å nominere den resterende halvparten av barrioen til the .
My Servista: The Arizona House Made of MudEtter. Oden Konstruksjon erstattet den smuldrende stukkaturen på utsiden med ny stukk, en tradisjonell blanding av kalk, sparkel, sand og vann som påføres for hånd med sparkel. Når det tørket, ble stukkaturen belagt med kalkvask.
Vinduene og dørene ble også skiftet ut, slik originalene var enten mangler eller kan ikke repareres. Den limegrønne døren, andre fra høyre, fører til en gjesteenhet som paret leier ut. Den midterste døren, mellom potteparet lenger til venstre, fører til hovedhuset, som strekker seg tilbake og til venstre. «To av de andre brune dørene fungerer: Den ene fører til studie- og arbeidsområdet mitt; den andre fører til min manns studie. Resten gjorde vi ikke-fungerende, sier Lison.
Ekteparet satte også nytt tak og lite vedlikehold landskapsarbeid.
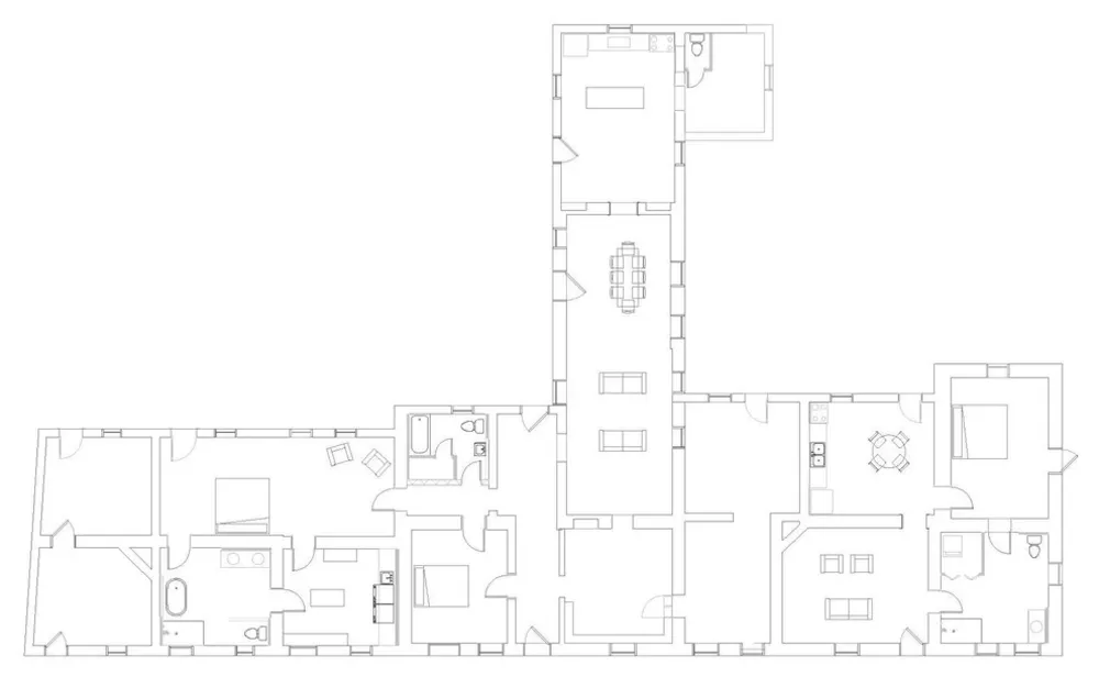
My Servista: A House Made of Mud in ArizonaFør FotoTegninger av Kegan Tom av
Før.Det originale hovedhuset, bygget på 1800-tallet, er gråtonet over. På begge sider av hovedhuset er mindre rekkehus som kom til senere. Hvert hus hadde en dør foran og en bak som åpnet ut mot en felles gårdsplassen.
– Det er vanskelig å si nøyaktig hvor mange rekkehus det var opprinnelig med noen sikkerhet, eller hvordan enhetene ble okkupert eller brukt opp gjennom årene, sier Lison.
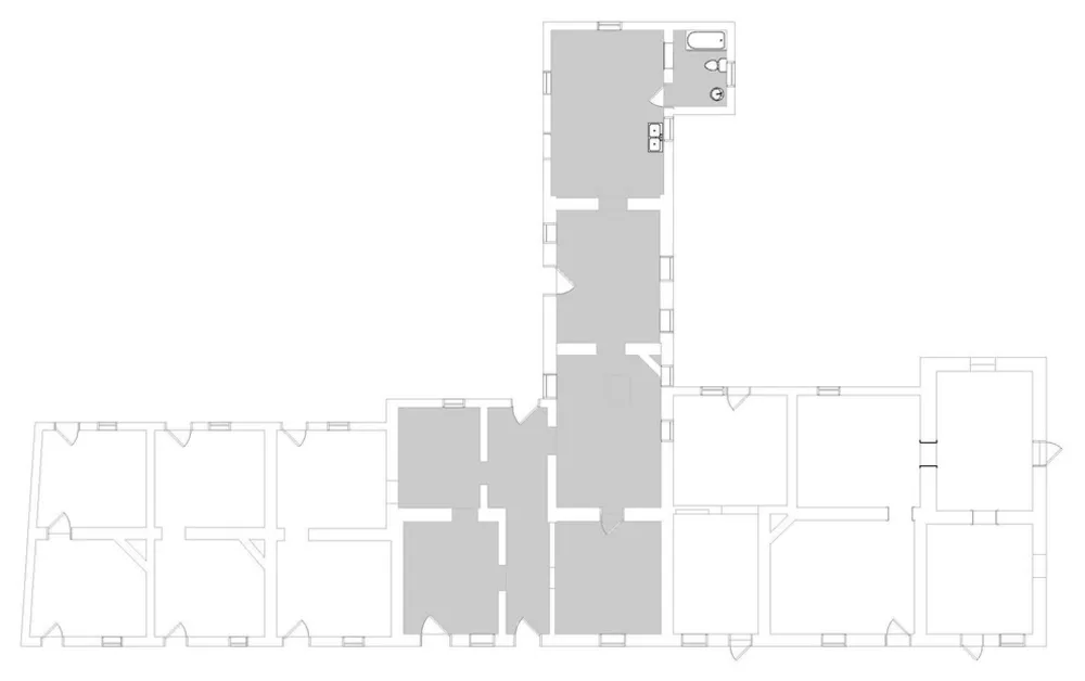
My Servista: A House Made of Mud in ArizonaEtter.The huseiere laget sørenden av huset, på venstre side av tegningen, hovedhuset deres. På den andre enden skapte de en gjestehusutleieenhet.
De fjernet to vegger i hovedhuset: en for å lage en stor stue og spisestue, og en annen for et stort hovedsoverom. De la også til tre nye innvendige døråpninger for å knytte sammen førstnevnte rekkehus for å la paret gå fra den ene delen av huset til den andre uten å gå utenfor. Lison og Cokinos også besluttet å utvide et tidligere bad for å gjøre et litt større pantry utenfor kjøkkenet for å legge til lagringsplass.
er en serie der vi besøker og fotograferer kreative, personlighetsfylte hjem og menneskene som bor dem.og.
| | | | | | | | | | |
# Renovering av leilighet