Servista-tur: Et drømmehus bygget for å tåle testen Tid

Denne australske familiens hjem viser frem betong og stein utvendig, og midcentury moderne design inne

Målene for dette australske drømmehjemmet var mange. Klienten, som er en byggmester og murspesialist, ønsket et hus som utnyttet betong og stein som de viktigste utvendige materialene og det referert til midcentury modernisme på interiøret. Han ville også hjemmet for å forbli relevant etter hvert som familien vokste, for å imøtekomme store samlinger og å engasjere seg på en meningsfull måte med landskap.
BetonhusBilder av Derek Swalwell
Huset med et blikk
Hvem bor her:En familie på fem
Sted: Melbourne, Australia
Størrelse: Fire soverom, 4½ bad
Designere: og
Huset, i et nabolag ved bukten i det sørlige Melbourne, inneholder fire soverom, et stort oppholdsrom, et kjøkken med en butlers pantry et eget arbeidsrom og barneområde og et pudder rom. Hagen har en utendørs spiseplass og en tennisbane og et basseng med en cabana. En kjeller og overnatting for seks veteranbiler er også inkludert.
Concrete HouseTotalt, målet var å bygge et ikonisk hjem som ville stå testen av tid. Den er orientert øst-vest over tomten med en 33 fot tilbakeslag fra den fremste eiendomslinjen.

BetonhusLayouten er organisert rundt en sentral inngangsparti og er designet for å avsløre en sekvens av kompakte og vidstrakte rom som har en sterk tilknytning til landskap.
Huset har varierte takhøyder. Fra den lille inngangsdøren åpning, møter besøkende umiddelbart en inngang i dobbel høyde galleri.
BetonhusOffentlig Plasser på nordsiden
Galleriet går forbi trappen til andre etasje, den innvendig tilgang til garasjen, arbeidsrommet og inngangen til master suite før den åpner ut mot en høy nordvendt stue område.
Dette langsgående volumet omfatter et formelt oppholdsområde til vest, en uformell stue-spisestue i midten, avbildet, og en kjøkken mot øst. Både øst- og vestområder tilgang tilbaketrukket hagebrisveier, som gir forbindelser til naturen mens minimerer behovet for kunstig belysning.
"Selv om det er betydelig skala i enkelte rom, er huset det svært organisert og plasseffektivt, med tydelig sonering som støtter både familieliv og privatliv, sier arkitekt Matt Gibson.
Concrete House"Den viktigste mellomrom har blitt stående enkle, med tanke på å være høye og luftig, sier Gibson. Materialet og sammensetningen av dette rommet med vilje påkaller , sier han.
Gulvet i hele dette området er polert betong
BetonghusUtvidelser av hvit puss er ispedd tre, glass og betong, gir et bakteppe for kundenes signaturmøbler og kunstverk.
BetonhusThe trekledd himling og den dobbelthøyde polerte gipspipen er designet for å fremheve det høye rommet.
BetonghusSmale søyler som støtter den utvendige takskjegget også fremme luftighet og flyt.
BetonhusThe uformelle oppholdsrom har innebygde skap for familien dyrebare samleobjekter.
Tre i taket:

BetonhusPhasmida pendel, designet av Christopher Boots, henter sin inspirasjon fra pinneinsekter og andre forgreningsformer i naturen.

BetonhusThe kjøkkenets betongøy ble støpt på plass.
BetonghusI sør ligger butlerens pantry, hvor det er mat tilberedning og skitten oppvask kan være ute av syne, ute av sinn.
BetonhusThe utendørs spiseplass er beleilig plassert ved siden av kjøkkenet (bak plantekassen).
BetonhusThe 55 fot lang betjeningsvegg av glass med lav emissivitet som går langs nordsiden av huset gir utsikt over tunet, tennisbanen, bassenget og hytten.
BetonhusThepool og cabana er perfekte for varme Melbourne dager.
BetonhusPå motsatt side av huset fra kjøkkenet er den formelle stue område. Dens møbler inkluderer et piano, en tuftet ottoman og cushy sitteplasser.

BetonhusDet har også utsikt over og tilgang til gårdsplass.
"Av spesiell tilfredsstillelse for oss er at dette huset er designet spesielt som et vakkert bakteppe for denne familiens liv, blander kunst, landskap og naturlig komfort," Gibson sier.
Servista Tour: Concrete HouseFørste etasjes planløsning
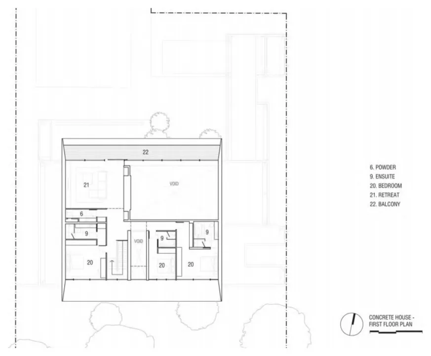
Servista Tour: Concrete HouseAndre etasje plan
BetonhusPrivate områder i sør Side
Soverommene ligger på boligens sørside. De er flere intim og fortsett naturmaterialer-temaet med tre og lær. Dette er hovedsoverommet, det eneste på det første etasje.
BetonghusDette organisk tilnærming til materialitet strømmer også gjennom til mesteren bad.
Falda Grey i porselen i rock-look:
BetonghusEndicott Filetti tørr stein eksteriør vegg:
BetonghusBare utenfor hovedsoverommet er en gårdsplass med refleksjon basseng.
BetonhusDet andre etasjes koniske betongform gir utsikt over forgården (nylig anlagt av Rick Eckersley) og bakgården (mot byen). Øst- og vesthøyder er vindusløse og begrenser siktlinjer til naboer.
"Vi bestemte oss for om kunden ville bruke betong og gjøre noe interessant med det, så la oss virkelig promotere det øvre volumet som det definerende elementet i bygningens arkitektur," Gibson sier.
BetonhusDet andre etasje inneholder de resterende tre soverommene med eget bad og en retreatområde.
BetonhusSlik som uformell stue, retrettområdet har innebygd skap.
BetonghusUtenfor retreat er en kortstokk.
"Den økonomiske fordelen for denne familien er en fleksibel, vakker bomiljø utviklet i nært samråd med deres spesifikke moduser for hjemlighet, sier Gibson. "Det er billig å varme og kjøling, et miljø av høy kvalitet, med robust konstruksjon som maksimerer nettstedets potensial og sikrer levetid på denne designen og bolig for denne familien for langsiktig."


# Renovering av leilighet