Servista Tour: Renovation Puster nytt liv i en brann Stasjon

En nedlagt brannstasjon blir en energieffektiv, rent hjem med en separat leilighet

Jamie O’Donnell elsker et prosjekt og ideen om adaptiv gjenbruk. Etter at han solgte en retreat lodge han hadde drevet i årevis i Nevada City, California, han kjempet på biten for en ny utfordring. Han satte sin ekte eiendom app i høy beredskap og ble fascinert da en ping la ham vet at en nedlagt brannstasjon var til salgs.
"Jeg ringte en eiendomsmeglervenn av meg som sa," Jeg ville ikke anbefaler dette til de fleste fordi du gjør det om til en bolig ville vært et ekstremt ambisiøst prosjekt, men jeg vet at du liker en prosjekt," sier O'Donnell. Da anbefalte vennen Mela Breen og Jeff Adams for å hjelpe ham med å forvandle bygningen til en energieffektiv, hemslignende bolig.
HT: BrannstasjonskonverteringFør BildeHuset på et øyeblikk
Hvem bor her:
Jamie O’Donnell
Sted:Nevada City, California
Størrelse: 2700 kvadratfot (251 kvadratmeter); to soverom, 1½bad pluss en studioleilighet
Designere: Mela Breen og Jeff Adams fra
Før:"Den opprinnelige brannstasjonen lå i et nabolag innstilling, så å konvertere den til en bolig var fornuftig gitt kontekst, sier Breen. "Denne brannstasjonen manglet imidlertid sjarm navnet antyder og var egentlig en stor garasje for brannbiler - et enkelt rektangel med to store lastebilrom, en sløyd kjøkken og to bad." Stasjonen hadde høye tak, men ble ikke designet som en to-etasjers struktur og gjorde det ikke har soveplass. Adaptiv gjenbruk — sjekk. Et design utfordring — sjekk. Et designfirma som spesialiserer seg på høy ytelse, design og konstruksjon — sjekk. O'Donnell hadde funnet hans nye hjem.

BrannstasjonskonverteringFoto av Kat Alves
Eksteriør
"Vi utviklet den arkitektoniske planen så vel som en plan for et dyp energi ettermontering av bygget, sier Breen. "Vi bestemte oss for å subtilt fremkalle typologien til brannhuset i ombyggingen som en nikk til bygningens tidligere liv, mens du forestiller deg på nytt interiør som en loftstilbolig med romslig, åpen etasje plan."
Hun kledde utsiden med to typer sidekledning som forteller en historie: fibersementplater på den opprinnelige strukturen og sedertre sidekledning på de nye tilleggene. Tillegget til venstre består av en veranda og utover det en inngangsvestibyle. Nok et lite tillegg inneholder hovedbad og skap.
Breen omarbeidet taket til å inkludere et hvelvet tak og clerestory for en tilbehørsbolig i andre etasje som har egen utvendig inngang. Den andre historien har også en andre soverommet for O’Donnells domene.
Fordi de originale garasjeportene vendte sørover mot en travel street, hun holdt sansen for dem med stålomgir men fylt dem ut med energieffektive vinduer som gir privatliv og ha en tett konvolutt. Hun fikk dem fra California selskapet for å redusere karbonavtrykket ved å transportere dem. Og hun la til skorsteinen mellom dem for å fremkalle klokketårnene som ble sett på klassiske brannstasjoner. Den nye prestegården står i kø langs taklinje med skorstein.
HT: BrannstasjonskonverteringFør BildeFør:Dette bildet viser vestsiden av bygning før Breen la til veranda og inngang. Hun beholdt plasseringer av de originale høye vinduene, men erstattet dem med en mer energieffektivt produkt. Deres opprinnelige funksjon var å leie rømning fra brannbileksos. Nå gir de nydelig lys og kan sveives åpen for kryssventilasjon.
BrannstasjonskonverteringFoto av Kat Alves
"Nabolaget ligger omtrent 4000 fot over havet, med høye ponderosafuruer og en blanding av boligtyper. Det snør kl denne høyden, så utformet for de fire særegne årstidene som vi får var en vurdering, sier Breen. For eksempel ny veranda skjermer vestsiden av huset fra direkte sollys og inngang fra regn og snø.
Taket er korrugert forvitringsstål. "Forvitringsstål kaller frem den lokale gruvebyen og passer også godt inn med landskapet rundt", sier hun.
Andre elementer ienergiettermonteringen inkluderer solcelle paneler og LED-lys overalt. O'Donnells strømregninger er nær netto null, noe som betyr at hjemmet hans genererer like mye strøm som den bruker i løpet av et år.

HT: BrannstasjonskonverteringFør: Transformering av stasjon inn i et hjem var virkelig et ambisiøst prosjekt. Breen anbefalte å bytte ut gipsplaten som hadde sugd opp røyk fra brannbilenes dieselmotorer. Hun la også til en dampsperre og isolasjon til plate, pluss isolasjon til tak og vegger, og forseglet åpningene med tape for å lage en tett konvolutt.
"Jeg vokste opp i en New England Victorian, og jeg ønsket det motsatte – ingen små rom og ikke mye rot, sier O’Donnell. I stedet ønsket han et lyst og enkelt loftlignende rom.
"Jamie har mange venner og liker å være vertskap for arrangementer, så han ville hovedboligen skal være åpen og romme store grupper mens du fortsatt føler deg intim og koselig, sier Breen.
BrannstasjonskonverteringFoto av Kat Alves
Levende rom
"Mela og Jeff lager veldig rene og artikulerte linjer i deres jobb, sier O'Donnell. "De skapte volum med høyde, lys med mange vinduer og en annen etasje." Hovedlivet plass nyter lyset fra serien av vinduer langs gatevendt side av huset og fra de høye vinduene. Breen gjemt kjøkkenet langs baksiden av huset under det andre historie.
O’Donnell var ivrig etter å bruke gjenvunnet materiale der han kunne, spesielt på gulvene. Han fant en stor mengde av gjenvunnet blekerved fra en gammel basketball på videregående skole arena på Craigslist. De lange plankene dekker gulvene, trappene, trapperekkverk, skohylle og noen innebygde hyller på mesanin.
Han har en omfattende kunstsamling, men ønsket ikke at den skulle forringe fra de rene linjene i arkitekturen, så han vervet ekspert øye av en god venn for å hjelpe ham velge og plassere brikker. For eksempel en lang treblokk som viser det regionale dyrelivet ved Sacramento-artisten Daniel Stolpe følger linjen til mesaninen rekkverk over spisebordet. Og en lang afrikansk Kuba-duk rulle fremhever vertikaliteten til trappeveggen. De byrå i det store rommet ble designet av Donald Deskey, som skapte Art Deco-interiøret til Radio City Music Hall. Hopien kachina sommerfugl på toppen av den står 4 fot høy, og tegner øye opp til de høye vinduene.
BrannstasjonskonverteringFoto av Kat Alves
Her er O’Donnell og vennen hans med det kunstneriske øyet hengende ute i det store rommet. De to tidligere garasjeportåpningene flankerer en ny vedovn. En av de mer utfordrende aspektene ved prosjektet var å skape en åpen plass med høye tak som ville holde seg varm i regionens kaldere måneder. Isolasjon, energieffektive vinduer og tetting holder hjemmet komfortabelt året rundt. "Jeg opplever at disse veggene er så godt isolert at når rommet er oppvarmet, holder de virkelig temperaturen." sier O'Donnell. Han ville også ha den koselige følelsen av en vedovn men holdt miljøhensyn i tankene. "Denne modellen fra fanger doble de statlige utslippene før det i det hele tatt går opp pipe", sier han.
"Jeg visste at vinduene kom til å være 24 tommer fra gulvet, så Jeg foreslo å få mest mulig ut av dem ved å legge til innebygde sitteplasser som vil understreke horisontale linjer, sier han. "Jeg bruker lang tid daglige turer til reservoaret nedover veien og tilbake, og etterpå er en av mine favoritt ting å ligge på en av disse og ser lyset endre seg ved solnedgang."

BrannstasjonskonverteringFoto av Kat Alves
Åpne hyller laget av gjenvunnet high school arena-tre gi O'Donnell en sjanse til å vise sin samling av keramikk av Warren Mackenzie. "Han var mester i japansk design-møter-midtvesten-keramikk, sier han. Kunstverket som viser Nez Percé-sjef Joseph stiller opp med vinduene.

HT: BrannstasjonskonverteringFoto av David Townsend
Private områder
O’Donnell ønsket å bo i én etasje. Denne gangen bortenfor trapp fører til et toalettrom og mastersuiten hans.
HT: BrannstasjonskonverteringFoto av David Townsend
Det beskjedne soverommet er koselig, og sengen har utsikt utover vinduene til trærne.
HT: BrannstasjonskonverteringFoto av David Townsend
Lenger nede i gangen ligger herrebadet hans. En granittdisk plukker opp de rolige tonene på veggene og legger til et naturlig materiale til blandingen. O’Donnell elsker rene linjer, og han setter også pris på det fint håndverk - disse hamrede kobbervaskene fra California bedriften er håndlaget av håndverkere.

HT: BrannstasjonskonverteringFoto av David Townsend
En mesanin med utsikt over første etasje gir et sted å lese og et annet sted å vise keramiske, vevde og trestykker fra kunstsamlingen hans. Et annet rom her oppe fungerer som kontor og gjesterom.
HT: BrannstasjonskonverteringFoto av Kat Alves
Tilbehør boligenhet
O'Donnell tilbringer noen dager i uken 100 miles unna for å hjelpe en slektning, så han ønsket en egen leilighet for en lokal praktikant eller student som skulle passe plassen på heltid. Dette tilleggsbolig i andre etasje har egen inngang (se trappen som fører til den på det fjerde bildet), en liten overbygd balkong og en lang planløsning for studioleiligheter. Breen brukte Rockwool-isolasjon for å lydisolere enheten.
Breen fjernet den bakre halvdelen av det originale loftet og innrammet det på nytt med et hvelvet tak og en prestegård. "Det kan være vanskelig å gi nok naturlig lys til loftsrom - prestegården tillot oss å plassere vinduer på østsiden av bygget så at rommene oppe ikke overopphetes", sier hun.
Servista Tour: Renovation Breathes New Life Into a Fire StationFør: Planløsningen viste en grunngarasje med sløyd kjøkken og to bad.
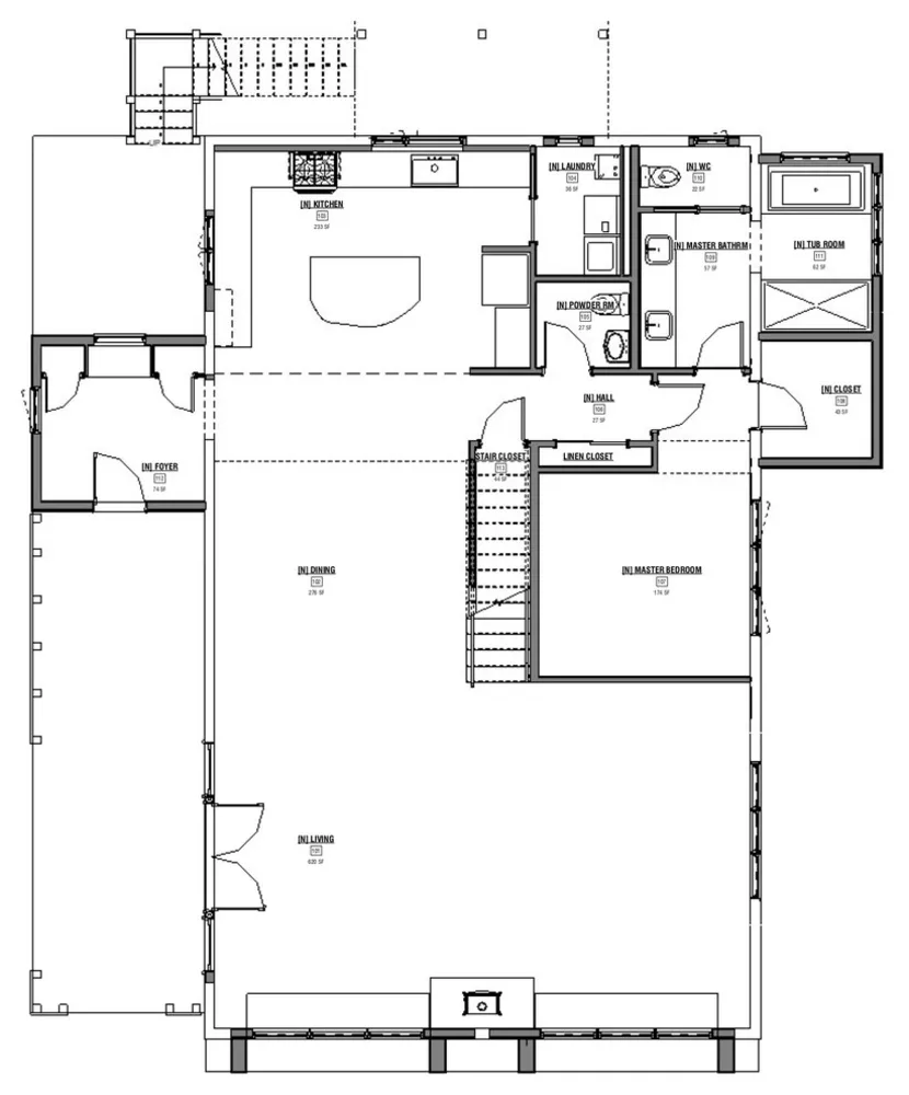
Servista Tour: Renovation Breathes New Life Into a Fire StationEtter:På i første etasje inkluderte tillegg den overbygde verandaen og inngangen vestibylen til venstre og hovedbadet og skapet på høyre.
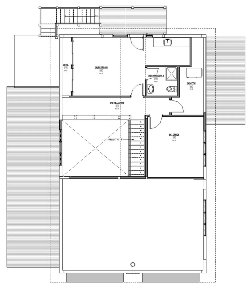
Servista Tour: Renovation Breathes New Life Into a Fire Stationpå andre etasje, endre taket tillatt for høy tak. ADU kjører langs toppen av denne planen, mens annet rom utenfor mesaninen er kontor-gjesterom på høyre.
O'Donnell er begeistret over måten det nye hjemmet hans ble på og ser etter sin neste utfordring. Akkurat nå vil han gjerne sette tennene inn i et samhus prosjekt.

Mer om Servista


# Renovering av leilighet