Kuchnia tygodnia: angielski styl wiejski na placu Just 75 Stopy

Urocza kuchnia i niedroga przeróbka łazienki stylu wiejskiego do małej chatki w Gold Country w Kalifornii

In świat rezydencji o powierzchni 8500 stóp kwadratowych, dom mniejszy niż jedna dziesiąta tego rozmiaru może wydawać się niewielka. Ale w mieście Nevada, Kalifornia, chata z bali o powierzchni 848 stóp kwadratowych - a zwłaszcza jej Kuchnia o powierzchni 75 stóp kwadratowych — często przypomina o dobrym projekcie jest dostarczany w małych opakowaniach.
Po zakupie byłego wynajmu z dwiema sypialniami i jedną łazienką właściciele domów zakasali rękawy i stuknęli Jadę Gilbert z Zaprojektuj wnętrza sklepów, aby pomóc im stworzyć zachęcający, spersonalizowany dom główny. Gilbert skupił się na kuchni, poprawiając jego przepływ i tworząc przestrzeń do przechowywania i spożywania posiłków. Następnie postawiła na urok angielskiej chaty z niestandardowymi szafkami i szczegóły, takie jak kołki Shaker i otwory wentylacyjne szafki. Przewiń w dół do sprawdź efekty w kuchni i w domu jednoosobowa łazienka, która przeszła niedrogą, ale uroczą metamorfozę własnego.
Mały dom w NevadzieZdjęcie przed"Po" Zdjęcia autorstwa
Kuchnia w skrócie
Kto tu mieszka:Para i najmłodsza dwójka z ich czwórki dzieci
Lokalizacja: miasto Nevada, Kalifornia
Rozmiar:Około 75 stóp kwadratowych (7 metrów kwadratowych); 9 stóp, 10 cale na 7 stóp, 11 cali
Projektant: Jada Gilbert z firmy
Przed:Najbardziej znany z dobrze zachowanej gorączki złota historii Nevada City leży u podnóża północnej Kalifornii góry Sierra Nevada. W pobliżu płynie rzeka South Yuba, a ta chata przylega do jednego z jej dopływów otoczonych las.
Miasteczko jest popularne wśród turystów, a domek miał już wcześniej był używany jako wynajem krótkoterminowy - i przebudowany w tym celu ograniczonego celu, mówi projektant Gilbert. Możesz zobaczyć kuchnia w dawnym kształcie kambuza, podstawowe sprzęty i ciemność szafki i podłogi na tym zdjęciu.
Ale klienci Gilberta planowali mieszkać w kabinie na pełny etat i tam dwójkę swoich dzieci. Jedno z ich starszych dzieci mieszka w pobliżu, a druga lubi odwiedzać, więc przemyślenie nieefektywny układ był koniecznością. Poza tym ciemne drewno nie odbijało światła styl właścicieli.

Mały dom w NevadziePo:To zdjęcie przedstawia część kuchenna, która przeszła najbardziej radykalną metamorfozę, plus sąsiednie wejście i nowa zabudowana nisza jadalna. (Zwój do końca, aby zobaczyć plan piętra.)
Właściciele domów starannie wydobywali wszystko, co tylko się dało przebudować, aby można było go ponownie wykorzystać. Stara kuchnia np. poszedł do kobiety, która budowała autobus!
Gilbert szukał inspiracji do nowego projektu angielskie kuchnie wiejskie i włączył ich podpis detale, takie jak otwarte półki wsparte na zgrabnych wspornikach, Kołki do wytrząsarek i otwory wentylacyjne szafek w szafkach o pełnej wysokości. Zainstalowała również blat z marmuru Carrara i backsplash nielakierowane mosiężne krany i osłony płyt elektrycznych, które będą z wiekiem rozwija się patyna.
"Oni naprawdę lubią deVol i Schoolhouse Electric", Gilbert mówi o gustach właścicieli. "To rodzaj mieszanki wszystkich tych rzeczy naprawdę wielowarstwowe przestrzenie, ale nadal jest dość neutralny".
Obudowy wykonane na zamówienie są pomalowane farbą Farrow & Ball’s Stony Ground, jasnoszary odcień, który wpada w żółć lub nawet zieleń w zależności od światła.

Mały dom w NevadzieZmiana podłogi miała również dramatyczny efekt rozjaśnienia. Wcześniej było kilka różne materiały podłogowe i kolory w domu, w tym co według Giberta było laminatem w kuchni. Aby trzymać się budżet projektu, ale stworzyć poczucie spójności, postanowili pomalować wszystkie podłogi na biało.
"Klienci faktycznie zrobili to sami i użyli farba przeznaczona do powierzchni podłogowych o bardzo dużym natężeniu ruchu" mówi Gilbert. To był żmudny, wieloetapowy proces i Gilbert przyznaje, że farba nie jest najbardziej odpornym na bomby wyborem dla podłoga. Ale, podobnie jak w przypadku marmuru i mosiądzu, patyna jest częścią urok.

"Oczywiście pomalowana podłoga w końcu się przyda małe zadrapania i nacięcia" – mówi Gilbert. "Ale myślę, że tak rodzaj piękna starzenia się we własnym domu i stania się jego częścią Twojej rodziny."


Mały dom w NevadzieZwróć uwagę na nowy układ w kształcie litery U, który zamienił okno na tylnej ścianie na 30-calowe wolnostojące oferta ze stali nierdzewnej.
"Normalnie nigdy nie zasłoniłbym okna, ale przenieśliśmy je zasięgu do tej tylnej ściany, abyśmy mogli w pełni wykorzystać [footprint ] kuchni" — mówi Gilbert. "To okno nie miało najlepszy widok i tak naprawdę było to okno nad zlewem wprowadzając do wnętrza naturalne światło przestrzeń."
Mały dom w mieście NevadaA oprawa oświetleniowa z ceramicznym abażurem w stylu vintage wisi nad głębią zlew wiejski i mosiężny kran mostkowy. Obok zlewozmywaka jest nowy zmywarka panelowa.
Wpuszczone światła w suficie (zdjęcia wykonane aerografem) oświetl również przestrzeń.

Mały dom w NevadzieJeden szczegół, który według Gilberta był krytyczny dla europejskiej chaty styl i zachował odpowiednie proporcje dla małej przestrzeni cienką krawędź na marmurowym blacie, którą można zobaczyć tutaj. Jego niski profil okazał się nie lada wyzwaniem.
"To tylko wypolerowana krawędź, co nie jest super standardem w przypadku Zachodnie Wybrzeże. Wpadliśmy na ludzi, którzy nie chcieli robić tylko marmuru prosto na szafkach bez sklejki pod spodem, kiedy normalnie miałbyś 2-calową powierzchnię lub krawędź. Poniekąd musieliśmy naciśnij, aby uzyskać naprawdę cienką, wypolerowaną krawędź. Ale mamy tam!"
Mały dom w NevadziePrzed ZdjęciePrzed:Większość innych szafek była uruchomiona zajęte przez płytę kuchenną i kuchenkę mikrofalową oraz trudno dostępną górną część szafki.
Mały dom w mieście NevadaPo:przesuwanie zakresu na koniec ściana pozwoliła Gilbertowi zainstalować spiżarnię sięgającą od podłogi do sufitu lewej stronie nowej lodówki ze stali nierdzewnej i umieść urządzenie garaż po prawej stronie. Godne ekspozycji akcesoria są dostępne na stronie półki i kołki, które otaczają tylną część i okap serii.
"Nawet jeśli nie wszystkie są wykorzystywane, są zabawne chwilę" — mówi Gilbert o kołkach.
Powiększ, aby zobaczyć wspomniane otwory wentylacyjne w górnej szafce wcześniej.
Mały dom w NevadzieKolejnym z ulubionych szczegółów Gilberta jest mosiężny pręt z haczykami na często niedostatecznie używanym końcu szafka pod umywalkę. Za rogiem jest wąska otwarta półka na książki kucharskie i deski do krojenia (widoczne tylko w trzecim zdjęcie).
Znalezienie tych możliwości wciśnięcia funkcji w każdy kwadrat cal to jedna z zalet pracy z projektantem i stolarzem, zwłaszcza gdy przestrzeń jest ograniczona.

Mały dom w NevadzieMówiąc o tym, dom wcześniej nie miał wyznaczonej jadalni. Gilbert rozwiązał to, budując w kąciku jadalnym z ławą ze schowkiem i półką z oświetleniem ponad tym. Po lewej stronie znajduje się niestandardowa szafka o pełnej wysokości wzdłuż długości ściany, z pralką do układania w stos i suszarką za drzwi najbliżej wnęki.
Mały dom w NevadziePrzed ZdjęciePrzed:Między kącikiem jadalnym a kuchnią jest mały korytarz z wejściem do tego mniej więcej 35-metrowego kwadratu łazienka. Chociaż był w dobrym stanie, styl nie był spójny z resztą domu.
Mały dom w NevadziePo:Właściciel znalazł wiele uroczych elementów wystroju łazienki i niektórych elementów wyposażenia, w tym lusterko. Nowa umywalka na cokole i ściana z pomalowanego drewna wykończenie i półka nadają stylu vintage, a zabawny zielony prysznic kurtyna dodaje osobowości. Reszta to świadectwo potęgi malować.
"Właściwie zostawiliśmy większość tego, co tam było, a następnie zamalowaliśmy to, [w tym] kafelki prysznicowe i podłogę, za budżet powody – mówi Gilbert. (Podobnie jak w przypadku farby podłogowej, jest coś specjalnego farby do płytek prysznicowych do tego celu.)
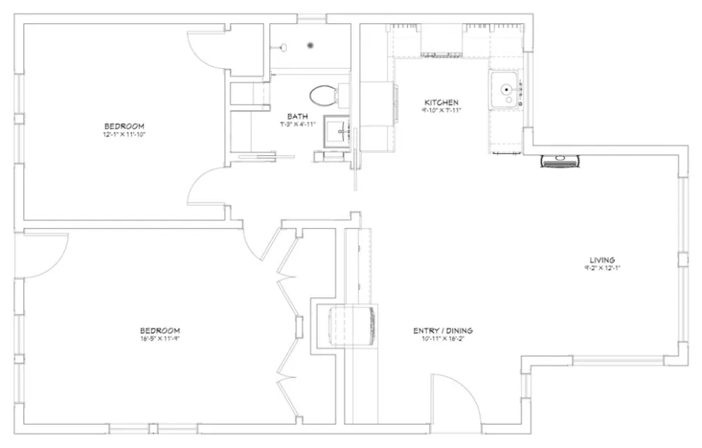
Mały dom w NevadziePiętro "po" domu plan.
Duże i małe zmiany składają się na mały klejnot domku w serce Złotego Kraju.
"Chciałbym tu mieszkać i myślę, że klienci są super też się z tego cieszę" — mówi Gilbert.


# Remont mieszkania