Kuchnia tygodnia: rodzinny styl z odcieniami jeziora i Wyświetlenia

Projektant znaleziony na Servista przekształca kuchnię za pomocą drewna, biała i szaro-zielona paleta plus mnóstwo urządzeń

Kiedy a Para z Minnesoty znalazła projektantkę Kate Roos na Servista i klepnęła ją zaktualizować swoją kuchnię z widokiem na jezioro Minnetonka, oni zakomunikował kilka priorytetów. Najpierw chcieli otworzyć linii wzroku do wody i poprawić przepływ w pomieszczeniu. Byli również chętny do rozjaśniania i unowocześniania przestrzeni. Ale ich nadrzędnym celem było maksymalizacja tego, o co chodziło w domu: czas dla rodziny.
"Mają dużą rodzinę z mnóstwem wnuków" — mówi Roos puste gniazda. "Lubią się nimi bawić i robić różne rzeczy z nimi nad jeziorem i wszyscy lubią się gromadzić wokół i pracować razem w kuchni. Więc chcieli po prostu takiej przestrzeni zamierzał naprawdę pracować nad spędzeniem tego czasu razem skutecznie."
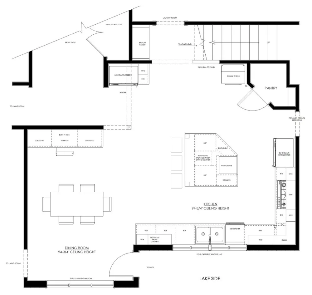
Roos dostarczone na wszystkich frontach. Nowa kuchnia w stylu przejściowym ma przemyślany układ, oddzielne kolumny zamrażarki i chłodziarki, między innymi funkcjonalne bary z winem i mokrymi oraz stanowisko do kawy aktualizacje. Biała, drewniana i szaro-zielona paleta wygląda świeżo i "jezioro-y", jak opisuje to Roos, a większa wyspa ma ciepło bar śniadaniowy z orzecha włoskiego i kwarcytowy blat z wodospadem nisza osadzona w kamieniu — luksusowy detal, który zapewnia poręczność składowanie. Dodatkowo, teraz rodzina może cieszyć się lepszymi widokami na jezioro to ich wszystkich łączy.
Kuchnia tygodnia: Kate RoosPrzed ZdjęcieFotografia autorstwa; stylizacja zdjęć: Paula Bjerketvedt
Kuchnia w skrócie
Kto tu mieszka:Para z pustych gniazd
Lokalizacja:Jezioro Minnetonka, Minnesota
Rozmiar:478 stóp kwadratowych (44 metry kwadratowe)
Projektant:Kate Roos z
Budowniczy:Niestandardowa stolarka Hamanna
Przed:"Stara kuchnia była bardzo przestarzała i gotowa do użytku przebudować" – mówi Roos. Bogate drewno i czarny blat wyspowy przyczyniły się do jego ciemnego i ciężkiego wyglądu.
Przewiń w dół, aby porównać układy przed i po.

KUCHNIA JENNINGS BAYPo: W nowej kuchni, pomalowane na biało szafki, białe blaty z kwarcytu Sea Pearl i blada neutralna podłoga z płytek naprawdę pomaga rozjaśnić i rozjaśnić przestrzeń.
Projekt przebudowy obejmował również dodanie dużego pokładu i zadaszona część wypoczynkowa przy kuchni i przylegającej do niej jadalni pokój. Częścią zadania Roosa było stworzenie lepszego przepływu przez kuchnię do tej przestrzeni rozrywkowej na świeżym powietrzu.
W tym celu zburzyła ścianę oddzielającą jadalnię od jadalni korytarz. (To pozostały post strukturalny w pierwszy plan tego zdjęcia; Roos to zbudował i opakował shiplap, aby wyglądało to na zamierzone.)
Dodała do tego w pełni chowane potrójne szklane drzwi przesuwne otwiera się na pokład, którego część widać w tle. To, wraz z nowym stałym oknem nad zlewem, otworzyło się widoki na jezioro i wpuścić światło słoneczne.
Kolory farb: Glass Slipper (ściany) i Simply White (szafki), Benjamin Moore
Kuchnia tygodnia: Kate RoosPrzed ZdjęciePrzed:Oryginalna wyspa mieściła trzy i stanął przed ścianą z drzwiami do pokoju rodzinnego.

KUCHNIA JENNINGS BAYPo:Teraz są dwa wpisy do pokoju rodzinnego. Nowa, większa wyspa ma 90 lat stopni, co pozwala na zachowanie szerokich korytarzy roboczych i umożliwienie ruchu swobodnie przepływać między pokojami.
To ujęcie pokazuje również ulubiony detal Roosa w kuchni: nisza wkomponowana w kwarcyt na końcu wyspy, który zaprojektowała, aby spełnić prośbę właściciela domu o miejsce na wynos na dania. Roos pozwala, że było to drogie i trudna do zbudowania funkcja, ale uwielbia jej "monolityczność". klimat wyspy.
"Klient jest chętny do oparcia się na pomysłach projektowych naprawdę zabawne" – mówi Roos. "Myślę, że dokładnie taka była szukam."
KUCHNIA JENNINGS BAYThe subtelne zielenie w kwarcycie kierowały wyborem Benjamina przez Roosa Farba Moore’s Dark Pewter na szafkach wyspowych. z powodu sposób, w jaki padało na nie światło słoneczne, kiedy robiono te zdjęcia, kolor jest nieco jaśniejszy niż na żywo, mówi Roos — jest ciemnoszary z zielonymi odcieniami, co odzwierciedla kolor jeziora.
Wyspa jest wyposażona w szufladę na kuchenkę mikrofalową, którą widać tutaj, oraz a rząd gniazdek z przodu. "To był dobry sposób na dostanie się elektryczność na wyspie bez konieczności robienia bałaganu blat z wodospadem", mówi Roos.
JENNINGS BAY KITCHENWyspa o wymiarach 56 na 98 cali jest dość pokaźny, więc Roos zastosował wizualną sztuczkę, aby go zachować od przytłoczenia kuchni.
"Udało nam się rozbić jego ciężar, dodając orzech bar śniadaniowy na końcu" – mówi. "Daje ci dużo przyjemności powierzchnia blatu, a także zapewnia miejsce do siedzenia i jedzenia jest trochę bardziej miękki i cieplejszy niż kamień" – mówi wyjaśnia.Trzy lampy wiszące wiszące nad głową.
Nowa orientacja wyspy pozwala również osobom siedzącym na niej patrzeć na zewnątrz, a nie przy ścianie.

KUCHNIA JENNINGS BAYMówiąc o cieple, the Nowapodłoga jest podgrzewana, co zapewnia komfort podczas użytkowania Minnesota zimuje, mówi Roos. Zauważa również, że porcelana kafelek dobrze zniesie ruch do iz jezioro.

To zdjęcie pokazuje orzechową szafkę otaczającą nowy sześciopalnikowy blat i okap serii Wolf oraz szafka sprzęt, który jest odlewany z brązu.


KUCHNIA JENNINGS BAYThe aranżację tworzą wsporniki między szafkami górnymi i dolnymi przypominają antyczny bufet i chatę — tradycyjny akcent. Oni zapewnić również miejsce na punkty sprzedaży, które nie psują wyglądu lokalu bladozielona ceramiczna płytka backsplash firmy , która ma miękki len tekstura.

KUCHNIA JENNINGS BAYTo zdjęcie oddaje piękny widok na jezioro z punktu obserwacyjnego zlew wiejski. Możesz zobaczyć pergolę nowego tarasu górna część okna.
W trakcie projektu klient dodał kilka urządzeń do jej oryginalnej listy życzeń, w tym piekarnika parowego a nad nim wbudowany ekspres do kawy. (Piekarniki z podwójnymi ściankami są na lewo od zlewu.)
"Staraliśmy się dowiedzieć, dokąd zmierzają te rzeczy iść" – śmieje się Roos.
Aby je pomieścić, wydłużyła bieg szafek wzdłuż zlew, który stworzył za nim małą pustkę, tuż wokół róg.
KUCHNIA JENNINGS BAYRozwiązanie Roosa na pustkę było takie przystojna mała nisza na wino z orzecha włoskiego, która jest otoczona szkłem i obudowa, aby sprawiać wrażenie, że znajduje się za drzwiami. Znajduje się tuż za przesuwanymi szklanymi drzwiami prowadzącymi do nowego pokład.
Nisza jest wyłożona boazerią z orzecha włoskiego po bokach i na górze, z tyłu Lustro; szklane naczynia znajdują się w przeszklonych szafkach powyżej, oraz szuflady poniżej mieszczą zastawę barową i butelki wina.
Kuchnia tygodnia: Kate RoosPrzed ZdjęciePrzed: Ściana naprzeciwko, gdzie stoi kawa system i piekarnik parowy zajmują teraz nieefektywnie zajmowaną przestrzeń i tak było jeszcze bardziej niezręczna przez narożną spiżarnię.
JENNINGS BAY KITCHENPo:Teraz nie ma narożnej spiżarni a ściana mieści ogromną kolumnę zamrażarki po lewej stronie, a kolumna lodówki po prawej stronie i lodówka na napoje pomiędzy je.
Po lewej stronie zdjęcia widać wyposażony barek ze zlewozmywakiem i kostkarką do lodu. Kolejna spiżarnia znajduje się tuż obok kuchnia w przedpokoju.
JENNINGS BAY KITCHENAle czekaj – jest więcej! Drzwi szafki nad napojem lodówka schowana, odsłaniając stację śniadaniową z tyłu panele orzechowe.
To wygląda na idealne miejsce na szybki tost przed wyruszeniem nad jezioro w letni poranek.
Kuchnia tygodnia: Kate RoosPrzed ZdjęciePrzed: Oryginalna kuchnia miała tylko jedne drzwi do pokoju rodzinnego oraz ściana między przedpokojem a jadalnią pokój zarówno zasłaniał widok, jak i utrudniał przepływ.
Kuchnia tygodnia: Kate RoosPo:Dzięki smart projekt i kilka zmian konstrukcyjnych, Roos radykalnie się poprawił wygląd i funkcjonalność przestrzeni.


# Remont mieszkania