Wycieczka Servista: 1947 Zaktualizowany dom w stylu kolonialnym i Rozszerzony

Architekci odnawiają dom w Ohio z myślą o nowoczesnym życiu rodzinnym przy jednoczesnym zachowaniu zewnętrznych szczegółów i skali

kompletny przebudowa i dodanie prawie 2000 stóp kwadratowych dało rok 1947 Dom w stylu kolonialnym wkracza w XXI wiek. Położony w Chagrin Falls, historyczna wioska na przedmieściach Cleveland, dom rodzinny został przekształcony przez architekta George'a Clemensa i Jordania Zabudowa na nowoczesny dom wiejski z zachowanym historyczne szczegóły. Właściciele domów zbierali książki z pomysłami Servista inspirujące zdjęcia podczas pracy z Clemensem nad przeprojektowanie.
Wcześniej na pierwszym piętrze domu znajdowały się dwie małe sypialnie dzielili łazienkę, a na drugiej była jedna mała sypialnia piętrze z własną łazienką. "Właściciele domów mieli ogromną ilość wkład do programu, o którym mówiliśmy od początku spotkanie – mówi Clemens. "Opracowałem wizję architektoniczną stworzyć główny parter, sklepiony i otwarty dodatek kuchenny, nowa komórka lokatorska i garaż oraz rozbudowa o jedną sypialnię drugie piętro na trzypokojowe, drugie piętro z dwiema łazienkami dodatkowy pokój" — mówi Clemens.
Nowoczesna klasyka w nowej odsłonieZdjęcia: Peter Nogay z George Architektura Klemensa
Kto tu mieszka: Para i ich trzylatki w wieku szkolnym dzieci
Lokalizacja: Chagrin Falls, Ohio
Rozmiar: 4673 stopy kwadratowe (434 metry kwadratowe); cztery sypialnie, 4½ łazienki
Architekt:
Konstruktor:Jordan Construction
Wycieczka Servista: powojenne kolonialne Ohio zostaje odkryte na nowoPrzed: Dom był w dobrym stanie, ale właściciele chcieli powiększyć przestrzeń i zrobić trochę aktualizacji. Architekci i ekipa budowlana odnowił dom w stylu kolonialnym Cape Cod, aby go nie rozerwać w dół. Z przodu chcieli zrobić większą obecność ulepszenie ganku i dostosowanie drugiego piętra spacja.
Nowoczesna klasyka w nowej odsłoniePo: Zespół dodał długą ganek frontowy i lukarny z metalowym dachem. "Ponowne wykorzystanie oryginału kamienny fornir na elewacji frontowej i utrzymanie tego samego dachu linia, ponieważ oryginalny dom zachował skalę w sąsiedztwo" – mówi Clemens. "Poślubiliśmy nowe elementy istniejąca estetyka Cape Cod Colonial z wykorzystaniem nowej werandy, lukarny i kolory, aby zaktualizować wygląd. Wewnątrz stworzyliśmy m.in czysty, otwarty, przejściowy klimat".

Nowoczesna klasyka w nowej odsłonieWpis domu jest w oryginale lokalizacja, ale została przerobiona. "Chociaż przestrzeń wejściowa jest częścią istniejącego śladu, całkowicie zmieniliśmy konfigurację przestrzeni pozwolić na wielkie schody na drugie piętro" — mówi Clemens. " poprzednia klatka schodowa była wąskimi schodami ukrytymi za drzwi."
Nowoczesna klasyka w nowej odsłonieKuchnia przeszła wielką metamorfozę. The architekci musieli dodać przestrzeń na drugim piętrze, ale tego nie zrobili chce żeby to wpłynęło na podniesienie sufitu w kuchni. Oni udało się zrobić jedno i drugie, a rezultatem jest oszałamiająca nowa kuchnia ze strzelistym sufitem sięgającym 15 stóp wysokości.
"Musieliśmy dodać bardzo duży dodatek do tego stylu Cape Cod powojennego domu, ale zaciekle broniliśmy przestrzeni nad dodatek kuchenny, aby umożliwić ekspansywną, sklepioną część centralną pierwszego piętra" – mówi Clemens. "Sklepiona przestrzeń daje ulgę 8-stopowe sufity, które istniały w domu". Wyspa kuchenna a drewniane belki stropowe są barwione na olchę.

Wycieczka po Servista: Powojenne kolonialne Ohio odkrywane na nowoPrzed: Chociaż kuchnia była funkcjonalna, nie była aktualizowana od czasu dom został zbudowany.
Nowoczesna klasyka w nowej odsłoniePo: Cała kuchnia była otwarte i nowe większe okna i mniejsze okno obok dodano szczyt sufitu. Czarne nowoczesne kinkiety industrialne zakupiony na Servista i nowoczesny liniowy żyrandol nad wyspą pomóc rozjaśnić przestrzeń. "Daliśmy priorytet łączności i przepływowi, naturalnego światła i widoków na piękne tylne podwórko" – Clemens mówi.
Blaty: HanStone Quartz w Montauk; lakier do szafek: słony Pies, Sherwin-Williams; ściana farba:Snowbound,Sherwin-Williams; windows:
Nowoczesna klasyka w nowej odsłonieWłaściciele domów wybrali dachówkę, blaty i kolory szafek w kuchni, mówi Clemens. "My szczegółowo opracowaliśmy szafki i okap oraz wyrzeźbiliśmy przestrzeń" — mówi. Drewniana osłona okapu została wykonana na zamówienie, aby pasowała do ok kaptur ze stali nierdzewnej wewnątrz.
"Przechowywanie było krytyczne, a spiżarnia zapewnia hojność miejsca do przechowywania zamiast górnych szafek" — mówi Clemens. "My priorytetem była otwartość, okna i widok na szafki górne." The spiżarnię można zobaczyć za otwartymi przesuwanymi drzwiami stodoły.
Nowoczesna klasyka w nowej odsłonieZwłaszcza dla właścicieli domów uwielbiam kuchnię, a żona szczególnie kocha spiżarnię. "Ona ma półkę na sprzęt w spiżarni i uwielbia taką opcję po prostu "zamknij drzwi do stodoły", aby ukryć urządzenia", Clemens mówi. Małe drzwi szafki na poziomie lady są przejściem właściciele domów używają, aby uzyskać dostęp do przedmiotów w spiżarni bez posiadania aby go wprowadzić.
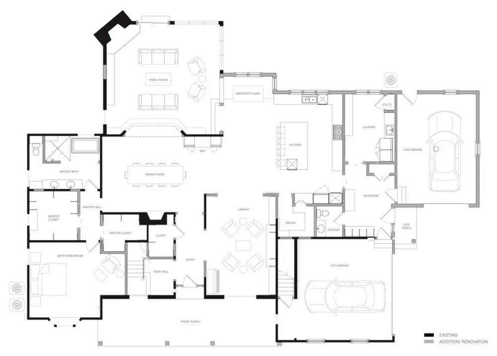
Wycieczka Servista: powojenne kolonialne Ohio zostaje odkryte na nowoPrzed: Oto plan pierwszego piętra domu przed renowacja.
Wycieczka Servista: powojenne kolonialne Ohio zostaje odkryte na nowoPo: W nowym rzucie pomieszczeń obszary zaznaczone na szaro są częścią tzw dodatek.
Nowoczesna klasyka w nowej odsłonieArchitekci dodali kącik śniadaniowy który zgrabnie mieści się między kuchnią a pokojem rodzinnym. Jego Wbudowana drewniana ławka i rustykalny stół uzupełniają całość nowa, klasycznie wyglądająca stolarka.
Nowoczesna klasyka w nowej odsłonieBar jest dogodnie zlokalizowany pomiędzy główną przestrzenią kuchenną a jadalnią. Miejsce jest wyposażony w chłodziarkę do wina, lodówkę na napoje i zabudowę uchwyt na butelkę wina. Niebieska szafka koresponduje z resztą kuchni, ale płytki backsplash w kształcie pikiety i drewna lada sprawiają, że przestrzeń wizualnie się wyróżnia. Otwór po lewej stronie prowadzi do pokoju rodzinnego.
Płytka Backsplash: Highball Sidecar Gloss, Astoria kolekcja,
Wycieczka Servista: powojenne kolonialne Ohio zostaje odkryte na nowoPrzed: wyłożone kamieniem kominki i nisze do przechowywania kłód zajmowały całość róg poprzedniego salonu.
Wycieczka Servista: powojenne kolonialne Ohio zostaje odkryte na nowoPo: To jest widok na pokój rodzinny z jadalni. Jest dużo wygodnych miejsc do siedzenia, aby cieszyć się kominkiem i telewizor, oba na nowej, śnieżnobiałej ścianie. Pokój dostaje obfite światło przez duże okna, które pomalowali robotnicy czarny, aby pasował do nowych okien w obszarach dodatkowych.

Wycieczka po Servista: Powojenne kolonialne Ohio odkrywane na nowoPrzed: Poprzednie pomieszczenia mieszkalne miały ładne, duże okna, ale ich nie miały otwarty układ koncepcyjny, jakiego chcieli właściciele.
Wycieczka Servista: powojenne kolonialne Ohio zostaje odkryte na nowoPo: Oto kolejny widok odnowionego pokoju rodzinnego. Architekci otworzyło przestrzeń i zawierało wyciętą ścianę, która wygląda do środka kącik śniadaniowy, który dodaje wnętrzu lekkości.
Nowoczesna klasyka w nowej odsłonieTen widok obejmuje część Aneks kuchenny, jadalnia i pokój rodzinny pokazują, jak wykończenia, meble, dębowe podłogi inżynieryjne i klasyczne millwork łączą się w wyraźny projekt.
Nowoczesna klasyka w nowej odsłonieTo jest zlokalizowana biblioteka tuż przy wejściu do domu. Jest w przestrzeni, która była wcześniej jadalnia. Zespół wyposażył go w mnóstwo miejsca do przechowywania, półki i oświetlenie.
Modern Classic Reimagined MudroomDodatek zawiera również to boczne wejście, sąsiadujące z nowym garażem. Drzwi z światło boczne wpuszcza mnóstwo naturalnego światła do pokoju błotnego, co ma podłogę wyłożoną kafelkami, wbudowane szafki i styl industrialny lampa wisząca.
Nowoczesna klasyka w nowej odsłoniePomieszczenie błotne ma wbudowane schowki, szafki i haczyki do przechowywania butów i odzieży wierzchniej. Drzwi włączone prawo prowadzi do nowej toalety.
Nowoczesna klasyka w nowej odsłonieOto spojrzenie na dom boczne wejście od zewnątrz, przylegające do odnowionego oryginału garaż po lewej stronie i nowy garaż na jeden samochód po prawej stronie. The nowoczesny styl wiejski jest widoczny w ostrej białej sidingu i kolumna, czarne drzwi garażowe i wykończenia okien oraz czarna ściana światło.
Wycieczka Servista: powojenne kolonialne Ohio zostaje odkryte na nowoPrzed: To jest poprzedni garaż, który architekci upiększyli i dostosowany, aby pomieścić nową sypialnię nad nim.
Nowoczesna klasyka w nowej odsłoniePo: Oto stare (po lewej) oraz nowe garaże po remoncie. "Asfaltowy gont dach został całkowicie wymieniony i dodaliśmy kopułę nad istniejącego garażu" — mówi Clemens. "Dodaliśmy lukarnę, aby zapewnić lepsze miejsce na sypialnię nad garażem, który był wcześniej nieużywane poddasze". Pokój zabaw dla dzieci znajduje się nad nowym garaż.


# Remont mieszkania