Servista Tour: Mnóstwo kreatywności w małym języku rosyjskim Kamienica

Innowacyjne dzieło architektów obejmuje m.in lodówka pod schodami, wysuwany stolik kawowy i szafka nocna kran


Wnętrze KASZdjęcia przez
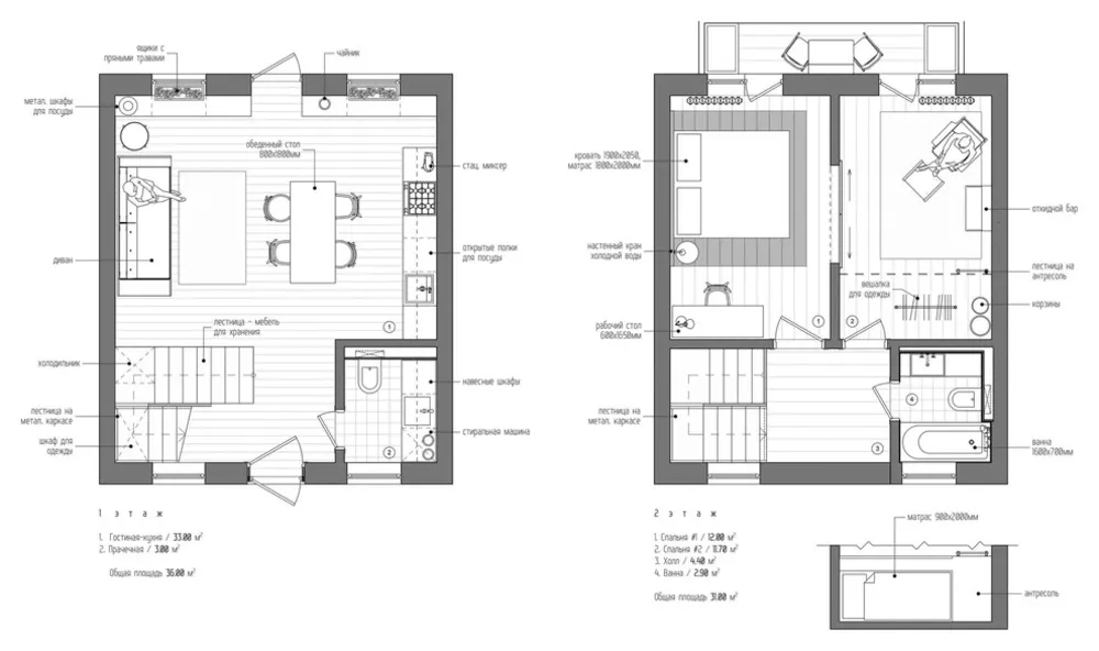
Kamienica w skrócie
Kto tu mieszka:Młoda, kreatywna para z kotem
Lokalizacja: Sankt Petersburg, Rosja
Rozmiar:721 stóp kwadratowych (67 metrów kwadratowych); dwie sypialnie, dwie łazienki
Architekci:Alexander Malinin i Anastasia Sheveleva z
Alexander Malinin i Anastasia Sheveleva mówią o przeszłości kilka lat mają zagraniczne blogi DIY, magazyny i poradniki wideo zmienia scenę dekoracyjną w Rosji. To zainspirowało duet architektów, aby zobaczyć, co mogliby zrobić we wnętrzu ze swoimi własnymi rękami.
Wnętrze KASTo Kamienica przyjechała bez okablowania, hydrauliki czy umeblowania, więc jest było dużo pracy. Architekci powierzyli inżynierię i spawania do specjalistów. Zrobili wszystko inne, w tym malowanie ścian i robienie mebli.

Wnętrze KASŚcianki działowe w kamienicy nie były nośny. Rozebranie ich umożliwiło połączenie tzw przedpokoju i kuchni z salonem oraz dobudować klatkę schodową, który stał się centralnym elementem przestrzeni.
Architekci wymyślili kreatywny układ drugiego podłoga. Zainstalowali przesuwane drzwi między dwiema sypialniami. Na w tej chwili druga sypialnia jest wykorzystywana jako salon. W przyszłości może stać się sypialnią dziecięcą.
Wnętrze KASArchitekci nie starali się o perfekcję gładką powierzchnię, więc nawet ścian nie wyrównali. Zgłosili się warstwa tynku o grubości od jednej piątej do trzech piątych cala gruba kielnią, a następnie pomalowana na biało. To wykończenie było inspirowany tradycyjną mazanką, swego rodzaju dom z szachulcowej cegły z nierównymi, bielonymi glinianymi ścianami.
Zaletą tego wykończenia jest to, że uszkodzenia można naprawić fragmentarycznie, bez konieczności wymiany całej powierzchni.
Betonowy sufit pozostawili odsłonięty, ale wyszlifowany i polakierowany To. Owinęli giętkie okablowanie do reflektora szarej tkaniny i przymocował światło do sufitu za pomocą miedzi śruby pierścieniowe.

Wnętrze KASArchitekci wybrali podłogę z naturalnego drewna. Myśleli, że wykończenie parkietu byłoby zbyt drogie dla firmy projekt eksperymentalny i że powinien być instalowany przez ekspertów. Zamiast tego zdecydowali się na deski modrzewiowe łączone na pióro i wpust. Modrzew jest trwałe drewno o pięknej fakturze. Traktowali to olejem i twardy wosk.
Deski o długości 20 stóp zostały zainstalowane od ściany do ściany. Umieścili warstwę Ruberoidu, bitumicznego materiału dachowego, pomiędzy ramę i deski, żeby podłoga nie skrzypiała. Oni wypełniono przestrzenie w ramach zrębowych płytami z wełny kamiennej, który zapewnia izolację akustyczną i izolację termiczną.

Wnętrze KASJadalnię otaczają różnorodne krzesła tabela. Skórzane są europejskimi elementami z połowy wieku, podczas gdy te inne kupiono niedrogo w internecie.

Wnętrze KASKupili gotowe szafki kuchenne i miał fronty i uchwyty pomalowane na ciemnozielono.

Wnętrze KASPółki na przyprawy wiszące na zewnętrznej ścianie pudełko zawierające łazienkę. Pudełko jest pokryte farba tablicowa.

Wnętrze KASArchitekci wykonali klatkę schodową na miejscu z klejonych krawędziowo litych płyt sosnowych. Producent piłował drewno do wymaganych wymiarów, ale panele nadal musiały być wyregulowane, wyszlifowane i naoliwione przed złożeniem.
Aby zaoszczędzić miejsce i ukryć lodówkę przed wzrokiem, architekci wbudował go w najbardziej wysuniętą na prawo sekcję pod schodami. Obok tego jest szafą. W mniejszych szafkach znajdują się sprzęty AGD i zastawa stołowa.
Wnętrze KASTo w całym mieszkaniu pojawia się na nich boazeria klejona krawędziowo elementów, takich jak sofa, łóżko, stół jadalny, biurko, półki i barek. Pojawia się również na blatach i frontach szafek kuchnia i pralnia-łazienka. I to na przesuwanych drzwiach, parapety, progi balkonowe oraz ozdobna stolarka okienna w pow łazienka.
Miękkie poduszki wykonane na zamówienie w warsztacie meblarskim ozdobić sofę. Podstawa sofy posiada trzy zakryte wysuwane szuflady szuflady. Dzięki przykrywkom szuflady mogą służyć jako kawa stołach podczas przechowywania przedmiotów, takich jak pościel, dokumenty i elektronika.
Wnętrze KASTo właśnie szuflada wygląda tak, jak jest używana jako kawa tabela.
Wnętrze KASSzafy na zamówienie wzdłuż okna, z ich kratownicowe fronty wykonane są z metalu. Były malowane na podstawie rysunków architektów w zaprzyjaźnionym sąsiedztwie auto warsztat za niewielkie pieniądze. Trzymają zastawę stołową i ukrywają grzejniki.
Wnętrze KASThe architekci zainstalowali sprzęt pralniczy na pierwszym piętrze łazienka. Ściany pomalowane tynkiem komponują się z płytkami ceramicznymi podłoga.

Wnętrze KASWłaściciele, młode małżeństwo z kotem, chciał mieć dużą sypialnię na drugim piętrze, którą można by podzielić, kiedy potrzebne, na dwie sypialnie. Dlatego jest dwoje drzwi na zewnątrz korytarz.
Wnętrze KASDuże drzwi przesuwne oddzielają dwa pokoje.
Wnętrze KASJak w resztę mebli architekci wykonali przesuwne ścianki działowe, biurko i łóżko z dużym wezgłowiem, na miejscu.
Wnętrze KASPonieważ ludzie często dokuczają w nocy, architekci postanowili pomóc właścicieli, instalując kran w wezgłowiu. Zamiast szafka nocna, znajduje się beczka ocynkowana.
Wnętrze KASNa z drugiej strony sypialni jest antresola umeblowana z dostawką łóżko. W przyszłości ta część pokoju może stać się oddzielną pokój dziecięcy z placem zabaw.
Interior KASThe Antresola wykonana jest z belek sosnowych i sklejki, pomalowana na biało właśnie jak sufit i ściany. Barierka bezpieczeństwa wykonana jest z metal bezpiecznie przymocowany do nośnego, żelbetowego podłoża promień.
W obszarze pod łóżkiem znajduje się wieszak na ubrania; przestrzeń jest używany jako otwarta szafa.
Wnętrze KAS fotel w części wypoczynkowej został uratowany przed dozorcami w St. Petersburg, malowany i tapicerowany. Pod spodem jest Turek dywan kilim z lat 70.Obok fotela stoi regał pełniący funkcję stolika bocznego. Został zbudowany na miejscu i przechowuje szklanki i butelki.

Wnętrze KASUkład hydrauliczny stworzył wokół niszę wannę, która stanowi kontrastowy akcent. Wyłożona kafelkami ściana nie sięga do sufitu; rośliny doniczkowe zdobią półkę góra.


# Remont mieszkania