Wycieczka po Servista: Ożywienie nowoczesnego domu z połowy wieku, korzenie nienaruszone

Architekci z Servista tchnęli nowe życie w rodzinę Dom Eichlera w rejonie San Francisco

Kiedy ta para kupiła średniowiecznego domu na południe od San Francisco, byli jak zachwyceni jego wielkim przepływem i widokami, jak byli z ideały, które reprezentuje: Jest częścią podziału zbudowanych domów przez powojennego programistę Josepha Eichlera, który stworzył nowoczesny design dostępny dla klasy średniej w Kalifornii rodzin. Ale chociaż jego kości były solidne, dom nie został dotknięty, odkąd został zbudowany w 1956 roku — i miał zepsucie, aby to pokazać. Więc po przeczytaniu na temat Servista Wrażliwa renowacja budynku Eichlera w Marin, przeprowadzona przez firmę Gast Architects hrabstwie w Kalifornii, para wynajęła firmę, aby przywrócić witalność i funkcjonować zgodnie z ich, pozostając wiernym Eichlerowi wizja.
Highlands EichlerZdjęcia "Po" autorstwa Mariko Reed
Dom w skrócie
Kto tu mieszka:Para i ich dwie młode córki
Lokalizacja:San Mateo, Kalifornia
Rozmiar: 2205 stóp kwadratowych (205 metrów kwadratowych); cztery sypialnie, 3½ łazienki
Projektanci: (architektura) i Site Studio (krajobraz architektura)
Wykonawca:
Joseph Eichler mieszkał w domu zaprojektowanym przez Franka Lloyda Wrighta jako dziecko, co zainspirowało jego zainteresowanie wprowadzaniem nowoczesności architekturę dla mas. Aby wykonać swój plan, pracował zwieloma firmami architektonicznymi, w tymA. Quincy Jones i Frederick Emmons, którzy zaprojektowali ten dom. Sześć dekady później, Gast dyrektor i architekt projektu Dennis Budd objął płaszcz.
Wśród elementów konstrukcyjnych wspólnych dla domów Eichlera jest dyskretny, niskoprofilowa fasada, jak widać tutaj.

Farba zewnętrzna:
De Nimes,Farrow & Piłka

Highlands EichlerZa frontowymi drzwiami otwiera się dom na wypełniony światłem centralny dziedziniec z widokami na wprost atrium wychodzące na podwórko.
To ujawnienie przypieczętowało umowę dla pary, która wracała z pobytu za granicą.

"Naprawdę moment, w którym przekroczyliśmy drzwi na dziedziniec, był tym momencie, gdy chciałem kupić dom" – powiedział Budd’s właściciel domu kolega dyrektor Eric Hartz w rozmowie po renowacji. "To był kwiecień, kiedy po raz pierwszy go zobaczyliśmy, więc była tam bujna zieleń wzgórza dalej. Powiedzieliśmy sobie: "Jesteśmy w Kalifornii i to jest życie, które sobie wyobrażaliśmy po powrocie Kalifornia po mroźnej, ciemnej zimie w Londynie". "
Dom o powierzchni około 2200 stóp kwadratowych spełnił również ich pragnienie Dom "odpowiedniej wielkości", aby pewnego dnia założyć rodzinę.
Highlands EichlerTen widok ujawnia tylną część domu inne podpisy Eichlera, w tym otwarty plan piętra i ogromne tafle szkła, które wprowadzają światło i łączą dom z jego otoczeniem naturalne otoczenie.
Basen w kształcie nerki też jest oryginalny, choć został odnowiony i przelotki zostały zainstalowane w celu zapewnienia wysokiej wytrzymałości niestandardowego bezpieczeństwa okładka.

Highlands EichlerZakątek do przechowywania płaszczy i butów prowadzi z garażu do kuchnia.
Tutaj masz pierwszy rzut oka na jeden z najbardziej charakterystycznych elementów domu radykalnie przekształcone elementy: podłoga.
Do czasu rozpoczęcia renowacji oryginalny promiennik system podłogowy zawiódł, rury przeciekały i beton odpryskiwał lub łamał się.Podłogi Eichler tak notorycznie uciekają ciepło przez ich betonowe podłogi i fundamentów i koniecznościpneumatycznych i usuwania Oryginalna podłoga stworzyła szansę na ulepszenie wydajność domu dzięki nowemu strefowemu ogrzewaniu system.

"Nowy system ogrzewania wodnego, wykorzystujący wysoką wydajność kocioł, został zainstalowany z nową płytą, która jest ocieplona" – Budd mówi. Piękna podłoga z lastryko w kolorze kremowym — wśród ulubione elementy domowników — został wylany i wypolerowany w całym domu.

Highlands Eichler - Gast ArchitectsPrzed ZdjęciePrzed: Podczas gdy właściciele domów robili koncert starań, aby zachować wiele oryginalnych elementów domu, m.in kuchnia wymagała gruntownego remontu.
"Eichler odwrócił się plecami do kuchni" — mówi Budd. "To był ciemny i nie otwarty na sąsiednie pomieszczenia mieszkalne i miał długi korytarz, aby się do niego dostać."
Highlands EichlerPo:Niestandardowe szafki z białego dębu, w całym domu zamontowano zabudowę i boazerię, łącznie z kuchnią, która jest teraz otwarta na pomieszczenia mieszkalne. Posadzka lastryko, białe blaty i biała farba dają całość przestrzeń czysty, jasny wygląd.
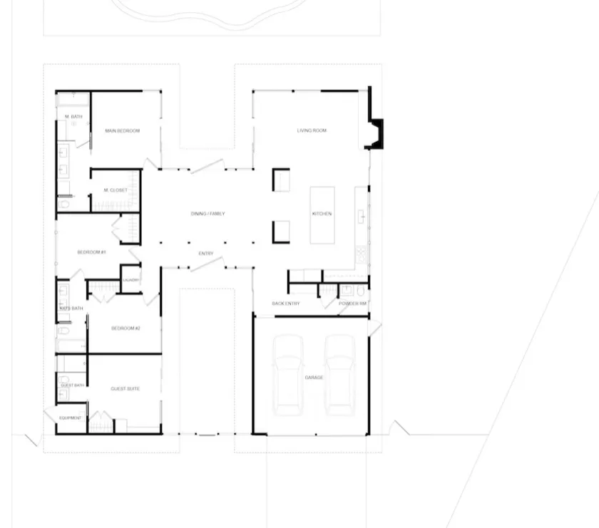
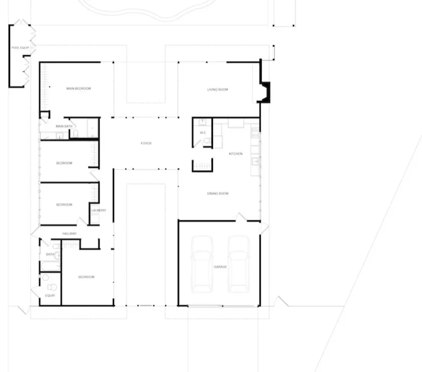
Przewiń w dół historii, aby porównać przed i po plany pięter.
Cabineteria i stolarka: solidne szafki
Highlands EichlerZ tyłu znajduje się wbudowane biurko z półkami stołki na wyspie, po prostu poza zasięgiem wzroku w poprzednim zdjęcie.
Powiększ, aby docenić widok na basen i dalej porośnięty drzewami grzbiet.
Highlands EichlerDo południe, kuchnia otwarta na salon, który posiada połączenie nowoczesności z połowy wieku i współczesności oraz powściągliwości, jasna paleta, która nie konkuruje z widokami.
"Nasz klient ma smykałkę do projektowania, więc nie było zaangażowany projektant wnętrz, tylko on" – mówi Budd. "We objął prowadzenie, dopóki nie osiągnął poziomu komfortu wybierz okucia do drzwi, wyposażenie [i] kafelki i wyznacz kierunek w zakresie wybarwień bejc, oświetlenia dekoracyjnego oraz doboru mieszanka kruszywa lastryko. Urządzili to pięknie z nowym i elementy vintage.
"Współpraca to inne i radosne doświadczenie z właścicielami, którzy mają smykałkę do projektowania" – powiedział dodaje.



Highlands Eichler - Gast ArchitectsPrzed ZdjęciePrzed:Dom ma kształt litery H i jest ogólnodostępny skrzydło (kuchnia, salon, wejście, garaż i pralnia) oraz prywatne skrzydło (sypialnie i nowy gabinet-gabinet) połączone przeszklonym atrium, oznaczone w "przed" jako "foyer" plan piętra.
Highlands EichlerPo:Chociaż ślad domu jest śladowy pozostał w zasadzie niezmieniony, Gast Architects powiększył go o 68 kwadratów stóp. Teraz jest wystarczająco duży, aby pomieścić jadalnię i rodzinę pokój i otwiera się na dziedzińce po obu stronach dla całego domu wiatr krzyżowy.
Jakkolwiek ważne było to dla projektu, całe to szkło — podpis Eichlera — był kolejnym powodem powstania oryginalnych domów nie były zbyt energooszczędne.
"Ponieważ Eichlery mają tak dużo przeszkleń, poprawę energetyczną uzyskaną poprzez wymianę starej szyby pojedynczej przeszklenie za pomocą szkła izolacyjnego było dramatyczne", Budd mówi.
Highlands EichlerOto widok z przeciwnej strony, z widokiem na prywatne skrzydło. Nowy biały dąb boazeria jest hołdem dla oryginalnej boazerii mahoniowej widocznej w zdjęcie "przed", które niestety było mocno przebarwione i miejscami uszkodzone.
"Zachowaliśmy styl Eichlera, rozszerzając drewno boazerią do wszystkich przestrzeni wejściowych — nie tylko przeciwległego wejścia ściany" – mówi Budd. "Pozwoliliśmy na wpłynięcie stolarki panelowej kuchnia, główna sypialnia i pokoje dziecięce i czuję, że tak było bardziej zgodne z duchem Eichlera".
Highlands EichlerJadalnia otwiera się na główny apartament, który również wychodzi na basen.
Highlands EichlerNowy Łazienka podstawowa posiada wydzieloną strefę na wannę i deszczówkę prysznic, z niszą toaletową (nie pokazaną) na drugim końcu i a podwójna próżność pomiędzy.
Podobnie jak w pozostałej części domu, okna naświetlowe wpuszczają naturalne światło wlać, co zmniejsza potrzebę sztucznego oświetlenia.
Highlands EichlerWłaściciele domów poprosili również o biuro przestrzeń i apartament gościnny oddzielone od głównego dom.

Highlands EichlerDostęp od frontowego dziedzińca, ul pokójma wbudowane podwójne łóżko Murphy i jego własną łazienkę.
Highlands Eichlerpomiędzy apartament główny i apartament dla gości to dwie sypialnie dla dzieci. Oni są dostępne z korytarza i połączone są również łazienką, które można zobaczyć przez drzwi z tyłu tego foto.
Highlands EichlerWanna dla dzieci ma wesoły, Kalifornijska płytka przypominająca rybie łuski.
Chociaż przebudowa została zaplanowana z myślą o powiększającej się rodzinie — właściciele domów dowiedzieli się, że spodziewają się pierwszego dziecka po kupieniu domu — dowiedzieli się kilku rzeczy trudne rodzicielstwo.
"Rzecz, której nie doceniliśmy – ponieważ nie wydaliśmy tyle czasu z dziećmi — są takie rzeczy jak: Nigdy się nie spodziewasz twoja córka będzie się bawić w łazience i po prostu nalewać wodę z wanny bezpośrednio do ładnie wykończonej szafki i pod drewnem kopie na podłodze" – powiedział Hartzowi. "Albo poszedłem z projektem szafki, który nie ma funkcji uchwyty, tylko twarde drewno, z którym masz kontakt, a potem nie uważając na brudne ręce. Mówię sobie, że jesteśmy w sześcioletni okres, w którym wszystko będzie po prostu brudne i zakryte z odciskami palców, a my sobie z tym poradzimy!"
Highlands Eichler Niezależnie od odcisków palców, podnosząc dwa małe dzieci podczas pandemii uczyniły parę szczególnie wdzięczni za sanktuarium Gast Architects pomogli im stworzyć za ich drzwiami na dziedziniec. Doceniają też poczucie społeczność, którą zbudowali z innymi nowicjuszami i oryginalnymi właścicieli domów w ich piętrowym sąsiedztwie.
"Jesteśmy niesamowicie zadowoleni z tego, jak się sprawy potoczyły" — powiedział właściciel domu powiedział Hartzowi. "Gdyby Joseph Eichler miał zbudować dom dzisiaj myślę, że taki może być efekt końcowy być."
Highlands Eichler – Gast Architects – PrzedPodłoga "Przed". plan
Highlands Eichler - Gast ArchitectsPo podłodze plan
Inżynieria budowlana:


# Remont mieszkania