Pokład tygodnia: wyjątkowa pergola i życie na świeżym powietrzu Spacje

Architekt krajobrazu łączy ogień, wodę, cień i czysty współczesny styl na rodzinnym podwórku w Atlancie

Te Właściciele domów w Atlancie chcieli mieć taras, który funkcjonowałby jako jadalnia na świeżym powietrzu, salon i przestrzeń rozrywkowa. Ołów architekt krajobrazu Micah Rogers z Boyce Design and Contracting pomogli im stworzyć nową, piękną przestrzeń, która angażuje zmysły i zapewnia im wszystko, co znajduje się na ich liście życzeń. Lista zawierał pokład wystarczająco duży, aby zabawiać tłum miałby intymne przestrzenie, ciepło kominka, uspokajające dźwięki fontanny, nowoczesne zintegrowane oświetlenie, zastosowanie materiałów kompozytowych, prywatność od sąsiadów i lepsza komunikacja między przednim a tylnym dziedzińcem.
Talia tygodnia: Atlanta BoycePrzed ZdjęcieZdjęcia: Jim Roof
Pokład w skrócie
Kto tu mieszka:
Małżeństwo z dwójką dzieci
Lokalizacja:Atlanta
Rozmiar: 950 stóp kwadratowych (88 metrów kwadratowych)
Architekt krajobrazu: Micah Rogers z
Przed:Istniejący pokład i otaczające go elementy oporowe ściany były niskiej jakości iw stanie ruiny. Ściany były pokryty stiukiem, który nie trzymał się zbyt dobrze. "Właściwie, kiedy usunęliśmy je, odkryliśmy, że są puste w środku i drewniana rama spróchniała — zawaliłaby się w r najbliższej przyszłości" — mówi Rogers.
Jednym z wyzwań projektu była linia własności było dość blisko pokładu, a odpowiedź z oryginału budowniczy do wymaganych ograniczeń niepowodzenia było wyciąć wchodzić i wychodzić z pokładu w niezręczny sposób. To nie skorzystało całą użyteczną przestrzeń i sprawił, że pokład miał zły przepływ.
Innym dużym problemem było to, że pokład znajdował się około 2 stóp powyżej ziemia i gromadząca się pod nią woda utworzyły Ziemia hodowlana nakomary.

Współczesne odosobnienie na podwórkuPo:"Grałem architekturę domu z projektem" – mówi Rogers. Wziął nie tylko z zewnątrz domu, ale także z jego wnętrza dekoracje. "Jest bardzo nowoczesny ze współczesnym otwartym planem piętra i wnętrza były minimalistyczne" — mówi.
Tylna granica własności biegnie po przekątnej i jest najbardziej oddalona z domu na widocznej tutaj części pokładu. niepowodzenie wymagania ograniczały, jak daleko Rogers mógł umieścić zabezpieczenie ściany, które okalałyby pokład. Odniósł się do tych ograniczeń przez starannie układając ściany oporowe w cofnięciu projekt. To podzieliło pokład na trzy sekcje. Wynik to duży pokład z wyznaczonymi kieszeniami na różne rzeczy zastosowań i bardziej intymny charakter. Ta największa część służy jako głównej części rozrywkowej i obejmuje jadalnię oraz stół z kominkiem salon.
Po zerwaniu starego pokładu załoga ponownie wyrównała teren znajdował się pod nim, tworząc wyściełane żwirem zagłębienie drenażowe przekierować wodę. Swale zapobiega gromadzeniu się wody i komary ze zbieractwa.
Współczesne ustronie na podwórkuOszałamiająca nowa pergola definiuje jadalnia. Jest pomalowany na aluminium, z zestawem listew cedrowych w ramach konstrukcyjnych. Cedrowe listwy nawisu kontynuuj w dół, dodając piękny element architektoniczny do dużej powierzchni stiuku na tylnej elewacji domu. Światła imprezowe zapewniają cudowną atmosferę w nocy.
Pergola ma wymiary 16 na 14 stóp. Rogers dołączył go do dom, aby zapewnić wsparcie. To pozwoliło mu umieścić podporę post po lewej stronie w dyskretnym miejscu, a nie na zewnętrznym rogu i tworzy dramatyczny, wspornikowy wygląd.
Stalowe szyny kablowe z boku pokładu zapewniają widok na morze drzewa otwarte. Na zdjęciu tego nie widać, ale cedrowa poręcz u góry krzyżuje się z cedrową listwą na ścianie pergoli w piękny sposób.

Współczesne odosobnienie na podwórkuNowy kompozyt Trex Deski wyglądają jak drewno i biegną równolegle do tylnej części dom.Nowe ściany są betonowe, pokryte a gładsze wykończenie sztukaterii niż stare ściany.
Podczas gdy pergola definiuje jadalnię na świeżym powietrzu, Rogers zaprojektował nowe ściany oporowe za nim, aby stworzyć salon kącik. Zakotwiczył salon za pomocą częściowo niestandardowego betonowego kominka stół, który ma własną linię gazową.
Godnym uwagi szczegółem jest sposób, w jaki ławka wystaje poza mur oporowy po prawej stronie. "To był fajny sposób na zaangażowanie przestrzeń. Stół kominkowy znajduje się poza murami oporowymi, więc my wyciągnął ławkę tak, aby wyrównała się z jej zewnętrzną krawędzią" mówi Rogers. "Pokazuje również, jak jest wspornikowy od wszystkich trzy boki, aby uzyskać pomysł drewna wiszącego w rzeźbiarski sposób". Osoby wchodzące od bocznego dziedzińca mogą zobaczyć m.in obszar z przeciwległego końca patio, więc przyciąga ich ku sobie to.
Współczesne ustronie na podwórkuMiędzy murami oporowymi i granicy nieruchomości, Rogers umieścił szereg ekranów zapewniających prywatność zamiast ogrodzenia. "Drugi dom jest bardzo blisko, ale my tego nie zrobiliśmy chcą ogromnej ściany ogrodzenia, która przytłoczyłaby pokład i sprawiają wrażenie klaustrofobicznych" – mówi. Zamiast tego zaprojektował Pojedyncze panele o szerokości 9 stóp z przerwami między nimi. "To wciąż wydaje się prywatna, ale te mają samodzielny rzeźbiarski charakter" – powiedział mówi.
Rogers powtórzył użycie aluminium i cedru na pergoli przez ok spójny wygląd. Aluminiowe ramy mają kanały pośrodku w które wsunął cedrowe listwy; oddzielił poziom listwy z przekładkami, aby dodać wrażenia otwartej przestrzeni.
Większe krzewy, które tu widać, to gardenie "August Beauty". (Gardenia jasminoides ‘August Beauty’, strefy USDA od 7 do 10;). "Są solidne i wyrosną na ładne monochromatyczne wiecznie zielony żywopłot" — mówi Rogers. Zapewnią również piękny zapach, gdy kwitną późnym latem lub wczesną jesienią. Dla dla kontrastu zasadził pełzającą Jenny (Lysimachia nummularia, strefy 3 do 9) jako jaśniejsza zielona roślina okrywowa. "Właściciele domów mogą zdecydować, czy chcą, aby to angażowało murów oporowych, pozwalając jej się rozlać lub utrzymywać w czystości za nimi" — mówi.

Talia tygodnia: Atlanta BoycePrzed ZdjęciePrzed:Talia miała dziwne przejścia na wskroś. Na przykład podwyższona powierzchnia wyłożona kafelkami przy drzwiach kuchennych był nieatrakcyjny i znajdował się na innej wysokości niż reszta pokład, powodując ryzyko potknięcia.
Współczesne odosobnienie na podwórkuPo:Posprzątanie a współczesny wygląd oznaczał przedłużenie wzdłuż tego tarasu obszar. Nowe oprawy wpuszczone w istniejący zwis oświetlają teren nocą, podczas gdy rośliny tchną trochę życia w przestrzeń.
To zdjęcie daje wgląd w oświetlenie, które biegnie wokół spodniej części ławek. Pokazuje również, jak wspornikowe ławka ustawia się w jednej linii ze stołem przeciwpożarowym.

Współczesne odosobnienie na podwórkuOprócz wkroczenia murów oporowych Rogers podzielił pokład na różne poziomy. Tutaj widać część pokładu, na którą wchodzą ludzie podchodząc do niego od strony podwórka. Dźwięk spadającej wody z nowej funkcji wody przyciąga ich za rogiem do tego obszar. Ten mniejszy obszar ma również pełnić funkcję kameralnego salonu (podczas sesji zdjęciowej był nieumeblowany).
Schemat oświetlenia był również ważny dla właścicieli domów. Zintegrowane światła sprawiają, że stopnie są bezpieczniejsze w nocy.
Atlanta Backyard RetreatFontanna powtarza krok motyw i obejmuje narożnik utworzony przez mury oporowe. To jest gładki beton i ma szeroką wylewkę, przez którą woda się rozpryskuje do liniowego basenu dolnego. Dna obu basenów są wyłożone w kamyczkach meksykańskiej plaży.
Dźwięku fontanny można słuchać z dowolnego miejsca na wyspie pokładu, tworząc poczucie spokoju. Zapewnia również ładny widok z w domu.
Deck of the Week: Atlanta BoycePrzed ZdjęciePrzed:Drewniane schody prowadzące na górę talia z podwórka miała już swój szczyt.
Współczesne odosobnienie na podwórkuPo:Nowe szersze stopnie są bardziej atrakcyjni, otwarci i gościnni. Oba zestawy kroków są szeroka jak pokład. Zmiany poziomu oznaczają różne obszary talii — część na pierwszym planie to a przejściowa szeroka ścieżka. Następnie ściana oporowa robi krok z tyłu, poszerzając strefę akwenu wodnego pokładu. Jadalnia część wypoczynkowa i część wypoczynkowa ze stołem kominkowym znajdują się o dwa stopnie wyżej stamtąd. Sadzarki umieszczone wzdłuż krawędzi podkreślają przestrzenie z kolorowymi akcentami i miękkimi teksturami.
Talia tygodnia: Atlanta BoycePrzed ZdjęciePrzed:Wzdłuż boku domu, ten obszar prowadził z parkingu z przodu na pokład. "To było katastrofa" – mówi Rogers. Jedyną ścieżkę tworzyły omszałe odskocznie przez obszar, na którym trawa nie chciała rosnąć.
Współczesne odosobnienie na podwórkuPo:Rogers wymyślił projekt ścieżki z dużych betonowych kostek wylewanych na miejscu. Wprowadzają bardziej wyraziste, współczesne linie, ale ich nieregularność kształty i układ sprawiają, że ścieżka jest bardziej interesująca. "Ta ścieżka jest dopasowane do tej konkretnej przestrzeni. Jest całkowicie niestandardowy i nie wygląda jak nigdzie indziej" — mówi.
Żwir grochowy i ostrokrzew japoński "Sky Pencil" (Ilex crenata "Sky Pencil", strefy 5 do 8) wzdłuż ścieżki rosną krzewy. "To będzie rosną do około 7 do 8 stóp wysokości, pozostając na około 18 cali w średnicy – mówi. "Są to kolumnowe, architektoniczne krzewy które można strzyc, aby uzyskać czysty wygląd", architekt krajobrazu mówi. "Chcieliśmy stworzyć zieloną ścianę, która byłaby zbliżona do człowieka skali i niezbyt imponujące."
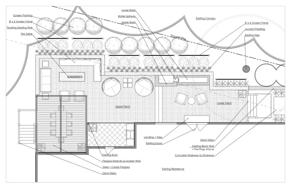
SHELL: Deck of the Week: Pergola zapewnia cień w AtlancieThe granica własności biegnie ukośnie wzdłuż górnej części tego planu, oraz schodkowy układ ścian oporowych można zobaczyć poniżej To. Pergola znajduje się w lewym dolnym rogu. Należy zwrócić uwagę na jeszcze jeden szczegół sposób, w jaki wspornikowa ławka wyrównuje się ze stołem paleniskowym. Element wodny znajduje się blisko środka planu. The odskocznie zaczynają się po skrajnej prawej stronie planu i dalej w dół poza kadr wzdłuż lewej strony domu.


# Remont mieszkania