Cocina de la semana: diseño zonificado para una familia a la que le encanta cocinar

Un diseñador hace que una cocina funcione durante tres generaciones y le da un estilo cálido y moderno

Mientras busca casa antes de su mudarse de San Francisco al sur de California, esta pareja estaba tomado con la ubicación de una casa de campo a lo largo de un campo de golf. Pero ellos no le importaba su estilo de los años 80 ni su diseño, que estaba lleno de ángulos extraños y tenía una cocina cerrada. Contrataron a T7 Arquitectura para diseñar una ampliación y reconfigurar el interior espacios. La diseñadora de cocinas y baños Bonnie Bagley Catlin se unió a la equipo para diseñar una cocina que funcionara eficientemente y se adaptara el estilo de los propietarios.
La pareja se había mudado para estar más cerca de su hija y nietas adolescentes, y a todas les encanta cocinar juntas. Entonces Catlin creó un diseño de cocina dividido en zonas con múltiples áreas de preparación, un zona de cocina, una zona de café, mucho espacio en la encimera y un gran isla. También agregó una pared de ventanas para bañar la habitación en luz natural.
Remodelación del hogar con un toque artístico modernoFotos de "Después" de Sheldon Ivester de Ivester Creative
Cocina de un vistazo
Quién vive aquí:
Una pareja
Ubicación: Rancho Santa Fe, California
Tamaño: 284 pies cuadrados (26 metros cuadrados) más despensa y sala de desayunos
Diseño de cocina: Bonnie Bagley Catlin de
Arquitectura:
La nueva cocina tiene una pared de ventanas y una gran isla que sirve como un centro de reunión y cocina. Los arquitectos abrieron el espacio antes cerrado al salón a la derecha y un Desayunador ubicado detrás de los taburetes del mostrador. La cocina zona está en un extremo de la cocina, y las áreas cerca de los dos los fregaderos sirven como zonas de preparación. Fuera del cuadro a la izquierda están los nevera y la zona de café.
La actividad gira en torno a la gran isla en el centro del espacio. Tiene asientos, una máquina de hielo, un segundo lavavajillas, abierto estantes para libros de cocina, mucho espacio de almacenamiento especializado y una preparación Fregadero convenientemente ubicado frente a la cocina y los hornos de pared. La puerta del armario que se ve aquí oculta la máquina de hielo.

KOW BONNIEFoto del antesAntes:La existente cocina tenía un encanto acogedor y una huella generosa, pero su diseño no era funcional para una familia extendida que cocina junta. El península cercada en el área de trabajo y bloqueado el fácil acceso a la refrigerador, que estaba detrás. La habitación estaba cerrada desde el resto de la casa, y su aspecto no estaba en consonancia con el el estilo cálido y moderno de la renovación.
Remodelación del hogar con un toque artístico modernoDespués:Catlin eliminó la península para crear un mejor flujo y dejar espacio para el isla expansiva. La familia quería tanto espacio en el mostrador como posible. El primer plan elaborado antes de que Catlin se uniera al equipo propuso cubrir la pared de la cocina con armarios altos para la despensa. "Este reducir significativamente el espacio del mostrador", dice Catlin. Por especificando armarios bajos más eficientes a lo largo del perímetro y en la isla y al incluir una despensa en los planes, ella eliminó la necesidad de gabinetes altos y mucho espacio superior armarios.

Remodelación del hogar con un toque artístico modernoEste cuchillo incorporado cajón de bloques está convenientemente ubicado al lado del fregadero de preparación. El El lavaplatos secundario también se encuentra aquí. Catlin ocultó la Lavavajillas principal detrás de una puerta con panel frontal al lado del principal lavabo.
A la derecha de la foto hay un inserto de gabinete de esquina ciega. Estos Las gavetas aprovechan al máximo las dos áreas de gabinetes de esquina en el habitación.
Inserción de gabinete de esquina ciega LeMans:
Remodelación del hogar con un toque artístico modernoFrente a la principal fregadero y lavavajillas, Catlin equipó los cajones de la isla con insertos y tacos para utensilios, platos y otros elementos.
Remodelación del hogar con un toque artístico modernoAl empacar la parte inferior gabinetes con inserciones eficientes, Catlin pudo instalar ventanas en lugar de gabinetes superiores a lo largo de esta pared. como un resultado, el espacio renovado tiene una sensación más abierta y disfruta más amplias vistas y luz.
KOW BONNIEConsejo:Antes de taladrar agujeros, asegúrese de que el hardware del gabinete se adapta a las proporciones de la puerta o el cajón. "El constructor hizo lo mejor: hizo maquetas de los el hardware se extrae de la madera", dice Catlin. "Estos gabinetes tienen tira en muchos tamaños diferentes, y esto nos ayudó a asegurarnos Estábamos consiguiendo las proporciones correctas para cada puerta y cajón."
KOW BONNIEAntes:La península bloqueó el camino al refrigerador. "Tener que caminar alrededor de esa península para llegar ir al refrigerador fue un fastidio", dice Catlin.
Remodelación del hogar con un toque artístico modernoDespués: El refrigerador se quedó en el mismo lugar. "Pero sin la península, es un tiro directo al resto de la cocina ahora", Catlin dice. La familia puede tomar ingredientes del refrigerador y colóquelos en la isla o al lado del fregadero para prepararlos trabajo.
A la izquierda de la nevera hay un nuevo vestidor despensa.A la derecha está la estación de café. Él incluye uno de los dosgabinetes superiores de la habitación con puertas de vidrio enmarcadas en aluminio negro.El estilo de estos gabinetes juegan con el estilo de las ventanas y mantienen cosas ligeras. "Me gusta usar estos gabinetes con marco de aluminio como acento", dice el diseñador.

Puertas de armario con marco de aluminio: Element Diseños

Remodelación del hogar con un toque artístico modernoEl estante que sostiene las cafeteras se despliegan para facilitar el acceso, y hay un salida al lado. Un inserto de cajón personalizado contiene café pods.
Remodelación del hogar con un toque artístico modernoEl esquema de iluminación incluye luces empotradas en el techo, iluminación debajo del gabinete y dos modernos colgantes sobre la isla.
"La renovación y ampliación de la casa terminaron costando más de lo que originalmente planearon gastar los propietarios",Catlin dice. "Así que tuvimos que diseñar valor de algunas de sus opciones para La cocina." Ella ahorró mucho dinero al reemplazar la pareja Opción de gabinete de chapa de madera con un laminado que parece madera, fabricado por la empresa italiana Cleaf.
Además, los planes originales requerían losas de Bianco Gioia cuarzo que hacía juego con las encimeras para cubrir las paredes del protector contra salpicaduras y campana extractora. Cuando descubrieron que estas losas serían un Budget-buster, Catlin obtuvo baldosas de mármol Calacatta de gran formato para el protector contra salpicaduras en lugar de . Su veteado y los colores son muy parecidos a las encimeras. "Decidimos calmó la campana extractora y usó un panel de yeso no combustible para cubrelo. Parece estuco pero es menos costoso", Catlin dice.

Remodelación del hogar con un toque artístico modernoLos propietarios eligieron cuarcita Portoro negra apomazada para la isla encimera Proporciona un fuerte contraste con los colores claros. Encimeras perimetralesde cuarzo. Acentos de latón en el los grifos negros mate contrastan con la calidez de los gabinetes. Ambos los lavabos son de cuarzo.
Grifos: Litze,

KOW BONNIEFoto del antesAntes:La existente el comedor formal estaba detrás de la cocina.
Remodelación del hogar con un toque artístico modernoDespués:La los arquitectos quitaron la pared entre los dos espacios.

Remodelación del hogar con un toque artístico modernoLos arquitectos se mudaron el comedor formal a otro lugar y convirtió el espacio en una sala de desayuno más informal. Esta es la vista desde la cocina. isla hacia este espacio. Grandes ventanas y puertas nuevas brindan vistas al patio y al campo de golf.
Uno de los propietarios obtuvo el multifuncional pieza de pared a la derecha. Sirve como aparador y estación de trabajo.

Puertas:
Remodelación de la casa con un toque artístico modernoLos arquitectos rediseñó una chimenea con un ángulo incómodo para darle un aspecto limpio y moderno líneas. La chimenea de dos caras sirve tanto a la sala de desayuno como el cuarto familiar. "Desafortunadamente, los pisos originales no fueron salvable", dice Catlin. Instalaron roble francés ahumado nuevo madera de ingeniería en toda la casa.
Pisos: Lisboa, California Classics Hardwood Pisos
Remodelación del hogar con un toque artístico modernoEsta foto muestra la vista de la cocina y su audaz obra de arte desde la sala de estar sofá.

KOW BONNIEFoto del antesAntes:La despensa Estaba ubicado a lo largo de una pared entre la cocina y el comedor. Él fue removido para abrir la cocina a lo que ahora es el desayuno room.
Remodelación del hogar con un toque artístico modernoDespués:La la despensa es parte de la adición. Catlin colgó ganchos para el los delantales de él y ella de la pareja.
Remodelación del hogar con un toque artístico modernoLa despensa tiene un cajón cajones que facilitan el acceso a los artículos en la parte posterior.

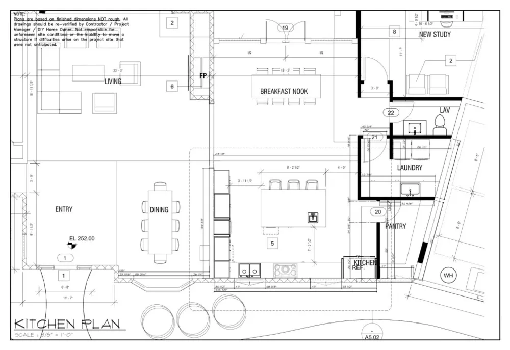
KOW BONNIEAntes:Este plano de planta muestra el edificio cerrado cocina con el comedor formal arriba. el anguloso También se puede ver la chimenea.
KOW BONNIEDespués:Los arquitectos diseñaron una ampliación entre la casa y el garaje. El centro del plano muestra la relación entre la cocina y el desayunador. El la nueva despensa está en la esquina inferior derecha. Reconfigurando una vasta El área de entrada en la esquina inferior izquierda dejó espacio para un nuevo diseño formal. comedor al lado.
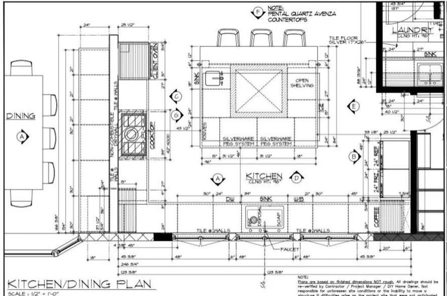
CHEAT SHEET 2La El plan anterior incluía el diseño inicial del arquitecto para el cocina antes de que los propietarios contrataran a Catlin. Este es su plan, que representa la cocina tal y como fue construida.


# Reforma de apartamento