Tour de Servista: la adición de reemplazo es más pequeña pero se siente Más espacioso

Los ajustes de diseño y los colores brillantes significan un mejor flujo, actualizado estilo y una conexión interior-exterior más cercana para un Londres home

La máxima "menos es más" se utiliza a menudo para advertir contra llenar una habitación con muebles o una superficie con accesorios. Para esta casa adosada de Londres, el adagio en cambio resultó ser cierto de la pies cuadrados. El arquitecto Richard Skinner reemplazó una vieja adición con una más pequeña, que desconcertantemente hizo más habitación (desplácese hasta el final de esta historia para ver los planos de planta). "No se requería espacio, pero crear espacio sí", dice.
Al igual que con muchas casas de la época victoriana tardía y eduardiana temprana épocas, la casa se había ampliado a medida que cambiaban los estilos de vida. El el cuarto de servicio resultante en la parte trasera separó el espacio habitable de el patio. La configuración original de salas de recepción separadas. también me sentí anticuado. La clave era hacer fluir toda la planta baja mejor creando una cocina-comedor de planta abierta que uniera al espacio exterior, y combinando las salas de recepción en una sala de estar.
11. RecepciónFotos por Mai-ling Leung
Casa de un vistazo
Quién vive aquí: Una pareja y su hija, más su perro
Ubicación: Nunhead, sureste de Londres
Tamaño: Tres habitaciones, 1½baños
Arquitecto: Richard Skinner de
Dos habitaciones se convirtieron en una cuando la pared entre las salas de recepción bajó Las paredes de toda la casa permanecieron blancas, con inyecciones de color que destacan sobre el fondo limpio. "Uno de los dueños es diseñador gráfico y tiene una fuerte y definida sabor", dice Skinner. "Son colores muy de los 80".
La lámpara de pie es un diseño vintage de un estilo moderno de mediados de siglo. venta.
Suelo de parquet de roble vintage clásico: ; colección Landskrona sofá y sillón: Ikea
Fernholme Road, Londres SE15Antes FotoAntes:A diferencia de muchas casas de su época, la fila casa conservó atractivas características de época, incluso en este sala de recepción delantera. "La casa estaba en excelentes condiciones en términos de su carácter victoriano, además de la [no plastificada ventanas de cloruro de polivinilo]y horrible extensión," Skinner dice.
15. Quemador de leñaEl los propietarios querían tener una chimenea en la sala de estar, pero tiene un cambio de imagen moderno. "Nos gusta mantener lo tradicional Elementos victorianos donde son buenos y agregan lo contemporáneo en una manera complementaria", dice Skinner.
Una estufa de leña era imprescindible para los propietarios de viviendas, y el arquitecto encontró un diseño que es moderno pero con un toque retro para establecer el tono para el espacio.
Estufa de leña Bollenté:

12. Recepción delantera y traseraEstanterías empotradas, diseñadas en junto con el propietario y el constructor, muestra la piezas de los propietarios de la década de 1980. "Es juguetón y contemporáneo", Skinner dice.
El suelo aquí y en el pasillo es de parquet de madera. Desollador lo eligió porque los ajustes para hacerlo encajar no son obvios. "Es más indulgente que las tablas en espacios pequeños e incómodos, y con paredes que no son paralelas ni cuadradas", dice. "Tú no cuestiona los cortes."
13. Recepción traseraLa parte trasera de la sala de estar es menos formal que el frente y incluye espacio para sentarse y escritorio, visto en el anterior foto. Con la unión de las dos estancias, la luz del el patio ahora llega al frente del espacio.
14. Puerta repintadaOriginalmente, dos puertas conducían desde el Pasillo al frente y la parte posterior de las salas de recepción. Ahora el de se tapona la delantera y queda esta trasera.
Según el conocimiento de los propietarios, esta puerta es original de la casa, que, habiendo sido construido entre 1891 y 1901, estaba justo en el cúspide de la era eduardiana. Tal vez por eso no parece obviamente victoriano. Recibió un éxito inspirado en la década de 1980 de rosa.
Fernholme Road, Londres SE15Antes FotoAntes: El mirador del antiguo comedor miró hacia el patio lateral. Más allá del comedor está el antiguo cocina: las dos habitaciones estaban separadas.
2. Cocina IKEA adaptadaUna nueva cocina ocupa el espacio donde estaba el comedor. Los armarios son de Ikea, pero las puertas, en un material de fibra de madera gris denominado , les confieren un acabado individual. Valchromat está impregnado de color, no sólo recubierto con una chapa.
"Las unidades son realmente prácticas en cuanto a los módulos y accesorios que puedes poner dentro de ellos", dice Skinner.
Las superficies de trabajo son de Corian. "Típicamente es el [grifo], fregadero y la encimera en la que recomendamos que la gente gaste dinero", dice Skinner. La superficie sólida blanca contrasta con los gabinetes grises, y envuelve la isla y forma los mostradores.
Azulejos de porcelana gris cubren el piso aquí y en el patio. "El los propietarios estaban realmente interesados en un flujo de pisos de adentro hacia afuera material", dice el arquitecto.
Puertas de armario Valchromat: ; fichas:
Fernholme Road, Londres SE15Antes FotoAntes: El ventanal de la cocina y la parte trasera Las puertas de la sala de recepción se abrieron al patio lateral.
4. Ventana salediza existenteUn radiador amarillo en la cocina ventana salediza crea un estallido de sol donde no hay mucho de una vista. Los radiadores de toda la casa lucen ahora colores y diseños con personalidad.
Radiador Roma: ; Lámparas colgantes Amp pequeñas: Normann Copenhague
3. Armarios de cocinaLos El tamaño de la estufa de inducción requería un extractor de aire ancho, por lo que el constructor adaptó el gabinete superior con un estante menos profundo para acomodar los conductos.
5. Cocina y comedorLa cocina-comedor ahora es una espacio abierto, pero como a los propietarios les gusta entretener, Skinner quería dar a las áreas una sensación de separación. "La idea es que todavía no estás sentado en la cocina", dice.
Taburetes de bar:
6. ComedorMás Valchromat, en forma de boiserie azul, distingue el comedor desde la cocina. "Es una referencia a la época victoriana paneles, que normalmente se detendrían en un riel o ranura para cuadros", dice Skinner. Aquí, bordea la habitación en una pared y atraviesa el techo para reforzar la separación.
Paneles Valchromat: James Latham; downlights empotrables: ; Mesa redonda serie Copenhague: Hay; Loft colecciónlámpara de pie: Jieldé;Agnes medium estantería:
7. Revestimiento ValchromatSkinner recomienda tanto el revestimiento y el color "Es un material encantador y un poco correoso", dijo. dice de la madera de ingeniería, cuyas fibras están impregnadas con tintes orgánicos y unidos químicamente por desarrollados específicamente resinas.
Radiador Roma: Radiadores Apollo
Fernholme Road, Londres SE15Antes FotoAntes: La ampliación del antiguo cuarto de servicio cortó el casa fuera del patio.
8. Extensión traseraDespués: La nueva incorporación en ángulo apertura enfoca la vista hacia el patio. Aunque su interior el espacio es aproximadamente la mitad que la antigua adición (la nueva adición comienza desde el punto donde está la puerta plegable), el efecto es haga que la planta baja se sienta mucho más espaciosa.
El techo de la adición se proyecta hacia el exterior, cubriendo algunos de los área exterior y permitiendo que la puerta plegable permanezca abierta en un rango de clima más amplio de lo que sería el caso de otra manera.
Puerta plegable:
9. Retorno lateralEl además es sutilmente contemporáneo, con pilares de ladrillo que lo unen a la casa original. Está cubierto de zinc libre de mantenimiento. "Es un sistema práctico y parece modesto", Skinner dice.

El panel azul del interior de la habitación continúa en el parte inferior del techo voladizo.
La mesa y las sillas simplemente se pueden mover afuera al patio cuando el clima es lo suficientemente bueno para cenar al aire libre, evitando la necesidad de llenar el espacio con extra muebles.
Revestimiento de zinc y cuarzo:
Fernholme Road, Londres SE15Antes FotoAntes: El patio no era el espacio de entretenimiento los dueños buscaban.
10. JardínDespués: Como el césped real, el césped artificial permite que el agua de lluvia drene a traves de. "Les hubiera encantado tener un césped [de hierba] si fuera se cuidó a sí mismo!" dice Skinner. El presupuesto no llegó a reemplazando el cobertizo, como le hubiera gustado a la pareja, por lo que en su lugar se tiñó del mismo color que la cerca nueva.
En la parte trasera del espacio hay una plataforma simple diseñada para que el los propietarios pueden organizar fiestas pequeñas. La madera se envuelve para crear un banco para sentarse, y el poder en el cobertizo ahora permite a los propietarios pon música.
Césped artificial:
Fernholme Road, Londres SE15Antes FotoAntes: El pasillo no tenía mucho personalidad ante las mejoras.
1. PasilloDespués: Con suelo de parquet nuevo, un radiador en un tono zingy y percheros gráficos, el espacio ahora tiene mucho estilo.
Radiador Roma: Radiadores Apollo

16. WC bajo escaleraRobando un poco de espacio del la cocina hizo espacio para un tocador debajo de las escaleras.
Los mosaicos hexagonales cubren el suelo de la habitación compacta. "Como el parquet de madera, aportan textura y agarre pero son fáciles de cortar para adaptarse", dice Skinner.
Inodoro: ; mosaicos hexagonales:

18. Dormitorio 2La habitación de la hija presenta colores llamativos contra un fondo blanco simple, haciéndose eco de la mirada del resto de la casa.
19. Dormitorio de invitadosEl Las tablas del piso originales están expuestas en el dormitorio de invitados. El la vibrante paleta de colores de los años 80 continúa en los muebles y muebles.
Lámpara suspendida aérea:
17. BañoNuevo accesorios de porcelana instalados en el mismo arreglo traen el Baño al día sin mayor costo. Azulejos oscuros para la ducha. El área y el protector contra salpicaduras contrastan sin complicaciones con el blanco de las paredes y los accesorios. Los propietarios eligieron baldosas hidráulicas en un estampado gráfico que les encanta para el suelo.
Accesorios de porcelana: Baños de Park Street; cemento mosaico:


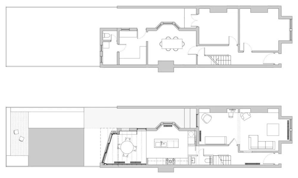
20. Planos de planta existentes y propuestosEstos planos muestran el planta baja antes de la renovación, que se muestra en la parte superior, y después.
21. Sección unoAquí está el alzado de la cocina, que se muestra a la izquierda, y el comedor área.
|||||||||||
# Reforma de apartamento