До и после: большая семейная ванна в стиле Тюдоров Главная

Ванна на ножках, обшивка по индивидуальному заказу и традиционная сантехника. и отделка делают комнату вневременной


Романтическая реконструкция ванной комнатыФотографии
Краткий обзор ванной комнаты
Кто его использует:профессиональная пара с одним ребенком и планирует расширить свою семью
Местоположение:Сиэтл
Размер:93 квадратных фута (8,6 квадратных метра)
Дизайнер:Дженнифер Ковальски из (интерьеры)
Строитель: (реконструкция)

Владельцы этого дома в Сиэтле планируют дни, когда эта ванная комната наверху должна будет работать для большая семья. Они представляли пространство, где они могли бы удобно собираться утром, купать детей и отдыхать с понежиться в ванне на ночь.
Они использовали Servista, чтобы найти строителя, который помог бы им увеличить площадь ванной комнаты на 18 квадратных футов, установить большие окна и спроектировать пространство в соответствии с их американским тюдоровским стилем. домой.
Два обязательных элемента дизайна
Дом находится в историческом районе, его архитектура и домовладельцы хотели, чтобы реконструкция отражала этот дизайн. "Этот ванная комната должна была ощущаться как историческая, как если бы она была частью дом с момента его постройки», — говорит менеджер проекта Мэтт Мойсан из компании Potter. Строители говорят. Обязательные атрибуты пары — ванна на ножках и традиционные столярные работы — помогли добиться внешнего вида. Потому что использовалось матовое стекло, оконные обработки не проводились. нужно.
«Владельцы были непреклонны в том, что в ванной достаточно место для ванны на ножках и что мы включаем обшивку в дизайн, — говорит Мойсан. — Эта ванная просто не было бы то же самое без любого из них особенности."
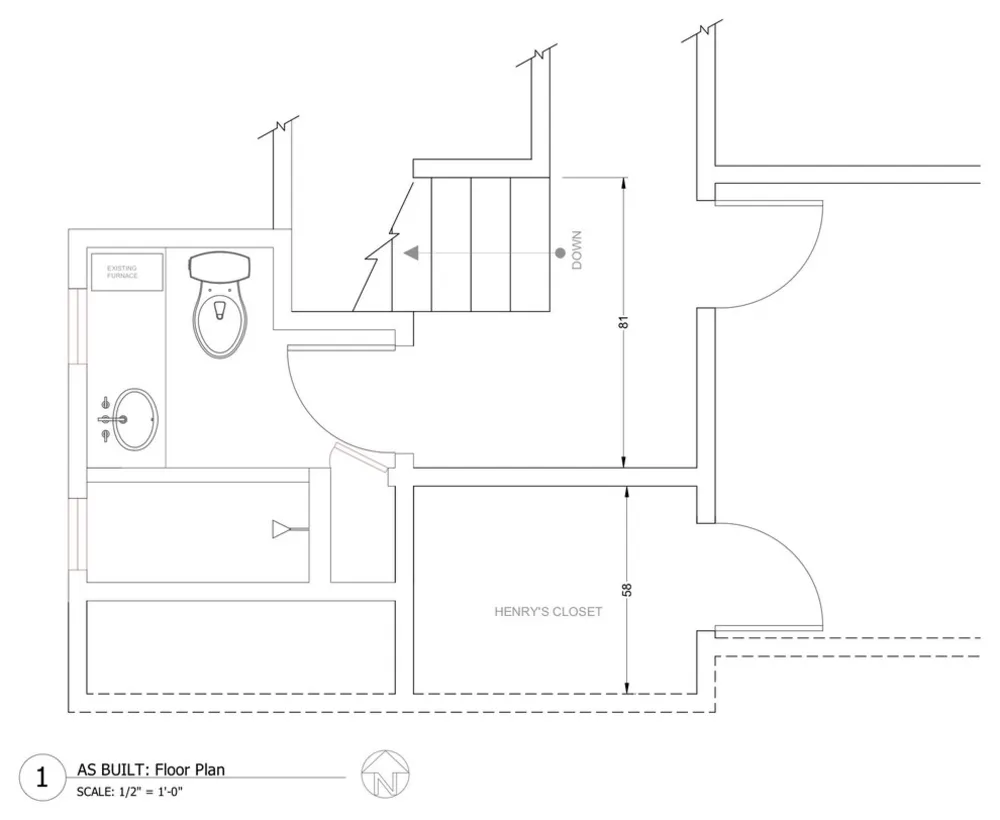
Романтическая реконструкция ванной комнатыДо ФотоДо. Существующая ванная комната площадью 75 квадратных футов был современным по стилю 80-х. В нем была комбинированная ванна и душ и небольшой бельевой шкаф. Тщеславие было вдоль наружная стена под двумя небольшими окнами. Комната казалась слишком тесной для семьи, и он только собирался чувствовать себя меньше, поскольку семья выросла.
Романтический ремонт ванной комнатыПосле.Клиенты выбрали сначала в ванной, затем работал с командой, в том числе с дизайнером интерьеров Дженнифер Ковальски, чтобы определить остальную часть палитры. Когда был выбран напольный керамогранит под мрамор, дизайнеры вытащил серый цвет из его прожилок и принял ванну производитель, Barclay, покрасьте его на заводе.
«Палитра была потрясающей, но мне действительно казалось, что мы нужен был еще один элемент»,Мойсанговорит. «Вот когда мы предложил обои поверх обшивки. Нежная лоза обои прекрасно сочетаются с остальными материалами». Обои виниловые, выдерживают влаги.
Наливной патрубок напольной ванны имеет полированное хромированное покрытие, соответствует когтистым ножкам ванны. В комплект входит ручная душевая лейка. это полезно для купания малышей и для очистки ванны. Зеркальные аптечки над туалетным столиком обеспечивают множество хранения и отражать свет вокруг.
Наполнитель для ванны: Tresa,; аптечка: Вердера, Колер; wallpaper: Vine, Simplicity New Classics Коллекция,Wallquest;
Романтическая реконструкция ванной комнатыЗдесь вы можете увидеть один из прекрасные ножки ванны — и как цвет ванны подбирается на прожилки на напольной плитке. 12-дюймовые квадратные плитки имеют отточенную отделка для матового вида, который хорошо вписывается в ванную комнату расслабленный стиль. Этот крупный план также дает представление о традиционная обшивка.
Ванна, наполнитель для ванны и столярные изделия были разорены, в то время как шкафы, кварцевая столешница и напольная плитка из керамогранита сбалансированы вне бюджета.
Напольное покрытие: Флорентийская Каррара, Далтиле; tub: Доусон чугунная ванна с двойной выдвижной крышкой: Barclay
|
Романтический ремонт ванной комнаты Радиатор стал проблемой. «В самом начале мы обсуждали замену старого радиатор с чем-то более новым, в античном стиле, но обнаружил, что это будет стоить небольшой состояния»,Мойсанговорит.
Изготовление крышки радиатора на заказ не только сэкономило деньги, но и также создал приятный элемент дизайна. обложка подходит к столярные изделия комнаты и обеспечивает другую поверхность для хранения или дисплей.

Романтический ремонт ванной комнатыДо ФотоДо.Это была ситуация с ванной и душем до ремонта. Бельевой шкаф (за дверью на слева) был удален, чтобы увеличить площадь пола.
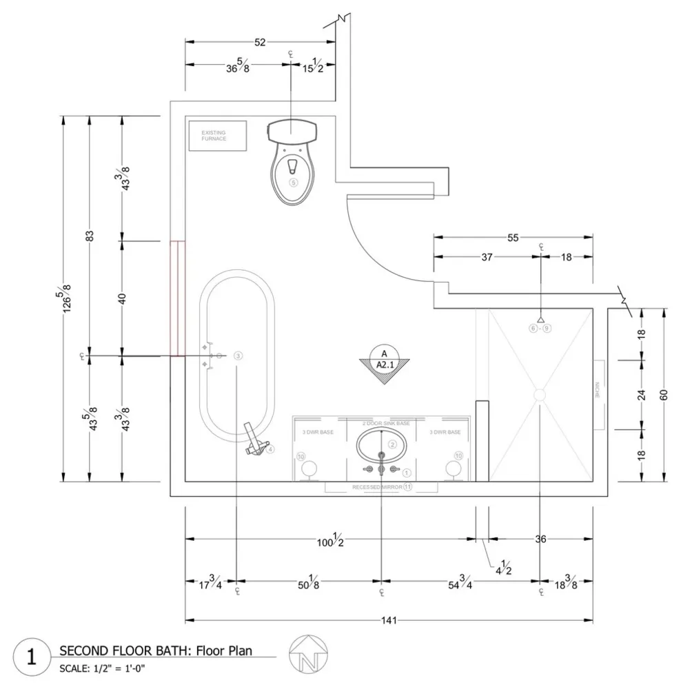
Романтическая реконструкция ванной комнатыПосле.Чтобы создать достаточно комната для отдельной душевой, бригада заимствовала комнату у шкаф в соседней детской. Корпус из прозрачного стекла сохраняет душевая кабина и остальная часть комнаты светлая и просторная. Его облицован вытянутой плиткой метро с приятной текстурой.
Душевая ниша вместительна для всей семьи — это 31 дюйм в ширину и 25 дюймов в высоту, с закаленным стеклом полка.Плитка в задней части ниши вводит небольшой геометрический узор, создающий фокус.
<я>
Насадка для душа: Brizo
Романтический ремонт ванной комнатыВместо того, чтобы добавить две раковины, домовладельцы выбрали одну раковину и дополнительное рабочее пространство на новый туалетный столик в традиционном стиле. Туалетный столик имеет ширину 5 футов и 36 дюймов в высоту. Смесители, фурнитура, бра и аксессуары полированный хром. Столешница и фартук напоминают натуральный камень.
Прилавок и фартук: Icelake, PentalQuartz; тщеславие: Брентвудский собор, картина Городской пейзаж. Шервин-Уильямс; Пряжки и грибовидные ручки: ; Бра Antonio: Park Harbour Lighting; кран: Ладья, ;
Романтический Поттер в ваннойДо.Слева вы видите старые окна; справа огромный шкаф в детской, из которого место было взято, чтобы увеличить ванну. Дизайнеры также получили пространство, сняв небольшой бельевой шкаф в ванной и вырезав в пространство под карнизом (в левом нижнем углу на этом план). Эти перемещения увеличили площадь примерно на 18 квадратных футов. след ванной комнаты.
Романтический гончар в ваннойПослеНовая планировка ванной комнаты позволяет лучше использовать пространство. Новая ванна теперь стоит вдоль стена окна. Поменяв местами туалетный столик и ванну, команда удалось увеличить, чтобы пропустить больше света.
Выводы
<ул>
  • Рассмотрите возможность использования матового стекла для уединения на окнах ванной комнаты, если вам не нужна суета по уходу за окнами.
  • Часто можно покрасить или покрыть глазурью ванну на ножках в пользовательский цвет. Обратитесь к производителю, чтобы убедиться, что это вариант.
  • Виниловые обои подходят для влажных помещений.
  • Обшивка стен может помочь связать комнату воедино. относятся к остальному стилю дома.
  • При рассмотрении вопроса об установке одной или двух раковин на тщеславие, подумайте, сколько встречного пространства члены семьи будут нужно, когда собираешься утром.
  • Убедитесь, что размер душевой ниши (или набора ниш) такой, чтобы у каждого в семье будет место для своих продуктов.


  • # Ремонт квартиры